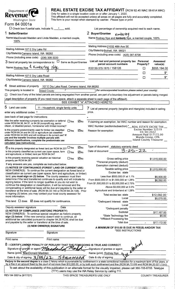
Property
Account |
| Property ID: | 155904 | Abbreviated Legal Description: | 82 - IN GL 3: BG MEANDER CR N4*W576.2' N6*E1705.4' N38* E865.9' N44*E891.4' TPB N45 *W106.99' N44*E50' S45*E106 .99' S44*W50' TPB |
| Geographic ID: | R33107-370-2490 | Agent Code: | |
| Type: | Real | | |
| Tax Area: | 510 - APPRAISER-Stan/Cam Schl Dist, improved & 1 acre or less | Land Use Code | 11 |
| Open Space: | N | DFL | N |
| Historic Property: | N | Remodel Property: | N |
| Multi-Family Redevelopment: | N | | |
| Township: | 31 | Section: | 07 |
| Range: | R3 |
Location |
| Address: | 176 DRIFTWOOD SHORES RD CAMANO ISLAND, WA 98282 | Mapsco: | |
| Neighborhood: | Cycle 5 | Map ID: | 923 |
| Neighborhood CD: | 5 |
Owner |
| Name: | TRADAL, TERRY A | Owner ID: | 5307 |
| Mailing Address: | LORRAINE TRADAL 17402 44TH AVE NE LAKE FOREST PARK, WA 98155-5507 | % Ownership: | 100.0000000000% |
| | | Exemptions: | |
Taxes and Assessment Details
Values
| (+) Improvement Homesite Value: | + | $0 | |
| (+) Improvement Non-Homesite Value: | + | $109,953 | |
| (+) Land Homesite Value: | + | $0 | |
| (+) Land Non-Homesite Value: | + | $750,000 | |
| (+) Curr Use (HS): | + | $0 | $0 |
| (+) Curr Use (NHS): | + | $0 | $0 |
| | | -------------------------- | |
| (=) Market Value: | = | $859,953 | |
| (–) Productivity Loss: | – | $0 | |
| | | -------------------------- | |
| (=) Subtotal: | = | $859,953 | |
| (+) Senior Appraised Value: | + | $0 | |
| (+) Non-Senior Appraised Value: | + | $859,953 | |
| | | -------------------------- | |
| (=) Total Appraised Value: | = | $859,953 | |
| (–) Senior Exemption Loss: | – | $0 | |
| (–) Exemption Loss: | – | $0 | |
| | | -------------------------- | |
| (=) Taxable Value: | = | $859,953 | |
Taxing Jurisdiction
| Owner: | TRADAL, TERRY A | | |
| % Ownership: | 100.0000000000% | | |
| Total Value: | $859,953 | | |
| Tax Area: | 510 - APPRAISER-Stan/Cam Schl Dist, improved & 1 acre or less |
| CF | Conservation Futures | 0.0316035091 | $859,953 | $859,953 | $27.18 | | |
| EMS1 | Fire & Rescue Dist #1 Camano GEN (EMS) | 0.3677864386 | $859,953 | $859,953 | $316.28 | | |
| FIRE1 | Fire & Rescue Dist #1 Camano GEN | 1.2502910536 | $859,953 | $859,953 | $1,075.19 | | |
| FIRE1BOND | Fire & Rescue Dist #1 Camano BOND | 0.1570001679 | $859,953 | $859,953 | $135.01 | | |
| CE | County Current Expense | 0.3708482477 | $859,953 | $859,953 | $318.91 | | |
| CR | County Roads | 0.4584763726 | $859,953 | $859,953 | $394.27 | | |
| LCIB | Library Sno-Isle BOND (Camano Island) | 0.0396325772 | $859,953 | $859,953 | $34.08 | | |
| LIB | Library Sno-Isle GEN | 0.3153421757 | $859,953 | $859,953 | $271.18 | | |
| SCH205_401 | School 205-401 Enrichment | 1.2698420524 | $859,953 | $859,953 | $1,092.00 | | |
| SCH205BOND | School 205-401 BOND | 0.9396497583 | $859,953 | $859,953 | $808.05 | | |
| ST | State School | 1.3035497053 | $859,953 | $859,953 | $1,120.99 | | |
| ST2 | State School Part 2 | 0.8169543533 | $859,953 | $859,953 | $702.54 | | |
| | Total Tax Rate: | 7.3209764117 | | | | | |
| | | | | Taxes w/Current Exemptions: | $6,295.68 | | |
| | | | | Taxes w/o Exemptions: | $6,295.68 | | |
Improvement / Building
| Improvement #1: | RESIDENTIAL | State Code: | Y | 750.0 sqft | Value: | $109,953 |
| Bathrooms: | 1 | Bedrooms: | 0 | | Ceiling: | ACOUSTIC FURRED | Exterior Wall/Cover: | WOOD SIDING | | Floor Covering: | CARPET/VINYL 80-20 | Floor Structure: | WOOD W/SUBFLOOR | | Foundation: | CONCRETE | Heating: | BASEBOARD ELECTRIC | | Interior Finish: | DRYWALL PAINT | Plumbing Fixture Cnt: | 5 | | Roof Slope: | 4" IN 12" | Roof Structure/Cover: | CJ ASPHALT |
|
| | Type | Description | Class CD | Sub Class CD | Year Built | Area |
| | BAS | BASE/MAIN FLOOR | 3 | 0 | 1962 | 750.0 |
| | OP1 | OPEN PORCH SLAB | 3 | 0 | 1962 | 372.0 |
| | OWP | OPEN WOOD PORCH W/STEPS | 3 | 0 | 1962 | 347.0 |
Sketch
Property Image
Land
| 1 | LB | LOW BANK | 0.1300 | 5662.80 | 50.00 | 0.00 | 1.00 | $750,000 | $0 |
Roll Value History
| 2026 | N/A | N/A | N/A | N/A | N/A |
| 2025 | $109,953 | $750,000 | $0 | $859,953 | $859,953 |
| 2024 | $113,992 | $750,000 | $0 | $863,992 | $863,992 |
| 2023 | $115,767 | $685,000 | $0 | $800,767 | $800,767 |
| 2022 | $106,432 | $625,000 | $0 | $731,432 | $731,432 |
| 2021 | $89,758 | $500,000 | $0 | $589,758 | $589,758 |
| 2020 | $87,686 | $425,000 | $0 | $512,686 | $512,686 |
| 2019 | $62,009 | $425,000 | $0 | $487,009 | $487,009 |
| 2018 | $62,244 | $375,000 | $0 | $437,244 | $437,244 |
| 2017 | $62,712 | $350,000 | $0 | $412,712 | $412,712 |
| 2016 | $63,647 | $350,000 | $0 | $413,647 | $413,647 |
| 2015 | $54,397 | $350,000 | $0 | $404,397 | $404,397 |
| 2014 | $55,214 | $350,000 | $0 | $405,214 | $405,214 |
| 2013 | $56,031 | $350,000 | $0 | $406,031 | $406,031 |
| 2012 | $56,846 | $333,546 | $0 | $390,392 | $390,392 |
| 2011 | $57,663 | $416,933 | $0 | $474,596 | $474,596 |
| 2010 | $63,861 | $416,933 | $0 | $480,794 | $480,794 |
| 2009 | $66,723 | $461,492 | $0 | $528,215 | $528,215 |
| 2008 | $67,800 | $525,146 | $0 | $592,946 | $592,946 |
| 2007 | $68,886 | $465,135 | $0 | $534,021 | $534,021 |
Deed and Sales History
| 1 | 06/05/1998 | WD | Warranty Deed | HURD, STAN | TRADAL, TERRY A | | | $260,000.00 | 82201 | 98011485 |
| 2 | 12/01/1997 | PRD | Personal Representatives Deed | HURD, ETHEL M | HURD, STAN | | | $0.00 | 80081 | 98000417 |
| 3 | 03/01/1988 | QCD | Quit Claim Deed | HURD, GEORGE A | HURD, ETHEL M | | | $0.00 | 81311 | 88004959 |
| 4 | 07/01/1966 | EXECUTORD | Executor Deed | TRADAL, TERRY A | HURD, GEORGE A | | | $14,500.00 | 22937 | 0 |
| 5 | 01/01/1900 | OTHER | Other - Misc. Documents | Unknown | TRADAL, TERRY A | | | $0.00 | 82201 | 98011485 |
Payout Agreement
| No payout information available.. |