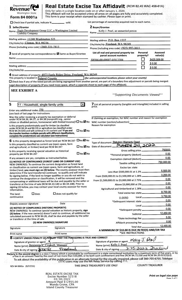
Property
Account |
| Property ID: | 155959 | Abbreviated Legal Description: | 83 - IN GL 3 BG MC SEC 7 & 18 N4*W576.2' N6*E1705.4' N38*E865.9' N44*E941.4' W150' N45*W40' N44*E50' TPB N45*W100' N44*E50' S45*E 100' S44*W50' TPB TGW: BG MC SEC 7&18 N4*W576.2' N6*E 1705.4' N38*E865.9' N44*E 886.26' N45*W246.99' TPB N45*W100' N44*E50' |
| Geographic ID: | R33107-382-2410 | Agent Code: | |
| Type: | Real | | |
| Tax Area: | 510 - APPRAISER-Stan/Cam Schl Dist, improved & 1 acre or less | Land Use Code | 11 |
| Open Space: | N | DFL | N |
| Historic Property: | N | Remodel Property: | N |
| Multi-Family Redevelopment: | N | | |
| Township: | 31 | Section: | 07 |
| Range: | R3 |
Location |
| Address: | 181 DRIFTWOOD SHORES RD CAMANO ISLAND, WA 98282 | Mapsco: | |
| Neighborhood: | Cycle 5 | Map ID: | 923 |
| Neighborhood CD: | 5 |
Owner |
| Name: | WALTON, DAVID | Owner ID: | 60177 |
| Mailing Address: | DEANNA E WALTON PO BOX 528 STANWOOD, WA 98292 | % Ownership: | 100.0000000000% |
| | | Exemptions: | |
Taxes and Assessment Details
Values
| (+) Improvement Homesite Value: | + | $0 | |
| (+) Improvement Non-Homesite Value: | + | $188,019 | |
| (+) Land Homesite Value: | + | $0 | |
| (+) Land Non-Homesite Value: | + | $330,000 | |
| (+) Curr Use (HS): | + | $0 | $0 |
| (+) Curr Use (NHS): | + | $0 | $0 |
| | | -------------------------- | |
| (=) Market Value: | = | $518,019 | |
| (–) Productivity Loss: | – | $0 | |
| | | -------------------------- | |
| (=) Subtotal: | = | $518,019 | |
| (+) Senior Appraised Value: | + | $0 | |
| (+) Non-Senior Appraised Value: | + | $518,019 | |
| | | -------------------------- | |
| (=) Total Appraised Value: | = | $518,019 | |
| (–) Senior Exemption Loss: | – | $0 | |
| (–) Exemption Loss: | – | $0 | |
| | | -------------------------- | |
| (=) Taxable Value: | = | $518,019 | |
Taxing Jurisdiction
| Owner: | WALTON, DAVID | | |
| % Ownership: | 100.0000000000% | | |
| Total Value: | $518,019 | | |
| Tax Area: | 510 - APPRAISER-Stan/Cam Schl Dist, improved & 1 acre or less |
| CF | Conservation Futures | 0.0316035091 | $518,019 | $518,019 | $16.37 | | |
| EMS1 | Fire & Rescue Dist #1 Camano GEN (EMS) | 0.3677864386 | $518,019 | $518,019 | $190.52 | | |
| FIRE1 | Fire & Rescue Dist #1 Camano GEN | 1.2502910536 | $518,019 | $518,019 | $647.67 | | |
| FIRE1BOND | Fire & Rescue Dist #1 Camano BOND | 0.1570001679 | $518,019 | $518,019 | $81.33 | | |
| CE | County Current Expense | 0.3708482477 | $518,019 | $518,019 | $192.11 | | |
| CR | County Roads | 0.4584763726 | $518,019 | $518,019 | $237.50 | | |
| LCIB | Library Sno-Isle BOND (Camano Island) | 0.0396325772 | $518,019 | $518,019 | $20.53 | | |
| LIB | Library Sno-Isle GEN | 0.3153421757 | $518,019 | $518,019 | $163.35 | | |
| SCH205_401 | School 205-401 Enrichment | 1.2698420524 | $518,019 | $518,019 | $657.80 | | |
| SCH205BOND | School 205-401 BOND | 0.9396497583 | $518,019 | $518,019 | $486.76 | | |
| ST | State School | 1.3035497053 | $518,019 | $518,019 | $675.26 | | |
| ST2 | State School Part 2 | 0.8169543533 | $518,019 | $518,019 | $423.20 | | |
| | Total Tax Rate: | 7.3209764117 | | | | | |
| | | | | Taxes w/Current Exemptions: | $3,792.40 | | |
| | | | | Taxes w/o Exemptions: | $3,792.40 | | |
Improvement / Building
| Improvement #1: | RESIDENTIAL | State Code: | Y | 960.0 sqft | Value: | $188,019 |
| Bathrooms: | 0.75 | Bedrooms: | 1 | | Ceiling: | TONGUE & GROOVE | Exterior Wall/Cover: | SHINGLE | | Floor Covering: | CARPET/VINYL 80-20 | Floor Structure: | WOOD W/SUBFLOOR | | Foundation: | CONCRETE | Heating: | FHA GAS | | Interior Finish: | DRYWALL PAINT | Plumbing Fixture Cnt: | 6 | | Roof Slope: | 6" IN 12" | Roof Structure/Cover: | BEAM ASPHALT |
|
| | Type | Description | Class CD | Sub Class CD | Year Built | Area |
| | BAS | BASE/MAIN FLOOR | 3 | 0 | 1976 | 960.0 |
| | OWP | OPEN WOOD PORCH W/STEPS | 3 | 0 | 1976 | 118.0 |
| | OWR | OPEN WOOD PORCH W/STEPS/ROOF | 3 | 0 | 1976 | 190.8 |
| | oOBD | Out Buildings | 3 | 0 | 1976 | 0.0 |
Sketch
Property Image
Land
| 1 | 14 | SQ (08001-12000) | 0.2200 | 9583.20 | 0.00 | 0.00 | 1.00 | $330,000 | $0 |
Roll Value History
| 2026 | N/A | N/A | N/A | N/A | N/A |
| 2025 | $188,019 | $330,000 | $0 | $518,019 | $518,019 |
| 2024 | $190,318 | $320,000 | $0 | $510,318 | $510,318 |
| 2023 | $192,617 | $360,000 | $0 | $552,617 | $552,617 |
| 2022 | $177,917 | $280,000 | $0 | $457,917 | $457,917 |
| 2021 | $158,119 | $220,000 | $0 | $378,119 | $378,119 |
| 2020 | $154,557 | $170,000 | $0 | $324,557 | $324,557 |
| 2019 | $115,322 | $200,000 | $0 | $315,322 | $315,322 |
| 2018 | $115,631 | $185,000 | $0 | $300,631 | $300,631 |
| 2017 | $116,217 | $130,000 | $0 | $246,217 | $246,217 |
| 2016 | $117,453 | $100,000 | $0 | $217,453 | $217,453 |
| 2015 | $116,604 | $85,000 | $0 | $201,604 | $201,604 |
| 2014 | $117,817 | $85,000 | $0 | $202,817 | $202,817 |
| 2013 | $119,029 | $85,000 | $0 | $204,029 | $204,029 |
| 2012 | $120,242 | $76,000 | $0 | $196,242 | $196,242 |
| 2011 | $121,455 | $95,000 | $0 | $216,455 | $216,455 |
| 2010 | $126,435 | $95,000 | $0 | $221,435 | $221,435 |
| 2009 | $99,440 | $125,000 | $0 | $224,440 | $224,440 |
| 2008 | $99,574 | $129,780 | $0 | $229,354 | $229,354 |
| 2007 | $101,202 | $129,780 | $0 | $230,982 | $230,982 |
Deed and Sales History
| 1 | 12/06/2011 | CCOMPROP | Create Community Property | WALTON, DAVID | WALTON, DAVID | | | $0.00 | 6400 | 4306457 |
| 2 | 05/05/2010 | WD | Warranty Deed | TRADEL, TERRY A | WALTON, DAVID | | | $230,000.00 | 1141 | 4273597 |
| 3 | 08/24/2000 | WD | Warranty Deed | KENT, RAY F | TRADEL, TERRY A | | | $69,000.00 | 3275 | 20015355 |
| 4 | 05/01/1996 | OTHER | Other - Misc. Documents | KENT, RAY F | KENT, RAY F | | | $0.00 | 66922 | 0 |
| 5 | 09/01/1976 | OTHER | Other - Misc. Documents | KENT, RAY F | KENT, RAY F | | | $0.00 | 63579 | 0 |
| 6 | 07/01/1975 | OTHER | Other - Misc. Documents | Unknown | KENT, RAY F | | | $0.00 | 56587 | 0 |
Payout Agreement
| No payout information available.. |