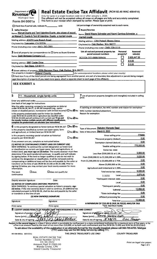
Property
Account |
| Property ID: | 155986 | Abbreviated Legal Description: | 85 - IN GL3: BG MC SEC 7 & 18 N4*W576.2' N6*E1705.4' N38*E865.9' N44*E2041.4' N45*W140' S44*W700' N45*W 6.99' S44*W350' TPB N45*W 100' S44*W50' S45*W100' N44*E50' TPB TGW: BG MC SEC 7 & 18 N4*W576.2' N6*E 1705.4' N38*E865.9' N44*E 936.26' N45*W246.99' TP |
| Geographic ID: | R33107-386-2450 | Agent Code: | |
| Type: | Real | | |
| Tax Area: | 510 - APPRAISER-Stan/Cam Schl Dist, improved & 1 acre or less | Land Use Code | 11 |
| Open Space: | N | DFL | N |
| Historic Property: | N | Remodel Property: | N |
| Multi-Family Redevelopment: | N | | |
| Township: | 31 | Section: | 07 |
| Range: | R3 |
Location |
| Address: | 183 DRIFTWOOD SHORES RD CAMANO ISLAND, WA 98282 | Mapsco: | |
| Neighborhood: | Cycle 5 | Map ID: | 923 |
| Neighborhood CD: | 5 |
Owner |
| Name: | MAIER, JOHN W | Owner ID: | 267400 |
| Mailing Address: | 164 LIVINGSTON BAY RD CAMANO ISLAND, WA 98282 | % Ownership: | 100.0000000000% |
| | | Exemptions: | |
Taxes and Assessment Details
Values
| (+) Improvement Homesite Value: | + | $0 | |
| (+) Improvement Non-Homesite Value: | + | $20,000 | |
| (+) Land Homesite Value: | + | $0 | |
| (+) Land Non-Homesite Value: | + | $130,000 | |
| (+) Curr Use (HS): | + | $0 | $0 |
| (+) Curr Use (NHS): | + | $0 | $0 |
| | | -------------------------- | |
| (=) Market Value: | = | $150,000 | |
| (–) Productivity Loss: | – | $0 | |
| | | -------------------------- | |
| (=) Subtotal: | = | $150,000 | |
| (+) Senior Appraised Value: | + | $0 | |
| (+) Non-Senior Appraised Value: | + | $150,000 | |
| | | -------------------------- | |
| (=) Total Appraised Value: | = | $150,000 | |
| (–) Senior Exemption Loss: | – | $0 | |
| (–) Exemption Loss: | – | $0 | |
| | | -------------------------- | |
| (=) Taxable Value: | = | $150,000 | |
Taxing Jurisdiction
| Owner: | MAIER, JOHN W | | |
| % Ownership: | 100.0000000000% | | |
| Total Value: | $150,000 | | |
| Tax Area: | 510 - APPRAISER-Stan/Cam Schl Dist, improved & 1 acre or less |
| CF | Conservation Futures | 0.0316035091 | $150,000 | $150,000 | $4.74 | | |
| EMS1 | Fire & Rescue Dist #1 Camano GEN (EMS) | 0.3677864386 | $150,000 | $150,000 | $55.17 | | |
| FIRE1 | Fire & Rescue Dist #1 Camano GEN | 1.2502910536 | $150,000 | $150,000 | $187.54 | | |
| FIRE1BOND | Fire & Rescue Dist #1 Camano BOND | 0.1570001679 | $150,000 | $150,000 | $23.55 | | |
| CE | County Current Expense | 0.3708482477 | $150,000 | $150,000 | $55.63 | | |
| CR | County Roads | 0.4584763726 | $150,000 | $150,000 | $68.77 | | |
| LCIB | Library Sno-Isle BOND (Camano Island) | 0.0396325772 | $150,000 | $150,000 | $5.94 | | |
| LIB | Library Sno-Isle GEN | 0.3153421757 | $150,000 | $150,000 | $47.30 | | |
| SCH205_401 | School 205-401 Enrichment | 1.2698420524 | $150,000 | $150,000 | $190.48 | | |
| SCH205BOND | School 205-401 BOND | 0.9396497583 | $150,000 | $150,000 | $140.95 | | |
| ST | State School | 1.3035497053 | $150,000 | $150,000 | $195.53 | | |
| ST2 | State School Part 2 | 0.8169543533 | $150,000 | $150,000 | $122.54 | | |
| | Total Tax Rate: | 7.3209764117 | | | | | |
| | | | | Taxes w/Current Exemptions: | $1,098.14 | | |
| | | | | Taxes w/o Exemptions: | $1,098.14 | | |
Improvement / Building
| Improvement #1: | RESIDENTIAL | State Code: | Y | 0.0 sqft | Value: | $20,000 |
Sketch
Property Image
Land
| 1 | 14 | SQ (08001-12000) | 0.2300 | 10018.80 | 0.00 | 0.00 | 1.00 | $130,000 | $0 |
Roll Value History
| 2026 | N/A | N/A | N/A | N/A | N/A |
| 2025 | $20,000 | $130,000 | $0 | $150,000 | $150,000 |
| 2024 | $20,000 | $110,000 | $0 | $130,000 | $130,000 |
| 2023 | $20,000 | $110,000 | $0 | $130,000 | $130,000 |
| 2022 | $20,000 | $100,000 | $0 | $120,000 | $120,000 |
| 2021 | $20,000 | $80,000 | $0 | $100,000 | $100,000 |
| 2020 | $20,000 | $80,000 | $0 | $100,000 | $100,000 |
| 2019 | $20,000 | $80,000 | $0 | $100,000 | $100,000 |
| 2018 | $20,000 | $50,000 | $0 | $70,000 | $70,000 |
| 2017 | $20,000 | $30,000 | $0 | $50,000 | $50,000 |
| 2016 | $20,000 | $30,000 | $0 | $50,000 | $50,000 |
| 2015 | $20,000 | $30,000 | $0 | $50,000 | $50,000 |
| 2014 | $20,000 | $30,000 | $0 | $50,000 | $50,000 |
| 2013 | $19,861 | $30,000 | $0 | $49,861 | $49,861 |
| 2012 | $19,861 | $30,000 | $0 | $49,861 | $49,861 |
| 2011 | $19,861 | $37,500 | $0 | $57,361 | $57,361 |
| 2010 | $20,029 | $37,500 | $0 | $57,529 | $57,529 |
| 2009 | $20,422 | $40,500 | $0 | $60,922 | $60,922 |
| 2008 | $20,909 | $40,500 | $0 | $61,409 | $61,409 |
| 2007 | $21,551 | $34,750 | $0 | $56,301 | $56,301 |
Deed and Sales History
| 1 | 08/01/2014 | PRD | Personal Representatives Deed | MAIER, PHYLLIS L | MAIER, JOHN W | | | $0.00 | 16310 | 4363514 |
| 2 | 07/01/1997 | WD | Warranty Deed | HILLIN, VIRGINIA L | MAIER, PHYLLIS L | | | $39,845.00 | 72504 | 97011857 |
| 3 | 05/01/1989 | TRUSTEED | Trustee's Deed | HILLIN, HARVEY R | HILLIN, VIRGINIA L | | | $0.00 | 91658 | 89005725 |
| 4 | 09/01/1976 | TRUSTEED | Trustee's Deed | HILLIN, HARVEY R | HILLIN, HARVEY R | | | $0.00 | 63564 | 0 |
| 5 | 01/01/1900 | OTHER | Other - Misc. Documents | Unknown | HILLIN, HARVEY R | | | $0.00 | 0 | 0 |
Payout Agreement
| No payout information available.. |