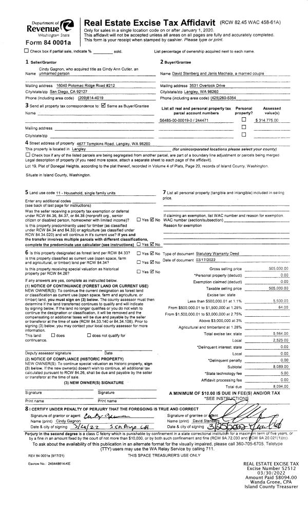
Property
Account |
| Property ID: | 156100 | Abbreviated Legal Description: | 95 - IN GLS 3 & 4: BG MC SECS 7 & 18 ALG ML N4*W576 .2' N6*E1705.4' N38*E865.9' N44*E1191.4' N45*W146.99' TPB N44*E50' N45*W100' S44*W50' S45*E100' TPB TGW IN GL4: BG MC COM SECS 7 & 18 ALG ML N4*W576.2' N6*E1705.4' N38*E865.9' N44* |
| Geographic ID: | R33107-403-2660 | Agent Code: | |
| Type: | Real | | |
| Tax Area: | 519 - APPRAISER-Stan/Cam Schl Dist, vacant & 50 acres or less | Land Use Code | 91 |
| Open Space: | N | DFL | N |
| Historic Property: | N | Remodel Property: | N |
| Multi-Family Redevelopment: | N | | |
| Township: | 31 | Section: | 07 |
| Range: | R3 |
Location |
| Address: | | Mapsco: | |
| Neighborhood: | Cycle 5 | Map ID: | 923 |
| Neighborhood CD: | 5 |
Owner |
| Name: | SUNDBERG, KEVIN D | Owner ID: | 309664 |
| Mailing Address: | ANNA M SUNDBERG 662 ELL RD CAMANO ISLAND, WA 98282 | % Ownership: | 100.0000000000% |
| | | Exemptions: | |
Taxes and Assessment Details
Values
| (+) Improvement Homesite Value: | + | $0 | |
| (+) Improvement Non-Homesite Value: | + | $0 | |
| (+) Land Homesite Value: | + | $0 | |
| (+) Land Non-Homesite Value: | + | $60,000 | |
| (+) Curr Use (HS): | + | $0 | $0 |
| (+) Curr Use (NHS): | + | $0 | $0 |
| | | -------------------------- | |
| (=) Market Value: | = | $60,000 | |
| (–) Productivity Loss: | – | $0 | |
| | | -------------------------- | |
| (=) Subtotal: | = | $60,000 | |
| (+) Senior Appraised Value: | + | $0 | |
| (+) Non-Senior Appraised Value: | + | $60,000 | |
| | | -------------------------- | |
| (=) Total Appraised Value: | = | $60,000 | |
| (–) Senior Exemption Loss: | – | $0 | |
| (–) Exemption Loss: | – | $0 | |
| | | -------------------------- | |
| (=) Taxable Value: | = | $60,000 | |
Taxing Jurisdiction
| Owner: | SUNDBERG, KEVIN D | | |
| % Ownership: | 100.0000000000% | | |
| Total Value: | $60,000 | | |
| Tax Area: | 519 - APPRAISER-Stan/Cam Schl Dist, vacant & 50 acres or less |
| CF | Conservation Futures | 0.0316035091 | $60,000 | $60,000 | $1.90 | | |
| EMS1 | Fire & Rescue Dist #1 Camano GEN (EMS) | 0.3677864386 | $60,000 | $60,000 | $22.07 | | |
| CE | County Current Expense | 0.3708482477 | $60,000 | $60,000 | $22.25 | | |
| CR | County Roads | 0.4584763726 | $60,000 | $60,000 | $27.51 | | |
| LCIB | Library Sno-Isle BOND (Camano Island) | 0.0396325772 | $60,000 | $60,000 | $2.38 | | |
| LIB | Library Sno-Isle GEN | 0.3153421757 | $60,000 | $60,000 | $18.92 | | |
| SCH205_401 | School 205-401 Enrichment | 1.2698420524 | $60,000 | $60,000 | $76.19 | | |
| SCH205BOND | School 205-401 BOND | 0.9396497583 | $60,000 | $60,000 | $56.38 | | |
| ST | State School | 1.3035497053 | $60,000 | $60,000 | $78.21 | | |
| ST2 | State School Part 2 | 0.8169543533 | $60,000 | $60,000 | $49.02 | | |
| | Total Tax Rate: | 5.9136851902 | | | | | |
| | | | | Taxes w/Current Exemptions: | $354.83 | | |
| | | | | Taxes w/o Exemptions: | $354.83 | | |
Improvement / Building
Sketch
| No sketches available for this property. |
Property Image
Land
| 1 | 12 | SQ (00000-06000) | 0.2300 | 10018.80 | 0.00 | 0.00 | 1.00 | $60,000 | $0 |
Roll Value History
| 2026 | N/A | N/A | N/A | N/A | N/A |
| 2025 | $0 | $60,000 | $0 | $60,000 | $60,000 |
| 2024 | $0 | $60,000 | $0 | $60,000 | $60,000 |
| 2023 | $0 | $60,000 | $0 | $60,000 | $60,000 |
| 2022 | $0 | $60,000 | $0 | $60,000 | $60,000 |
| 2021 | $0 | $50,000 | $0 | $50,000 | $50,000 |
| 2020 | $0 | $50,000 | $0 | $50,000 | $50,000 |
| 2019 | $0 | $50,000 | $0 | $50,000 | $50,000 |
| 2018 | $0 | $50,000 | $0 | $50,000 | $50,000 |
| 2017 | $0 | $30,000 | $0 | $30,000 | $30,000 |
| 2016 | $0 | $30,000 | $0 | $30,000 | $30,000 |
| 2015 | $0 | $30,000 | $0 | $30,000 | $30,000 |
| 2014 | $0 | $30,000 | $0 | $30,000 | $30,000 |
| 2013 | $0 | $24,750 | $0 | $24,750 | $24,750 |
| 2012 | $0 | $24,750 | $0 | $24,750 | $24,750 |
| 2011 | $0 | $24,750 | $0 | $24,750 | $24,750 |
| 2010 | $0 | $24,750 | $0 | $24,750 | $24,750 |
| 2009 | $0 | $26,730 | $0 | $26,730 | $26,730 |
| 2008 | $0 | $26,730 | $0 | $26,730 | $26,730 |
| 2007 | $0 | $22,935 | $0 | $22,935 | $22,935 |
Deed and Sales History
| 1 | 08/07/2023 | WD | Warranty Deed | HAHN, JENNIFER | SUNDBERG, KEVIN D | | | $525,000.00 | 57607 | 4563411 |
|   | |
| 2 | 03/04/2022 | WD | Warranty Deed | HAHN, JOHN R | HAHN, JENNIFER | | | $0.00 | 52503 | 4542422 |
| 3 | 02/03/2022 | WD | Warranty Deed | HAHN 50% INT, JOHN R | HAHN, JENNIFER | | | $210,000.00 | 51895 | 4539347 |
|   | |
| 4 | 08/28/2013 | QCD | Quit Claim Deed | NORQUIST TRUSTEE, PATRICIA M | HAHN 50% INT, JOHN R | | | $0.00 | 12671 | 4347571 |
| 5 | 08/01/1993 | QCD | Quit Claim Deed | NORQUIST, PATRICIA M | NORQUIST, PATRICIA M | | | $0.00 | 33205 | 93016616 |
| 6 | 06/01/1993 | WD | Warranty Deed | NORQUIST, PATRICIA M | NORQUIST, PATRICIA M | | | $0.00 | 32187 | 93011307 |
| 7 | 01/01/1983 | OTHER | Other - Misc. Documents | JOHNSON, PATRICIA M | NORQUIST, PATRICIA M | | | $0.00 | 59810 | 0 |
| 8 | 01/01/1900 | OTHER | Other - Misc. Documents | Unknown | JOHNSON, PATRICIA M | | | $0.00 | 0 | 0 |
Payout Agreement
| No payout information available.. |