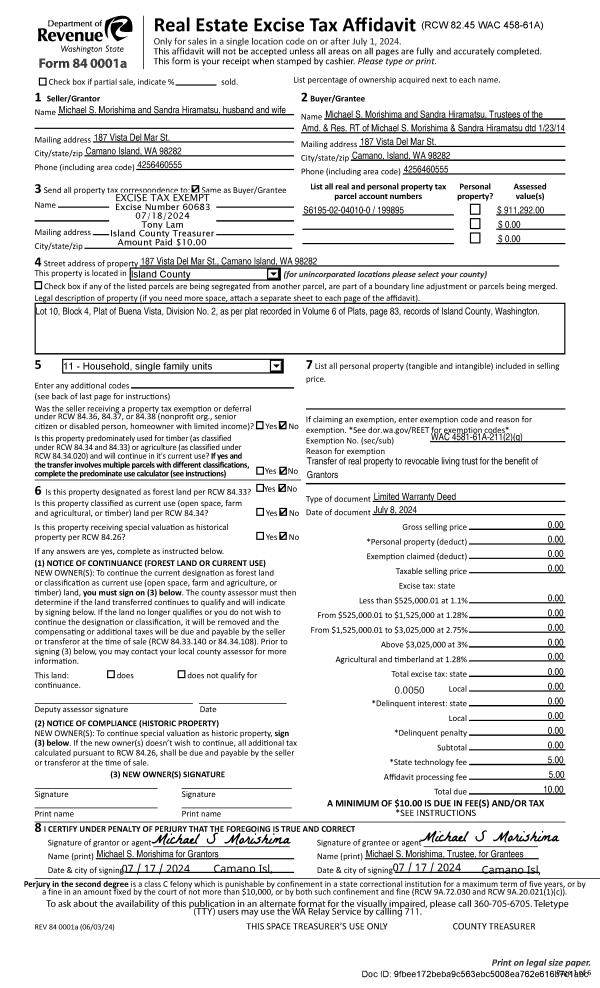
Property
Account |
| Property ID: | 15753 | Abbreviated Legal Description: | 6 - N/2 SW SE & SW SW SE |
| Geographic ID: | R13207-090-3070 | Agent Code: | |
| Type: | Real | | |
| Tax Area: | 119 - APPRAISER-OH Schl Dist, outside OH, vacant & 50 acres or less | Land Use Code | 88 |
| Open Space: | N | DFL | Y |
| Historic Property: | N | Remodel Property: | N |
| Multi-Family Redevelopment: | N | | |
| Township: | 32 | Section: | 07 |
| Range: | R1 |
Location |
| Address: | 2150 HASTIE LAKE RD OAK HARBOR, WA 98277 | Mapsco: | |
| Neighborhood: | Cycle 1 | Map ID: | 105 |
| Neighborhood CD: | 1 |
Owner |
| Name: | PLEASANCE, RANDALL LEE | Owner ID: | 282994 |
| Mailing Address: | 3189 GREEN RD OAK HARBOR, WA 98277 | % Ownership: | 100.0000000000% |
| | | Exemptions: | |
Taxes and Assessment Details
Values
| (+) Improvement Homesite Value: | + | $0 | |
| (+) Improvement Non-Homesite Value: | + | $0 | |
| (+) Land Homesite Value: | + | $0 | |
| (+) Land Non-Homesite Value: | + | $0 | |
| (+) Curr Use (HS): | + | $0 | $0 |
| (+) Curr Use (NHS): | + | $390,000 | $3,712 |
| | | -------------------------- | |
| (=) Market Value: | = | $390,000 | |
| (–) Productivity Loss: | – | $386,288 | |
| | | -------------------------- | |
| (=) Subtotal: | = | $3,712 | |
| (+) Senior Appraised Value: | + | $0 | |
| (+) Non-Senior Appraised Value: | + | $3,712 | |
| | | -------------------------- | |
| (=) Total Appraised Value: | = | $3,712 | |
| (–) Senior Exemption Loss: | – | $0 | |
| (–) Exemption Loss: | – | $0 | |
| | | -------------------------- | |
| (=) Taxable Value: | = | $3,712 | |
Taxing Jurisdiction
| Owner: | PLEASANCE, RANDALL LEE | | |
| % Ownership: | 100.0000000000% | | |
| Total Value: | $390,000 | | |
| Tax Area: | 119 - APPRAISER-OH Schl Dist, outside OH, vacant & 50 acres or less |
| CF | Conservation Futures | 0.0316035091 | $3,712 | $3,712 | $0.12 | | |
| CEM1 | Cemetery #1 | 0.0040320932 | $3,712 | $3,712 | $0.01 | | |
| HOBOND | Hospital BOND | 0.1910887512 | $3,712 | $3,712 | $0.71 | | |
| HOGEN | Hospital GEN | 0.3902502903 | $3,712 | $3,712 | $1.45 | | |
| CE | County Current Expense | 0.3708482477 | $3,712 | $3,712 | $1.38 | | |
| CR | County Roads | 0.4584763726 | $3,712 | $3,712 | $1.70 | | |
| ISLANDEMS | Hospital GEN (EMS) | 0.5000000000 | $3,712 | $3,712 | $1.86 | | |
| LIB | Library Sno-Isle GEN | 0.3153421757 | $3,712 | $3,712 | $1.17 | | |
| NWHIDPRMT | P & R N Whidbey GEN | 0.2004466701 | $3,712 | $3,712 | $0.74 | | |
| SCH201MO | School 201 Enrichment | 1.8559231640 | $3,712 | $3,712 | $6.89 | | |
| ST | State School | 1.3035497053 | $3,712 | $3,712 | $4.84 | | |
| ST2 | State School Part 2 | 0.8169543533 | $3,712 | $3,712 | $3.03 | | |
| | Total Tax Rate: | 6.4385153325 | | | | | |
| | | | | Taxes w/Current Exemptions: | $23.90 | | |
| | | | | Taxes w/o Exemptions: | $23.90 | | |
Improvement / Building
Sketch
| No sketches available for this property. |
Property Image
Land
| 1 | 88 | DESIGNATED FOREST | 21.7700 | 948301.20 | 0.00 | 0.00 | 1.00 | $283,010 | $2,547 |
| 2 | 88 | DESIGNATED FOREST | 1.0000 | 43560.00 | 0.00 | 0.00 | 1.00 | $13,000 | $117 |
| 3 | 88 | DESIGNATED FOREST | 7.2300 | 314938.80 | 0.00 | 0.00 | 1.00 | $93,990 | $1,048 |
Roll Value History
| 2026 | N/A | N/A | N/A | N/A | N/A |
| 2025 | $0 | $390,000 | $3,712 | $3,712 | $3,712 |
| 2024 | $0 | $390,000 | $3,720 | $3,720 | $3,720 |
| 2023 | $0 | $380,000 | $3,562 | $3,562 | $3,562 |
| 2022 | $0 | $360,000 | $3,562 | $3,562 | $3,562 |
| 2021 | $0 | $330,000 | $3,562 | $3,562 | $3,562 |
| 2020 | $0 | $310,000 | $3,562 | $3,562 | $3,562 |
| 2019 | $0 | $310,000 | $3,435 | $3,435 | $3,435 |
| 2018 | $0 | $250,000 | $3,376 | $3,376 | $3,376 |
| 2017 | $0 | $270,000 | $3,376 | $3,376 | $3,376 |
| 2016 | $0 | $270,000 | $2,842 | $11,842 | $11,842 |
| 2015 | $0 | $270,000 | $2,842 | $11,842 | $11,842 |
| 2014 | $0 | $255,000 | $2,842 | $11,342 | $11,342 |
| 2013 | $0 | $255,000 | $2,842 | $11,342 | $11,342 |
| 2012 | $0 | $255,000 | $2,842 | $11,342 | $11,342 |
| 2011 | $0 | $300,000 | $2,842 | $12,842 | $12,842 |
| 2010 | $0 | $300,000 | $2,842 | $12,842 | $12,842 |
| 2009 | $0 | $360,000 | $0 | $360,000 | $360,000 |
| 2008 | $0 | $394,500 | $0 | $394,500 | $394,500 |
| 2007 | $0 | $399,079 | $0 | $399,079 | $399,079 |
Deed and Sales History
| 1 | 11/15/2017 | PRD | Personal Representatives Deed | PLEASANCE, RANDALL L | PLEASANCE, RANDALL LEE | | | $0.00 | 31993 | 4434509 |
| 2 | 12/13/2004 | 5 | DNU - Marriage License/Name Change | PLEASANCE, RANDALL L | PLEASANCE, RANDALL L | | | $0.00 | 50039 | 4122429 |
| 3 | 05/24/2004 | ESTSEPPROP | Establish Separate Property | PLEASANCE, RANDALL L | PLEASANCE, RANDALL L | | | $0.00 | 42496 | 4103121 |
| 4 | 05/12/2004 | WD | Warranty Deed | MCKINSTRY, SAMUEL D | PLEASANCE, RANDALL L | | | $63,000.00 | 42495 | 4103120 |
| 5 | 06/01/1988 | PRD | Personal Representatives Deed | MCKINSTRY, SAMUEL D | MCKINSTRY, SAMUEL D | | | $0.00 | 82802 | 88010538 |
| 6 | 04/01/1986 | QCD | Quit Claim Deed | MCKINSTRY, SAMUEL D | MCKINSTRY, SAMUEL D | | | $0.00 | 61040 | 86004844 |
| 7 | 02/01/1986 | QCD | Quit Claim Deed | MCKINSTRY, SAMUEL D | MCKINSTRY, SAMUEL D | | | $0.00 | 60309 | 86001557 |
| 8 | 02/01/1986 | QCD | Quit Claim Deed | MCKINSTRY, CECIL H | MCKINSTRY, SAMUEL D | | | $0.00 | 61041 | 86004845 |
| 9 | 01/01/1900 | OTHER | Other - Misc. Documents | Unknown | MCKINSTRY, CECIL H | | | $0.00 | 0 | 0 |
Payout Agreement
| No payout information available.. |