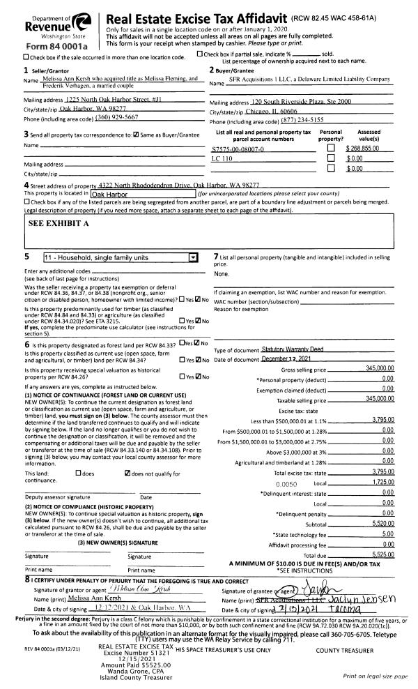
Property
Account |
| Property ID: | 157680 | Abbreviated Legal Description: | 49 - S/2 OF W395'OF N/2 SW SW SW TGW & SUB EZ AF#259591 |
| Geographic ID: | R33130-046-0200 | Agent Code: | |
| Type: | Real | | |
| Tax Area: | 512 - APPRAISER-Stan/Cam Schl Dist, improved, greater than 1 acre | Land Use Code | 11 |
| Open Space: | N | DFL | N |
| Historic Property: | N | Remodel Property: | N |
| Multi-Family Redevelopment: | N | | |
| Township: | 31 | Section: | 30 |
| Range: | R3 |
Location |
| Address: | 1968 FOREST HILL RD CAMANO ISLAND, WA 98282 | Mapsco: | |
| Neighborhood: | Cycle 5 | Map ID: | 936 |
| Neighborhood CD: | 5 |
Owner |
| Name: | BERNHARD, KENNETH | Owner ID: | 290548 |
| Mailing Address: | DEBRA L BERNHARD 1968 FOREST HILL RD CAMANO ISLAND, WA 98282 | % Ownership: | 100.0000000000% |
| | | Exemptions: | |
Taxes and Assessment Details
Values
| (+) Improvement Homesite Value: | + | $0 | |
| (+) Improvement Non-Homesite Value: | + | $171,885 | |
| (+) Land Homesite Value: | + | $0 | |
| (+) Land Non-Homesite Value: | + | $260,000 | |
| (+) Curr Use (HS): | + | $0 | $0 |
| (+) Curr Use (NHS): | + | $0 | $0 |
| | | -------------------------- | |
| (=) Market Value: | = | $431,885 | |
| (–) Productivity Loss: | – | $0 | |
| | | -------------------------- | |
| (=) Subtotal: | = | $431,885 | |
| (+) Senior Appraised Value: | + | $0 | |
| (+) Non-Senior Appraised Value: | + | $431,885 | |
| | | -------------------------- | |
| (=) Total Appraised Value: | = | $431,885 | |
| (–) Senior Exemption Loss: | – | $0 | |
| (–) Exemption Loss: | – | $0 | |
| | | -------------------------- | |
| (=) Taxable Value: | = | $431,885 | |
Taxing Jurisdiction
| Owner: | BERNHARD, KENNETH | | |
| % Ownership: | 100.0000000000% | | |
| Total Value: | $431,885 | | |
| Tax Area: | 512 - APPRAISER-Stan/Cam Schl Dist, improved, greater than 1 acre |
| CF | Conservation Futures | 0.0316035091 | $431,885 | $431,885 | $13.65 | | |
| EMS1 | Fire & Rescue Dist #1 Camano GEN (EMS) | 0.3677864386 | $431,885 | $431,885 | $158.84 | | |
| FIRE1 | Fire & Rescue Dist #1 Camano GEN | 1.2502910536 | $431,885 | $431,885 | $539.98 | | |
| FIRE1BOND | Fire & Rescue Dist #1 Camano BOND | 0.1570001679 | $431,885 | $431,885 | $67.81 | | |
| CE | County Current Expense | 0.3708482477 | $431,885 | $431,885 | $160.16 | | |
| CR | County Roads | 0.4584763726 | $431,885 | $431,885 | $198.01 | | |
| LCIB | Library Sno-Isle BOND (Camano Island) | 0.0396325772 | $431,885 | $431,885 | $17.12 | | |
| LIB | Library Sno-Isle GEN | 0.3153421757 | $431,885 | $431,885 | $136.19 | | |
| SCH205_401 | School 205-401 Enrichment | 1.2698420524 | $431,885 | $431,885 | $548.43 | | |
| SCH205BOND | School 205-401 BOND | 0.9396497583 | $431,885 | $431,885 | $405.82 | | |
| ST | State School | 1.3035497053 | $431,885 | $431,885 | $562.98 | | |
| ST2 | State School Part 2 | 0.8169543533 | $431,885 | $431,885 | $352.83 | | |
| | Total Tax Rate: | 7.3209764117 | | | | | |
| | | | | Taxes w/Current Exemptions: | $3,161.82 | | |
| | | | | Taxes w/o Exemptions: | $3,161.82 | | |
Improvement / Building
| Improvement #1: | MANUFACTURED HOME | State Code: | Y | 1620.0 sqft | Value: | $171,885 |
| Bathrooms: | 1 | Bedrooms: | 2 | | Ceiling: | PLASTER PAINTED | Cooling: | EVAP NO DUCT | | Exterior Wall/Cover: | VINYL | Floor Covering: | CARPET 100% | | Floor Structure: | SLAB ON GRADE | Foundation: | SLAB | | Heating: | FHA ELECTRIC | Interior Finish: | PLASTER | | Plumbing Fixture Cnt: | 1 | Roof Slope: | FLAT | | Roof Structure/Cover: | CJ ALUMINIUM HEAVY |   |   |
|
| | Type | Description | Class CD | Sub Class CD | Year Built | Area |
| | BAS | BASE/MAIN FLOOR | 4 | 0 | 2018 | 1620.0 |
| | OWP | OPEN WOOD PORCH W/STEPS | 4 | 0 | 2018 | 46.8 |
Sketch
Property Image
Land
| 1 | 17 | AC (01.01-02.00) | 1.5000 | 65340.00 | 0.00 | 0.00 | 1.00 | $260,000 | $0 |
Roll Value History
| 2026 | N/A | N/A | N/A | N/A | N/A |
| 2025 | $171,885 | $260,000 | $0 | $431,885 | $431,885 |
| 2024 | $173,754 | $240,000 | $0 | $413,754 | $413,754 |
| 2023 | $152,716 | $220,000 | $0 | $372,716 | $372,716 |
| 2022 | $141,234 | $240,000 | $0 | $381,234 | $381,234 |
| 2021 | $161,179 | $170,000 | $0 | $331,179 | $331,179 |
| 2020 | $158,100 | $150,000 | $0 | $308,100 | $308,100 |
| 2019 | $125,807 | $200,000 | $0 | $325,807 | $325,807 |
| 2018 | $0 | $65,000 | $0 | $65,000 | $65,000 |
| 2017 | $0 | $65,000 | $0 | $65,000 | $65,000 |
| 2016 | $0 | $70,000 | $0 | $70,000 | $70,000 |
| 2015 | $0 | $65,000 | $0 | $65,000 | $65,000 |
| 2014 | $0 | $65,000 | $0 | $65,000 | $65,000 |
| 2013 | $0 | $65,000 | $0 | $65,000 | $65,000 |
| 2012 | $0 | $65,000 | $0 | $65,000 | $65,000 |
| 2011 | $0 | $87,000 | $0 | $87,000 | $87,000 |
| 2010 | $0 | $87,000 | $0 | $87,000 | $87,000 |
| 2009 | $0 | $84,950 | $0 | $84,950 | $84,950 |
| 2008 | $0 | $84,950 | $0 | $84,950 | $84,950 |
| 2007 | $0 | $100,000 | $0 | $100,000 | $100,000 |
Deed and Sales History
| 1 | 06/13/2019 | WD | Warranty Deed | J AND J NATIONAL LAND HOLDINGS, LLC | BERNHARD, KENNETH | | | $362,000.00 | 39153 | 4466170 |
| 2 | 02/20/2018 | WD | Warranty Deed | VOTAVA II, CYRIL F | J AND J NATIONAL LAND HOLDINGS, LLC | | | $79,000.00 | 33061 | 4439708 |
| 3 | 06/22/2007 | WD | Warranty Deed | SCHWEIGAR, ERNEST & | VOTAVA, CYRIL F | | | $80,000.00 | 72304 | 4206660 |
| 4 | 06/01/1982 | TRUSTEED | Trustee's Deed | WEASEA, FRED | SCHWEIGAR, ERNEST & | | | $7,200.00 | 21839 | 399048 |
| 5 | 01/01/1900 | OTHER | Other - Misc. Documents | Unknown | WEASEA, FRED | | | $0.00 | 0 | 0 |
Payout Agreement
| No payout information available.. |