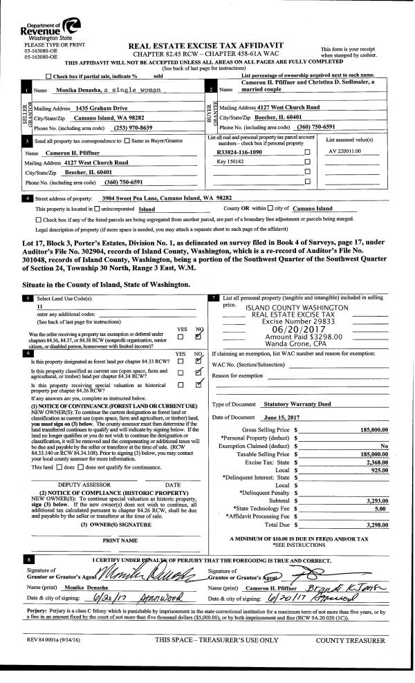
Property
Account |
| Property ID: | 158037 | Abbreviated Legal Description: | 17 - E1/2 SW SE NW EX RD |
| Geographic ID: | R33130-300-2400 | Agent Code: | |
| Type: | Real | | |
| Tax Area: | 512 - APPRAISER-Stan/Cam Schl Dist, improved, greater than 1 acre | Land Use Code | 11 |
| Open Space: | N | DFL | N |
| Historic Property: | N | Remodel Property: | N |
| Multi-Family Redevelopment: | N | | |
| Township: | 31 | Section: | 30 |
| Range: | R3 |
Location |
| Address: | 130 DRY LAKE RD CAMANO ISLAND, WA 98282 | Mapsco: | |
| Neighborhood: | Cycle 5 | Map ID: | 938 |
| Neighborhood CD: | 5 |
Owner |
| Name: | SAVAGE, RONALD W | Owner ID: | 316202 |
| Mailing Address: | TERESA L SAVAGE 130 EAST DRY LAKE ROAD CAMANO ISLAND, WA 98282 | % Ownership: | 100.0000000000% |
| | | Exemptions: | |
Taxes and Assessment Details
Values
| (+) Improvement Homesite Value: | + | $0 | |
| (+) Improvement Non-Homesite Value: | + | $1,011,253 | |
| (+) Land Homesite Value: | + | $0 | |
| (+) Land Non-Homesite Value: | + | $330,000 | |
| (+) Curr Use (HS): | + | $0 | $0 |
| (+) Curr Use (NHS): | + | $0 | $0 |
| | | -------------------------- | |
| (=) Market Value: | = | $1,341,253 | |
| (–) Productivity Loss: | – | $0 | |
| | | -------------------------- | |
| (=) Subtotal: | = | $1,341,253 | |
| (+) Senior Appraised Value: | + | $0 | |
| (+) Non-Senior Appraised Value: | + | $1,341,253 | |
| | | -------------------------- | |
| (=) Total Appraised Value: | = | $1,341,253 | |
| (–) Senior Exemption Loss: | – | $0 | |
| (–) Exemption Loss: | – | $0 | |
| | | -------------------------- | |
| (=) Taxable Value: | = | $1,341,253 | |
Taxing Jurisdiction
| Owner: | SAVAGE, RONALD W | | |
| % Ownership: | 100.0000000000% | | |
| Total Value: | $1,341,253 | | |
| Tax Area: | 512 - APPRAISER-Stan/Cam Schl Dist, improved, greater than 1 acre |
| CF | Conservation Futures | 0.0316035091 | $1,341,253 | $1,341,253 | $42.39 | | |
| EMS1 | Fire & Rescue Dist #1 Camano GEN (EMS) | 0.3677864386 | $1,341,253 | $1,341,253 | $493.29 | | |
| FIRE1 | Fire & Rescue Dist #1 Camano GEN | 1.2502910536 | $1,341,253 | $1,341,253 | $1,676.96 | | |
| FIRE1BOND | Fire & Rescue Dist #1 Camano BOND | 0.1570001679 | $1,341,253 | $1,341,253 | $210.58 | | |
| CE | County Current Expense | 0.3708482477 | $1,341,253 | $1,341,253 | $497.40 | | |
| CR | County Roads | 0.4584763726 | $1,341,253 | $1,341,253 | $614.93 | | |
| LCIB | Library Sno-Isle BOND (Camano Island) | 0.0396325772 | $1,341,253 | $1,341,253 | $53.16 | | |
| LIB | Library Sno-Isle GEN | 0.3153421757 | $1,341,253 | $1,341,253 | $422.95 | | |
| SCH205_401 | School 205-401 Enrichment | 1.2698420524 | $1,341,253 | $1,341,253 | $1,703.18 | | |
| SCH205BOND | School 205-401 BOND | 0.9396497583 | $1,341,253 | $1,341,253 | $1,260.31 | | |
| ST | State School | 1.3035497053 | $1,341,253 | $1,341,253 | $1,748.39 | | |
| ST2 | State School Part 2 | 0.8169543533 | $1,341,253 | $1,341,253 | $1,095.74 | | |
| | Total Tax Rate: | 7.3209764117 | | | | | |
| | | | | Taxes w/Current Exemptions: | $9,819.28 | | |
| | | | | Taxes w/o Exemptions: | $9,819.28 | | |
Improvement / Building
| Improvement #1: | RESIDENTIAL | State Code: | Y | 967.0 sqft | Value: | $260,488 |
| Bathrooms: | 1 | Bedrooms: | 1 | | Ceiling: | DRYWALL PAINTED | Exterior Wall/Cover: | CEMENT FIBER | | Floor Covering: | HARDWOOD 100% | Floor Structure: | WOOD W/SUBFLOOR | | Foundation: | CONCRETE | Heating: | FHA ELECTRIC | | Interior Finish: | DRYWALL PAINT | Plumbing Fixture Cnt: | 7 | | Roof Slope: | 4" IN 12" | Roof Structure/Cover: | CJ ASPHALT |
|
| | Type | Description | Class CD | Sub Class CD | Year Built | Area |
| | BAS | BASE/MAIN FLOOR | 3 | 0 | 2018 | 967.0 |
| | AGR | ATTACHED GARAGE | 3 | 0 | 2018 | 440.0 |
| | OWC | OPEN WOOD PORCH W/STEPS/ROOF/C | 3 | 0 | 2018 | 102.5 |
| Improvement #2: | RESIDENTIAL | State Code: | Y | 2947.7 sqft | Value: | $750,765 |
| Bathrooms: | 2.5 | Bedrooms: | 3 | | Ceiling: | TONGUE & GROOVE | Cooling: | HEAT PUMP/CONV/V | | Exterior Wall/Cover: | CEMENT FIBER | Floor Covering: | HARDWOOD 100% | | Floor Structure: | WOOD W/SUBFLOOR | Foundation: | CONCRETE | | Interior Finish: | DRYWALL PAINT | Plumbing Fixture Cnt: | 14 | | Roof Slope: | 5" IN 12" | Roof Structure/Cover: | BEAM ASPHALT |
|
| | Type | Description | Class CD | Sub Class CD | Year Built | Area |
| | BAS | BASE/MAIN FLOOR | 4 | 0 | 2018 | 2947.7 |
| | AGR | ATTACHED GARAGE | 4 | 0 | 2018 | 1200.0 |
| | OP4 | OPEN PORCH W/CEILING-ROOF | 4 | 0 | 2018 | 64.0 |
| | OP4 | OPEN PORCH W/CEILING-ROOF | 4 | 0 | 2018 | 967.7 |
| | OP1 | OPEN PORCH SLAB | 4 | 0 | 2018 | 518.4 |
Sketch
Property Image
Land
| 1 | 32 | AC (03.01-09.99) | 4.7800 | 0.00 | 0.00 | 0.00 | 1.00 | $330,000 | $0 |
Roll Value History
| 2026 | N/A | N/A | N/A | N/A | N/A |
| 2025 | $1,011,253 | $330,000 | $0 | $1,341,253 | $1,341,253 |
| 2024 | $1,019,474 | $300,000 | $0 | $1,319,474 | $1,319,474 |
| 2023 | $1,027,695 | $290,000 | $0 | $1,317,695 | $1,317,695 |
| 2022 | $938,056 | $260,000 | $0 | $1,198,056 | $1,198,056 |
| 2021 | $755,136 | $190,000 | $0 | $945,136 | $945,136 |
| 2020 | $735,242 | $160,000 | $0 | $895,242 | $895,242 |
| 2019 | $573,451 | $230,000 | $0 | $803,451 | $803,451 |
| 2018 | $159,038 | $175,000 | $0 | $334,038 | $334,038 |
| 2017 | $0 | $80,000 | $0 | $80,000 | $80,000 |
| 2016 | $0 | $80,000 | $0 | $80,000 | $80,000 |
| 2015 | $0 | $95,600 | $0 | $95,600 | $95,600 |
| 2014 | $0 | $95,600 | $0 | $95,600 | $95,600 |
| 2013 | $0 | $119,500 | $0 | $119,500 | $119,500 |
| 2012 | $0 | $119,500 | $0 | $119,500 | $119,500 |
| 2011 | $0 | $119,500 | $0 | $119,500 | $119,500 |
| 2010 | $0 | $119,500 | $0 | $119,500 | $119,500 |
| 2009 | $0 | $143,400 | $0 | $143,400 | $143,400 |
| 2008 | $0 | $181,640 | $0 | $181,640 | $181,640 |
| 2007 | $0 | $100,380 | $0 | $100,380 | $100,380 |
Deed and Sales History
| 1 | 04/17/2025 | WD | Warranty Deed | LONG, MARVIN | SAVAGE, RONALD W | | | $1,375,000.00 | 63191 | 4584707 |
| 2 | 06/22/2017 | WD | Warranty Deed | MONTERRA PARTNERS LLC | LONG, MARVIN | | | $100,000.00 | 29912 | 4424998 |
| 3 | 08/08/2012 | WD | Warranty Deed | LARSEN, RICHARD A | MONTERRA PARTNERS LLC | | | $69,950.00 | 8513 | 4321020 |
| 4 | 05/05/2011 | PRD | Personal Representatives Deed | LARSEN, ALICE J | LARSEN, RICHARD A | | | $0.00 | 4600 | 4296218 |
| 5 | 03/27/2006 | QCD | Quit Claim Deed | LARSEN, PAUL E | LARSEN, ALICE J | | | $0.00 | 61594 | 4167503 |
| 6 | 01/01/1900 | OTHER | Other - Misc. Documents | Unknown | LARSEN, PAUL E | | | $0.00 | 0 | 0 |
Payout Agreement
| No payout information available.. |