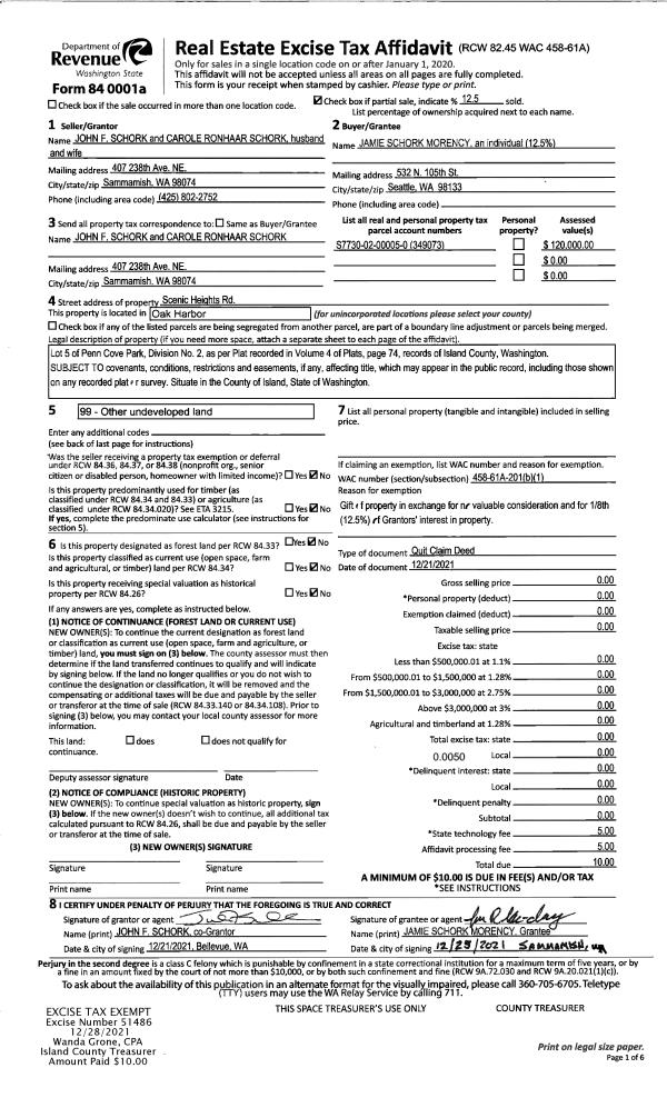
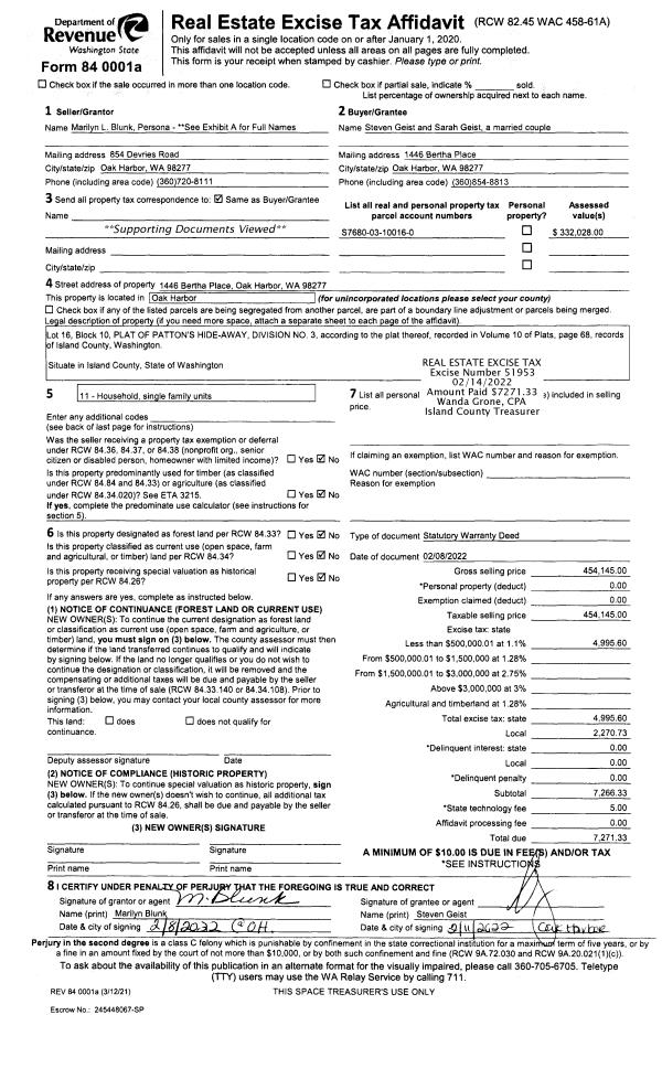
Property
Account |
| Property ID: | 158260 | Abbreviated Legal Description: | 104 - IN GL 1 INCL ADJ TDLS BG SW SEC 31 N493.92' N29* E165' TPB S29*W165' S493. 23' S89*E242.22' N44*E428. 26' N54*W567.25' TPB |
| Geographic ID: | R33131-029-0210 | Agent Code: | |
| Type: | Real | | |
| Tax Area: | 542 - APPRAISER-Stan/Cam Schl Dist, Special Dist, improved, greater than 1 acre | Land Use Code | 11 |
| Open Space: | N | DFL | N |
| Historic Property: | N | Remodel Property: | N |
| Multi-Family Redevelopment: | N | | |
| Township: | 31 | Section: | 31 |
| Range: | R3 |
Location |
| Address: | 2360 HONEYCOMB LN CAMANO ISLAND, WA 98282 | Mapsco: | |
| Neighborhood: | Cycle 5 | Map ID: | 940 |
| Neighborhood CD: | 5 |
Owner |
| Name: | HONEYCOMB LANE LLC | Owner ID: | 272590 |
| Mailing Address: | 7500 ROOSEVELT WAY NE SEATTLE, WA 98115 | % Ownership: | 100.0000000000% |
| | | Exemptions: | |
Taxes and Assessment Details
Values
| (+) Improvement Homesite Value: | + | $0 | |
| (+) Improvement Non-Homesite Value: | + | $325,018 | |
| (+) Land Homesite Value: | + | $0 | |
| (+) Land Non-Homesite Value: | + | $1,579,200 | |
| (+) Curr Use (HS): | + | $0 | $0 |
| (+) Curr Use (NHS): | + | $0 | $0 |
| | | -------------------------- | |
| (=) Market Value: | = | $1,904,218 | |
| (–) Productivity Loss: | – | $0 | |
| | | -------------------------- | |
| (=) Subtotal: | = | $1,904,218 | |
| (+) Senior Appraised Value: | + | $0 | |
| (+) Non-Senior Appraised Value: | + | $1,904,218 | |
| | | -------------------------- | |
| (=) Total Appraised Value: | = | $1,904,218 | |
| (–) Senior Exemption Loss: | – | $0 | |
| (–) Exemption Loss: | – | $0 | |
| | | -------------------------- | |
| (=) Taxable Value: | = | $1,904,218 | |
Taxing Jurisdiction
| Owner: | HONEYCOMB LANE LLC | | |
| % Ownership: | 100.0000000000% | | |
| Total Value: | $1,904,218 | | |
| Tax Area: | 542 - APPRAISER-Stan/Cam Schl Dist, Special Dist, improved, greater than 1 acre |
| CF | Conservation Futures | 0.0316035091 | $1,904,218 | $1,904,218 | $60.18 | | |
| EMS1 | Fire & Rescue Dist #1 Camano GEN (EMS) | 0.3677864386 | $1,904,218 | $1,904,218 | $700.35 | | |
| FIRE1 | Fire & Rescue Dist #1 Camano GEN | 1.2502910536 | $1,904,218 | $1,904,218 | $2,380.83 | | |
| FIRE1BOND | Fire & Rescue Dist #1 Camano BOND | 0.1570001679 | $1,904,218 | $1,904,218 | $298.96 | | |
| CE | County Current Expense | 0.3708482477 | $1,904,218 | $1,904,218 | $706.18 | | |
| CR | County Roads | 0.4584763726 | $1,904,218 | $1,904,218 | $873.04 | | |
| LCIB | Library Sno-Isle BOND (Camano Island) | 0.0396325772 | $1,904,218 | $1,904,218 | $75.47 | | |
| LIB | Library Sno-Isle GEN | 0.3153421757 | $1,904,218 | $1,904,218 | $600.48 | | |
| SCH205_401 | School 205-401 Enrichment | 1.2698420524 | $1,904,218 | $1,904,218 | $2,418.06 | | |
| SCH205BOND | School 205-401 BOND | 0.9396497583 | $1,904,218 | $1,904,218 | $1,789.30 | | |
| ST | State School | 1.3035497053 | $1,904,218 | $1,904,218 | $2,482.24 | | |
| ST2 | State School Part 2 | 0.8169543533 | $1,904,218 | $1,904,218 | $1,555.66 | | |
| | Total Tax Rate: | 7.3209764117 | | | | | |
| | | | | Taxes w/Current Exemptions: | $13,940.75 | | |
| | | | | Taxes w/o Exemptions: | $13,940.75 | | |
Improvement / Building
| Improvement #1: | RESIDENTIAL | State Code: | Y | 1510.1 sqft | Value: | $325,018 |
| Bathrooms: | 2 | Bedrooms: | 3 | | Ceiling: | BEAM PAINTED | Exterior Wall/Cover: | WOOD SIDING | | Floor Covering: | CARPET/VINYL 80-20 | Floor Structure: | WOOD W/SUBFLOOR | | Foundation: | CONCRETE | Heating: | BASEBOARD ELECTRIC | | Interior Finish: | DRYWALL PAINT | Plumbing Fixture Cnt: | 9 | | Roof Slope: | 4" IN 12" | Roof Structure/Cover: | BEAM ASPHALT |
|
| | Type | Description | Class CD | Sub Class CD | Year Built | Area |
| | BAS | BASE/MAIN FLOOR | 3 | 0 | 1980 | 616.0 |
| | UPS | UPPER STORY | 3 | 0 | 1980 | 494.1 |
| | BAW | BALCONY WOOD RAIL | 3 | 0 | 1980 | 80.0 |
| | OWP | OPEN WOOD PORCH W/STEPS | 3 | 0 | 1980 | 28.0 |
| | OWP | OPEN WOOD PORCH W/STEPS | 3 | 0 | 1980 | 308.0 |
| | DGR | DETACHED GARAGE | 3 | 0 | 1980 | 1526.0 |
| | BIG | BUILT IN GARAGE | 3 | 0 | 1980 | 400.0 |
| | LOF | LOFT | 3 | 0 | 1980 | 400.0 |
| | UTY | STORAGE/UTILITY | 3 | 0 | 1980 | 264.0 |
| | oPRS | PIER RESDK | 3 | 0 | 1980 | 690.0 |
| | OWP | OPEN WOOD PORCH W/STEPS | 3 | 0 | 1980 | 240.0 |
| | OWP | OPEN WOOD PORCH W/STEPS | 3 | 0 | 1980 | 96.0 |
| | OWP | OPEN WOOD PORCH W/STEPS | 3 | 0 | 1980 | 36.0 |
| | oRAF | RAMP/FLOAT | 3 | 0 | 1980 | 0.0 |
Sketch
Property Image
Land
| 1 | MB | MEDIUM BANK | 5.0000 | 217800.00 | 420.00 | 0.00 | 1.00 | $1,575,000 | $0 |
| 2 | 55 | TIDES | 0.0000 | 0.00 | 420.00 | 0.00 | 1.00 | $4,200 | $0 |
Roll Value History
| 2026 | N/A | N/A | N/A | N/A | N/A |
| 2025 | $325,018 | $1,579,200 | $0 | $1,904,218 | $1,904,218 |
| 2024 | $329,629 | $1,579,200 | $0 | $1,908,829 | $1,908,829 |
| 2023 | $333,506 | $1,579,200 | $0 | $1,912,706 | $1,912,706 |
| 2022 | $309,452 | $1,504,200 | $0 | $1,813,652 | $1,813,652 |
| 2021 | $230,004 | $804,200 | $0 | $1,034,204 | $1,034,204 |
| 2020 | $224,664 | $754,200 | $0 | $978,864 | $978,864 |
| 2019 | $165,966 | $804,200 | $0 | $970,166 | $970,166 |
| 2018 | $166,485 | $750,000 | $0 | $916,485 | $916,485 |
| 2017 | $167,521 | $750,000 | $0 | $917,521 | $917,521 |
| 2016 | $169,594 | $750,000 | $0 | $919,594 | $919,594 |
| 2015 | $163,257 | $750,000 | $0 | $913,257 | $913,257 |
| 2014 | $164,481 | $750,000 | $0 | $914,481 | $914,481 |
| 2013 | $166,080 | $681,145 | $0 | $847,225 | $847,225 |
| 2012 | $167,303 | $681,145 | $0 | $848,448 | $848,448 |
| 2011 | $168,528 | $850,381 | $0 | $1,018,909 | $1,018,909 |
| 2010 | $173,628 | $850,381 | $0 | $1,024,009 | $1,024,009 |
| 2009 | $171,806 | $917,345 | $0 | $1,089,151 | $1,089,151 |
| 2008 | $175,603 | $588,983 | $0 | $764,586 | $764,586 |
| 2007 | $179,798 | $586,043 | $0 | $765,841 | $765,841 |
Deed and Sales History
| 1 | 07/16/2021 | QCD | Quit Claim Deed | STEPHENSON ET AL, GORDON | HONEYCOMB LANE LLC | | | $0.00 | 49512 | 4526217 |
| 2 | 07/19/2021 | QCD | Quit Claim Deed | HONEYCOMB LANE, LLC | STEPHENSON ET AL, GORDON | | | $0.00 | 49375 | 4525521 |
| 3 | 03/17/2016 | CHGOFIDENT | DNU - Change In Identity | HONEYCOMB LANE, LLC | HONEYCOMB LANE, LLC | | | $0.00 | 23774 | 4396982 |
| 4 | 07/01/2011 | QCD | Quit Claim Deed | HONEYCOMB LANE, LLC | HONEYCOMB LANE, LLC | | | $0.00 | 6055 | 4304332 |
| 5 | 07/01/2011 | QCD | Quit Claim Deed | STEPHENSON ET AL, GORDON | HONEYCOMB LANE, LLC | | | $0.00 | 5042 | 4298611 |
| 6 | 01/06/2009 | WD | Warranty Deed | SULHAM, JOSEPH A | STEPHENSON, GORDON | | | $1,257,000.00 | 90071 | 4242665 |
| 7 | 08/27/2003 | WD | Warranty Deed | SIMMONS, RICHARD N | SULHAM, JOSEPH A | | | $825,000.00 | 33783 | 4072837 |
| 8 | 12/01/1979 | EXECUTORD | Executor Deed | ANDERSEN, DANIEL D | SIMMONS, RICHARD N | | | $137,500.00 | 96005 | 363449 |
| 9 | 01/01/1900 | OTHER | Other - Misc. Documents | Unknown | ANDERSEN, DANIEL D | | | $0.00 | 0 | 0 |
Payout Agreement
| No payout information available.. |