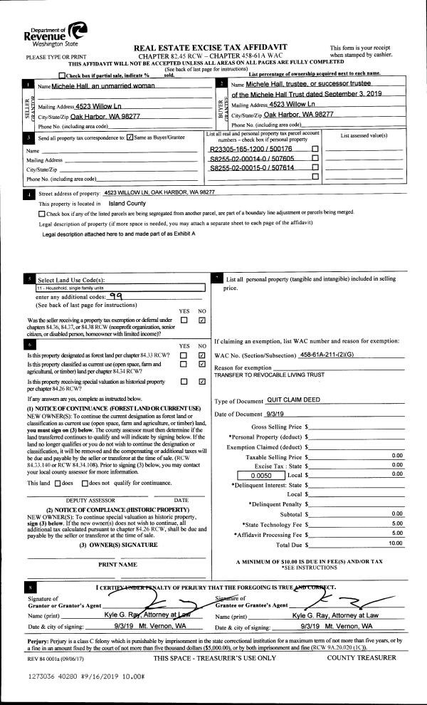
Property
Account |
| Property ID: | 158304 | Abbreviated Legal Description: | 105 - IN GL1: BG NWCR GL1 E760.5' S50' TO CUR/R 73.06 S49*W132.42' S78*W184' S59*W120' TPB S59*W90' S54* E639.66' TO ML N44*E50.29' N17*E328.92' N82*W580.55' TPB TGW ADJ TIDES LY SLY OF N/2 GL 1 TGW & SUB EZ |
| Geographic ID: | R33131-087-0720 | Agent Code: | |
| Type: | Real | | |
| Tax Area: | 542 - APPRAISER-Stan/Cam Schl Dist, Special Dist, improved, greater than 1 acre | Land Use Code | 11 |
| Open Space: | N | DFL | N |
| Historic Property: | N | Remodel Property: | N |
| Multi-Family Redevelopment: | N | | |
| Township: | 31 | Section: | 31 |
| Range: | R3 |
Location |
| Address: | 2385 HONEYCOMB LN CAMANO ISLAND, WA 98282 | Mapsco: | |
| Neighborhood: | Cycle 5 | Map ID: | 940 |
| Neighborhood CD: | 5 |
Owner |
| Name: | JEWETT, TIMOTHY JAMES | Owner ID: | 297795 |
| Mailing Address: | MARY SASSER JEWETT 1037 NE 71ST ST SEATTLE, WA 98115 | % Ownership: | 100.0000000000% |
| | | Exemptions: | |
Taxes and Assessment Details
Values
| (+) Improvement Homesite Value: | + | $0 | |
| (+) Improvement Non-Homesite Value: | + | $1,111,646 | |
| (+) Land Homesite Value: | + | $0 | |
| (+) Land Non-Homesite Value: | + | $1,365,740 | |
| (+) Curr Use (HS): | + | $0 | $0 |
| (+) Curr Use (NHS): | + | $0 | $0 |
| | | -------------------------- | |
| (=) Market Value: | = | $2,477,386 | |
| (–) Productivity Loss: | – | $0 | |
| | | -------------------------- | |
| (=) Subtotal: | = | $2,477,386 | |
| (+) Senior Appraised Value: | + | $0 | |
| (+) Non-Senior Appraised Value: | + | $2,477,386 | |
| | | -------------------------- | |
| (=) Total Appraised Value: | = | $2,477,386 | |
| (–) Senior Exemption Loss: | – | $0 | |
| (–) Exemption Loss: | – | $0 | |
| | | -------------------------- | |
| (=) Taxable Value: | = | $2,477,386 | |
Taxing Jurisdiction
| Owner: | JEWETT, TIMOTHY JAMES | | |
| % Ownership: | 100.0000000000% | | |
| Total Value: | $2,477,386 | | |
| Tax Area: | 542 - APPRAISER-Stan/Cam Schl Dist, Special Dist, improved, greater than 1 acre |
| CF | Conservation Futures | 0.0316035091 | $2,477,386 | $2,477,386 | $78.29 | | |
| EMS1 | Fire & Rescue Dist #1 Camano GEN (EMS) | 0.3677864386 | $2,477,386 | $2,477,386 | $911.15 | | |
| FIRE1 | Fire & Rescue Dist #1 Camano GEN | 1.2502910536 | $2,477,386 | $2,477,386 | $3,097.45 | | |
| FIRE1BOND | Fire & Rescue Dist #1 Camano BOND | 0.1570001679 | $2,477,386 | $2,477,386 | $388.95 | | |
| CE | County Current Expense | 0.3708482477 | $2,477,386 | $2,477,386 | $918.73 | | |
| CR | County Roads | 0.4584763726 | $2,477,386 | $2,477,386 | $1,135.82 | | |
| LCIB | Library Sno-Isle BOND (Camano Island) | 0.0396325772 | $2,477,386 | $2,477,386 | $98.19 | | |
| LIB | Library Sno-Isle GEN | 0.3153421757 | $2,477,386 | $2,477,386 | $781.22 | | |
| SCH205_401 | School 205-401 Enrichment | 1.2698420524 | $2,477,386 | $2,477,386 | $3,145.89 | | |
| SCH205BOND | School 205-401 BOND | 0.9396497583 | $2,477,386 | $2,477,386 | $2,327.88 | | |
| ST | State School | 1.3035497053 | $2,477,386 | $2,477,386 | $3,229.40 | | |
| ST2 | State School Part 2 | 0.8169543533 | $2,477,386 | $2,477,386 | $2,023.91 | | |
| | Total Tax Rate: | 7.3209764117 | | | | | |
| | | | | Taxes w/Current Exemptions: | $18,136.88 | | |
| | | | | Taxes w/o Exemptions: | $18,136.88 | | |
Improvement / Building
| Improvement #1: | RESIDENTIAL | State Code: | Y | 4018.0 sqft | Value: | $1,111,646 |
| Bathrooms: | 4 | Bedrooms: | 3 | | Ceiling: | DRYWALL PAINTED | Cooling: | HEAT PUMP/CONV/V | | Exterior Wall/Cover: | WOOD SIDING | Floor Covering: | COLORED CONCRETE | | Floor Structure: | WOOD W/SUBFLOOR | Foundation: | CONCRETE | | Interior Finish: | DRYWALL PAINT | Plumbing Fixture Cnt: | 15 | | Roof Slope: | 3" IN 12" | Roof Structure/Cover: | BEAM ALUMINUM HEAVY |
|
| | Type | Description | Class CD | Sub Class CD | Year Built | Area |
| | BAS | BASE/MAIN FLOOR | 6 | 0 | 2021 | 1862.0 |
| | UPS | UPPER STORY | 6 | 0 | 2021 | 1364.0 |
| | DGR | DETACHED GARAGE | 6 | 0 | 2021 | 792.0 |
| | OP4 | OPEN PORCH W/CEILING-ROOF | 6 | 0 | 2021 | 1105.0 |
| | OP4 | OPEN PORCH W/CEILING-ROOF | 6 | 0 | 2021 | 366.7 |
| | OP4 | OPEN PORCH W/CEILING-ROOF | 6 | 0 | 2021 | 759.0 |
| | UPS | UPPER STORY | 6 | 0 | 2021 | 792.0 |
Sketch
Property Image
Land
| 1 | MB | MEDIUM BANK | 3.0000 | 130680.00 | 345.00 | 0.00 | 1.00 | $1,365,000 | $0 |
| 2 | 55 | TIDES | 0.0000 | 0.00 | 74.00 | 0.00 | 1.00 | $740 | $0 |
Roll Value History
| 2026 | N/A | N/A | N/A | N/A | N/A |
| 2025 | $1,111,646 | $1,365,740 | $0 | $2,477,386 | $2,477,386 |
| 2024 | $1,120,469 | $1,365,740 | $0 | $2,486,209 | $2,486,209 |
| 2023 | $1,132,232 | $1,365,740 | $0 | $2,497,972 | $2,497,972 |
| 2022 | $399,415 | $1,300,740 | $0 | $1,700,155 | $1,700,155 |
| 2021 | $68,623 | $550,740 | $0 | $619,363 | $619,363 |
| 2020 | $4,000 | $550,740 | $0 | $554,740 | $554,740 |
| 2019 | $4,000 | $550,740 | $0 | $554,740 | $554,740 |
| 2018 | $4,000 | $500,000 | $0 | $504,000 | $504,000 |
| 2017 | $4,000 | $500,000 | $0 | $504,000 | $504,000 |
| 2016 | $4,000 | $500,000 | $0 | $504,000 | $504,000 |
| 2015 | $4,000 | $500,000 | $0 | $504,000 | $504,000 |
| 2014 | $4,000 | $500,000 | $0 | $504,000 | $504,000 |
| 2013 | $4,000 | $380,908 | $0 | $384,908 | $384,908 |
| 2012 | $4,000 | $380,908 | $0 | $384,908 | $384,908 |
| 2011 | $4,000 | $475,950 | $0 | $479,950 | $479,950 |
| 2010 | $4,000 | $475,950 | $0 | $479,950 | $479,950 |
| 2009 | $0 | $479,950 | $0 | $479,950 | $479,950 |
| 2008 | $4,000 | $559,295 | $0 | $563,295 | $563,295 |
| 2007 | $4,000 | $558,777 | $0 | $562,777 | $562,777 |
Deed and Sales History
| 1 | 12/31/2020 | QCD | Quit Claim Deed | JEWETT, TIMOTHY JAMES | JEWETT, TIMOTHY JAMES | | | $0.00 | 46629 | 4508594 |
| 2 | 09/05/2019 | QCD | Quit Claim Deed | JEWETT 50% UNDIV INT, TIMOTHY JAMES | JEWETT, TIMOTHY JAMES | | | $0.00 | 40266 | 4471429 |
| 3 | 06/05/2009 | PRD | Personal Representatives Deed | BENEDETTO, JOHN M | JEWETT 50% UNDIV INT, TIMOTHY | | | $479,950.00 | 91284 | 4253493 |
| 4 | 01/31/2003 | TRUSTEED | Trustee's Deed | LAIRD, NORTON T | BENEDETTO, JOHN M | | | $200,000.00 | 30427 | 4046629 |
| 5 | 11/01/1987 | QCD | Quit Claim Deed | LAMOREAUX, MARY M | LAIRD, NORTON T | | | $0.00 | 73742 | 87016340 |
| 6 | 01/01/1900 | OTHER | Other - Misc. Documents | Unknown | LAMOREAUX, MARY M | | | $0.00 | 0 | 0 |
Payout Agreement
| No payout information available.. |