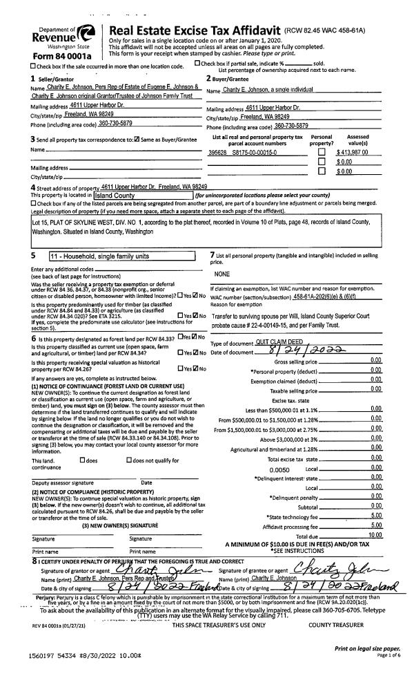
Property
Account |
| Property ID: | 158359 | Abbreviated Legal Description: | 89 - IN GL1: BG NWCR GL1 S175' E217.98' ALG CUR/L 54.04' TPB ALG SD CUR 59.72 S31*E161.03' S59*W109' N15* W175.33' TPB TGW EZ |
| Geographic ID: | R33131-109-0340 | Agent Code: | |
| Type: | Real | | |
| Tax Area: | 540 - APPRAISER-Stan/Cam Schl Dist, Special Dist, improved & less than 1 acre | Land Use Code | 11 |
| Open Space: | N | DFL | N |
| Historic Property: | N | Remodel Property: | N |
| Multi-Family Redevelopment: | N | | |
| Township: | 31 | Section: | 31 |
| Range: | R3 |
Location |
| Address: | 2314 HONEYCOMB LN CAMANO ISLAND, WA 98282 | Mapsco: | |
| Neighborhood: | Cycle 5 | Map ID: | 940 |
| Neighborhood CD: | 5 |
Owner |
| Name: | HERMANSEN, ARTHUR A | Owner ID: | 60541 |
| Mailing Address: | 6849 32ND AVE NE SEATTLE, WA 98115 | % Ownership: | 100.0000000000% |
| | | Exemptions: | |
Taxes and Assessment Details
Values
| (+) Improvement Homesite Value: | + | $0 | |
| (+) Improvement Non-Homesite Value: | + | $159,820 | |
| (+) Land Homesite Value: | + | $0 | |
| (+) Land Non-Homesite Value: | + | $380,000 | |
| (+) Curr Use (HS): | + | $0 | $0 |
| (+) Curr Use (NHS): | + | $0 | $0 |
| | | -------------------------- | |
| (=) Market Value: | = | $539,820 | |
| (–) Productivity Loss: | – | $0 | |
| | | -------------------------- | |
| (=) Subtotal: | = | $539,820 | |
| (+) Senior Appraised Value: | + | $0 | |
| (+) Non-Senior Appraised Value: | + | $539,820 | |
| | | -------------------------- | |
| (=) Total Appraised Value: | = | $539,820 | |
| (–) Senior Exemption Loss: | – | $0 | |
| (–) Exemption Loss: | – | $0 | |
| | | -------------------------- | |
| (=) Taxable Value: | = | $539,820 | |
Taxing Jurisdiction
| Owner: | HERMANSEN, ARTHUR A | | |
| % Ownership: | 100.0000000000% | | |
| Total Value: | $539,820 | | |
| Tax Area: | 540 - APPRAISER-Stan/Cam Schl Dist, Special Dist, improved & less than 1 acre |
| CF | Conservation Futures | 0.0316035091 | $539,820 | $539,820 | $17.06 | | |
| EMS1 | Fire & Rescue Dist #1 Camano GEN (EMS) | 0.3677864386 | $539,820 | $539,820 | $198.54 | | |
| FIRE1 | Fire & Rescue Dist #1 Camano GEN | 1.2502910536 | $539,820 | $539,820 | $674.93 | | |
| FIRE1BOND | Fire & Rescue Dist #1 Camano BOND | 0.1570001679 | $539,820 | $539,820 | $84.75 | | |
| CE | County Current Expense | 0.3708482477 | $539,820 | $539,820 | $200.19 | | |
| CR | County Roads | 0.4584763726 | $539,820 | $539,820 | $247.49 | | |
| LCIB | Library Sno-Isle BOND (Camano Island) | 0.0396325772 | $539,820 | $539,820 | $21.39 | | |
| LIB | Library Sno-Isle GEN | 0.3153421757 | $539,820 | $539,820 | $170.23 | | |
| SCH205_401 | School 205-401 Enrichment | 1.2698420524 | $539,820 | $539,820 | $685.49 | | |
| SCH205BOND | School 205-401 BOND | 0.9396497583 | $539,820 | $539,820 | $507.24 | | |
| ST | State School | 1.3035497053 | $539,820 | $539,820 | $703.68 | | |
| ST2 | State School Part 2 | 0.8169543533 | $539,820 | $539,820 | $441.01 | | |
| | Total Tax Rate: | 7.3209764117 | | | | | |
| | | | | Taxes w/Current Exemptions: | $3,952.00 | | |
| | | | | Taxes w/o Exemptions: | $3,952.00 | | |
Improvement / Building
| Improvement #1: | RESIDENTIAL | State Code: | Y | 992.0 sqft | Value: | $159,820 |
| Bathrooms: | 1 | Bedrooms: | 0 | | Ceiling: | DRYWALL PAINTED | Exterior Wall/Cover: | VINYL | | Floor Covering: | CARPET/VINYL 80-20 | Floor Structure: | WOOD W/SUBFLOOR | | Foundation: | CONCRETE | Heating: | WALL HEAT ELECTRIC | | Interior Finish: | DRYWALL PAINT | Plumbing Fixture Cnt: | 6 | | Roof Slope: | 4" IN 12" | Roof Structure/Cover: | CJ CONCRETE TILE |
|
| | Type | Description | Class CD | Sub Class CD | Year Built | Area |
| | BAS | BASE/MAIN FLOOR | 3 | 0 | 1988 | 992.0 |
| | OWP | OPEN WOOD PORCH W/STEPS | 3 | 0 | 1988 | 779.6 |
Sketch
Property Image
Land
| 1 | 15 | SQ (12001-21780) | 0.3300 | 14374.80 | 0.00 | 0.00 | 1.00 | $380,000 | $0 |
Roll Value History
| 2026 | N/A | N/A | N/A | N/A | N/A |
| 2025 | $159,820 | $380,000 | $0 | $539,820 | $539,820 |
| 2024 | $162,128 | $360,000 | $0 | $522,128 | $522,128 |
| 2023 | $164,436 | $340,000 | $0 | $504,436 | $504,436 |
| 2022 | $150,988 | $340,000 | $0 | $490,988 | $490,988 |
| 2021 | $125,843 | $220,000 | $0 | $345,843 | $345,843 |
| 2020 | $122,915 | $170,000 | $0 | $292,915 | $292,915 |
| 2019 | $87,656 | $220,000 | $0 | $307,656 | $307,656 |
| 2018 | $87,963 | $220,000 | $0 | $307,963 | $307,963 |
| 2017 | $88,573 | $165,000 | $0 | $253,573 | $253,573 |
| 2016 | $89,803 | $130,000 | $0 | $219,803 | $219,803 |
| 2015 | $89,140 | $108,624 | $0 | $197,764 | $197,764 |
| 2014 | $90,375 | $108,624 | $0 | $198,999 | $198,999 |
| 2013 | $91,610 | $108,624 | $0 | $200,234 | $200,234 |
| 2012 | $92,846 | $108,624 | $0 | $201,470 | $201,470 |
| 2011 | $94,080 | $135,780 | $0 | $229,860 | $229,860 |
| 2010 | $100,958 | $135,780 | $0 | $236,738 | $236,738 |
| 2009 | $105,530 | $150,000 | $0 | $255,530 | $255,530 |
| 2008 | $106,799 | $125,000 | $0 | $231,799 | $231,799 |
| 2007 | $108,069 | $125,000 | $0 | $233,069 | $233,069 |
Deed and Sales History
| 1 | 09/01/1987 | WD | Warranty Deed | HERMANSEN, ARTHUR A | HERMANSEN, ARTHUR A | | | $23,500.00 | 73150 | 87013942 |
| 2 | 09/01/1987 | WD | Warranty Deed | WILSON, MARY B | HERMANSEN, ARTHUR A | | | $0.00 | 82411 | 88009112 |
| 3 | 12/01/1978 | OTHER | Other - Misc. Documents | Unknown | WILSON, MARY B | | | $0.00 | 86200 | 345106 |
Payout Agreement
| No payout information available.. |