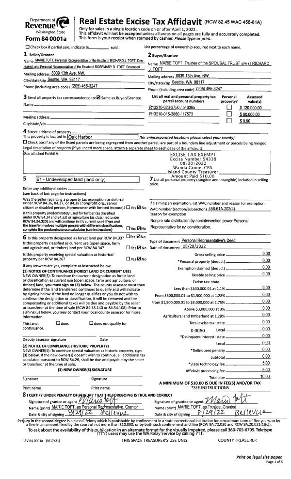
Property
Account |
| Property ID: | 158420 | Abbreviated Legal Description: | 108 - IN GL1:BG NW CR GL1 S175' E217.98' ALG CUR/L 161.84' N45*E26.78' ALG CUR /R122.57' E64.12' TPB E203. 23' ALG CUR/R 73.06' S49* W132.42' S78*W68' N19*W162. 9' TPB TGW SUB EZ (AKA TRC SP 71032-A) |
| Geographic ID: | R33131-120-0680 | Agent Code: | |
| Type: | Real | | |
| Tax Area: | 540 - APPRAISER-Stan/Cam Schl Dist, Special Dist, improved & less than 1 acre | Land Use Code | 11 |
| Open Space: | N | DFL | N |
| Historic Property: | N | Remodel Property: | N |
| Multi-Family Redevelopment: | N | | |
| Township: | 31 | Section: | 31 |
| Range: | R3 |
Location |
| Address: | 2330 HONEYCOMB LN CAMANO ISLAND, WA 98282 | Mapsco: | |
| Neighborhood: | Cycle 5 | Map ID: | 940 |
| Neighborhood CD: | 5 |
Owner |
| Name: | PERKINS, EDWARD L | Owner ID: | 184011 |
| Mailing Address: | JEANNE M PERKINS 2330 HONEYCOMB LANE CAMANO ISLAND, WA 98282 | % Ownership: | 100.0000000000% |
| | | Exemptions: | |
Taxes and Assessment Details
Values
| (+) Improvement Homesite Value: | + | $0 | |
| (+) Improvement Non-Homesite Value: | + | $126,606 | |
| (+) Land Homesite Value: | + | $0 | |
| (+) Land Non-Homesite Value: | + | $380,000 | |
| (+) Curr Use (HS): | + | $0 | $0 |
| (+) Curr Use (NHS): | + | $0 | $0 |
| | | -------------------------- | |
| (=) Market Value: | = | $506,606 | |
| (–) Productivity Loss: | – | $0 | |
| | | -------------------------- | |
| (=) Subtotal: | = | $506,606 | |
| (+) Senior Appraised Value: | + | $0 | |
| (+) Non-Senior Appraised Value: | + | $506,606 | |
| | | -------------------------- | |
| (=) Total Appraised Value: | = | $506,606 | |
| (–) Senior Exemption Loss: | – | $0 | |
| (–) Exemption Loss: | – | $0 | |
| | | -------------------------- | |
| (=) Taxable Value: | = | $506,606 | |
Taxing Jurisdiction
| Owner: | PERKINS, EDWARD L | | |
| % Ownership: | 100.0000000000% | | |
| Total Value: | $506,606 | | |
| Tax Area: | 540 - APPRAISER-Stan/Cam Schl Dist, Special Dist, improved & less than 1 acre |
| CF | Conservation Futures | 0.0316035091 | $506,606 | $506,606 | $16.01 | | |
| EMS1 | Fire & Rescue Dist #1 Camano GEN (EMS) | 0.3677864386 | $506,606 | $506,606 | $186.32 | | |
| FIRE1 | Fire & Rescue Dist #1 Camano GEN | 1.2502910536 | $506,606 | $506,606 | $633.40 | | |
| FIRE1BOND | Fire & Rescue Dist #1 Camano BOND | 0.1570001679 | $506,606 | $506,606 | $79.54 | | |
| CE | County Current Expense | 0.3708482477 | $506,606 | $506,606 | $187.87 | | |
| CR | County Roads | 0.4584763726 | $506,606 | $506,606 | $232.27 | | |
| LCIB | Library Sno-Isle BOND (Camano Island) | 0.0396325772 | $506,606 | $506,606 | $20.08 | | |
| LIB | Library Sno-Isle GEN | 0.3153421757 | $506,606 | $506,606 | $159.75 | | |
| SCH205_401 | School 205-401 Enrichment | 1.2698420524 | $506,606 | $506,606 | $643.31 | | |
| SCH205BOND | School 205-401 BOND | 0.9396497583 | $506,606 | $506,606 | $476.03 | | |
| ST | State School | 1.3035497053 | $506,606 | $506,606 | $660.39 | | |
| ST2 | State School Part 2 | 0.8169543533 | $506,606 | $506,606 | $413.87 | | |
| | Total Tax Rate: | 7.3209764117 | | | | | |
| | | | | Taxes w/Current Exemptions: | $3,708.84 | | |
| | | | | Taxes w/o Exemptions: | $3,708.84 | | |
Improvement / Building
| Improvement #1: | RESIDENTIAL | State Code: | Y | 720.0 sqft | Value: | $126,606 |
| Bathrooms: | 1 | Bedrooms: | 2 | | Ceiling: | BEAM PAINTED | Exterior Wall/Cover: | WOOD SIDING | | Floor Covering: | CARPET/VINYL 80-20 | Floor Structure: | WOOD W/SUBFLOOR | | Foundation: | CONCRETE | Heating: | BASEBOARD ELECTRIC | | Interior Finish: | DRYWALL PAINT | Plumbing Fixture Cnt: | 5 | | Roof Slope: | 4" IN 12" | Roof Structure/Cover: | CJ ASPHALT |
|
| | Type | Description | Class CD | Sub Class CD | Year Built | Area |
| | BAS | BASE/MAIN FLOOR | 3 | 0 | 1970 | 720.0 |
| | UB8 | BASEMENT UNFINISHED 8" | 3 | 0 | 1970 | 720.0 |
| | OWP | OPEN WOOD PORCH W/STEPS | 3 | 0 | 1970 | 752.0 |
Sketch
Property Image
Land
| 1 | 15 | SQ (12001-21780) | 0.5000 | 21780.00 | 0.00 | 0.00 | 1.00 | $380,000 | $0 |
Roll Value History
| 2026 | N/A | N/A | N/A | N/A | N/A |
| 2025 | $126,606 | $380,000 | $0 | $506,606 | $506,606 |
| 2024 | $128,956 | $360,000 | $0 | $488,956 | $488,956 |
| 2023 | $130,963 | $340,000 | $0 | $470,963 | $470,963 |
| 2022 | $120,404 | $340,000 | $0 | $460,404 | $460,404 |
| 2021 | $101,544 | $220,000 | $0 | $321,544 | $321,544 |
| 2020 | $99,124 | $170,000 | $0 | $269,124 | $269,124 |
| 2019 | $69,782 | $220,000 | $0 | $289,782 | $289,782 |
| 2018 | $70,046 | $220,000 | $0 | $290,046 | $290,046 |
| 2017 | $70,573 | $165,000 | $0 | $235,573 | $235,573 |
| 2016 | $71,627 | $130,000 | $0 | $201,627 | $201,627 |
| 2015 | $71,439 | $108,624 | $0 | $180,063 | $180,063 |
| 2014 | $72,538 | $108,624 | $0 | $181,162 | $181,162 |
| 2013 | $73,637 | $108,624 | $0 | $182,261 | $182,261 |
| 2012 | $74,737 | $108,624 | $0 | $183,361 | $183,361 |
| 2011 | $75,837 | $135,780 | $0 | $211,617 | $211,617 |
| 2010 | $79,961 | $135,780 | $0 | $215,741 | $215,741 |
| 2009 | $78,432 | $120,000 | $0 | $198,432 | $198,432 |
| 2008 | $79,549 | $125,000 | $0 | $204,549 | $204,549 |
| 2007 | $80,666 | $125,000 | $0 | $205,666 | $205,666 |
Deed and Sales History
| 1 | 08/03/2004 | WD | Warranty Deed | CLEVEN, DOUGLAS E | PERKINS, EDWARD L | | | $189,000.00 | 43755 | 4109934 |
| 2 | 09/01/2000 | WD | Warranty Deed | CLEVEN, LEONARD N | CLEVEN, DOUGLAS E | | | $150,000.00 | 3430 | 20015898 |
| 3 | 10/01/1989 | QCD | Quit Claim Deed | LENDALE, INVESTMENT C | CLEVEN, LEONARD N | | | $0.00 | 94486 | 89014663 |
| 4 | 01/01/1900 | OTHER | Other - Misc. Documents | Unknown | LENDALE, INVESTMENT C | | | $0.00 | 0 | 0 |
Payout Agreement
| No payout information available.. |