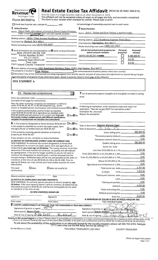
Property
Account |
| Property ID: | 158457 | Abbreviated Legal Description: | 40 - IN GL 5 INCL ADJ TIDELANDS |
| Geographic ID: | R33131-126-5370 | Agent Code: | |
| Type: | Real | | |
| Tax Area: | 540 - APPRAISER-Stan/Cam Schl Dist, Special Dist, improved & less than 1 acre | Land Use Code | 11 |
| Open Space: | N | DFL | N |
| Historic Property: | N | Remodel Property: | N |
| Multi-Family Redevelopment: | N | | |
| Township: | 31 | Section: | 31 |
| Range: | R3 |
Location |
| Address: | 2305 MOODY LN CAMANO ISLAND, WA 98282 | Mapsco: | |
| Neighborhood: | Cycle 5 | Map ID: | 941 |
| Neighborhood CD: | 5 |
Owner |
| Name: | WOLLASTON TTEE, DEAN E | Owner ID: | 313784 |
| Mailing Address: | PHYLLIS S WOLLASTON TTEE 4081 BRAELLAN LN HAZEL GREEN, WI 53811 | % Ownership: | 100.0000000000% |
| | | Exemptions: | |
Taxes and Assessment Details
Values
| (+) Improvement Homesite Value: | + | $0 | |
| (+) Improvement Non-Homesite Value: | + | $52,449 | |
| (+) Land Homesite Value: | + | $0 | |
| (+) Land Non-Homesite Value: | + | $550,550 | |
| (+) Curr Use (HS): | + | $0 | $0 |
| (+) Curr Use (NHS): | + | $0 | $0 |
| | | -------------------------- | |
| (=) Market Value: | = | $602,999 | |
| (–) Productivity Loss: | – | $0 | |
| | | -------------------------- | |
| (=) Subtotal: | = | $602,999 | |
| (+) Senior Appraised Value: | + | $0 | |
| (+) Non-Senior Appraised Value: | + | $602,999 | |
| | | -------------------------- | |
| (=) Total Appraised Value: | = | $602,999 | |
| (–) Senior Exemption Loss: | – | $0 | |
| (–) Exemption Loss: | – | $0 | |
| | | -------------------------- | |
| (=) Taxable Value: | = | $602,999 | |
Taxing Jurisdiction
| Owner: | WOLLASTON TTEE, DEAN E | | |
| % Ownership: | 100.0000000000% | | |
| Total Value: | $602,999 | | |
| Tax Area: | 540 - APPRAISER-Stan/Cam Schl Dist, Special Dist, improved & less than 1 acre |
| CF | Conservation Futures | 0.0316035091 | $602,999 | $602,999 | $19.06 | | |
| EMS1 | Fire & Rescue Dist #1 Camano GEN (EMS) | 0.3677864386 | $602,999 | $602,999 | $221.77 | | |
| FIRE1 | Fire & Rescue Dist #1 Camano GEN | 1.2502910536 | $602,999 | $602,999 | $753.92 | | |
| FIRE1BOND | Fire & Rescue Dist #1 Camano BOND | 0.1570001679 | $602,999 | $602,999 | $94.67 | | |
| CE | County Current Expense | 0.3708482477 | $602,999 | $602,999 | $223.62 | | |
| CR | County Roads | 0.4584763726 | $602,999 | $602,999 | $276.46 | | |
| LCIB | Library Sno-Isle BOND (Camano Island) | 0.0396325772 | $602,999 | $602,999 | $23.90 | | |
| LIB | Library Sno-Isle GEN | 0.3153421757 | $602,999 | $602,999 | $190.15 | | |
| SCH205_401 | School 205-401 Enrichment | 1.2698420524 | $602,999 | $602,999 | $765.71 | | |
| SCH205BOND | School 205-401 BOND | 0.9396497583 | $602,999 | $602,999 | $566.61 | | |
| ST | State School | 1.3035497053 | $602,999 | $602,999 | $786.04 | | |
| ST2 | State School Part 2 | 0.8169543533 | $602,999 | $602,999 | $492.62 | | |
| | Total Tax Rate: | 7.3209764117 | | | | | |
| | | | | Taxes w/Current Exemptions: | $4,414.53 | | |
| | | | | Taxes w/o Exemptions: | $4,414.53 | | |
Improvement / Building
| Improvement #1: | RESIDENTIAL | State Code: | Y | 460.0 sqft | Value: | $52,449 |
| Bathrooms: | 1 | Bedrooms: | 1 | | Ceiling: | BEAM PAINTED | Exterior Wall/Cover: | WOOD SIDING | | Floor Covering: | SOFTWOOD 100% | Floor Structure: | WOOD W/SUBFLOOR | | Foundation: | PEIRS | Heating: | BASEBOARD ELECTRIC | | Interior Finish: | DRYWALL PAINT | Plumbing Fixture Cnt: | 5 | | Roof Slope: | 3" IN 12" | Roof Structure/Cover: | CJ ASPHALT |
|
| | Type | Description | Class CD | Sub Class CD | Year Built | Area |
| | BAS | BASE/MAIN FLOOR | 2 | 0 | 1960 | 460.0 |
| | OWP | OPEN WOOD PORCH W/STEPS | 2 | 0 | 1960 | 160.0 |
| | OWR | OPEN WOOD PORCH W/STEPS/ROOF | 2 | 0 | 1960 | 120.0 |
Sketch
Property Image
Land
| 1 | HB | HIGH BLUFF | 0.3200 | 13939.20 | 55.00 | 0.00 | 1.00 | $550,000 | $0 |
| 2 | 55 | TIDES | 0.0000 | 0.00 | 55.00 | 0.00 | 1.00 | $550 | $0 |
Roll Value History
| 2026 | N/A | N/A | N/A | N/A | N/A |
| 2025 | $52,449 | $550,550 | $0 | $602,999 | $602,999 |
| 2024 | $53,539 | $550,550 | $0 | $604,089 | $604,089 |
| 2023 | $57,710 | $550,550 | $0 | $608,260 | $608,260 |
| 2022 | $53,169 | $500,550 | $0 | $553,719 | $553,719 |
| 2021 | $25,517 | $350,550 | $0 | $376,067 | $376,067 |
| 2020 | $25,108 | $285,550 | $0 | $310,658 | $310,658 |
| 2019 | $18,448 | $300,550 | $0 | $318,998 | $318,998 |
| 2018 | $18,552 | $275,660 | $0 | $294,212 | $294,212 |
| 2017 | $18,761 | $250,660 | $0 | $269,421 | $269,421 |
| 2016 | $19,178 | $250,660 | $0 | $269,838 | $269,838 |
| 2015 | $22,496 | $250,660 | $0 | $273,156 | $273,156 |
| 2014 | $22,929 | $250,660 | $0 | $273,589 | $273,589 |
| 2013 | $23,363 | $161,267 | $0 | $184,630 | $184,630 |
| 2012 | $23,796 | $161,267 | $0 | $185,063 | $185,063 |
| 2011 | $24,229 | $201,419 | $0 | $225,648 | $225,648 |
| 2010 | $29,615 | $201,419 | $0 | $231,034 | $231,034 |
| 2009 | $29,190 | $217,233 | $0 | $246,423 | $246,423 |
| 2008 | $29,696 | $153,980 | $0 | $183,676 | $183,676 |
| 2007 | $30,232 | $153,518 | $0 | $183,750 | $183,750 |
Deed and Sales History
| 1 | 08/27/2024 | QCD | Quit Claim Deed | WOLLASTON, DEAN E | WOLLASTON TTEE, DEAN E | | | $10.00 | 61182 | 4576747 |
Payout Agreement
| No payout information available.. |