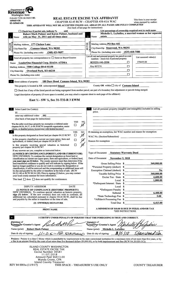
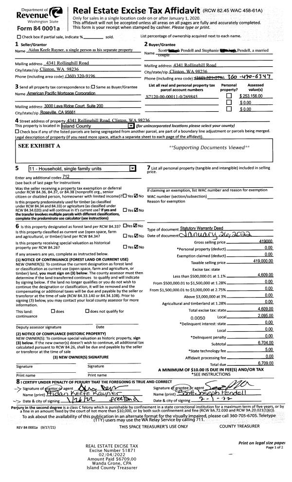
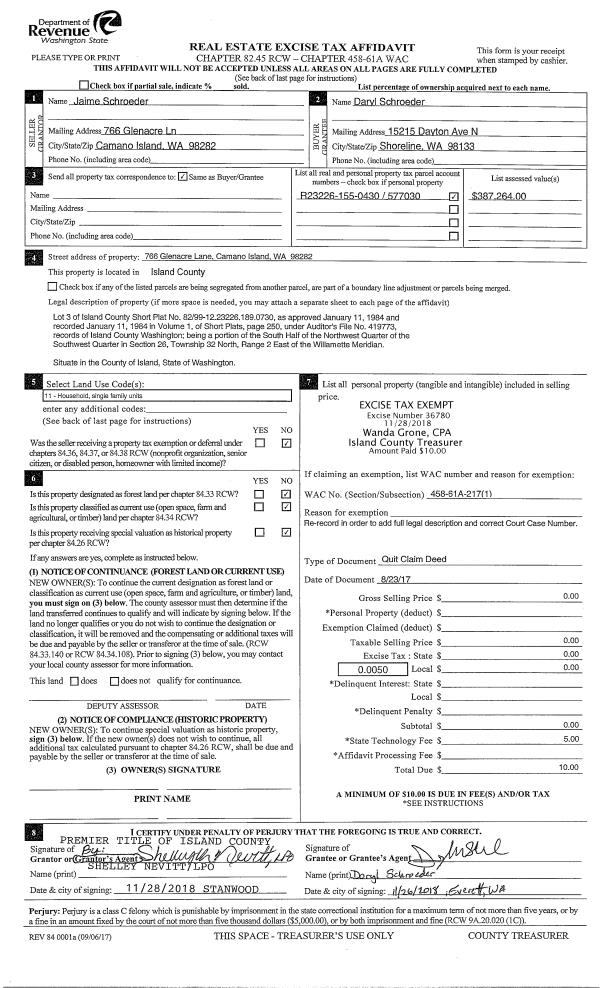
Property
Account |
| Property ID: | 159143 | Abbreviated Legal Description: | 10.0300 Acres ins Section 31s Township 31s Range R3s LOT A BLC AF#4454937 TL 31 - IN SE NW & NE NW;s |
| Geographic ID: | R33131-363-1880 | Agent Code: | |
| Type: | Real | | |
| Tax Area: | 542 - APPRAISER-Stan/Cam Schl Dist, Special Dist, improved, greater than 1 acre | Land Use Code | 11 |
| Open Space: | N | DFL | N |
| Historic Property: | N | Remodel Property: | N |
| Multi-Family Redevelopment: | N | | |
| Township: | 31 | Section: | 31 |
| Range: | R3 |
Location |
| Address: | 2102 HARNDEN LOOP CAMANO ISLAND, WA 98282 | Mapsco: | |
| Neighborhood: | Cycle 5 | Map ID: | 942 |
| Neighborhood CD: | 5 |
Owner |
| Name: | GUENTHER, JANET L | Owner ID: | 287976 |
| Mailing Address: | VIRGINIA GIBBS 20307 85TH PLACE W EDMONDS, WA 98026 | % Ownership: | 100.0000000000% |
| | | Exemptions: | |
Taxes and Assessment Details
Values
| (+) Improvement Homesite Value: | + | $0 | |
| (+) Improvement Non-Homesite Value: | + | $440,224 | |
| (+) Land Homesite Value: | + | $0 | |
| (+) Land Non-Homesite Value: | + | $430,000 | |
| (+) Curr Use (HS): | + | $0 | $0 |
| (+) Curr Use (NHS): | + | $0 | $0 |
| | | -------------------------- | |
| (=) Market Value: | = | $870,224 | |
| (–) Productivity Loss: | – | $0 | |
| | | -------------------------- | |
| (=) Subtotal: | = | $870,224 | |
| (+) Senior Appraised Value: | + | $0 | |
| (+) Non-Senior Appraised Value: | + | $870,224 | |
| | | -------------------------- | |
| (=) Total Appraised Value: | = | $870,224 | |
| (–) Senior Exemption Loss: | – | $0 | |
| (–) Exemption Loss: | – | $0 | |
| | | -------------------------- | |
| (=) Taxable Value: | = | $870,224 | |
Taxing Jurisdiction
| Owner: | GUENTHER, JANET L | | |
| % Ownership: | 100.0000000000% | | |
| Total Value: | $870,224 | | |
| Tax Area: | 542 - APPRAISER-Stan/Cam Schl Dist, Special Dist, improved, greater than 1 acre |
| CF | Conservation Futures | 0.0316035091 | $870,224 | $870,224 | $27.50 | | |
| EMS1 | Fire & Rescue Dist #1 Camano GEN (EMS) | 0.3677864386 | $870,224 | $870,224 | $320.06 | | |
| FIRE1 | Fire & Rescue Dist #1 Camano GEN | 1.2502910536 | $870,224 | $870,224 | $1,088.03 | | |
| FIRE1BOND | Fire & Rescue Dist #1 Camano BOND | 0.1570001679 | $870,224 | $870,224 | $136.63 | | |
| CE | County Current Expense | 0.3708482477 | $870,224 | $870,224 | $322.72 | | |
| CR | County Roads | 0.4584763726 | $870,224 | $870,224 | $398.98 | | |
| LCIB | Library Sno-Isle BOND (Camano Island) | 0.0396325772 | $870,224 | $870,224 | $34.49 | | |
| LIB | Library Sno-Isle GEN | 0.3153421757 | $870,224 | $870,224 | $274.42 | | |
| SCH205_401 | School 205-401 Enrichment | 1.2698420524 | $870,224 | $870,224 | $1,105.05 | | |
| SCH205BOND | School 205-401 BOND | 0.9396497583 | $870,224 | $870,224 | $817.71 | | |
| ST | State School | 1.3035497053 | $870,224 | $870,224 | $1,134.38 | | |
| ST2 | State School Part 2 | 0.8169543533 | $870,224 | $870,224 | $710.93 | | |
| | Total Tax Rate: | 7.3209764117 | | | | | |
| | | | | Taxes w/Current Exemptions: | $6,370.90 | | |
| | | | | Taxes w/o Exemptions: | $6,370.90 | | |
Improvement / Building
| Improvement #1: | RESIDENTIAL | State Code: | Y | 2648.1 sqft | Value: | $440,224 |
| Bathrooms: | 2 | Bedrooms: | 2 | | Ceiling: | TONGUE & GROOVE | Exterior Wall/Cover: | WOOD SIDING | | Floor Covering: | CERAMIC TILE/CPT 40-60 | Floor Structure: | WOOD W/SUBFLOOR | | Foundation: | CONCRETE | Heating: | BASEBOARD ELECTRIC | | Interior Finish: | DRYWALL PAINT | Plumbing Fixture Cnt: | 9 | | Roof Slope: | 5" IN 12" | Roof Structure/Cover: | BEAM ALUMINUM HEAVY |
|
| | Type | Description | Class CD | Sub Class CD | Year Built | Area |
| | BAS | BASE/MAIN FLOOR | 3 | 0 | 1953 | 2023.1 |
| | UB6 | BASEMENT UNFINISHED 6" | 3 | 0 | 1953 | 384.0 |
| | OP3 | OPEN PORCH W/ROOF | 3 | 0 | 1953 | 180.0 |
| | UPS | UPPER STORY | 3 | 0 | 1953 | 625.0 |
| | OWP | OPEN WOOD PORCH W/STEPS | 3 | 0 | 1953 | 144.0 |
| | OWP | OPEN WOOD PORCH W/STEPS | 3 | 0 | 1953 | 650.3 |
| | ENP | ENCLOSED PORCH | 3 | 0 | 1953 | 576.0 |
| | DGR | DETACHED GARAGE | 3 | 0 | 1953 | 288.0 |
Sketch
Property Image
Land
| 1 | 35 | AC (10.00-30.99) | 10.0300 | 436906.80 | 0.00 | 0.00 | 1.00 | $430,000 | $0 |
Roll Value History
| 2026 | N/A | N/A | N/A | N/A | N/A |
| 2025 | $440,224 | $430,000 | $0 | $870,224 | $870,224 |
| 2024 | $455,076 | $400,000 | $0 | $855,076 | $855,076 |
| 2023 | $460,894 | $390,000 | $0 | $850,894 | $850,894 |
| 2022 | $422,597 | $330,000 | $0 | $752,597 | $752,597 |
| 2021 | $372,060 | $250,000 | $0 | $622,060 | $622,060 |
| 2020 | $364,015 | $230,000 | $0 | $594,015 | $594,015 |
| 2019 | $288,931 | $300,000 | $0 | $588,931 | $588,931 |
| 2018 | $256,550 | $175,000 | $0 | $431,550 | $431,550 |
| 2017 | $258,153 | $175,000 | $0 | $433,153 | $433,153 |
| 2016 | $261,380 | $130,000 | $0 | $391,380 | $391,380 |
| 2015 | $218,568 | $120,000 | $0 | $338,568 | $338,568 |
| 2014 | $221,608 | $120,000 | $0 | $341,608 | $341,608 |
| 2013 | $224,648 | $120,000 | $0 | $344,648 | $344,648 |
| 2012 | $227,687 | $120,000 | $0 | $347,687 | $347,687 |
| 2011 | $230,726 | $150,000 | $0 | $380,726 | $380,726 |
| 2010 | $241,500 | $150,000 | $0 | $391,500 | $391,500 |
| 2009 | $253,098 | $300,000 | $0 | $553,098 | $553,098 |
| 2008 | $256,930 | $174,000 | $0 | $430,930 | $430,930 |
| 2007 | $260,701 | $174,000 | $0 | $434,701 | $434,701 |
Deed and Sales History
| 1 | 11/05/2018 | WD | Warranty Deed | PRITTIE TTEE, IAN G | GUENTHER, JANET L | | | $639,000.00 | 36648 | 4455001 |
| 2 | 11/12/2018 | QCD | Quit Claim Deed | PRITTIE TRUSTEE, IAN G | CONNER, DONNA | | | $0.00 | 36624 | 4454892 |
| 3 | 11/05/2018 | QCD | Quit Claim Deed | PRITTIE TRUSTEE, IAN G | PRITTIE TRUSTEE, IAN G | | | $0.00 | 36563 | 4454597 |
| 4 | 11/15/2018 | OTHER | Other - Misc. Documents | PRITTIE TRUSTEE, IAN G | PRITTIE TTEE, IAN G | | | | 87921 | |
| 5 | 09/14/2007 | QCD | Quit Claim Deed | PRITTIE, IAN G | PRITTIE TRUSTEE, IAN G | | | $0.00 | 73786 | 4216455 |
| 6 | 08/29/2000 | WD | Warranty Deed | FALKENBURG, NEIL E | PRITTIE, IAN G | | | $355,000.00 | 3344 | 20015564 |
| 7 | 08/23/2000 | ESTSEPPROP | Establish Separate Property | PRITTIE, IAN G | PRITTIE, IAN G | | | $0.00 | 11791 | 200232097 |
| 8 | 02/01/1992 | OTHER | Other - Misc. Documents | FALKENBURG, NEIL E | FALKENBURG, NEIL E | | | $0.00 | 64698 | 92002776 |
| 9 | 04/01/1986 | QCD | Quit Claim Deed | FALKENBURG, NEIL E | FALKENBURG, NEIL E | | | $0.00 | 61232 | 86005795 |
| 10 | 07/01/1962 | TRUSTEED | Trustee's Deed | LABRUM, D L | FALKENBURG, NEIL E | | | $0.00 | 12540 | 0 |
| 11 | 01/01/1900 | OTHER | Other - Misc. Documents | Unknown | LABRUM, D L | | | $0.00 | 0 | 0 |
Payout Agreement
| No payout information available.. |