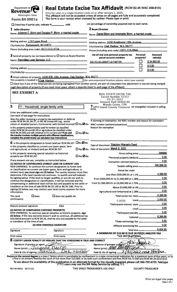
Property
Account |
| Property ID: | 159312 | Abbreviated Legal Description: | 2 - W/2 NW NE TGW: BG SWCR NW NE S89*E665.62' TO SECR OF W/2 OF NW NE N16.27' TO INTER/W EXIST E/W FENCE LN TPB N598.65' TO SLN OF N708.33' OF E/2 NW NE S89*E23.01' TO INTER/W EXIST N/S FENCE LN SLY ALG SD FENCE LN 598' M/L TO EXIST FENCE CR WLY ALG SD F |
| Geographic ID: | R33131-461-3220 | Agent Code: | |
| Type: | Real | | |
| Tax Area: | 542 - APPRAISER-Stan/Cam Schl Dist, Special Dist, improved, greater than 1 acre | Land Use Code | 11 |
| Open Space: | N | DFL | N |
| Historic Property: | N | Remodel Property: | N |
| Multi-Family Redevelopment: | N | | |
| Township: | 31 | Section: | 31 |
| Range: | R3 |
Location |
| Address: | 2176 HARNDEN LOOP CAMANO ISLAND, WA 98282 | Mapsco: | |
| Neighborhood: | Cycle 5 | Map ID: | 943 |
| Neighborhood CD: | 5 |
Owner |
| Name: | WATKINSHOLDINGS LLC | Owner ID: | 60632 |
| Mailing Address: | 2176 HARNDEN LOOP CAMANO ISLAND, WA 98282-7652 | % Ownership: | 100.0000000000% |
| | | Exemptions: | |
Taxes and Assessment Details
Values
| (+) Improvement Homesite Value: | + | $0 | |
| (+) Improvement Non-Homesite Value: | + | $532,260 | |
| (+) Land Homesite Value: | + | $0 | |
| (+) Land Non-Homesite Value: | + | $460,000 | |
| (+) Curr Use (HS): | + | $0 | $0 |
| (+) Curr Use (NHS): | + | $0 | $0 |
| | | -------------------------- | |
| (=) Market Value: | = | $992,260 | |
| (–) Productivity Loss: | – | $0 | |
| | | -------------------------- | |
| (=) Subtotal: | = | $992,260 | |
| (+) Senior Appraised Value: | + | $0 | |
| (+) Non-Senior Appraised Value: | + | $992,260 | |
| | | -------------------------- | |
| (=) Total Appraised Value: | = | $992,260 | |
| (–) Senior Exemption Loss: | – | $0 | |
| (–) Exemption Loss: | – | $0 | |
| | | -------------------------- | |
| (=) Taxable Value: | = | $992,260 | |
Taxing Jurisdiction
| Owner: | WATKINSHOLDINGS LLC | | |
| % Ownership: | 100.0000000000% | | |
| Total Value: | $992,260 | | |
| Tax Area: | 542 - APPRAISER-Stan/Cam Schl Dist, Special Dist, improved, greater than 1 acre |
| CF | Conservation Futures | 0.0316035091 | $992,260 | $992,260 | $31.36 | | |
| EMS1 | Fire & Rescue Dist #1 Camano GEN (EMS) | 0.3677864386 | $992,260 | $992,260 | $364.94 | | |
| FIRE1 | Fire & Rescue Dist #1 Camano GEN | 1.2502910536 | $992,260 | $992,260 | $1,240.61 | | |
| FIRE1BOND | Fire & Rescue Dist #1 Camano BOND | 0.1570001679 | $992,260 | $992,260 | $155.78 | | |
| CE | County Current Expense | 0.3708482477 | $992,260 | $992,260 | $367.98 | | |
| CR | County Roads | 0.4584763726 | $992,260 | $992,260 | $454.93 | | |
| LCIB | Library Sno-Isle BOND (Camano Island) | 0.0396325772 | $992,260 | $992,260 | $39.33 | | |
| LIB | Library Sno-Isle GEN | 0.3153421757 | $992,260 | $992,260 | $312.90 | | |
| SCH205_401 | School 205-401 Enrichment | 1.2698420524 | $992,260 | $992,260 | $1,260.01 | | |
| SCH205BOND | School 205-401 BOND | 0.9396497583 | $992,260 | $992,260 | $932.38 | | |
| ST | State School | 1.3035497053 | $992,260 | $992,260 | $1,293.46 | | |
| ST2 | State School Part 2 | 0.8169543533 | $992,260 | $992,260 | $810.63 | | |
| | Total Tax Rate: | 7.3209764117 | | | | | |
| | | | | Taxes w/Current Exemptions: | $7,264.31 | | |
| | | | | Taxes w/o Exemptions: | $7,264.31 | | |
Improvement / Building
| Improvement #1: | RESIDENTIAL | State Code: | Y | 2571.0 sqft | Value: | $532,260 |
| Bathrooms: | 2 | Bedrooms: | 3 | | Ceiling: | DRYWALL PAINTED | Exterior Wall/Cover: | WOOD SIDING | | Floor Covering: | CARPET/VINYL 60-40 | Floor Structure: | WOOD W/SUBFLOOR | | Foundation: | CONCRETE | Heating: | BASEBOARD ELECTRIC | | Interior Finish: | DRYWALL PAINT | Plumbing Fixture Cnt: | 9 | | Roof Slope: | 5" IN 12" | Roof Structure/Cover: | CJ WOOD SHAKES |
|
| | Type | Description | Class CD | Sub Class CD | Year Built | Area |
| | BAS | BASE/MAIN FLOOR | 3 | 0 | 1924 | 1803.0 |
| | OP4 | OPEN PORCH W/CEILING-ROOF | 3 | 0 | 1924 | 60.0 |
| | OP4 | OPEN PORCH W/CEILING-ROOF | 3 | 0 | 1924 | 173.0 |
| | OWP | OPEN WOOD PORCH W/STEPS | 3 | 0 | 1924 | 300.0 |
| | OWP | OPEN WOOD PORCH W/STEPS | 3 | 0 | 1924 | 126.0 |
| | OWR | OPEN WOOD PORCH W/STEPS/ROOF | 3 | 0 | 1924 | 168.0 |
| | UPH | HALF STORY | 3 | 0 | 1924 | 768.0 |
| | OCP | OPEN CARPORT | 3 | 0 | 1924 | 960.0 |
| | OCP | OPEN CARPORT | 3 | 0 | 1924 | 720.0 |
| | OCP | OPEN CARPORT | 3 | 0 | 1924 | 2160.0 |
| | OCP | OPEN CARPORT | 3 | 0 | 1924 | 630.0 |
| | DGR | DETACHED GARAGE | 3 | 0 | 1924 | 3900.0 |
| | UTY | STORAGE/UTILITY | 3 | 0 | 1924 | 0.0 |
| | oPL3 | PLUMB 3 FX | 3 | 0 | 1924 | 0.0 |
Sketch
Property Image
Land
| 1 | 35 | AC (10.00-30.99) | 20.0800 | 874684.80 | 0.00 | 0.00 | 1.00 | $460,000 | $0 |
Roll Value History
| 2026 | N/A | N/A | N/A | N/A | N/A |
| 2025 | $532,260 | $460,000 | $0 | $992,260 | $992,260 |
| 2024 | $550,763 | $430,000 | $0 | $980,763 | $980,763 |
| 2023 | $557,664 | $420,000 | $0 | $977,664 | $977,664 |
| 2022 | $512,192 | $400,000 | $0 | $912,192 | $912,192 |
| 2021 | $414,196 | $260,000 | $0 | $674,196 | $674,196 |
| 2020 | $405,701 | $240,000 | $0 | $645,701 | $645,701 |
| 2019 | $322,075 | $300,000 | $0 | $622,075 | $622,075 |
| 2018 | $323,095 | $200,000 | $0 | $523,095 | $523,095 |
| 2017 | $325,138 | $190,000 | $0 | $515,138 | $515,138 |
| 2016 | $329,222 | $195,000 | $0 | $524,222 | $524,222 |
| 2015 | $263,924 | $192,768 | $0 | $456,692 | $456,692 |
| 2014 | $266,458 | $192,768 | $0 | $459,226 | $459,226 |
| 2013 | $268,992 | $192,768 | $0 | $461,760 | $461,760 |
| 2012 | $271,528 | $192,768 | $0 | $464,296 | $464,296 |
| 2011 | $274,064 | $240,960 | $0 | $515,024 | $515,024 |
| 2010 | $289,773 | $240,960 | $0 | $530,733 | $530,733 |
| 2009 | $249,059 | $301,200 | $0 | $550,259 | $550,259 |
| 2008 | $253,577 | $349,392 | $0 | $602,969 | $602,969 |
| 2007 | $258,263 | $349,392 | $0 | $607,655 | $607,655 |
Deed and Sales History
| 1 | 10/15/2014 | EZ | Easement | WATKINSHOLDINGS LLC | WATKINSHOLDINGS LLC | | | $750.00 | 17405 | 4367891 |
| 2 | 05/23/2006 | 5 | DNU - Marriage License/Name Change | WATKINS, RONALD M | WATKINSHOLDINGS LLC, | | | $0.00 | 62499 | 4172590 |
| 3 | 05/23/2006 | 5 | DNU - Marriage License/Name Change | WATKINS, RONALD M | WATKINS, RONALD M | | | $0.00 | 62303 | 4171554 |
| 4 | 01/13/2000 | BLA | DNU - Boundary Line Adjustment | WATKINS, RONALD M | WATKINS, RONALD M | | | $0.00 | 68540 | 99010833 |
| 5 | 04/30/1999 | ESTSEPPROP | Establish Separate Property | WATKINS, RONALD M | WATKINS, RONALD M | | | $0.00 | 91660 | 99010833 |
| 6 | 03/01/1985 | DECREE | Divorce Decree/Legal Separation | WATKINS, RONALD | WATKINS, RONALD M | | | $0.00 | 50730 | 85003065 |
| 7 | 01/01/1900 | OTHER | Other - Misc. Documents | Unknown | WATKINS, RONALD | | | $0.00 | 0 | 0 |
Payout Agreement
| No payout information available.. |