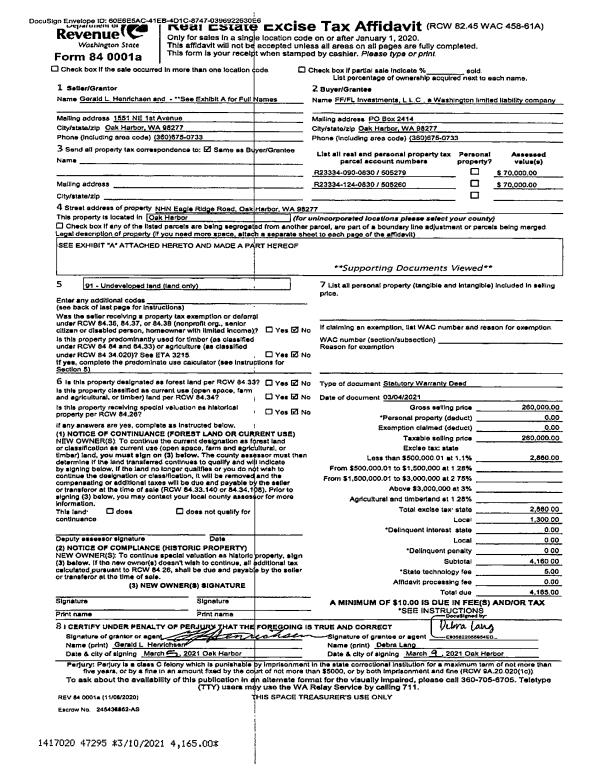
Property
Account |
| Property ID: | 159385 | Abbreviated Legal Description: | 17 - NW NE NW EX RD |
| Geographic ID: | R33131-495-1880 | Agent Code: | |
| Type: | Real | | |
| Tax Area: | 542 - APPRAISER-Stan/Cam Schl Dist, Special Dist, improved, greater than 1 acre | Land Use Code | 11 |
| Open Space: | N | DFL | N |
| Historic Property: | N | Remodel Property: | N |
| Multi-Family Redevelopment: | N | | |
| Township: | 31 | Section: | 31 |
| Range: | R3 |
Location |
| Address: | 2034 HARNDEN LOOP CAMANO ISLAND, WA 98282 | Mapsco: | |
| Neighborhood: | Cycle 5 | Map ID: | 942 |
| Neighborhood CD: | 5 |
Owner |
| Name: | JOHNSON TTEE, ALICE B | Owner ID: | 304599 |
| Mailing Address: | 2034 HARNDEN LOOP CAMANO ISLAND, WA 98282 | % Ownership: | 100.0000000000% |
| | | Exemptions: | |
Taxes and Assessment Details
Values
| (+) Improvement Homesite Value: | + | $0 | |
| (+) Improvement Non-Homesite Value: | + | $235,088 | |
| (+) Land Homesite Value: | + | $0 | |
| (+) Land Non-Homesite Value: | + | $390,000 | |
| (+) Curr Use (HS): | + | $0 | $0 |
| (+) Curr Use (NHS): | + | $0 | $0 |
| | | -------------------------- | |
| (=) Market Value: | = | $625,088 | |
| (–) Productivity Loss: | – | $0 | |
| | | -------------------------- | |
| (=) Subtotal: | = | $625,088 | |
| (+) Senior Appraised Value: | + | $0 | |
| (+) Non-Senior Appraised Value: | + | $625,088 | |
| | | -------------------------- | |
| (=) Total Appraised Value: | = | $625,088 | |
| (–) Senior Exemption Loss: | – | $0 | |
| (–) Exemption Loss: | – | $0 | |
| | | -------------------------- | |
| (=) Taxable Value: | = | $625,088 | |
Taxing Jurisdiction
| Owner: | JOHNSON TTEE, ALICE B | | |
| % Ownership: | 100.0000000000% | | |
| Total Value: | $625,088 | | |
| Tax Area: | 542 - APPRAISER-Stan/Cam Schl Dist, Special Dist, improved, greater than 1 acre |
| CF | Conservation Futures | 0.0316035091 | $625,088 | $625,088 | $19.75 | | |
| EMS1 | Fire & Rescue Dist #1 Camano GEN (EMS) | 0.3677864386 | $625,088 | $625,088 | $229.90 | | |
| FIRE1 | Fire & Rescue Dist #1 Camano GEN | 1.2502910536 | $625,088 | $625,088 | $781.54 | | |
| FIRE1BOND | Fire & Rescue Dist #1 Camano BOND | 0.1570001679 | $625,088 | $625,088 | $98.14 | | |
| CE | County Current Expense | 0.3708482477 | $625,088 | $625,088 | $231.81 | | |
| CR | County Roads | 0.4584763726 | $625,088 | $625,088 | $286.59 | | |
| LCIB | Library Sno-Isle BOND (Camano Island) | 0.0396325772 | $625,088 | $625,088 | $24.77 | | |
| LIB | Library Sno-Isle GEN | 0.3153421757 | $625,088 | $625,088 | $197.12 | | |
| SCH205_401 | School 205-401 Enrichment | 1.2698420524 | $625,088 | $625,088 | $793.76 | | |
| SCH205BOND | School 205-401 BOND | 0.9396497583 | $625,088 | $625,088 | $587.36 | | |
| ST | State School | 1.3035497053 | $625,088 | $625,088 | $814.83 | | |
| ST2 | State School Part 2 | 0.8169543533 | $625,088 | $625,088 | $510.67 | | |
| | Total Tax Rate: | 7.3209764117 | | | | | |
| | | | | Taxes w/Current Exemptions: | $4,576.24 | | |
| | | | | Taxes w/o Exemptions: | $4,576.24 | | |
Improvement / Building
| Improvement #1: | MANUFACTURED HOME | State Code: | Y | 1782.0 sqft | Value: | $235,088 |
| Bathrooms: | 2 | Bedrooms: | 3 | | Ceiling: | PLASTER PAINTED | Cooling: | EVAP NO DUCT | | Exterior Wall/Cover: | VINYL | Floor Covering: | CARPET 100% | | Floor Structure: | SLAB ON GRADE | Foundation: | SLAB | | Heating: | FHA ELECTRIC | Interior Finish: | PLASTER | | Plumbing Fixture Cnt: | 1 | Roof Slope: | FLAT | | Roof Structure/Cover: | CJ ALUMINIUM HEAVY |   |   |
|
| | Type | Description | Class CD | Sub Class CD | Year Built | Area |
| | BAS | BASE/MAIN FLOOR | 5 | 0 | 1985 | 1782.0 |
| | DGR | DETACHED GARAGE | 5 | 0 | 1985 | 960.0 |
| | UTY | STORAGE/UTILITY | 5 | 0 | 1985 | 1800.0 |
| | ENP | ENCLOSED PORCH | 5 | 0 | 1985 | 75.0 |
| | OCP | OPEN CARPORT | 5 | 0 | 1985 | 810.0 |
Sketch
Property Image
Land
| 1 | 32 | AC (03.01-09.99) | 9.7000 | 0.00 | 0.00 | 0.00 | 1.00 | $390,000 | $0 |
Roll Value History
| 2026 | N/A | N/A | N/A | N/A | N/A |
| 2025 | $235,088 | $390,000 | $0 | $625,088 | $625,088 |
| 2024 | $240,754 | $320,000 | $0 | $560,754 | $560,754 |
| 2023 | $211,804 | $320,000 | $0 | $531,804 | $531,804 |
| 2022 | $194,019 | $290,000 | $0 | $484,019 | $484,019 |
| 2021 | $172,591 | $210,000 | $0 | $382,591 | $382,591 |
| 2020 | $69,004 | $160,000 | $0 | $229,004 | $229,004 |
| 2019 | $57,765 | $230,000 | $0 | $287,765 | $287,765 |
| 2018 | $60,030 | $175,000 | $0 | $235,030 | $235,030 |
| 2017 | $62,296 | $165,000 | $0 | $227,296 | $227,296 |
| 2016 | $64,561 | $150,000 | $0 | $214,561 | $214,561 |
| 2015 | $103,756 | $116,400 | $0 | $220,156 | $220,156 |
| 2014 | $105,703 | $116,400 | $0 | $222,103 | $222,103 |
| 2013 | $107,001 | $116,400 | $0 | $223,401 | $223,401 |
| 2012 | $108,299 | $116,400 | $0 | $224,699 | $224,699 |
| 2011 | $109,597 | $145,500 | $0 | $255,097 | $255,097 |
| 2010 | $104,257 | $145,500 | $0 | $249,757 | $249,757 |
| 2009 | $109,388 | $213,400 | $0 | $322,788 | $322,788 |
| 2008 | $113,506 | $139,680 | $0 | $253,186 | $253,186 |
| 2007 | $118,347 | $139,680 | $0 | $258,027 | $258,027 |
Deed and Sales History
| 1 | 01/31/2022 | WD | Warranty Deed | JOHNSON, ALICE B | JOHNSON TTEE, ALICE B | | | $0.00 | 53347 | 4546217 |
| 2 | 01/31/2022 | MANHOME | Manufactured Home | JOHNSON, ALICE B | JOHNSON TTEE, ALICE B | | | $0.00 | 53346 | |
| 3 | 01/07/2022 | WD | Warranty Deed | JOHNSON, ALICE B | JOHNSON, ALICE B | | | $0.00 | 51772 | 4538575 |
| 4 | 01/07/2022 | MANHOME | Manufactured Home | MATHES, JOHN C | JOHNSON, ALICE B | | | $0.00 | 51771 | |
| 5 | 01/03/2017 | QCD | Quit Claim Deed | MATHES, JOHN C | MATHES, JOHN C | | | $0.00 | 28992 | 4421284 |
| 6 | 04/18/2017 | WD | Warranty Deed | THOMAS, DONALD P | MATHES, JOHN C | | | $185,464.00 | 28990 | 4421283 |
| 7 | 07/01/1996 | OTHER | Other - Misc. Documents | THOMAS, DONALD P | THOMAS, DONALD P | | | $35,104.00 | 62397 | 0 |
| 8 | 07/01/1996 | WD | Warranty Deed | TRACY, SHERRIE L | THOMAS, DONALD P | | | $159,896.00 | 62396 | 96011877 |
| 9 | 04/01/1996 | OTHER | Other - Misc. Documents | TRACY, SHERRIE L | TRACY, SHERRIE L | | | $0.00 | 61207 | 0 |
| 10 | 08/01/1995 | PRD | Personal Representatives Deed | BERRY, CAROL K | TRACY, SHERRIE L | | | $0.00 | 52735 | 95012629 |
| 11 | 07/01/1988 | OTHER | Other - Misc. Documents | BERRY, CAROL | BERRY, CAROL K | | | $0.00 | 62707 | 0 |
| 12 | 01/01/1986 | OTHER | Other - Misc. Documents | BERRY, LOUIS J | BERRY, CAROL | | | $29,950.00 | 11111111 | 0 |
| 13 | 01/01/1900 | OTHER | Other - Misc. Documents | Unknown | BERRY, LOUIS J | | | $0.00 | 0 | 0 |
Payout Agreement
| No payout information available.. |