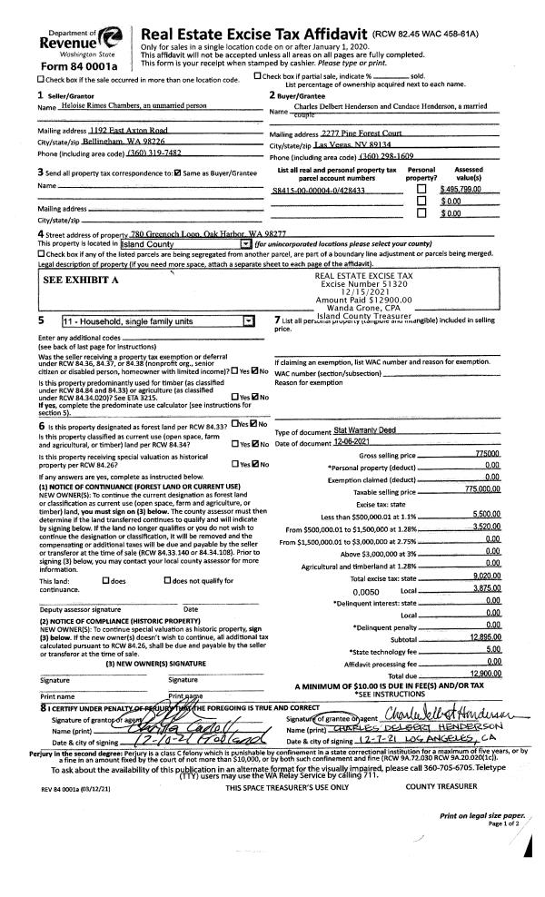
Property
Account |
| Property ID: | 159438 | Abbreviated Legal Description: | 113 - IN NW NW: BG NWCR SEC 31 E253.09' TPB E253.09' S442.96' W253.31' TP S FR TPB N443.04' TPB EX N30' |
| Geographic ID: | R33131-506-0400 | Agent Code: | |
| Type: | Real | | |
| Tax Area: | 542 - APPRAISER-Stan/Cam Schl Dist, Special Dist, improved, greater than 1 acre | Land Use Code | 11 |
| Open Space: | N | DFL | N |
| Historic Property: | N | Remodel Property: | N |
| Multi-Family Redevelopment: | N | | |
| Township: | 31 | Section: | 31 |
| Range: | R3 |
Location |
| Address: | 32 E MOUNTAIN VIEW RD CAMANO ISLAND, WA 98282 | Mapsco: | |
| Neighborhood: | Cycle 5 | Map ID: | 942 |
| Neighborhood CD: | 5 |
Owner |
| Name: | SINE, TOM | Owner ID: | 254436 |
| Mailing Address: | CHRISTINE SINE 510 NE 81ST SEATTLE, WA 98115 | % Ownership: | 100.0000000000% |
| | | Exemptions: | |
Taxes and Assessment Details
Values
| (+) Improvement Homesite Value: | + | $0 | |
| (+) Improvement Non-Homesite Value: | + | $21,923 | |
| (+) Land Homesite Value: | + | $0 | |
| (+) Land Non-Homesite Value: | + | $290,000 | |
| (+) Curr Use (HS): | + | $0 | $0 |
| (+) Curr Use (NHS): | + | $0 | $0 |
| | | -------------------------- | |
| (=) Market Value: | = | $311,923 | |
| (–) Productivity Loss: | – | $0 | |
| | | -------------------------- | |
| (=) Subtotal: | = | $311,923 | |
| (+) Senior Appraised Value: | + | $0 | |
| (+) Non-Senior Appraised Value: | + | $311,923 | |
| | | -------------------------- | |
| (=) Total Appraised Value: | = | $311,923 | |
| (–) Senior Exemption Loss: | – | $0 | |
| (–) Exemption Loss: | – | $0 | |
| | | -------------------------- | |
| (=) Taxable Value: | = | $311,923 | |
Taxing Jurisdiction
| Owner: | SINE, TOM | | |
| % Ownership: | 100.0000000000% | | |
| Total Value: | $311,923 | | |
| Tax Area: | 542 - APPRAISER-Stan/Cam Schl Dist, Special Dist, improved, greater than 1 acre |
| CF | Conservation Futures | 0.0316035091 | $311,923 | $311,923 | $9.86 | | |
| EMS1 | Fire & Rescue Dist #1 Camano GEN (EMS) | 0.3677864386 | $311,923 | $311,923 | $114.72 | | |
| FIRE1 | Fire & Rescue Dist #1 Camano GEN | 1.2502910536 | $311,923 | $311,923 | $389.99 | | |
| FIRE1BOND | Fire & Rescue Dist #1 Camano BOND | 0.1570001679 | $311,923 | $311,923 | $48.97 | | |
| CE | County Current Expense | 0.3708482477 | $311,923 | $311,923 | $115.68 | | |
| CR | County Roads | 0.4584763726 | $311,923 | $311,923 | $143.01 | | |
| LCIB | Library Sno-Isle BOND (Camano Island) | 0.0396325772 | $311,923 | $311,923 | $12.36 | | |
| LIB | Library Sno-Isle GEN | 0.3153421757 | $311,923 | $311,923 | $98.36 | | |
| SCH205_401 | School 205-401 Enrichment | 1.2698420524 | $311,923 | $311,923 | $396.09 | | |
| SCH205BOND | School 205-401 BOND | 0.9396497583 | $311,923 | $311,923 | $293.10 | | |
| ST | State School | 1.3035497053 | $311,923 | $311,923 | $406.61 | | |
| ST2 | State School Part 2 | 0.8169543533 | $311,923 | $311,923 | $254.83 | | |
| | Total Tax Rate: | 7.3209764117 | | | | | |
| | | | | Taxes w/Current Exemptions: | $2,283.58 | | |
| | | | | Taxes w/o Exemptions: | $2,283.58 | | |
Improvement / Building
| Improvement #1: | MANUFACTURED HOME | State Code: | Y | 1146.2 sqft | Value: | $21,923 |
| Bathrooms: | 1 | Bedrooms: | 1 | | Ceiling: | PLYWOOD PAINTED | Exterior Wall/Cover: | PLY/HARDBOARD T-111 | | Floor Covering: | VINYL 100% | Floor Structure: | WOOD W/SUBFLOOR | | Foundation: | WOOD BLOCKS | Heating: | WALL HEAT ELECTRIC | | Interior Finish: | INT FINISH WD PANEL | Plumbing Fixture Cnt: | 6 | | Roof Slope: | 6" IN 12" | Roof Structure/Cover: | CJ ASPHALT |
|
| | Type | Description | Class CD | Sub Class CD | Year Built | Area |
| | BAS | BASE/MAIN FLOOR | 3 | 0 | 1991 | 938.3 |
| | UTY | STORAGE/UTILITY | 3 | 0 | 1991 | 80.0 |
| | BAS | BASE/MAIN FLOOR | 3 | 0 | 1991 | 207.9 |
| | OWP | OPEN WOOD PORCH W/STEPS | 3 | 0 | 1991 | 400.0 |
Sketch
Property Image
Land
| 1 | 18 | AC (02.01-03.00) | 2.4300 | 105850.80 | 0.00 | 0.00 | 1.00 | $290,000 | $0 |
Roll Value History
| 2026 | N/A | N/A | N/A | N/A | N/A |
| 2025 | $21,923 | $290,000 | $0 | $311,923 | $311,923 |
| 2024 | $22,762 | $280,000 | $0 | $302,762 | $302,762 |
| 2023 | $23,374 | $270,000 | $0 | $293,374 | $293,374 |
| 2022 | $21,718 | $260,000 | $0 | $281,718 | $281,718 |
| 2021 | $7,467 | $180,000 | $0 | $187,467 | $187,467 |
| 2020 | $7,629 | $150,000 | $0 | $157,629 | $157,629 |
| 2019 | $6,210 | $200,000 | $0 | $206,210 | $206,210 |
| 2018 | $6,410 | $150,000 | $0 | $156,410 | $156,410 |
| 2017 | $6,611 | $135,000 | $0 | $141,611 | $141,611 |
| 2016 | $6,811 | $105,000 | $0 | $111,811 | $111,811 |
| 2015 | $16,813 | $50,000 | $0 | $66,813 | $66,813 |
| 2014 | $17,013 | $50,000 | $0 | $67,013 | $67,013 |
| 2013 | $17,213 | $50,000 | $0 | $67,213 | $67,213 |
| 2012 | $17,414 | $74,400 | $0 | $91,814 | $91,814 |
| 2011 | $17,899 | $93,000 | $0 | $110,899 | $110,899 |
| 2010 | $18,354 | $93,000 | $0 | $111,354 | $111,354 |
| 2009 | $10,702 | $175,450 | $0 | $186,152 | $186,152 |
| 2008 | $10,755 | $217,500 | $0 | $228,255 | $228,255 |
| 2007 | $21,756 | $217,500 | $0 | $239,256 | $239,256 |
Deed and Sales History
| 1 | 04/26/2011 | WD | Warranty Deed | SECRETARY OF HOUSING AND URBAN DEVELOPMENT | SINE, TOM | | | $77,000.00 | 4471 | 4295439 |
| 2 | 11/15/2010 | WD | Warranty Deed | DANIELS, KELLY D | SECRETARY OF HOUSING AND URBAN DEVELOPMENT | | | $104,867.00 | 2870 | 4284934 |
| 3 | 06/10/2010 | TRUSTEED | Trustee's Deed | DANIELS, KELLY D | WELLS FARGO BANK NA, | | | $115,255.00 | 1421 | 4275341 |
| 4 | 01/16/2003 | QCD | Quit Claim Deed | DANIELS, KELLY D | DANIELS, KELLY D | | | $55,940.00 | 30398 | 4046291 |
| 5 | 09/18/2000 | WD | Warranty Deed | SUN MOUNTAIN CONST., INC, | DANIELS, KELLY D | | | $113,000.00 | 3582 | 20016498 |
| 6 | 09/16/1999 | WD | Warranty Deed | LANE, KENNETH D | SUN MOUNTAIN CONST., INC, | | | $27,500.00 | 93965 | 99021976 |
| 7 | 02/01/1988 | WD | Warranty Deed | SIMPSON, EMPLOYEE'S F | LANE, KENNETH D | | | $6,000.00 | 80504 | 88002081 |
| 8 | 09/01/1987 | OTHER | Other - Misc. Documents | SIMPSON, EMPLOYEE'S F | SIMPSON, EMPLOYEE'S F | | | $0.00 | 62366 | 87009492 |
| 9 | 07/01/1987 | OTHER | Other - Misc. Documents | GRABLE, LESLIE D | SIMPSON, EMPLOYEE'S F | | | $0.00 | 72089 | 87009492 |
| 10 | 03/01/1981 | EXECUTORD | Executor Deed | EASTON, J K | GRABLE, LESLIE D | | | $14,950.00 | 10685 | 380274 |
| 11 | 08/01/1978 | CD | DNU - Correction Deed | EASTON, J K | EASTON, J K | | | $0.00 | 10491 | 379633 |
| 12 | 01/01/1900 | OTHER | Other - Misc. Documents | Unknown | EASTON, J K | | | $0.00 | 0 | 0 |
Payout Agreement
| No payout information available.. |