Property
Account |
| Property ID: | 159508 | Abbreviated Legal Description: | 42 - IN GL 4 INCL ADJ TLDS DESC: BG NWCR GL 4 S506.6' SELY ALG ML 350.8' S39*E354 POB N54*E875'M/L S242' S59*W717'M/L TO ML N39*W200 TPB TGW & SUB EZS |
| Geographic ID: | R33132-038-0780 | Agent Code: | |
| Type: | Real | | |
| Tax Area: | 542 - APPRAISER-Stan/Cam Schl Dist, Special Dist, improved, greater than 1 acre | Land Use Code | 11 |
| Open Space: | N | DFL | N |
| Historic Property: | N | Remodel Property: | N |
| Multi-Family Redevelopment: | N | | |
| Township: | 31 | Section: | 32 |
| Range: | R3 |
Location |
| Address: | 2350 SOUTH CAMANO DR CAMANO ISLAND, WA 98282 | Mapsco: | |
| Neighborhood: | Cycle 5 | Map ID: | 944 |
| Neighborhood CD: | 5 |
Owner |
| Name: | CLARK, JEFF | Owner ID: | 264632 |
| Mailing Address: | CAROLYN CLARK 12213 2ND DR NE MARYSVILLE, WA 98271 | % Ownership: | 100.0000000000% |
| | | Exemptions: | |
Taxes and Assessment Details
Values
| (+) Improvement Homesite Value: | + | $0 | |
| (+) Improvement Non-Homesite Value: | + | $75,403 | |
| (+) Land Homesite Value: | + | $0 | |
| (+) Land Non-Homesite Value: | + | $752,000 | |
| (+) Curr Use (HS): | + | $0 | $0 |
| (+) Curr Use (NHS): | + | $0 | $0 |
| | | -------------------------- | |
| (=) Market Value: | = | $827,403 | |
| (–) Productivity Loss: | – | $0 | |
| | | -------------------------- | |
| (=) Subtotal: | = | $827,403 | |
| (+) Senior Appraised Value: | + | $0 | |
| (+) Non-Senior Appraised Value: | + | $827,403 | |
| | | -------------------------- | |
| (=) Total Appraised Value: | = | $827,403 | |
| (–) Senior Exemption Loss: | – | $0 | |
| (–) Exemption Loss: | – | $0 | |
| | | -------------------------- | |
| (=) Taxable Value: | = | $827,403 | |
Taxing Jurisdiction
| Owner: | CLARK, JEFF | | |
| % Ownership: | 100.0000000000% | | |
| Total Value: | $827,403 | | |
| Tax Area: | 542 - APPRAISER-Stan/Cam Schl Dist, Special Dist, improved, greater than 1 acre |
| CF | Conservation Futures | 0.0316035091 | $827,403 | $827,403 | $26.15 | | |
| EMS1 | Fire & Rescue Dist #1 Camano GEN (EMS) | 0.3677864386 | $827,403 | $827,403 | $304.31 | | |
| FIRE1 | Fire & Rescue Dist #1 Camano GEN | 1.2502910536 | $827,403 | $827,403 | $1,034.49 | | |
| FIRE1BOND | Fire & Rescue Dist #1 Camano BOND | 0.1570001679 | $827,403 | $827,403 | $129.90 | | |
| CE | County Current Expense | 0.3708482477 | $827,403 | $827,403 | $306.84 | | |
| CR | County Roads | 0.4584763726 | $827,403 | $827,403 | $379.34 | | |
| LCIB | Library Sno-Isle BOND (Camano Island) | 0.0396325772 | $827,403 | $827,403 | $32.79 | | |
| LIB | Library Sno-Isle GEN | 0.3153421757 | $827,403 | $827,403 | $260.92 | | |
| SCH205_401 | School 205-401 Enrichment | 1.2698420524 | $827,403 | $827,403 | $1,050.67 | | |
| SCH205BOND | School 205-401 BOND | 0.9396497583 | $827,403 | $827,403 | $777.47 | | |
| ST | State School | 1.3035497053 | $827,403 | $827,403 | $1,078.56 | | |
| ST2 | State School Part 2 | 0.8169543533 | $827,403 | $827,403 | $675.95 | | |
| | Total Tax Rate: | 7.3209764117 | | | | | |
| | | | | Taxes w/Current Exemptions: | $6,057.39 | | |
| | | | | Taxes w/o Exemptions: | $6,057.39 | | |
Improvement / Building
| Improvement #1: | RESIDENTIAL | State Code: | Y | 640.0 sqft | Value: | $75,403 |
| Bathrooms: | 1 | Bedrooms: | 0 | | Ceiling: | TONGUE & GROOVE | Exterior Wall/Cover: | WOOD SIDING | | Floor Covering: | SOFTWOOD 100% | Floor Structure: | WOOD W/SUBFLOOR | | Foundation: | WOOD BLOCKS | Interior Finish: | DRYWALL PAINT | | Plumbing Fixture Cnt: | 4 | Roof Slope: | 8" IN 12" | | Roof Structure/Cover: | BEAM ASPHALT |   |   |
|
| | Type | Description | Class CD | Sub Class CD | Year Built | Area |
| | BAS | BASE/MAIN FLOOR | 1 | 0 | 1933 | 640.0 |
| | OWR | OPEN WOOD PORCH W/STEPS/ROOF | 1 | 0 | 1933 | 192.0 |
| | CPD | OPEN CARPORT DIRT FLOOR | 1 | 0 | 1933 | 75.0 |
| | ENP | ENCLOSED PORCH | 1 | 0 | 1933 | 96.0 |
Sketch
Property Image
Land
| 1 | HB | HIGH BLUFF | 4.0500 | 176418.00 | 200.00 | 0.00 | 1.00 | $750,000 | $0 |
| 2 | 55 | TIDES | 0.0000 | 0.00 | 200.00 | 0.00 | 1.00 | $2,000 | $0 |
Roll Value History
| 2026 | N/A | N/A | N/A | N/A | N/A |
| 2025 | $75,403 | $752,000 | $0 | $827,403 | $827,403 |
| 2024 | $76,492 | $752,000 | $0 | $828,492 | $828,492 |
| 2023 | $77,581 | $752,000 | $0 | $829,581 | $829,581 |
| 2022 | $100,780 | $702,000 | $0 | $802,780 | $802,780 |
| 2021 | $26,626 | $602,000 | $0 | $628,626 | $628,626 |
| 2020 | $26,233 | $567,000 | $0 | $593,233 | $593,233 |
| 2019 | $19,996 | $577,000 | $0 | $596,996 | $596,996 |
| 2018 | $20,077 | $552,000 | $0 | $572,077 | $572,077 |
| 2017 | $20,241 | $502,000 | $0 | $522,241 | $522,241 |
| 2016 | $19,004 | $502,000 | $0 | $521,004 | $521,004 |
| 2015 | $10,015 | $502,000 | $0 | $512,015 | $512,015 |
| 2014 | $10,015 | $502,000 | $0 | $512,015 | $512,015 |
| 2013 | $14,682 | $516,949 | $0 | $531,631 | $531,631 |
| 2012 | $14,682 | $516,949 | $0 | $531,631 | $531,631 |
| 2011 | $14,682 | $645,686 | $0 | $660,368 | $660,368 |
| 2010 | $19,048 | $645,686 | $0 | $664,734 | $664,734 |
| 2009 | $18,881 | $663,322 | $0 | $682,203 | $682,203 |
| 2008 | $19,237 | $379,174 | $0 | $398,411 | $398,411 |
| 2007 | $19,593 | $377,774 | $0 | $397,367 | $397,367 |
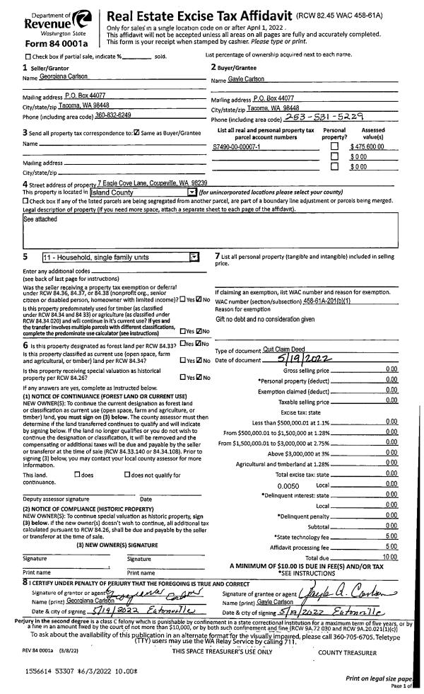
Deed and Sales History
| 1 | 12/16/2013 | QCD | Quit Claim Deed | CLARK, JEFF | CLARK, JEFF | | | $0.00 | 13756 | 4352774 |
| 2 | 12/09/2013 | WD | Warranty Deed | RICHARDSON TRUST, WILLIAM B | CLARK, JEFF | | | $294,040.00 | 13758 | 4352775 |
| 3 | 07/17/2001 | QCD | Quit Claim Deed | RICHARDSON, WILLIAM B | RICHARDSON TRUST, WILLIAM B | | | $0.00 | 12688 | 20037784 |
| 4 | 10/01/1973 | CD | DNU - Correction Deed | RICHARDSON, BERDETT V | RICHARDSON, WILLIAM B | | | $0.00 | 50304 | 0 |
| 5 | 01/01/1900 | OTHER | Other - Misc. Documents | Unknown | RICHARDSON, BERDETT V | | | $0.00 | 0 | 0 |
Payout Agreement
| No payout information available.. |