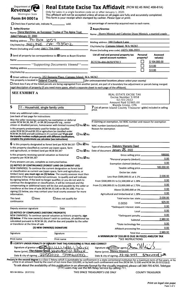
Property
Account |
| Property ID: | 159571 | Abbreviated Legal Description: | 61 - S/2 NW SE SE & N/2 SW SE SE SUBJ EZ E30' & INCL BCH RTS OVER LOT 424 MT VIEW V8 SUR P345 AF#93025325 |
| Geographic ID: | R33132-068-4300 | Agent Code: | |
| Type: | Real | | |
| Tax Area: | 542 - APPRAISER-Stan/Cam Schl Dist, Special Dist, improved, greater than 1 acre | Land Use Code | 11 |
| Open Space: | N | DFL | N |
| Historic Property: | N | Remodel Property: | N |
| Multi-Family Redevelopment: | N | | |
| Township: | 31 | Section: | 32 |
| Range: | R3 |
Location |
| Address: | | Mapsco: | |
| Neighborhood: | Cycle 5 | Map ID: | 945 |
| Neighborhood CD: | 5 |
Owner |
| Name: | GILLETTE, EILEEN | Owner ID: | 60663 |
| Mailing Address: | 2364 CAMANO REAL PLACE CAMANO ISLAND, WA 98282-6305 | % Ownership: | 100.0000000000% |
| | | Exemptions: | |
Taxes and Assessment Details
Values
| (+) Improvement Homesite Value: | + | $0 | |
| (+) Improvement Non-Homesite Value: | + | $3,214 | |
| (+) Land Homesite Value: | + | $0 | |
| (+) Land Non-Homesite Value: | + | $330,000 | |
| (+) Curr Use (HS): | + | $0 | $0 |
| (+) Curr Use (NHS): | + | $0 | $0 |
| | | -------------------------- | |
| (=) Market Value: | = | $333,214 | |
| (–) Productivity Loss: | – | $0 | |
| | | -------------------------- | |
| (=) Subtotal: | = | $333,214 | |
| (+) Senior Appraised Value: | + | $0 | |
| (+) Non-Senior Appraised Value: | + | $333,214 | |
| | | -------------------------- | |
| (=) Total Appraised Value: | = | $333,214 | |
| (–) Senior Exemption Loss: | – | $0 | |
| (–) Exemption Loss: | – | $0 | |
| | | -------------------------- | |
| (=) Taxable Value: | = | $333,214 | |
Taxing Jurisdiction
| Owner: | GILLETTE, EILEEN | | |
| % Ownership: | 100.0000000000% | | |
| Total Value: | $333,214 | | |
| Tax Area: | 542 - APPRAISER-Stan/Cam Schl Dist, Special Dist, improved, greater than 1 acre |
| CF | Conservation Futures | 0.0316035091 | $333,214 | $333,214 | $10.53 | | |
| EMS1 | Fire & Rescue Dist #1 Camano GEN (EMS) | 0.3677864386 | $333,214 | $333,214 | $122.55 | | |
| FIRE1 | Fire & Rescue Dist #1 Camano GEN | 1.2502910536 | $333,214 | $333,214 | $416.61 | | |
| FIRE1BOND | Fire & Rescue Dist #1 Camano BOND | 0.1570001679 | $333,214 | $333,214 | $52.31 | | |
| CE | County Current Expense | 0.3708482477 | $333,214 | $333,214 | $123.57 | | |
| CR | County Roads | 0.4584763726 | $333,214 | $333,214 | $152.77 | | |
| LCIB | Library Sno-Isle BOND (Camano Island) | 0.0396325772 | $333,214 | $333,214 | $13.21 | | |
| LIB | Library Sno-Isle GEN | 0.3153421757 | $333,214 | $333,214 | $105.08 | | |
| SCH205_401 | School 205-401 Enrichment | 1.2698420524 | $333,214 | $333,214 | $423.13 | | |
| SCH205BOND | School 205-401 BOND | 0.9396497583 | $333,214 | $333,214 | $313.10 | | |
| ST | State School | 1.3035497053 | $333,214 | $333,214 | $434.36 | | |
| ST2 | State School Part 2 | 0.8169543533 | $333,214 | $333,214 | $272.22 | | |
| | Total Tax Rate: | 7.3209764117 | | | | | |
| | | | | Taxes w/Current Exemptions: | $2,439.44 | | |
| | | | | Taxes w/o Exemptions: | $2,439.44 | | |
Improvement / Building
| Improvement #1: | MANUFACTURED HOME | State Code: | Y | 960.0 sqft | Value: | $3,214 |
| Bathrooms: | 2 | Bedrooms: | 2 | | Ceiling: | PLASTER PAINTED | Cooling: | EVAP NO DUCT | | Exterior Wall/Cover: | VINYL | Floor Covering: | CARPET 100% | | Floor Structure: | SLAB ON GRADE | Foundation: | SLAB | | Heating: | FHA ELECTRIC | Interior Finish: | PLASTER | | Plumbing Fixture Cnt: | 1 | Roof Slope: | FLAT | | Roof Structure/Cover: | CJ ALUMINIUM HEAVY |   |   |
|
Sketch
Property Image
Land
| 1 | 32 | AC (03.01-09.99) | 9.8700 | 429937.20 | 0.00 | 0.00 | 1.00 | $330,000 | $0 |
Roll Value History
| 2026 | N/A | N/A | N/A | N/A | N/A |
| 2025 | $3,214 | $330,000 | $0 | $333,214 | $333,214 |
| 2024 | $3,333 | $300,000 | $0 | $303,333 | $303,333 |
| 2023 | $3,105 | $240,000 | $0 | $243,105 | $243,105 |
| 2022 | $2,905 | $210,000 | $0 | $212,905 | $212,905 |
| 2021 | $20,728 | $190,000 | $0 | $210,728 | $210,728 |
| 2020 | $21,343 | $160,000 | $0 | $181,343 | $181,343 |
| 2019 | $18,254 | $230,000 | $0 | $248,254 | $248,254 |
| 2018 | $19,215 | $175,000 | $0 | $194,215 | $194,215 |
| 2017 | $20,176 | $150,000 | $0 | $170,176 | $170,176 |
| 2016 | $21,137 | $130,000 | $0 | $151,137 | $151,137 |
| 2015 | $24,802 | $118,440 | $0 | $143,242 | $143,242 |
| 2014 | $25,517 | $118,440 | $0 | $143,957 | $143,957 |
| 2013 | $26,590 | $118,440 | $0 | $145,030 | $145,030 |
| 2012 | $27,305 | $118,440 | $0 | $145,745 | $145,745 |
| 2011 | $28,020 | $148,050 | $0 | $176,070 | $176,070 |
| 2010 | $26,785 | $148,050 | $0 | $174,835 | $174,835 |
| 2009 | $28,287 | $217,140 | $0 | $245,427 | $245,427 |
| 2008 | $29,248 | $164,582 | $0 | $193,830 | $193,830 |
| 2007 | $30,207 | $164,582 | $0 | $194,789 | $194,789 |
Deed and Sales History
| 1 | 10/31/2013 | QCD | Quit Claim Deed | FEDERAL NATIONAL MORTGAGE ASSOCIATION | GILLETTE, EILEEN | | | $105,226.00 | 13492 | 4351631 |
| 2 | 03/21/2013 | TRUSTEED | Trustee's Deed | GILLETTE, EILEEN | FEDERAL NATIONAL MORTGAGE ASSOCIATION | | | $100,456.00 | 10784 | 4336172 |
| 3 | 04/12/1999 | OTHER | Other - Misc. Documents | GILLETTE, EILEEN | GILLETTE, EILEEN | | | $24,245.00 | 91421 | 0 |
| 4 | 04/12/1999 | WD | Warranty Deed | BEHYMER, KELLY I | GILLETTE, EILEEN | | | $97,225.00 | 91420 | 99009338 |
| 5 | 08/01/1994 | OTHER | Other - Misc. Documents | BEHYMER, KELLY I | BEHYMER, KELLY I | | | $0.00 | 43169 | 0 |
| 6 | 10/01/1992 | REC | Real Estate Contract | EKREM, RODNEY Z | BEHYMER, KELLY I | | | $35,000.00 | 24300 | 92020945 |
| 7 | 04/01/1980 | EXECUTORD | Executor Deed | EKREM, RODNEY Z | EKREM, RODNEY Z | | | $28,000.00 | 118 | 367464 |
| 8 | 04/01/1980 | EXECUTORD | Executor Deed | BECK, MILL C | EKREM, RODNEY Z | | | $28,000.00 | 1187 | 367464 |
| 9 | 05/01/1978 | OTHER | Other - Misc. Documents | Unknown | BECK, MILL C | | | $12,500.00 | 82404 | 333461 |
Payout Agreement
| No payout information available.. |