Property
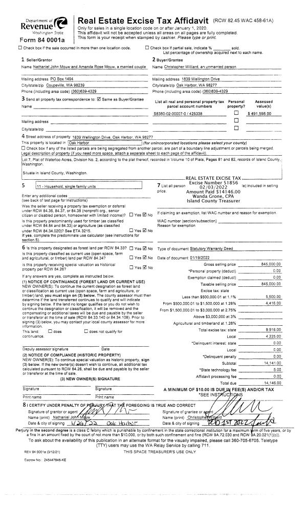
Account |
| Property ID: | 159642 | Abbreviated Legal Description: | 60 - S/2 N/2 NW SE SE SUBJ TO EZ E30' |
| Geographic ID: | R33132-108-4310 | Agent Code: | |
| Type: | Real | | |
| Tax Area: | 549 - APPRAISER-Stan/Cam Schl Dist, Special Dist, vacant & 50 acres or less | Land Use Code | 91 |
| Open Space: | N | DFL | N |
| Historic Property: | N | Remodel Property: | N |
| Multi-Family Redevelopment: | N | | |
| Township: | 31 | Section: | 32 |
| Range: | R3 |
Location |
| Address: | | Mapsco: | |
| Neighborhood: | Cycle 5 | Map ID: | 945 |
| Neighborhood CD: | 5 |
Owner |
| Name: | BEYKOVSKY, PAUL J | Owner ID: | 256974 |
| Mailing Address: | DEBORAH L BEYKOVSKY 2306 CAMANO REAL PL CAMANO ISLAND, WA 98282 | % Ownership: | 100.0000000000% |
| | | Exemptions: | |
Taxes and Assessment Details
Values
| (+) Improvement Homesite Value: | + | $0 | |
| (+) Improvement Non-Homesite Value: | + | $0 | |
| (+) Land Homesite Value: | + | $0 | |
| (+) Land Non-Homesite Value: | + | $170,000 | |
| (+) Curr Use (HS): | + | $0 | $0 |
| (+) Curr Use (NHS): | + | $0 | $0 |
| | | -------------------------- | |
| (=) Market Value: | = | $170,000 | |
| (–) Productivity Loss: | – | $0 | |
| | | -------------------------- | |
| (=) Subtotal: | = | $170,000 | |
| (+) Senior Appraised Value: | + | $0 | |
| (+) Non-Senior Appraised Value: | + | $170,000 | |
| | | -------------------------- | |
| (=) Total Appraised Value: | = | $170,000 | |
| (–) Senior Exemption Loss: | – | $0 | |
| (–) Exemption Loss: | – | $0 | |
| | | -------------------------- | |
| (=) Taxable Value: | = | $170,000 | |
Taxing Jurisdiction
| Owner: | BEYKOVSKY, PAUL J | | |
| % Ownership: | 100.0000000000% | | |
| Total Value: | $170,000 | | |
| Tax Area: | 549 - APPRAISER-Stan/Cam Schl Dist, Special Dist, vacant & 50 acres or less |
| CF | Conservation Futures | 0.0316035091 | $170,000 | $170,000 | $5.37 | | |
| EMS1 | Fire & Rescue Dist #1 Camano GEN (EMS) | 0.3677864386 | $170,000 | $170,000 | $62.52 | | |
| CE | County Current Expense | 0.3708482477 | $170,000 | $170,000 | $63.04 | | |
| CR | County Roads | 0.4584763726 | $170,000 | $170,000 | $77.94 | | |
| LCIB | Library Sno-Isle BOND (Camano Island) | 0.0396325772 | $170,000 | $170,000 | $6.74 | | |
| LIB | Library Sno-Isle GEN | 0.3153421757 | $170,000 | $170,000 | $53.61 | | |
| SCH205_401 | School 205-401 Enrichment | 1.2698420524 | $170,000 | $170,000 | $215.87 | | |
| SCH205BOND | School 205-401 BOND | 0.9396497583 | $170,000 | $170,000 | $159.74 | | |
| ST | State School | 1.3035497053 | $170,000 | $170,000 | $221.60 | | |
| ST2 | State School Part 2 | 0.8169543533 | $170,000 | $170,000 | $138.88 | | |
| | Total Tax Rate: | 5.9136851902 | | | | | |
| | | | | Taxes w/Current Exemptions: | $1,005.31 | | |
| | | | | Taxes w/o Exemptions: | $1,005.31 | | |
Improvement / Building
Sketch
| No sketches available for this property. |
Property Image
Land
| 1 | 18 | AC (02.01-03.00) | 2.5000 | 108900.00 | 0.00 | 0.00 | 1.00 | $170,000 | $0 |
Roll Value History
| 2026 | N/A | N/A | N/A | N/A | N/A |
| 2025 | $0 | $170,000 | $0 | $170,000 | $170,000 |
| 2024 | $0 | $150,000 | $0 | $150,000 | $150,000 |
| 2023 | $0 | $110,000 | $0 | $110,000 | $110,000 |
| 2022 | $0 | $100,000 | $0 | $100,000 | $100,000 |
| 2021 | $0 | $100,000 | $0 | $100,000 | $100,000 |
| 2020 | $0 | $90,000 | $0 | $90,000 | $90,000 |
| 2019 | $0 | $90,000 | $0 | $90,000 | $90,000 |
| 2018 | $0 | $80,000 | $0 | $80,000 | $80,000 |
| 2017 | $0 | $65,000 | $0 | $65,000 | $65,000 |
| 2016 | $0 | $65,000 | $0 | $65,000 | $65,000 |
| 2015 | $0 | $25,110 | $0 | $25,110 | $25,110 |
| 2014 | $0 | $25,110 | $0 | $25,110 | $25,110 |
| 2013 | $0 | $25,110 | $0 | $25,110 | $25,110 |
| 2012 | $0 | $25,110 | $0 | $25,110 | $25,110 |
| 2011 | $0 | $25,110 | $0 | $25,110 | $25,110 |
| 2010 | $0 | $25,110 | $0 | $25,110 | $25,110 |
| 2009 | $0 | $81,000 | $0 | $81,000 | $81,000 |
| 2008 | $0 | $67,500 | $0 | $67,500 | $67,500 |
| 2007 | $0 | $67,500 | $0 | $67,500 | $67,500 |
Deed and Sales History
| 1 | 02/27/2012 | TTAXD | Treasurer's Tax Deed | ISLAND COUNTY TREASURER | BEYKOVSKY, PAUL J | | | $0.00 | 6973 | 4310634 |
| 2 | 04/01/1992 | WD | Warranty Deed | RAMSAY, HUGH M | TEPLEY, RICHARD L | | | $13,000.00 | 21461 | 92006997 |
| 3 | 01/01/1900 | OTHER | Other - Misc. Documents | Unknown | RAMSAY, HUGH M | | | $0.00 | 0 | 0 |
Payout Agreement
| No payout information available.. |