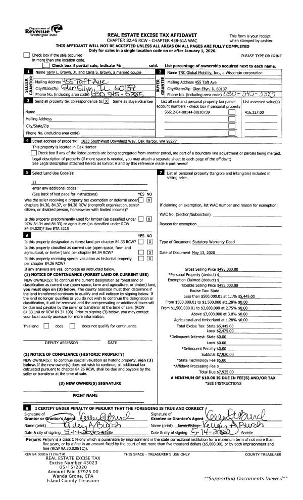
Property
Account |
| Property ID: | 159679 | Abbreviated Legal Description: | 8 - N/2 NE SE SE EX PT PLATTED SUB EZ |
| Geographic ID: | R33132-115-4940 | Agent Code: | |
| Type: | Real | | |
| Tax Area: | 542 - APPRAISER-Stan/Cam Schl Dist, Special Dist, improved, greater than 1 acre | Land Use Code | 11 |
| Open Space: | N | DFL | N |
| Historic Property: | N | Remodel Property: | N |
| Multi-Family Redevelopment: | N | | |
| Township: | 31 | Section: | 32 |
| Range: | R3 |
Location |
| Address: | 2307 CAMANO REAL PLACE CAMANO ISLAND, WA 98282 | Mapsco: | |
| Neighborhood: | Cycle 5 | Map ID: | 945 |
| Neighborhood CD: | 5 |
Owner |
| Name: | OLSEN, PATRICIA | Owner ID: | 292788 |
| Mailing Address: | 2182 HIGHLAND DR CAMANO ISLAND, WA 98282 | % Ownership: | 100.0000000000% |
| | | Exemptions: | |
Taxes and Assessment Details
Values
| (+) Improvement Homesite Value: | + | $0 | |
| (+) Improvement Non-Homesite Value: | + | $59,458 | |
| (+) Land Homesite Value: | + | $0 | |
| (+) Land Non-Homesite Value: | + | $330,000 | |
| (+) Curr Use (HS): | + | $0 | $0 |
| (+) Curr Use (NHS): | + | $0 | $0 |
| | | -------------------------- | |
| (=) Market Value: | = | $389,458 | |
| (–) Productivity Loss: | – | $0 | |
| | | -------------------------- | |
| (=) Subtotal: | = | $389,458 | |
| (+) Senior Appraised Value: | + | $0 | |
| (+) Non-Senior Appraised Value: | + | $389,458 | |
| | | -------------------------- | |
| (=) Total Appraised Value: | = | $389,458 | |
| (–) Senior Exemption Loss: | – | $0 | |
| (–) Exemption Loss: | – | $0 | |
| | | -------------------------- | |
| (=) Taxable Value: | = | $389,458 | |
Taxing Jurisdiction
| Owner: | OLSEN, PATRICIA | | |
| % Ownership: | 100.0000000000% | | |
| Total Value: | $389,458 | | |
| Tax Area: | 542 - APPRAISER-Stan/Cam Schl Dist, Special Dist, improved, greater than 1 acre |
| CF | Conservation Futures | 0.0316035091 | $389,458 | $389,458 | $12.31 | | |
| EMS1 | Fire & Rescue Dist #1 Camano GEN (EMS) | 0.3677864386 | $389,458 | $389,458 | $143.24 | | |
| FIRE1 | Fire & Rescue Dist #1 Camano GEN | 1.2502910536 | $389,458 | $389,458 | $486.94 | | |
| FIRE1BOND | Fire & Rescue Dist #1 Camano BOND | 0.1570001679 | $389,458 | $389,458 | $61.14 | | |
| CE | County Current Expense | 0.3708482477 | $389,458 | $389,458 | $144.43 | | |
| CR | County Roads | 0.4584763726 | $389,458 | $389,458 | $178.56 | | |
| LCIB | Library Sno-Isle BOND (Camano Island) | 0.0396325772 | $389,458 | $389,458 | $15.44 | | |
| LIB | Library Sno-Isle GEN | 0.3153421757 | $389,458 | $389,458 | $122.81 | | |
| SCH205_401 | School 205-401 Enrichment | 1.2698420524 | $389,458 | $389,458 | $494.55 | | |
| SCH205BOND | School 205-401 BOND | 0.9396497583 | $389,458 | $389,458 | $365.95 | | |
| ST | State School | 1.3035497053 | $389,458 | $389,458 | $507.68 | | |
| ST2 | State School Part 2 | 0.8169543533 | $389,458 | $389,458 | $318.17 | | |
| | Total Tax Rate: | 7.3209764117 | | | | | |
| | | | | Taxes w/Current Exemptions: | $2,851.22 | | |
| | | | | Taxes w/o Exemptions: | $2,851.22 | | |
Improvement / Building
| Improvement #1: | MANUFACTURED HOME | State Code: | Y | 1134.0 sqft | Value: | $59,458 |
| Bathrooms: | 2 | Bedrooms: | 3 | | Ceiling: | PLASTER PAINTED | Cooling: | EVAP NO DUCT | | Exterior Wall/Cover: | VINYL | Floor Covering: | CARPET 100% | | Floor Structure: | SLAB ON GRADE | Foundation: | SLAB | | Heating: | FHA ELECTRIC | Interior Finish: | PLASTER | | Roof Slope: | FLAT | Roof Structure/Cover: | CJ ALUMINIUM HEAVY |
|
| | Type | Description | Class CD | Sub Class CD | Year Built | Area |
| | BAS | BASE/MAIN FLOOR | 4 | 0 | 1980 | 1134.0 |
| | CPD | OPEN CARPORT DIRT FLOOR | 4 | 0 | 1980 | 240.0 |
| | UTY | STORAGE/UTILITY | 4 | 0 | 1980 | 120.0 |
| | UTY | STORAGE/UTILITY | 4 | 0 | 1980 | 120.0 |
Sketch
Property Image
Land
| 1 | 32 | AC (03.01-09.99) | 4.9700 | 0.00 | 0.00 | 0.00 | 1.00 | $330,000 | $0 |
Roll Value History
| 2026 | N/A | N/A | N/A | N/A | N/A |
| 2025 | $59,458 | $330,000 | $0 | $389,458 | $389,458 |
| 2024 | $61,207 | $300,000 | $0 | $361,207 | $361,207 |
| 2023 | $54,745 | $240,000 | $0 | $294,745 | $294,745 |
| 2022 | $50,259 | $210,000 | $0 | $260,259 | $260,259 |
| 2021 | $31,906 | $190,000 | $0 | $221,906 | $221,906 |
| 2020 | $31,878 | $160,000 | $0 | $191,878 | $191,878 |
| 2019 | $25,847 | $230,000 | $0 | $255,847 | $255,847 |
| 2018 | $26,206 | $175,000 | $0 | $201,206 | $201,206 |
| 2017 | $26,924 | $150,000 | $0 | $176,924 | $176,924 |
| 2016 | $27,641 | $130,000 | $0 | $157,641 | $157,641 |
| 2015 | $29,931 | $100,000 | $0 | $129,931 | $129,931 |
| 2014 | $30,649 | $100,000 | $0 | $130,649 | $130,649 |
| 2013 | $31,367 | $107,352 | $0 | $138,719 | $138,719 |
| 2012 | $21,315 | $107,352 | $0 | $128,667 | $128,667 |
| 2011 | $5,520 | $134,190 | $0 | $139,710 | $139,710 |
| 2010 | $5,520 | $134,190 | $0 | $139,710 | $139,710 |
| 2009 | $3,346 | $159,040 | $0 | $162,386 | $162,386 |
| 2008 | $3,414 | $172,956 | $0 | $176,370 | $176,370 |
| 2007 | $3,481 | $172,956 | $0 | $176,437 | $176,437 |
Deed and Sales History
| 1 | 11/13/2019 | QCD | Quit Claim Deed | OLSEN, FRANK | OLSEN, PATRICIA | | | $0.00 | 41357 | 4476915 |
| 2 | 09/25/2019 | MANHOME | Manufactured Home | OLSEN, FRANK | OLSEN, PATRICIA M | | | $0.00 | 40415 | |
| 3 | 01/20/2005 | QCD | Quit Claim Deed | OLSEN, RICHARD | OLSEN, FRANK | | | $61,764.00 | 20096 | 4123976 |
| 4 | 09/11/2001 | WD | Warranty Deed | PORTER, MRS H | OLSEN, RICHARD | | | $47,000.00 | 13746 | 20044232 |
| 5 | 01/01/1900 | OTHER | Other - Misc. Documents | PORTER, VIOLA H | PORTER, MRS H | | | $0.00 | 0 | 0 |
| 6 | 01/01/1900 | REC | Real Estate Contract | Unknown | PORTER, VIOLA H | | | $0.00 | 58880 | 0 |
Payout Agreement
| No payout information available.. |