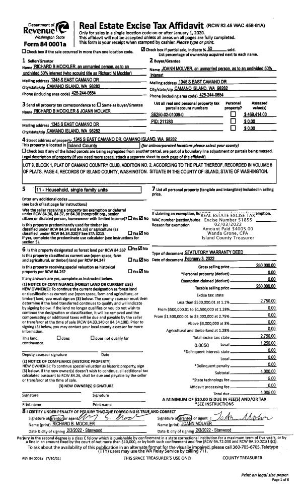
Property
Account |
| Property ID: | 159697 | Abbreviated Legal Description: | 68 - N/2 N/2 NW SE SE SUB TO EZ E30' |
| Geographic ID: | R33132-124-4320 | Agent Code: | |
| Type: | Real | | |
| Tax Area: | 542 - APPRAISER-Stan/Cam Schl Dist, Special Dist, improved, greater than 1 acre | Land Use Code | 11 |
| Open Space: | N | DFL | N |
| Historic Property: | N | Remodel Property: | N |
| Multi-Family Redevelopment: | N | | |
| Township: | 31 | Section: | 32 |
| Range: | R3 |
Location |
| Address: | 2306 CAMANO REAL PLACE CAMANO ISLAND, WA 98282 | Mapsco: | |
| Neighborhood: | Cycle 5 | Map ID: | 945 |
| Neighborhood CD: | 5 |
Owner |
| Name: | BEYKOVSKY, PAUL | Owner ID: | 60676 |
| Mailing Address: | DEBORAH L BEYKOVSKY 2306 CAMANO REAL PL CAMANO ISLAND, WA 98282 | % Ownership: | 100.0000000000% |
| | | Exemptions: | SNR/DSBL |
Taxes and Assessment Details
Values
| (+) Improvement Homesite Value: | + | $263,789 | |
| (+) Improvement Non-Homesite Value: | + | $0 | |
| (+) Land Homesite Value: | + | $290,000 | |
| (+) Land Non-Homesite Value: | + | $0 | |
| (+) Curr Use (HS): | + | $0 | $0 |
| (+) Curr Use (NHS): | + | $0 | $0 |
| | | -------------------------- | |
| (=) Market Value: | = | $553,789 | |
| (–) Productivity Loss: | – | $0 | |
| | | -------------------------- | |
| (=) Subtotal: | = | $553,789 | |
| (+) Senior Appraised Value: | + | $457,960 | |
| (+) Non-Senior Appraised Value: | + | $0 | |
| | | -------------------------- | |
| (=) Total Appraised Value: | = | $457,960 | |
| (–) Senior Exemption Loss: | – | $274,776 | |
| (–) Exemption Loss: | – | $0 | |
| | | -------------------------- | |
| (=) Taxable Value: | = | $183,184 | |
Taxing Jurisdiction
| Owner: | BEYKOVSKY, PAUL | | |
| % Ownership: | 100.0000000000% | | |
| Total Value: | $553,789 | | |
| Tax Area: | 542 - APPRAISER-Stan/Cam Schl Dist, Special Dist, improved, greater than 1 acre |
| CF | Conservation Futures | 0.0316035091 | $553,789 | $183,184 | $5.79 | | |
| EMS1 | Fire & Rescue Dist #1 Camano GEN (EMS) | 0.3677864386 | $553,789 | $183,184 | $67.37 | | |
| FIRE1 | Fire & Rescue Dist #1 Camano GEN | 1.2502910536 | $553,789 | $183,184 | $229.03 | | |
| FIRE1BOND | Fire & Rescue Dist #1 Camano BOND | 0.0000000000 | $553,789 | $0 | $0.00 | | |
| CE | County Current Expense | 0.3708482477 | $553,789 | $183,184 | $67.93 | | |
| CR | County Roads | 0.4584763726 | $553,789 | $183,184 | $83.99 | | |
| LCIB | Library Sno-Isle BOND (Camano Island) | 0.0000000000 | $553,789 | $0 | $0.00 | | |
| LIB | Library Sno-Isle GEN | 0.3153421757 | $553,789 | $183,184 | $57.77 | | |
| SCH205_401 | School 205-401 Enrichment | 0.0000000000 | $553,789 | $0 | $0.00 | | |
| SCH205BOND | School 205-401 BOND | 0.0000000000 | $553,789 | $0 | $0.00 | | |
| ST | State School | 1.3035497053 | $553,789 | $183,184 | $238.79 | | |
| ST2 | State School Part 2 | 0.0000000000 | $553,789 | $0 | $0.00 | | |
| | Total Tax Rate: | 4.0978975026 | | | | | |
| | | | | Taxes w/Current Exemptions: | $750.67 | | |
| | | | | Taxes w/o Exemptions: | $4,054.27 | | |
Improvement / Building
| Improvement #1: | RESIDENTIAL | State Code: | Y | 1480.0 sqft | Value: | $263,789 |
| Bathrooms: | 1.5 | Bedrooms: | 1 | | Ceiling: | DRYWALL PAINTED | Exterior Wall/Cover: | WOOD SIDING | | Floor Covering: | CARPET/VINYL 80-20 | Floor Structure: | SLAB ON GRADE | | Foundation: | SLAB/CONCRETE | Heating: | WALL HEAT ELECTRIC | | Interior Finish: | DRYWALL PAINT | Plumbing Fixture Cnt: | 8 | | Roof Slope: | 6" IN 12" | Roof Structure/Cover: | CJ ASPHALT |
|
| | Type | Description | Class CD | Sub Class CD | Year Built | Area |
| | BIG | BUILT IN GARAGE | 3 | 0 | 2009 | 1488.0 |
| | OWP | OPEN WOOD PORCH W/STEPS | 3 | 0 | 2009 | 115.0 |
| | BAS | BASE/MAIN FLOOR | 3 | 0 | 2009 | 992.0 |
| | LOF | LOFT | 3 | 0 | 2009 | 288.0 |
| | ENP | ENCLOSED PORCH | 3 | 0 | 2009 | 200.0 |
| | UPS | UPPER STORY | 3 | 0 | 2009 | 200.0 |
| | DGR | DETACHED GARAGE | 3 | 0 | 2025 | 560.0 |
Sketch
Property Image
Land
| 1 | 18 | AC (02.01-03.00) | 2.5000 | 108900.00 | 0.00 | 0.00 | 1.00 | $290,000 | $0 |
Roll Value History
| 2026 | N/A | N/A | N/A | N/A | N/A |
| 2025 | $263,789 | $290,000 | $0 | $553,789 | $183,184 |
| 2024 | $257,426 | $280,000 | $0 | $537,426 | $179,431 |
| 2023 | $260,446 | $220,000 | $0 | $480,446 | $179,431 |
| 2022 | $238,577 | $210,000 | $0 | $448,577 | $179,431 |
| 2021 | $186,014 | $180,000 | $0 | $366,014 | $366,014 |
| 2020 | $180,459 | $150,000 | $0 | $330,459 | $330,459 |
| 2019 | $126,443 | $200,000 | $0 | $326,443 | $326,443 |
| 2018 | $126,792 | $150,000 | $0 | $276,792 | $276,792 |
| 2017 | $127,494 | $135,000 | $0 | $262,494 | $262,494 |
| 2016 | $128,894 | $105,000 | $0 | $233,894 | $233,894 |
| 2015 | $124,113 | $50,000 | $0 | $174,113 | $174,113 |
| 2014 | $125,448 | $50,000 | $0 | $175,448 | $175,448 |
| 2013 | $126,784 | $50,000 | $0 | $176,784 | $176,784 |
| 2012 | $128,118 | $74,400 | $0 | $202,518 | $202,518 |
| 2011 | $129,453 | $93,000 | $0 | $222,453 | $222,453 |
| 2010 | $44,827 | $93,000 | $0 | $137,827 | $137,827 |
| 2009 | $46,671 | $169,650 | $0 | $216,321 | $216,321 |
| 2008 | $0 | $67,500 | $0 | $67,500 | $67,500 |
| 2007 | $0 | $67,500 | $0 | $67,500 | $67,500 |
Deed and Sales History
| 1 | 08/12/2004 | WD | Warranty Deed | BAKER, WILLIAM A | BEYKOVSKY, PAUL | | | $44,500.00 | 43841 | 4110407 |
| 2 | 12/01/1991 | WD | Warranty Deed | DITCH, CALVIN B | BAKER, WILLIAM A | | | $12,000.00 | 14561 | 91019951 |
| 3 | 01/01/1900 | OTHER | Other - Misc. Documents | Unknown | DITCH, CALVIN B | | | $0.00 | 0 | 0 |
Payout Agreement
| No payout information available.. |