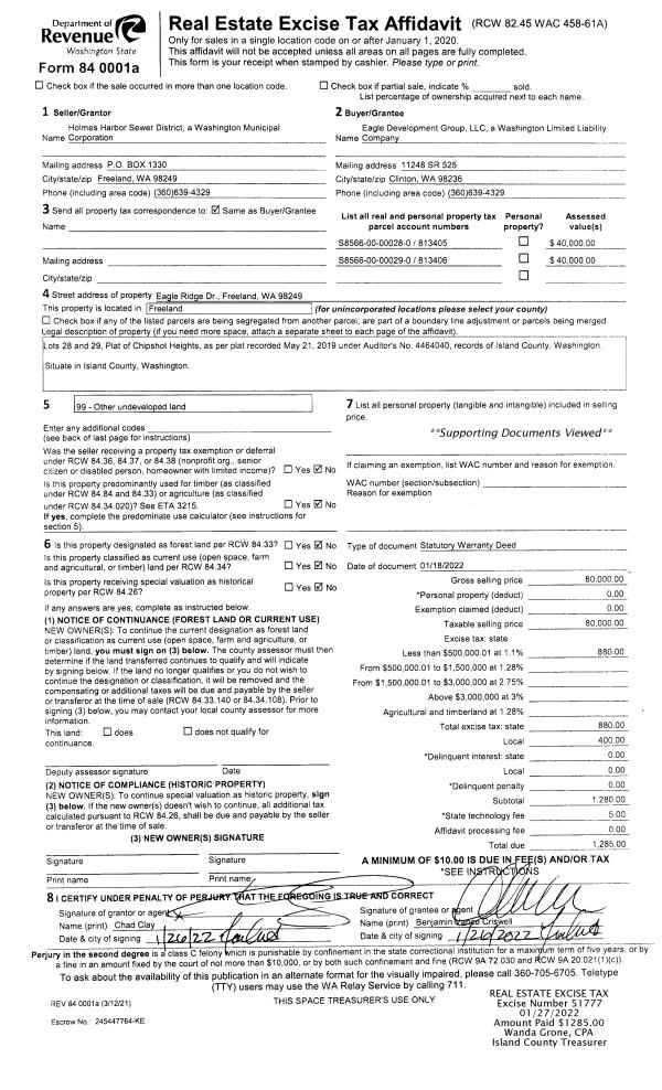
Property
Account |
| Property ID: | 159731 | Abbreviated Legal Description: | 7 - PT GL 1 LY SWLY OF MT VIEW BCH #2 EX N30' |
| Geographic ID: | R33132-166-4430 | Agent Code: | |
| Type: | Real | | |
| Tax Area: | 549 - APPRAISER-Stan/Cam Schl Dist, Special Dist, vacant & 50 acres or less | Land Use Code | 88 |
| Open Space: | N | DFL | Y |
| Historic Property: | N | Remodel Property: | N |
| Multi-Family Redevelopment: | N | | |
| Township: | 31 | Section: | 32 |
| Range: | R3 |
Location |
| Address: | | Mapsco: | |
| Neighborhood: | Cycle 5 | Map ID: | 945 |
| Neighborhood CD: | 5 |
Owner |
| Name: | VAUX, JULIANNE VANASSE | Owner ID: | 269747 |
| Mailing Address: | 2115 HIGHLAND DR CAMANO ISLAND, WA 98282 | % Ownership: | 100.0000000000% |
| | | Exemptions: | |
Taxes and Assessment Details
Values
| (+) Improvement Homesite Value: | + | $0 | |
| (+) Improvement Non-Homesite Value: | + | $0 | |
| (+) Land Homesite Value: | + | $0 | |
| (+) Land Non-Homesite Value: | + | $8,118 | |
| (+) Curr Use (HS): | + | $0 | $0 |
| (+) Curr Use (NHS): | + | $281,882 | $3,725 |
| | | -------------------------- | |
| (=) Market Value: | = | $290,000 | |
| (–) Productivity Loss: | – | $278,157 | |
| | | -------------------------- | |
| (=) Subtotal: | = | $11,843 | |
| (+) Senior Appraised Value: | + | $0 | |
| (+) Non-Senior Appraised Value: | + | $11,843 | |
| | | -------------------------- | |
| (=) Total Appraised Value: | = | $11,843 | |
| (–) Senior Exemption Loss: | – | $0 | |
| (–) Exemption Loss: | – | $0 | |
| | | -------------------------- | |
| (=) Taxable Value: | = | $11,843 | |
Taxing Jurisdiction
| Owner: | VAUX, JULIANNE VANASSE | | |
| % Ownership: | 100.0000000000% | | |
| Total Value: | $290,000 | | |
| Tax Area: | 549 - APPRAISER-Stan/Cam Schl Dist, Special Dist, vacant & 50 acres or less |
| CF | Conservation Futures | 0.0316035091 | $11,843 | $11,843 | $0.37 | | |
| EMS1 | Fire & Rescue Dist #1 Camano GEN (EMS) | 0.3677864386 | $11,843 | $11,843 | $4.36 | | |
| CE | County Current Expense | 0.3708482477 | $11,843 | $11,843 | $4.39 | | |
| CR | County Roads | 0.4584763726 | $11,843 | $11,843 | $5.43 | | |
| LCIB | Library Sno-Isle BOND (Camano Island) | 0.0396325772 | $11,843 | $11,843 | $0.47 | | |
| LIB | Library Sno-Isle GEN | 0.3153421757 | $11,843 | $11,843 | $3.73 | | |
| SCH205_401 | School 205-401 Enrichment | 1.2698420524 | $11,843 | $11,843 | $15.04 | | |
| SCH205BOND | School 205-401 BOND | 0.9396497583 | $11,843 | $11,843 | $11.13 | | |
| ST | State School | 1.3035497053 | $11,843 | $11,843 | $15.44 | | |
| ST2 | State School Part 2 | 0.8169543533 | $11,843 | $11,843 | $9.68 | | |
| | Total Tax Rate: | 5.9136851902 | | | | | |
| | | | | Taxes w/Current Exemptions: | $70.04 | | |
| | | | | Taxes w/o Exemptions: | $70.04 | | |
Improvement / Building
Sketch
| No sketches available for this property. |
Property Image
Land
| 1 | 88 | DESIGNATED FOREST | 25.0000 | 1089000.00 | 0.00 | 0.00 | 1.00 | $281,882 | $3,725 |
| 2 | 35 | AC (10.00-30.99) | 0.7200 | 31363.20 | 0.00 | 0.00 | 1.00 | $8,118 | $0 |
Roll Value History
| 2026 | N/A | N/A | N/A | N/A | N/A |
| 2025 | $0 | $290,000 | $3,725 | $11,843 | $11,843 |
| 2024 | $0 | $270,000 | $3,750 | $11,308 | $11,308 |
| 2023 | $0 | $340,000 | $3,600 | $13,100 | $13,100 |
| 2022 | $0 | $340,000 | $3,600 | $13,100 | $13,100 |
| 2021 | $0 | $250,000 | $3,600 | $10,598 | $10,598 |
| 2020 | $0 | $235,000 | $3,600 | $10,179 | $10,179 |
| 2019 | $0 | $235,000 | $3,475 | $10,054 | $10,054 |
| 2018 | $0 | $230,000 | $3,425 | $9,863 | $9,863 |
| 2017 | $0 | $230,000 | $3,425 | $9,863 | $9,863 |
| 2016 | $0 | $235,000 | $3,200 | $9,775 | $9,775 |
| 2015 | $0 | $235,000 | $3,200 | $9,775 | $9,775 |
| 2014 | $0 | $212,243 | $3,200 | $11,363 | $11,363 |
| 2013 | $0 | $212,243 | $3,200 | $11,363 | $11,363 |
| 2012 | $0 | $257,200 | $3,200 | $56,320 | $56,320 |
| 2011 | $0 | $257,200 | $2,598 | $2,598 | $2,598 |
| 2010 | $0 | $257,200 | $2,598 | $2,598 | $2,598 |
| 2009 | $0 | $308,640 | $2,598 | $2,598 | $2,598 |
| 2008 | $0 | $268,517 | $2,598 | $2,598 | $2,598 |
| 2007 | $0 | $268,517 | $2,598 | $2,598 | $2,598 |
Deed and Sales History
| 1 | 02/21/2015 | QCD | Quit Claim Deed | GOODENOUGH III TTEE, WILLIAM HENRY | VAUX, JULIANNE VANASSE | | | $0.00 | 19079 | 4376263 |
| 2 | 10/15/1998 | PRD | Personal Representatives Deed | GOODENOUGH, JOY E | GOODENOUGH, JOY | | | $0.00 | 84345 | 98023695 |
| 3 | 01/01/1998 | QCD | Quit Claim Deed | VANASSE, H J | GOODENOUGH, JOY E | | | $0.00 | 80275 | 98001343 |
| 4 | 10/01/1990 | OTHER | Other - Misc. Documents | VANASSE, H J | VANASSE, H J | | | $0.00 | 63914 | 90011459 |
| 5 | 01/01/1900 | OTHER | Other - Misc. Documents | Unknown | VANASSE, H J | | | $0.00 | 0 | 0 |
Payout Agreement
| No payout information available.. |