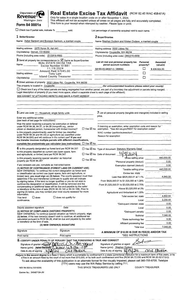
Property
Account |
| Property ID: | 16011 | Abbreviated Legal Description: | 15 - N330' OF PT GL3 & N330 OF PT NW SE LY WLY OF CO RD EX S200' |
| Geographic ID: | R13207-258-2570 | Agent Code: | |
| Type: | Real | | |
| Tax Area: | 112 - APPRAISER-OH Schl Dist, outside OH, improved, greater than 1 acre | Land Use Code | 11 |
| Open Space: | N | DFL | N |
| Historic Property: | N | Remodel Property: | N |
| Multi-Family Redevelopment: | N | | |
| Township: | 32 | Section: | 07 |
| Range: | R1 |
Location |
| Address: | 1799 WEST BEACH RD OAK HARBOR, WA 98277 | Mapsco: | |
| Neighborhood: | Cycle 1 | Map ID: | 104 |
| Neighborhood CD: | 1 |
Owner |
| Name: | NELSON TRUSTEE, WILLIAM REYNOLD | Owner ID: | 70430 |
| Mailing Address: | BARBARA H NELSON TRUSTEE BOX 1501 COUPEVILLE, WA 98239 | % Ownership: | 100.0000000000% |
| | | Exemptions: | |
Taxes and Assessment Details
Values
| (+) Improvement Homesite Value: | + | $0 | |
| (+) Improvement Non-Homesite Value: | + | $594,493 | |
| (+) Land Homesite Value: | + | $0 | |
| (+) Land Non-Homesite Value: | + | $450,000 | |
| (+) Curr Use (HS): | + | $0 | $0 |
| (+) Curr Use (NHS): | + | $0 | $0 |
| | | -------------------------- | |
| (=) Market Value: | = | $1,044,493 | |
| (–) Productivity Loss: | – | $0 | |
| | | -------------------------- | |
| (=) Subtotal: | = | $1,044,493 | |
| (+) Senior Appraised Value: | + | $0 | |
| (+) Non-Senior Appraised Value: | + | $1,044,493 | |
| | | -------------------------- | |
| (=) Total Appraised Value: | = | $1,044,493 | |
| (–) Senior Exemption Loss: | – | $0 | |
| (–) Exemption Loss: | – | $0 | |
| | | -------------------------- | |
| (=) Taxable Value: | = | $1,044,493 | |
Taxing Jurisdiction
| Owner: | NELSON TRUSTEE, WILLIAM REYNOLD | | |
| % Ownership: | 100.0000000000% | | |
| Total Value: | $1,044,493 | | |
| Tax Area: | 112 - APPRAISER-OH Schl Dist, outside OH, improved, greater than 1 acre |
| CF | Conservation Futures | 0.0316035091 | $1,044,493 | $1,044,493 | $33.01 | | |
| CEM1 | Cemetery #1 | 0.0040320932 | $1,044,493 | $1,044,493 | $4.21 | | |
| FIRE2 | Fire & Rescue Dist #2 N Whidbey GEN | 0.5475949600 | $1,044,493 | $1,044,493 | $571.96 | | |
| HOBOND | Hospital BOND | 0.1910887512 | $1,044,493 | $1,044,493 | $199.59 | | |
| HOGEN | Hospital GEN | 0.3902502903 | $1,044,493 | $1,044,493 | $407.61 | | |
| CE | County Current Expense | 0.3708482477 | $1,044,493 | $1,044,493 | $387.35 | | |
| CR | County Roads | 0.4584763726 | $1,044,493 | $1,044,493 | $478.88 | | |
| ISLANDEMS | Hospital GEN (EMS) | 0.5000000000 | $1,044,493 | $1,044,493 | $522.25 | | |
| LIB | Library Sno-Isle GEN | 0.3153421757 | $1,044,493 | $1,044,493 | $329.37 | | |
| NWHIDPRMT | P & R N Whidbey GEN | 0.2004466701 | $1,044,493 | $1,044,493 | $209.37 | | |
| SCH201MO | School 201 Enrichment | 1.8559231640 | $1,044,493 | $1,044,493 | $1,938.50 | | |
| ST | State School | 1.3035497053 | $1,044,493 | $1,044,493 | $1,361.55 | | |
| ST2 | State School Part 2 | 0.8169543533 | $1,044,493 | $1,044,493 | $853.30 | | |
| | Total Tax Rate: | 6.9861102925 | | | | | |
| | | | | Taxes w/Current Exemptions: | $7,296.95 | | |
| | | | | Taxes w/o Exemptions: | $7,296.95 | | |
Improvement / Building
| Improvement #1: | RESIDENTIAL | State Code: | Y | 2325.0 sqft | Value: | $594,493 |
| Bathrooms: | 2.5 | Bedrooms: | 2 | | Ceiling: | DRYWALL PAINTED | Cooling: | HEAT PUMP/CONV/V | | Exterior Wall/Cover: | CEMENT FIBER | Floor Covering: | CERAMIC TILE/CPT 40-60 | | Floor Structure: | WOOD ON WOOD JOIST | Foundation: | CONCRETE | | Interior Finish: | DRYWALL PAINT | Plumbing Fixture Cnt: | 12 | | Roof Slope: | 8" IN 12" | Roof Structure/Cover: | CJ ASPHALT |
|
| | Type | Description | Class CD | Sub Class CD | Year Built | Area |
| | BAS | BASE/MAIN FLOOR | 4 | 0 | 2012 | 2325.0 |
| | AGR | ATTACHED GARAGE | 4 | 0 | 2012 | 1240.1 |
| | OWP | OPEN WOOD PORCH W/STEPS | 4 | 0 | 2012 | 856.0 |
| | CPD | OPEN CARPORT DIRT FLOOR | 4 | 0 | 2012 | 299.9 |
| | OP4 | OPEN PORCH W/CEILING-ROOF | 4 | 0 | 2012 | 126.1 |
| | DGR | DETACHED GARAGE | 4 | 0 | 2012 | 840.0 |
Sketch
Property Image
Land
| 1 | HB | HIGH BLUFF | 2.1700 | 94525.20 | 130.00 | 0.00 | 1.00 | $450,000 | $0 |
Roll Value History
| 2026 | N/A | N/A | N/A | N/A | N/A |
| 2025 | $594,493 | $450,000 | $0 | $1,044,493 | $1,044,493 |
| 2024 | $599,488 | $375,000 | $0 | $974,488 | $974,488 |
| 2023 | $604,818 | $375,000 | $0 | $979,818 | $979,818 |
| 2022 | $551,882 | $375,000 | $0 | $926,882 | $926,882 |
| 2021 | $483,838 | $250,000 | $0 | $733,838 | $733,838 |
| 2020 | $469,682 | $250,000 | $0 | $719,682 | $719,682 |
| 2019 | $356,479 | $300,000 | $0 | $656,479 | $656,479 |
| 2018 | $328,985 | $250,000 | $0 | $578,985 | $578,985 |
| 2017 | $307,681 | $250,000 | $0 | $557,681 | $557,681 |
| 2016 | $310,955 | $250,000 | $0 | $560,955 | $560,955 |
| 2015 | $314,229 | $250,000 | $0 | $564,229 | $564,229 |
| 2014 | $317,502 | $250,000 | $0 | $567,502 | $567,502 |
| 2013 | $320,775 | $231,722 | $0 | $552,497 | $552,497 |
| 2012 | $22,977 | $231,722 | $0 | $254,699 | $254,699 |
| 2011 | $0 | $231,722 | $0 | $231,722 | $231,722 |
| 2010 | $0 | $231,722 | $0 | $231,722 | $231,722 |
| 2009 | $0 | $255,050 | $0 | $255,050 | $255,050 |
| 2008 | $0 | $280,088 | $0 | $280,088 | $280,088 |
| 2007 | $0 | $206,062 | $0 | $206,062 | $206,062 |
Deed and Sales History
| 1 | 11/07/2018 | WD | Warranty Deed | DAVIS, MARGARET L | NELSON TRUSTEE, WILLIAM REYNOLD | | | $0.00 | 36589 | 4454714 |
| 2 | 04/27/2010 | WD | Warranty Deed | DAVIS, MARGARET I | NELSON TRUSTEE, WILLIAM REYNOL | | | $279,000.00 | 1105 | 4273436 |
| 3 | 08/01/1996 | QCD | Quit Claim Deed | DAVIS, MARGARET I | DAVIS, MARGARET I | | | $0.00 | 70066 | 97000674 |
| 4 | 08/01/1996 | QCD | Quit Claim Deed | DAVIS, STEVEN O | DAVIS, MARGARET I | | | $0.00 | 70067 | 97000675 |
| 5 | 09/01/1983 | WD | Warranty Deed | GEPNER, MARJORIE J | DAVIS, STEVEN O | | | $64,000.00 | 32860 | 415630 |
| 6 | 01/01/1900 | OTHER | Other - Misc. Documents | Unknown | GEPNER, MARJORIE J | | | $0.00 | 0 | 0 |
Payout Agreement
| No payout information available.. |