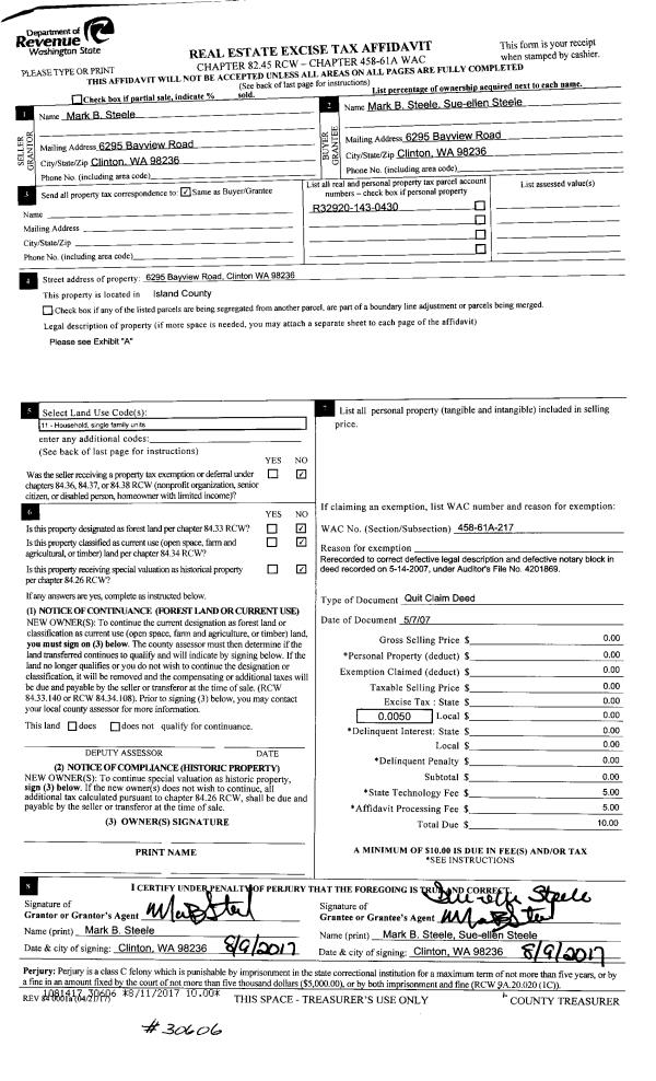
Property
Account |
| Property ID: | 160113 | Abbreviated Legal Description: | 19 - IN GL1:BG INTER ELN PT SUSAN TERR & CLN RD S72* E516.12' TPB N18*E120' S72* E75' S18*W120' N72*W75' TPB EX NW 10' INCL ADJ TIDES TGW EZ |
| Geographic ID: | R33133-052-2980 | Agent Code: | |
| Type: | Real | | |
| Tax Area: | 540 - APPRAISER-Stan/Cam Schl Dist, Special Dist, improved & less than 1 acre | Land Use Code | 11 |
| Open Space: | N | DFL | N |
| Historic Property: | N | Remodel Property: | N |
| Multi-Family Redevelopment: | N | | |
| Township: | 31 | Section: | 33 |
| Range: | R3 |
Location |
| Address: | 927 PORT SUSAN TERRACE RD CAMANO ISLAND, WA 98282 | Mapsco: | |
| Neighborhood: | Cycle 5 | Map ID: | 949 |
| Neighborhood CD: | 5 |
Owner |
| Name: | WAND, ANDREW | Owner ID: | 299023 |
| Mailing Address: | DANIELLE DIXON 7419 134TH AVE SE NEW CASTLE, WA 98059 | % Ownership: | 100.0000000000% |
| | | Exemptions: | |
Taxes and Assessment Details
Values
| (+) Improvement Homesite Value: | + | $0 | |
| (+) Improvement Non-Homesite Value: | + | $674,040 | |
| (+) Land Homesite Value: | + | $0 | |
| (+) Land Non-Homesite Value: | + | $775,650 | |
| (+) Curr Use (HS): | + | $0 | $0 |
| (+) Curr Use (NHS): | + | $0 | $0 |
| | | -------------------------- | |
| (=) Market Value: | = | $1,449,690 | |
| (–) Productivity Loss: | – | $0 | |
| | | -------------------------- | |
| (=) Subtotal: | = | $1,449,690 | |
| (+) Senior Appraised Value: | + | $0 | |
| (+) Non-Senior Appraised Value: | + | $1,449,690 | |
| | | -------------------------- | |
| (=) Total Appraised Value: | = | $1,449,690 | |
| (–) Senior Exemption Loss: | – | $0 | |
| (–) Exemption Loss: | – | $0 | |
| | | -------------------------- | |
| (=) Taxable Value: | = | $1,449,690 | |
Taxing Jurisdiction
| Owner: | WAND, ANDREW | | |
| % Ownership: | 100.0000000000% | | |
| Total Value: | $1,449,690 | | |
| Tax Area: | 540 - APPRAISER-Stan/Cam Schl Dist, Special Dist, improved & less than 1 acre |
| CF | Conservation Futures | 0.0316035091 | $1,449,690 | $1,449,690 | $45.82 | | |
| EMS1 | Fire & Rescue Dist #1 Camano GEN (EMS) | 0.3677864386 | $1,449,690 | $1,449,690 | $533.18 | | |
| FIRE1 | Fire & Rescue Dist #1 Camano GEN | 1.2502910536 | $1,449,690 | $1,449,690 | $1,812.53 | | |
| FIRE1BOND | Fire & Rescue Dist #1 Camano BOND | 0.1570001679 | $1,449,690 | $1,449,690 | $227.60 | | |
| CE | County Current Expense | 0.3708482477 | $1,449,690 | $1,449,690 | $537.61 | | |
| CR | County Roads | 0.4584763726 | $1,449,690 | $1,449,690 | $664.65 | | |
| LCIB | Library Sno-Isle BOND (Camano Island) | 0.0396325772 | $1,449,690 | $1,449,690 | $57.45 | | |
| LIB | Library Sno-Isle GEN | 0.3153421757 | $1,449,690 | $1,449,690 | $457.15 | | |
| SCH205_401 | School 205-401 Enrichment | 1.2698420524 | $1,449,690 | $1,449,690 | $1,840.88 | | |
| SCH205BOND | School 205-401 BOND | 0.9396497583 | $1,449,690 | $1,449,690 | $1,362.20 | | |
| ST | State School | 1.3035497053 | $1,449,690 | $1,449,690 | $1,889.74 | | |
| ST2 | State School Part 2 | 0.8169543533 | $1,449,690 | $1,449,690 | $1,184.33 | | |
| | Total Tax Rate: | 7.3209764117 | | | | | |
| | | | | Taxes w/Current Exemptions: | $10,613.14 | | |
| | | | | Taxes w/o Exemptions: | $10,613.14 | | |
Improvement / Building
| Improvement #1: | RESIDENTIAL | State Code: | Y | 1767.5 sqft | Value: | $674,040 |
| Bathrooms: | 2.5 | Bedrooms: | 3 | | Ceiling: | TONGUE & GROOVE | Exterior Wall/Cover: | SHINGLE | | Floor Covering: | SOFTWOOD 100% | Floor Structure: | WOOD W/SUBFLOOR | | Foundation: | CONCRETE | Heating: | FHA GAS | | Interior Finish: | DRYWALL PAINT | Plumbing Fixture Cnt: | 13 | | Roof Slope: | 5" IN 12" | Roof Structure/Cover: | STEEL TERNE |
|
| | Type | Description | Class CD | Sub Class CD | Year Built | Area |
| | BAS | BASE/MAIN FLOOR | 5 | 0 | 1997 | 1767.5 |
| | OP1 | OPEN PORCH SLAB | 5 | 0 | 1997 | 652.0 |
| | OP3 | OPEN PORCH W/ROOF | 5 | 0 | 1997 | 89.2 |
| | AGR | ATTACHED GARAGE | 5 | 0 | 1997 | 670.4 |
| | OWP | OPEN WOOD PORCH W/STEPS | 5 | 0 | 1997 | 422.4 |
| | OWP | OPEN WOOD PORCH W/STEPS | 5 | 0 | 1997 | 596.5 |
| | OWR | OPEN WOOD PORCH W/STEPS/ROOF | 5 | 0 | 1997 | 216.0 |
Sketch
Property Image
Land
| 1 | LB | LOW BANK | 0.1900 | 8276.40 | 65.00 | 0.00 | 1.00 | $775,000 | $0 |
| 2 | 55 | TIDES | 0.0000 | 0.00 | 65.00 | 0.00 | 1.00 | $650 | $0 |
Roll Value History
| 2026 | N/A | N/A | N/A | N/A | N/A |
| 2025 | $674,040 | $775,650 | $0 | $1,449,690 | $1,449,690 |
| 2024 | $681,765 | $775,650 | $0 | $1,457,415 | $1,457,415 |
| 2023 | $689,491 | $775,650 | $0 | $1,465,141 | $1,465,141 |
| 2022 | $629,588 | $750,650 | $0 | $1,380,238 | $1,380,238 |
| 2021 | $556,499 | $500,650 | $0 | $1,057,149 | $1,057,149 |
| 2020 | $538,636 | $435,650 | $0 | $974,286 | $974,286 |
| 2019 | $419,463 | $450,650 | $0 | $870,113 | $870,113 |
| 2018 | $420,587 | $425,650 | $0 | $846,237 | $846,237 |
| 2017 | $369,596 | $350,650 | $0 | $720,246 | $720,246 |
| 2016 | $374,049 | $350,650 | $0 | $724,699 | $724,699 |
| 2015 | $388,318 | $350,650 | $0 | $738,968 | $738,968 |
| 2014 | $392,939 | $350,650 | $0 | $743,589 | $743,589 |
| 2013 | $397,558 | $334,704 | $0 | $732,262 | $732,262 |
| 2012 | $402,179 | $334,704 | $0 | $736,883 | $736,883 |
| 2011 | $406,801 | $418,217 | $0 | $825,018 | $825,018 |
| 2010 | $417,601 | $418,217 | $0 | $835,818 | $835,818 |
| 2009 | $422,764 | $451,026 | $0 | $873,790 | $873,790 |
| 2008 | $427,745 | $451,026 | $0 | $878,771 | $878,771 |
| 2007 | $432,719 | $450,571 | $0 | $883,290 | $883,290 |
Deed and Sales History
| 1 | 04/19/2021 | WD | Warranty Deed | CARKONEN, NICHOLAS M | WAND, ANDREW | | | $1,755,000.00 | 47927 | 4517309 |
| 2 | 08/22/2017 | WD | Warranty Deed | GANGON, MAGE | CARKONEN, NICHOLAS M | | | $835,000.00 | 30828 | 4429027 |
| 3 | 10/21/2016 | TRUSTEED | Trustee's Deed | VOWELS, GARY H | GANGON, MAGE | | | $492,001.00 | 26693 | 4410264 |
| 4 | 07/14/2004 | DECREE | Divorce Decree/Legal Separation | VOWELS, GARY H | VOWELS, GARY H | | | $0.00 | 43158 | 4106837 |
| 5 | 11/01/1996 | WD | Warranty Deed | RUST, SAMMUEL M | VOWELS, GARY H | | | $200,000.00 | 64249 | 96020755 |
| 6 | 10/01/1996 | BLA | DNU - Boundary Line Adjustment | RUST, SAMMUEL M | RUST, SAMMUEL M | | | $0.00 | 67163 | 96018200 |
Payout Agreement
| No payout information available.. |