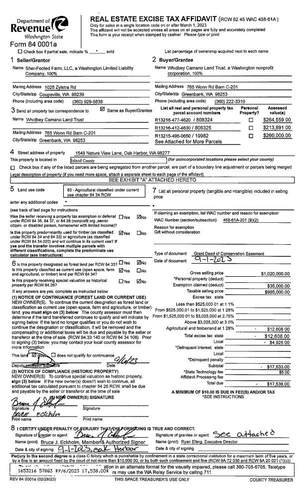
Property
Account |
| Property ID: | 160514 | Abbreviated Legal Description: | 24 - S/2 W/2 W/2 NW SE SUB EZ W60' & N30' |
| Geographic ID: | R33217-165-2850 | Agent Code: | |
| Type: | Real | | |
| Tax Area: | 512 - APPRAISER-Stan/Cam Schl Dist, improved, greater than 1 acre | Land Use Code | 11 |
| Open Space: | N | DFL | N |
| Historic Property: | N | Remodel Property: | N |
| Multi-Family Redevelopment: | N | | |
| Township: | 32 | Section: | 17 |
| Range: | R3 |
Location |
| Address: | 1320 AVALLON LN CAMANO ISLAND, WA 98282 | Mapsco: | |
| Neighborhood: | North Camano | Map ID: | 954 |
| Neighborhood CD: | 06-C |
Owner |
| Name: | LAND, JOHN P & SUSAN L | Owner ID: | 60790 |
| Mailing Address: | 1320 AVALLON DR CAMANO ISLAND, WA 98282-5510 | % Ownership: | 100.0000000000% |
| | | Exemptions: | |
Taxes and Assessment Details
Values
| (+) Improvement Homesite Value: | + | $0 | |
| (+) Improvement Non-Homesite Value: | + | $624,327 | |
| (+) Land Homesite Value: | + | $0 | |
| (+) Land Non-Homesite Value: | + | $380,000 | |
| (+) Curr Use (HS): | + | $0 | $0 |
| (+) Curr Use (NHS): | + | $0 | $0 |
| | | -------------------------- | |
| (=) Market Value: | = | $1,004,327 | |
| (–) Productivity Loss: | – | $0 | |
| | | -------------------------- | |
| (=) Subtotal: | = | $1,004,327 | |
| (+) Senior Appraised Value: | + | $0 | |
| (+) Non-Senior Appraised Value: | + | $1,004,327 | |
| | | -------------------------- | |
| (=) Total Appraised Value: | = | $1,004,327 | |
| (–) Senior Exemption Loss: | – | $0 | |
| (–) Exemption Loss: | – | $0 | |
| | | -------------------------- | |
| (=) Taxable Value: | = | $1,004,327 | |
Taxing Jurisdiction
| Owner: | LAND, JOHN P & SUSAN L | | |
| % Ownership: | 100.0000000000% | | |
| Total Value: | $1,004,327 | | |
| Tax Area: | 512 - APPRAISER-Stan/Cam Schl Dist, improved, greater than 1 acre |
| CF | Conservation Futures | 0.0316035091 | $1,004,327 | $1,004,327 | $31.74 | | |
| EMS1 | Fire & Rescue Dist #1 Camano GEN (EMS) | 0.3677864386 | $1,004,327 | $1,004,327 | $369.38 | | |
| FIRE1 | Fire & Rescue Dist #1 Camano GEN | 1.2502910536 | $1,004,327 | $1,004,327 | $1,255.70 | | |
| FIRE1BOND | Fire & Rescue Dist #1 Camano BOND | 0.1570001679 | $1,004,327 | $1,004,327 | $157.68 | | |
| CE | County Current Expense | 0.3708482477 | $1,004,327 | $1,004,327 | $372.45 | | |
| CR | County Roads | 0.4584763726 | $1,004,327 | $1,004,327 | $460.46 | | |
| LCIB | Library Sno-Isle BOND (Camano Island) | 0.0396325772 | $1,004,327 | $1,004,327 | $39.80 | | |
| LIB | Library Sno-Isle GEN | 0.3153421757 | $1,004,327 | $1,004,327 | $316.71 | | |
| SCH205_401 | School 205-401 Enrichment | 1.2698420524 | $1,004,327 | $1,004,327 | $1,275.34 | | |
| SCH205BOND | School 205-401 BOND | 0.9396497583 | $1,004,327 | $1,004,327 | $943.72 | | |
| ST | State School | 1.3035497053 | $1,004,327 | $1,004,327 | $1,309.19 | | |
| ST2 | State School Part 2 | 0.8169543533 | $1,004,327 | $1,004,327 | $820.49 | | |
| | Total Tax Rate: | 7.3209764117 | | | | | |
| | | | | Taxes w/Current Exemptions: | $7,352.66 | | |
| | | | | Taxes w/o Exemptions: | $7,352.66 | | |
Improvement / Building
| Improvement #1: | RESIDENTIAL | State Code: | Y | 3851.0 sqft | Value: | $624,327 |
| Bathrooms: | 3 | Bedrooms: | 3 | | Ceiling: | DRYWALL PAINTED | Exterior Wall/Cover: | SHINGLE | | Floor Covering: | HARDWOOD/CARP 20-80 | Floor Structure: | WOOD W/SUBFLOOR | | Foundation: | CONCRETE | Heating: | FHA GAS | | Interior Finish: | DRYWALL PAINT | Plumbing Fixture Cnt: | 17 | | Roof Slope: | 5" IN 12" | Roof Structure/Cover: | CJ ASPHALT |
|
| | Type | Description | Class CD | Sub Class CD | Year Built | Area |
| | BAS | BASE/MAIN FLOOR | 4 | 0 | 1996 | 1858.0 |
| | OP4 | OPEN PORCH W/CEILING-ROOF | 4 | 0 | 1996 | 84.0 |
| | OP4 | OPEN PORCH W/CEILING-ROOF | 4 | 0 | 1996 | 64.0 |
| | OP4 | OPEN PORCH W/CEILING-ROOF | 4 | 0 | 1996 | 76.0 |
| | OP4 | OPEN PORCH W/CEILING-ROOF | 4 | 0 | 1996 | 304.0 |
| | DGR | DETACHED GARAGE | 4 | 0 | 1996 | 988.0 |
| | UPS | UPPER STORY | 4 | 0 | 1996 | 1257.0 |
| | OWC | OPEN WOOD PORCH W/STEPS/ROOF/C | 4 | 0 | 1996 | 45.0 |
| | LOF | LOFT | 4 | 0 | 1996 | 448.0 |
| | DGR | DETACHED GARAGE | 4 | 0 | 1996 | 768.0 |
| | LOF | LOFT | 4 | 0 | 1996 | 288.0 |
Sketch
Property Image
Land
| 1 | 32 | AC (03.01-09.99) | 5.0000 | 0.00 | 0.00 | 0.00 | 1.00 | $380,000 | $0 |
Roll Value History
| 2026 | N/A | N/A | N/A | N/A | N/A |
| 2025 | $624,327 | $380,000 | $0 | $1,004,327 | $1,004,327 |
| 2024 | $631,737 | $390,000 | $0 | $1,021,737 | $1,021,737 |
| 2023 | $639,147 | $380,000 | $0 | $1,019,147 | $1,019,147 |
| 2022 | $565,335 | $350,000 | $0 | $915,335 | $915,335 |
| 2021 | $497,444 | $240,000 | $0 | $737,444 | $737,444 |
| 2020 | $485,343 | $200,000 | $0 | $685,343 | $685,343 |
| 2019 | $397,449 | $240,000 | $0 | $637,449 | $637,449 |
| 2018 | $398,590 | $190,000 | $0 | $588,590 | $588,590 |
| 2017 | $400,865 | $170,000 | $0 | $570,865 | $570,865 |
| 2016 | $395,799 | $135,000 | $0 | $530,799 | $530,799 |
| 2015 | $400,070 | $125,000 | $0 | $525,070 | $525,070 |
| 2014 | $404,342 | $125,000 | $0 | $529,342 | $529,342 |
| 2013 | $408,610 | $120,000 | $0 | $528,610 | $528,610 |
| 2012 | $412,881 | $140,000 | $0 | $552,881 | $552,881 |
| 2011 | $417,152 | $175,000 | $0 | $592,152 | $592,152 |
| 2010 | $452,271 | $175,000 | $0 | $627,271 | $627,271 |
| 2009 | $471,137 | $225,000 | $0 | $696,137 | $696,137 |
| 2008 | $476,822 | $185,000 | $0 | $661,822 | $661,822 |
| 2007 | $482,489 | $185,000 | $0 | $667,489 | $667,489 |
Deed and Sales History
| 1 | 06/01/1996 | WD | Warranty Deed | MEYER, STANTON J | LAND, JOHN P | | | $70,000.00 | 62081 | 96010362 |
| 2 | 06/01/1991 | WD | Warranty Deed | JOHNSON, PETER W | MEYER, STANTON J | | | $15,400.00 | 12256 | 91009674 |
| 3 | 09/01/1990 | TRUSTEED | Trustee's Deed | JOHNSON, NATALIE F | JOHNSON, PETER W | | | $0.00 | 5214 | 90017383 |
| 4 | 12/01/1987 | WD | Warranty Deed | KOBA, ROBERT M | JOHNSON, NATALIE F | | | $0.00 | 73861 | 87016749 |
| 5 | 11/01/1987 | WD | Warranty Deed | JOHNSON, NATALIE F | KOBA, ROBERT M | | | $12,500.00 | 80029 | 88000124 |
| 6 | 09/01/1981 | CD | DNU - Correction Deed | JOHNSON, NATALIE F | JOHNSON, NATALIE F | | | $1.00 | 12842 | 387805 |
| 7 | 09/01/1981 | EZ | Easement | JOHNSON, NATALIE F | JOHNSON, NATALIE F | | | $0.00 | 60273 | 387798 |
| 8 | 01/01/1900 | OTHER | Other - Misc. Documents | Unknown | JOHNSON, NATALIE F | | | $0.00 | 0 | 0 |
Payout Agreement
| No payout information available.. |