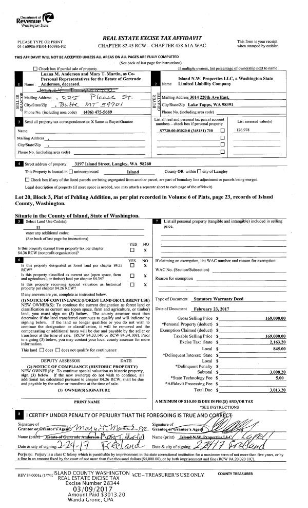
Property
Account |
| Property ID: | 160532 | Abbreviated Legal Description: | 22 - S/2 W/2 E/2 NW SE SUB EZ N30' |
| Geographic ID: | R33217-165-3510 | Agent Code: | |
| Type: | Real | | |
| Tax Area: | 512 - APPRAISER-Stan/Cam Schl Dist, improved, greater than 1 acre | Land Use Code | 11 |
| Open Space: | N | DFL | N |
| Historic Property: | N | Remodel Property: | N |
| Multi-Family Redevelopment: | N | | |
| Township: | 32 | Section: | 17 |
| Range: | R3 |
Location |
| Address: | 656 CHINOOK CT CAMANO ISLAND, WA 98282 | Mapsco: | |
| Neighborhood: | North Camano | Map ID: | 954 |
| Neighborhood CD: | 06-C |
Owner |
| Name: | BODLE, TOM R | Owner ID: | 261175 |
| Mailing Address: | MARION C BODLE 656 CHINOOK COURT CAMANO ISLAND, WA 98282 | % Ownership: | 100.0000000000% |
| | | Exemptions: | |
Taxes and Assessment Details
Values
| (+) Improvement Homesite Value: | + | $0 | |
| (+) Improvement Non-Homesite Value: | + | $405,779 | |
| (+) Land Homesite Value: | + | $0 | |
| (+) Land Non-Homesite Value: | + | $380,000 | |
| (+) Curr Use (HS): | + | $0 | $0 |
| (+) Curr Use (NHS): | + | $0 | $0 |
| | | -------------------------- | |
| (=) Market Value: | = | $785,779 | |
| (–) Productivity Loss: | – | $0 | |
| | | -------------------------- | |
| (=) Subtotal: | = | $785,779 | |
| (+) Senior Appraised Value: | + | $0 | |
| (+) Non-Senior Appraised Value: | + | $785,779 | |
| | | -------------------------- | |
| (=) Total Appraised Value: | = | $785,779 | |
| (–) Senior Exemption Loss: | – | $0 | |
| (–) Exemption Loss: | – | $0 | |
| | | -------------------------- | |
| (=) Taxable Value: | = | $785,779 | |
Taxing Jurisdiction
| Owner: | BODLE, TOM R | | |
| % Ownership: | 100.0000000000% | | |
| Total Value: | $785,779 | | |
| Tax Area: | 512 - APPRAISER-Stan/Cam Schl Dist, improved, greater than 1 acre |
| CF | Conservation Futures | 0.0316035091 | $785,779 | $785,779 | $24.83 | | |
| EMS1 | Fire & Rescue Dist #1 Camano GEN (EMS) | 0.3677864386 | $785,779 | $785,779 | $289.00 | | |
| FIRE1 | Fire & Rescue Dist #1 Camano GEN | 1.2502910536 | $785,779 | $785,779 | $982.45 | | |
| FIRE1BOND | Fire & Rescue Dist #1 Camano BOND | 0.1570001679 | $785,779 | $785,779 | $123.37 | | |
| CE | County Current Expense | 0.3708482477 | $785,779 | $785,779 | $291.40 | | |
| CR | County Roads | 0.4584763726 | $785,779 | $785,779 | $360.26 | | |
| LCIB | Library Sno-Isle BOND (Camano Island) | 0.0396325772 | $785,779 | $785,779 | $31.14 | | |
| LIB | Library Sno-Isle GEN | 0.3153421757 | $785,779 | $785,779 | $247.79 | | |
| SCH205_401 | School 205-401 Enrichment | 1.2698420524 | $785,779 | $785,779 | $997.82 | | |
| SCH205BOND | School 205-401 BOND | 0.9396497583 | $785,779 | $785,779 | $738.36 | | |
| ST | State School | 1.3035497053 | $785,779 | $785,779 | $1,024.30 | | |
| ST2 | State School Part 2 | 0.8169543533 | $785,779 | $785,779 | $641.95 | | |
| | Total Tax Rate: | 7.3209764117 | | | | | |
| | | | | Taxes w/Current Exemptions: | $5,752.67 | | |
| | | | | Taxes w/o Exemptions: | $5,752.67 | | |
Improvement / Building
| Improvement #1: | RESIDENTIAL | State Code: | Y | 2541.0 sqft | Value: | $405,779 |
| Bathrooms: | 3 | Bedrooms: | 4 | | Ceiling: | DRYWALL PAINTED | Exterior Wall/Cover: | WOOD SIDING | | Floor Covering: | CARPET/VINYL 80-20 | Floor Structure: | WOOD W/SUBFLOOR | | Foundation: | CONCRETE | Heating: | FHA GAS | | Interior Finish: | DRYWALL PAINT | Plumbing Fixture Cnt: | 14 | | Roof Slope: | 6" IN 12" | Roof Structure/Cover: | CJ ASPHALT |
|
| | Type | Description | Class CD | Sub Class CD | Year Built | Area |
| | BAS | BASE/MAIN FLOOR | 3 | 0 | 1994 | 2066.0 |
| | OP4 | OPEN PORCH W/CEILING-ROOF | 3 | 0 | 1994 | 35.0 |
| | UPS | UPPER STORY | 3 | 0 | 1994 | 475.0 |
| | BAW | BALCONY WOOD RAIL | 3 | 0 | 1994 | 48.0 |
| | OWP | OPEN WOOD PORCH W/STEPS | 3 | 0 | 1994 | 390.0 |
| | DGR | DETACHED GARAGE | 3 | 0 | 1994 | 864.0 |
Sketch
Property Image
Land
| 1 | 32 | AC (03.01-09.99) | 5.0000 | 0.00 | 0.00 | 0.00 | 1.00 | $380,000 | $0 |
Roll Value History
| 2026 | N/A | N/A | N/A | N/A | N/A |
| 2025 | $405,779 | $380,000 | $0 | $785,779 | $785,779 |
| 2024 | $410,834 | $390,000 | $0 | $800,834 | $800,834 |
| 2023 | $415,891 | $380,000 | $0 | $795,891 | $795,891 |
| 2022 | $367,434 | $350,000 | $0 | $717,434 | $717,434 |
| 2021 | $323,491 | $240,000 | $0 | $563,491 | $563,491 |
| 2020 | $315,487 | $200,000 | $0 | $515,487 | $515,487 |
| 2019 | $243,955 | $240,000 | $0 | $483,955 | $483,955 |
| 2018 | $244,687 | $190,000 | $0 | $434,687 | $434,687 |
| 2017 | $246,152 | $170,000 | $0 | $416,152 | $416,152 |
| 2016 | $245,822 | $135,000 | $0 | $380,822 | $380,822 |
| 2015 | $248,857 | $125,000 | $0 | $373,857 | $373,857 |
| 2014 | $251,893 | $125,000 | $0 | $376,893 | $376,893 |
| 2013 | $254,928 | $120,000 | $0 | $374,928 | $374,928 |
| 2012 | $257,963 | $140,000 | $0 | $397,963 | $397,963 |
| 2011 | $260,998 | $175,000 | $0 | $435,998 | $435,998 |
| 2010 | $300,024 | $175,000 | $0 | $475,024 | $475,024 |
| 2009 | $312,472 | $225,000 | $0 | $537,472 | $537,472 |
| 2008 | $316,495 | $185,000 | $0 | $501,495 | $501,495 |
| 2007 | $320,555 | $185,000 | $0 | $505,555 | $505,555 |
Deed and Sales History
| 1 | 04/05/2000 | WD | Warranty Deed | ANDERSON, HERBERT E | BODLE, TOM R | | | $335,000.00 | 1363 | 20006701 |
| 2 | 02/01/1990 | WD | Warranty Deed | CONNORS, JAMES J | ANDERSON, HERBERT E | | | $29,000.00 | 790 | 90002585 |
| 3 | 06/01/1982 | TRUSTEED | Trustee's Deed | JOHNSON, NATALIE F | CONNORS, JAMES J | | | $26,000.00 | 21456 | 397479 |
| 4 | 09/01/1981 | CD | DNU - Correction Deed | CONNORS, JAMES J | JOHNSON, NATALIE F | | | $1.00 | 12841 | 387806 |
| 5 | 09/01/1981 | EZ | Easement | JOHNSON, NATALIE F | CONNORS, JAMES J | | | $0.00 | 60274 | 387796 |
| 6 | 01/01/1900 | OTHER | Other - Misc. Documents | Unknown | JOHNSON, NATALIE F | | | $0.00 | 0 | 0 |
Payout Agreement
| No payout information available.. |