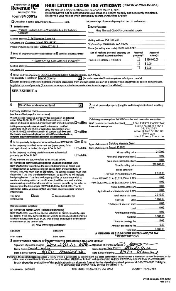
Property
Account |
| Property ID: | 160890 | Abbreviated Legal Description: | 39 - W/2 W/2 SE SE LY N OF UTSALADY RD EX N760' EX PT LY E OF WLN OLSEN RD TGW EZ |
| Geographic ID: | R33218-031-4020 | Agent Code: | |
| Type: | Real | | |
| Tax Area: | 512 - APPRAISER-Stan/Cam Schl Dist, improved, greater than 1 acre | Land Use Code | 11 |
| Open Space: | N | DFL | N |
| Historic Property: | N | Remodel Property: | N |
| Multi-Family Redevelopment: | N | | |
| Township: | 32 | Section: | 18 |
| Range: | R3 |
Location |
| Address: | 1223 OLSEN RD CAMANO ISLAND, WA 98282 | Mapsco: | |
| Neighborhood: | North Camano | Map ID: | 958 |
| Neighborhood CD: | 06-C |
Owner |
| Name: | RINDAL, CURT | Owner ID: | 295584 |
| Mailing Address: | TRACY RINDAL 1223 OLSEN RD CAMANO ISLAND, WA 98282 | % Ownership: | 100.0000000000% |
| | | Exemptions: | |
Taxes and Assessment Details
Values
| (+) Improvement Homesite Value: | + | $0 | |
| (+) Improvement Non-Homesite Value: | + | $326,383 | |
| (+) Land Homesite Value: | + | $0 | |
| (+) Land Non-Homesite Value: | + | $340,000 | |
| (+) Curr Use (HS): | + | $0 | $0 |
| (+) Curr Use (NHS): | + | $0 | $0 |
| | | -------------------------- | |
| (=) Market Value: | = | $666,383 | |
| (–) Productivity Loss: | – | $0 | |
| | | -------------------------- | |
| (=) Subtotal: | = | $666,383 | |
| (+) Senior Appraised Value: | + | $0 | |
| (+) Non-Senior Appraised Value: | + | $666,383 | |
| | | -------------------------- | |
| (=) Total Appraised Value: | = | $666,383 | |
| (–) Senior Exemption Loss: | – | $0 | |
| (–) Exemption Loss: | – | $0 | |
| | | -------------------------- | |
| (=) Taxable Value: | = | $666,383 | |
Taxing Jurisdiction
| Owner: | RINDAL, CURT | | |
| % Ownership: | 100.0000000000% | | |
| Total Value: | $666,383 | | |
| Tax Area: | 512 - APPRAISER-Stan/Cam Schl Dist, improved, greater than 1 acre |
| CF | Conservation Futures | 0.0316035091 | $666,383 | $666,383 | $21.06 | | |
| EMS1 | Fire & Rescue Dist #1 Camano GEN (EMS) | 0.3677864386 | $666,383 | $666,383 | $245.09 | | |
| FIRE1 | Fire & Rescue Dist #1 Camano GEN | 1.2502910536 | $666,383 | $666,383 | $833.17 | | |
| FIRE1BOND | Fire & Rescue Dist #1 Camano BOND | 0.1570001679 | $666,383 | $666,383 | $104.62 | | |
| CE | County Current Expense | 0.3708482477 | $666,383 | $666,383 | $247.13 | | |
| CR | County Roads | 0.4584763726 | $666,383 | $666,383 | $305.52 | | |
| LCIB | Library Sno-Isle BOND (Camano Island) | 0.0396325772 | $666,383 | $666,383 | $26.41 | | |
| LIB | Library Sno-Isle GEN | 0.3153421757 | $666,383 | $666,383 | $210.14 | | |
| SCH205_401 | School 205-401 Enrichment | 1.2698420524 | $666,383 | $666,383 | $846.20 | | |
| SCH205BOND | School 205-401 BOND | 0.9396497583 | $666,383 | $666,383 | $626.17 | | |
| ST | State School | 1.3035497053 | $666,383 | $666,383 | $868.66 | | |
| ST2 | State School Part 2 | 0.8169543533 | $666,383 | $666,383 | $544.40 | | |
| | Total Tax Rate: | 7.3209764117 | | | | | |
| | | | | Taxes w/Current Exemptions: | $4,878.57 | | |
| | | | | Taxes w/o Exemptions: | $4,878.57 | | |
Improvement / Building
| Improvement #1: | RESIDENTIAL | State Code: | Y | 3864.0 sqft | Value: | $326,383 |
| Bathrooms: | 3 | Bedrooms: | 4 | | Ceiling: | DRYWALL PAINTED | Cooling: | HEAT PUMP/CONV/V | | Exterior Wall/Cover: | CEMENT FIBER | Floor Covering: | HARDWOOD/CARP 20-80 | | Floor Structure: | WOOD W/SUBFLOOR | Foundation: | CONCRETE | | Interior Finish: | DRYWALL PAINT | Plumbing Fixture Cnt: | 12 | | Roof Slope: | 6" IN 12" | Roof Structure/Cover: | CJ ASPHALT |
|
| | Type | Description | Class CD | Sub Class CD | Year Built | Area |
| | BAS | BASE/MAIN FLOOR | 3 | 0 | 2018 | 2280.0 |
| | UPS | UPPER STORY | 3 | 0 | 2018 | 1584.0 |
| | OWP | OPEN WOOD PORCH W/STEPS | 3 | 0 | 2018 | 176.0 |
| | AGR | ATTACHED GARAGE | 3 | 0 | 2018 | 696.0 |
Sketch
Property Image
Land
| 1 | 17 | AC (01.01-02.00) | 0.0000 | 0.00 | 0.00 | 0.00 | 1.00 | $340,000 | $0 |
Roll Value History
| 2026 | N/A | N/A | N/A | N/A | N/A |
| 2025 | $326,383 | $340,000 | $0 | $666,383 | $666,383 |
| 2024 | $329,037 | $330,000 | $0 | $659,037 | $659,037 |
| 2023 | $331,690 | $320,000 | $0 | $651,690 | $651,690 |
| 2022 | $302,742 | $270,000 | $0 | $572,742 | $572,742 |
| 2021 | $265,347 | $230,000 | $0 | $495,347 | $495,347 |
| 2020 | $259,104 | $200,000 | $0 | $459,104 | $459,104 |
| 2019 | $222,552 | $220,000 | $0 | $442,552 | $442,552 |
| 2018 | $35,180 | $120,000 | $0 | $155,180 | $155,180 |
| 2017 | $0 | $120,000 | $0 | $120,000 | $120,000 |
| 2016 | $0 | $90,000 | $0 | $90,000 | $90,000 |
| 2015 | $0 | $100,000 | $0 | $100,000 | $100,000 |
| 2014 | $0 | $100,000 | $0 | $100,000 | $100,000 |
| 2013 | $0 | $100,000 | $0 | $100,000 | $100,000 |
| 2012 | $0 | $100,000 | $0 | $100,000 | $100,000 |
| 2011 | $0 | $125,000 | $0 | $125,000 | $125,000 |
| 2010 | $0 | $125,000 | $0 | $125,000 | $125,000 |
| 2009 | $0 | $150,000 | $0 | $150,000 | $150,000 |
| 2008 | $0 | $150,000 | $0 | $150,000 | $150,000 |
| 2007 | $0 | $100,000 | $0 | $100,000 | $100,000 |
Deed and Sales History
| 1 | 08/07/2020 | WD | Warranty Deed | HIXSON, PAUL | RINDAL, CURT | | | $692,000.00 | 44179 | 4493491 |
| 2 | 09/20/2017 | WD | Warranty Deed | HIXSON, PAUL | HIXSON, PAUL | | | $0.00 | 32358 | 4436174 |
| 3 | 09/20/2017 | WD | Warranty Deed | TORSET, MICHELLE J | HIXSON, PAUL | | | $135,000.00 | 31177 | 4430640 |
| 4 | 06/15/2016 | REC | Real Estate Contract | SHROYER, DAVID | TORSET, MICHELLE J | | | $119,000.00 | 24862 | 4401612 |
|   | |
| 5 | 08/27/2000 | WD | Warranty Deed | SHROYER, DAVID | SHROYER, DAVID | | | $0.00 | 23525 | 4395830 |
| 6 | 08/27/2000 | WD | Warranty Deed | SHROYER, DAVID | SHROYER, DAVID | | | $0.00 | 23524 | 4395829 |
| 7 | 09/01/1993 | WD | Warranty Deed | SHROYER, DONNA F | SHROYER, DAVID & | | | $24,400.00 | 33523 | 93018305 |
| 8 | 08/01/1993 | WD | Warranty Deed | OLSEN, HATTIE R | SHROYER, DONNA F | | | $0.00 | 33522 | 93018304 |
| 9 | 06/01/1982 | PACD | Purchaser's Assignment | OLSEN, ERNEST M | OLSEN, HATTIE R | | | $1.00 | 59500 | 0 |
| 10 | 01/01/1900 | OTHER | Other - Misc. Documents | Unknown | OLSEN, ERNEST M | | | $0.00 | 0 | 0 |
Payout Agreement
| No payout information available.. |