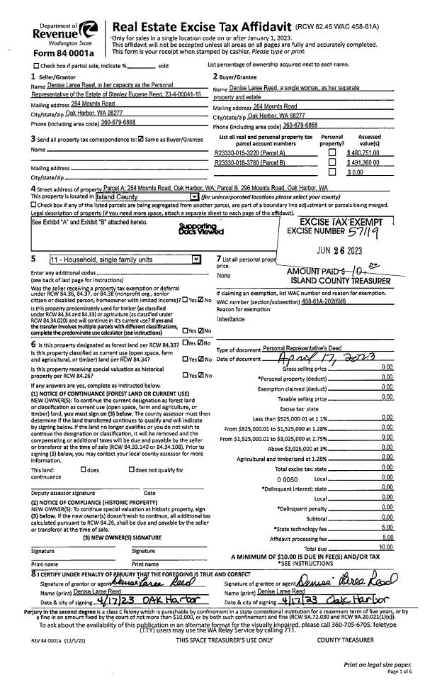
Property
Account |
| Property ID: | 161078 | Abbreviated Legal Description: | 125 - IN GL4:BG 491'W & S606' FR NE CR GL 4 W15' TO WLN RD TPB W265' S194' E265 TO RD N TPB |
| Geographic ID: | R33218-060-3370 | Agent Code: | |
| Type: | Real | | |
| Tax Area: | 512 - APPRAISER-Stan/Cam Schl Dist, improved, greater than 1 acre | Land Use Code | 11 |
| Open Space: | N | DFL | N |
| Historic Property: | N | Remodel Property: | N |
| Multi-Family Redevelopment: | N | | |
| Township: | 32 | Section: | 18 |
| Range: | R3 |
Location |
| Address: | 1249 ARROWHEAD RD CAMANO ISLAND, WA 98282 | Mapsco: | |
| Neighborhood: | North Camano | Map ID: | 957 |
| Neighborhood CD: | 06-C |
Owner |
| Name: | BROWN, STEPHEN C | Owner ID: | 309084 |
| Mailing Address: | 1249 ARROWHEAD RD CAMANO ISLAND, WA 98282 | % Ownership: | 100.0000000000% |
| | | Exemptions: | |
Taxes and Assessment Details
Values
| (+) Improvement Homesite Value: | + | $0 | |
| (+) Improvement Non-Homesite Value: | + | $634,216 | |
| (+) Land Homesite Value: | + | $0 | |
| (+) Land Non-Homesite Value: | + | $300,000 | |
| (+) Curr Use (HS): | + | $0 | $0 |
| (+) Curr Use (NHS): | + | $0 | $0 |
| | | -------------------------- | |
| (=) Market Value: | = | $934,216 | |
| (–) Productivity Loss: | – | $0 | |
| | | -------------------------- | |
| (=) Subtotal: | = | $934,216 | |
| (+) Senior Appraised Value: | + | $0 | |
| (+) Non-Senior Appraised Value: | + | $934,216 | |
| | | -------------------------- | |
| (=) Total Appraised Value: | = | $934,216 | |
| (–) Senior Exemption Loss: | – | $0 | |
| (–) Exemption Loss: | – | $0 | |
| | | -------------------------- | |
| (=) Taxable Value: | = | $934,216 | |
Taxing Jurisdiction
| Owner: | BROWN, STEPHEN C | | |
| % Ownership: | 100.0000000000% | | |
| Total Value: | $934,216 | | |
| Tax Area: | 512 - APPRAISER-Stan/Cam Schl Dist, improved, greater than 1 acre |
| CF | Conservation Futures | 0.0316035091 | $934,216 | $934,216 | $29.52 | | |
| EMS1 | Fire & Rescue Dist #1 Camano GEN (EMS) | 0.3677864386 | $934,216 | $934,216 | $343.59 | | |
| FIRE1 | Fire & Rescue Dist #1 Camano GEN | 1.2502910536 | $934,216 | $934,216 | $1,168.04 | | |
| FIRE1BOND | Fire & Rescue Dist #1 Camano BOND | 0.1570001679 | $934,216 | $934,216 | $146.67 | | |
| CE | County Current Expense | 0.3708482477 | $934,216 | $934,216 | $346.45 | | |
| CR | County Roads | 0.4584763726 | $934,216 | $934,216 | $428.32 | | |
| LCIB | Library Sno-Isle BOND (Camano Island) | 0.0396325772 | $934,216 | $934,216 | $37.03 | | |
| LIB | Library Sno-Isle GEN | 0.3153421757 | $934,216 | $934,216 | $294.60 | | |
| SCH205_401 | School 205-401 Enrichment | 1.2698420524 | $934,216 | $934,216 | $1,186.31 | | |
| SCH205BOND | School 205-401 BOND | 0.9396497583 | $934,216 | $934,216 | $877.84 | | |
| ST | State School | 1.3035497053 | $934,216 | $934,216 | $1,217.80 | | |
| ST2 | State School Part 2 | 0.8169543533 | $934,216 | $934,216 | $763.21 | | |
| | Total Tax Rate: | 7.3209764117 | | | | | |
| | | | | Taxes w/Current Exemptions: | $6,839.38 | | |
| | | | | Taxes w/o Exemptions: | $6,839.38 | | |
Improvement / Building
| Improvement #1: | RESIDENTIAL | State Code: | Y | 3241.0 sqft | Value: | $634,216 |
| Bathrooms: | 2.5 | Bedrooms: | 3 | | Ceiling: | DRYWALL PAINTED | Exterior Wall/Cover: | CEMENT FIBER | | Floor Covering: | CARPET/VINYL 60-40 | Floor Structure: | WOOD W/SUBFLOOR | | Foundation: | CONCRETE | Heating: | FHA GAS | | Interior Finish: | DRYWALL PAINT | Plumbing Fixture Cnt: | 14 | | Roof Slope: | 8" IN 12" | Roof Structure/Cover: | CJ ASPHALT |
|
| | Type | Description | Class CD | Sub Class CD | Year Built | Area |
| | BAS | BASE/MAIN FLOOR | 4 | 0 | 2009 | 2268.0 |
| | UB8 | BASEMENT UNFINISHED 8" | 4 | 0 | 2009 | 1302.0 |
| | BIG | BUILT IN GARAGE | 4 | 0 | 2009 | 966.0 |
| | OWP | OPEN WOOD PORCH W/STEPS | 4 | 0 | 2009 | 224.0 |
| | OWP | OPEN WOOD PORCH W/STEPS | 4 | 0 | 2009 | 252.0 |
| | OWP | OPEN WOOD PORCH W/STEPS | 4 | 0 | 2009 | 32.0 |
| | OWP | OPEN WOOD PORCH W/STEPS | 4 | 0 | 2009 | 81.0 |
| | OWC | OPEN WOOD PORCH W/STEPS/ROOF/C | 4 | 0 | 2009 | 316.0 |
| | OWC | OPEN WOOD PORCH W/STEPS/ROOF/C | 4 | 0 | 2009 | 176.0 |
| | UPH | HALF STORY | 4 | 0 | 2009 | 973.0 |
Sketch
Property Image
Land
| 1 | 17 | AC (01.01-02.00) | 0.0000 | 0.00 | 0.00 | 0.00 | 1.00 | $300,000 | $0 |
Roll Value History
| 2026 | N/A | N/A | N/A | N/A | N/A |
| 2025 | $634,216 | $300,000 | $0 | $934,216 | $934,216 |
| 2024 | $639,548 | $290,000 | $0 | $929,548 | $929,548 |
| 2023 | $645,233 | $290,000 | $0 | $935,233 | $935,233 |
| 2022 | $579,114 | $260,000 | $0 | $839,114 | $839,114 |
| 2021 | $513,363 | $190,000 | $0 | $703,363 | $703,363 |
| 2020 | $498,838 | $150,000 | $0 | $648,838 | $648,838 |
| 2019 | $399,923 | $180,000 | $0 | $579,923 | $579,923 |
| 2018 | $400,995 | $150,000 | $0 | $550,995 | $550,995 |
| 2017 | $400,373 | $120,000 | $0 | $520,373 | $520,373 |
| 2016 | $399,599 | $115,000 | $0 | $514,599 | $514,599 |
| 2015 | $403,897 | $100,000 | $0 | $503,897 | $503,897 |
| 2014 | $408,194 | $100,000 | $0 | $508,194 | $508,194 |
| 2013 | $412,489 | $100,000 | $0 | $512,489 | $512,489 |
| 2012 | $416,786 | $100,000 | $0 | $516,786 | $516,786 |
| 2011 | $421,084 | $125,000 | $0 | $546,084 | $546,084 |
| 2010 | $435,086 | $125,000 | $0 | $560,086 | $560,086 |
| 2009 | $9,596 | $100,000 | $0 | $109,596 | $109,596 |
| 2008 | $1,203 | $100,000 | $0 | $101,203 | $101,203 |
| 2007 | $1,203 | $100,000 | $0 | $101,203 | $101,203 |
Deed and Sales History
| 1 | 06/20/2023 | QCD | Quit Claim Deed | BROWN, STEPHEN C | BROWN, STEPHEN C | | | $0.00 | 57110 | 4561546 |
| 2 | 08/30/2007 | WD | Warranty Deed | COONS, DAWN | BROWN, STEPHEN C | | | $130,000.00 | 72997 | 4210959 |
| 3 | 01/01/1998 | OTHER | Other - Misc. Documents | COONS, EDWIN F | COONS, DAWN | | | $0.00 | 67756 | 95009937 |
| 4 | 05/01/1978 | OTHER | Other - Misc. Documents | Unknown | COONS, EDWIN F | | | $4,200.00 | 82085 | 332482 |
Payout Agreement
| No payout information available.. |