Property
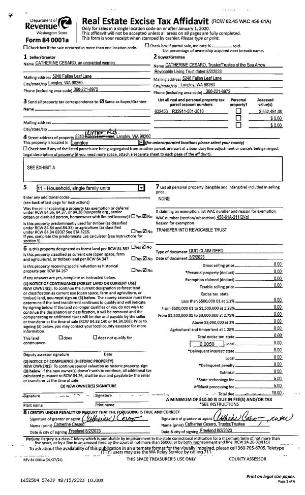
Account |
| Property ID: | 161210 | Abbreviated Legal Description: | 34 - S110' OF N460' OF W/2 W/2 SE SE EX E195' TGW EZ |
| Geographic ID: | R33218-092-4020 | Agent Code: | |
| Type: | Real | | |
| Tax Area: | 510 - APPRAISER-Stan/Cam Schl Dist, improved & 1 acre or less | Land Use Code | 11 |
| Open Space: | N | DFL | N |
| Historic Property: | N | Remodel Property: | N |
| Multi-Family Redevelopment: | N | | |
| Township: | 32 | Section: | 18 |
| Range: | R3 |
Location |
| Address: | 1275 OLSEN RD CAMANO ISLAND, WA 98282 | Mapsco: | |
| Neighborhood: | North Camano | Map ID: | 958 |
| Neighborhood CD: | 06-C |
Owner |
| Name: | MALCOLM, JEFF | Owner ID: | 271435 |
| Mailing Address: | KATHY MALCOLM 1275 OLSEN RD CAMANO ISLAND, WA 98282 | % Ownership: | 100.0000000000% |
| | | Exemptions: | |
Taxes and Assessment Details
Values
| (+) Improvement Homesite Value: | + | $0 | |
| (+) Improvement Non-Homesite Value: | + | $441,971 | |
| (+) Land Homesite Value: | + | $0 | |
| (+) Land Non-Homesite Value: | + | $420,000 | |
| (+) Curr Use (HS): | + | $0 | $0 |
| (+) Curr Use (NHS): | + | $0 | $0 |
| | | -------------------------- | |
| (=) Market Value: | = | $861,971 | |
| (–) Productivity Loss: | – | $0 | |
| | | -------------------------- | |
| (=) Subtotal: | = | $861,971 | |
| (+) Senior Appraised Value: | + | $0 | |
| (+) Non-Senior Appraised Value: | + | $861,971 | |
| | | -------------------------- | |
| (=) Total Appraised Value: | = | $861,971 | |
| (–) Senior Exemption Loss: | – | $0 | |
| (–) Exemption Loss: | – | $0 | |
| | | -------------------------- | |
| (=) Taxable Value: | = | $861,971 | |
Taxing Jurisdiction
| Owner: | MALCOLM, JEFF | | |
| % Ownership: | 100.0000000000% | | |
| Total Value: | $861,971 | | |
| Tax Area: | 510 - APPRAISER-Stan/Cam Schl Dist, improved & 1 acre or less |
| CF | Conservation Futures | 0.0316035091 | $861,971 | $861,971 | $27.24 | | |
| EMS1 | Fire & Rescue Dist #1 Camano GEN (EMS) | 0.3677864386 | $861,971 | $861,971 | $317.02 | | |
| FIRE1 | Fire & Rescue Dist #1 Camano GEN | 1.2502910536 | $861,971 | $861,971 | $1,077.71 | | |
| FIRE1BOND | Fire & Rescue Dist #1 Camano BOND | 0.1570001679 | $861,971 | $861,971 | $135.33 | | |
| CE | County Current Expense | 0.3708482477 | $861,971 | $861,971 | $319.66 | | |
| CR | County Roads | 0.4584763726 | $861,971 | $861,971 | $395.19 | | |
| LCIB | Library Sno-Isle BOND (Camano Island) | 0.0396325772 | $861,971 | $861,971 | $34.16 | | |
| LIB | Library Sno-Isle GEN | 0.3153421757 | $861,971 | $861,971 | $271.82 | | |
| SCH205_401 | School 205-401 Enrichment | 1.2698420524 | $861,971 | $861,971 | $1,094.57 | | |
| SCH205BOND | School 205-401 BOND | 0.9396497583 | $861,971 | $861,971 | $809.95 | | |
| ST | State School | 1.3035497053 | $861,971 | $861,971 | $1,123.62 | | |
| ST2 | State School Part 2 | 0.8169543533 | $861,971 | $861,971 | $704.19 | | |
| | Total Tax Rate: | 7.3209764117 | | | | | |
| | | | | Taxes w/Current Exemptions: | $6,310.46 | | |
| | | | | Taxes w/o Exemptions: | $6,310.46 | | |
Improvement / Building
| Improvement #1: | RESIDENTIAL | State Code: | Y | 1929.5 sqft | Value: | $441,971 |
| Bathrooms: | 2 | Bedrooms: | 3 | | Ceiling: | DRYWALL PAINTED | Cooling: | HEAT PUMP/CONV/V | | Exterior Wall/Cover: | CEMENT FIBER | Floor Covering: | HARDWOOD/CARP 20-80 | | Floor Structure: | WOOD W/SUBFLOOR | Foundation: | CONCRETE | | Interior Finish: | DRYWALL PAINT | Plumbing Fixture Cnt: | 12 | | Roof Slope: | 6" IN 12" | Roof Structure/Cover: | CJ ASPHALT |
|
| | Type | Description | Class CD | Sub Class CD | Year Built | Area |
| | BAS | BASE/MAIN FLOOR | 3 | 0 | 2016 | 1929.5 |
| | UB8 | BASEMENT UNFINISHED 8" | 3 | 0 | 2016 | 874.5 |
| | AGR | ATTACHED GARAGE | 3 | 0 | 2016 | 528.0 |
| | OWP | OPEN WOOD PORCH W/STEPS | 3 | 0 | 2016 | 582.0 |
| | OP4 | OPEN PORCH W/CEILING-ROOF | 3 | 0 | 2016 | 30.0 |
Sketch
Property Image
Land
| 1 | 15 | SQ (12001-21780) | 0.0000 | 0.00 | 0.00 | 0.00 | 1.00 | $420,000 | $0 |
Roll Value History
| 2026 | N/A | N/A | N/A | N/A | N/A |
| 2025 | $441,971 | $420,000 | $0 | $861,971 | $861,971 |
| 2024 | $445,535 | $410,000 | $0 | $855,535 | $855,535 |
| 2023 | $449,100 | $400,000 | $0 | $849,100 | $849,100 |
| 2022 | $400,219 | $360,000 | $0 | $760,219 | $760,219 |
| 2021 | $350,827 | $240,000 | $0 | $590,827 | $590,827 |
| 2020 | $340,389 | $200,000 | $0 | $540,389 | $540,389 |
| 2019 | $260,146 | $250,000 | $0 | $510,146 | $510,146 |
| 2018 | $159,227 | $180,000 | $0 | $339,227 | $339,227 |
| 2017 | $116,751 | $150,000 | $0 | $266,751 | $266,751 |
| 2016 | $46,242 | $120,000 | $0 | $166,242 | $166,242 |
| 2015 | $0 | $100,000 | $0 | $100,000 | $100,000 |
| 2014 | $0 | $100,000 | $0 | $100,000 | $100,000 |
| 2013 | $0 | $100,000 | $0 | $100,000 | $100,000 |
| 2012 | $0 | $100,000 | $0 | $100,000 | $100,000 |
| 2011 | $0 | $125,000 | $0 | $125,000 | $125,000 |
| 2010 | $0 | $125,000 | $0 | $125,000 | $125,000 |
| 2009 | $0 | $150,000 | $0 | $150,000 | $150,000 |
| 2008 | $0 | $150,000 | $0 | $150,000 | $150,000 |
| 2007 | $0 | $150,000 | $0 | $150,000 | $150,000 |
Deed and Sales History
| 1 | 07/01/2015 | WD | Warranty Deed | HAUGEN, MARY M | MALCOLM, JEFF | | | $130,000.00 | 20473 | 4382179 |
| 2 | 12/01/1989 | DECREE | Divorce Decree/Legal Separation | HAUGEN, EDGAR J | HAUGEN, MARY M | | | $0.00 | 1042 | 90003450 |
| 3 | 01/01/1900 | OTHER | Other - Misc. Documents | Unknown | HAUGEN, EDGAR J | | | $0.00 | 0 | 0 |
Payout Agreement
| No payout information available.. |