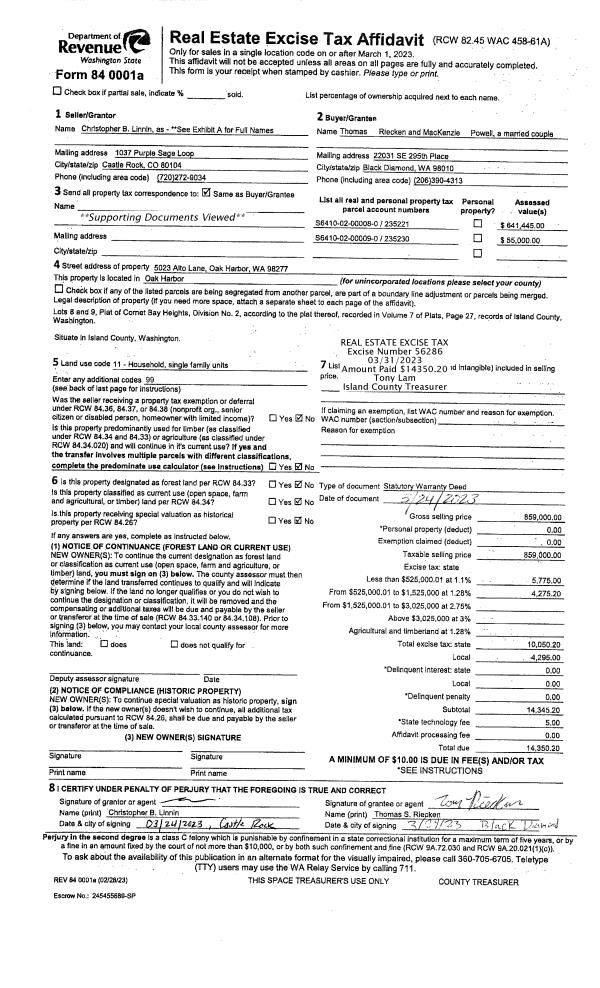
Property
Account |
| Property ID: | 161434 | Abbreviated Legal Description: | 64 - IN GL3: BG INTER SLN GL3 & WLN CO RD SD PT 516'W OF SECR GL3 ALG SD RD N4*W 178.51' TPB N ALG SD RD 47' W PAR/W SLN GL3 780' TO ML SLY ALG ML 50' E TPB INCL ADJ TIDES |
| Geographic ID: | R33218-152-3070 | Agent Code: | |
| Type: | Real | | |
| Tax Area: | 510 - APPRAISER-Stan/Cam Schl Dist, improved & 1 acre or less | Land Use Code | 11 |
| Open Space: | N | DFL | N |
| Historic Property: | N | Remodel Property: | N |
| Multi-Family Redevelopment: | N | | |
| Township: | 32 | Section: | 18 |
| Range: | R3 |
Location |
| Address: | 1315 UP TRAIL LN CAMANO ISLAND, WA 98282 | Mapsco: | |
| Neighborhood: | North Camano | Map ID: | 958 |
| Neighborhood CD: | 06-C |
Owner |
| Name: | FORTIN TTEE, MICHAEL RICHARD | Owner ID: | 307235 |
| Mailing Address: | MARTA ROSARIO FORTIN TTEE 1311 UP TRAIL LN CAMANO ISLAND, WA 98282 | % Ownership: | 100.0000000000% |
| | | Exemptions: | |
Taxes and Assessment Details
Values
| (+) Improvement Homesite Value: | + | $0 | |
| (+) Improvement Non-Homesite Value: | + | $194,268 | |
| (+) Land Homesite Value: | + | $0 | |
| (+) Land Non-Homesite Value: | + | $1,050,500 | |
| (+) Curr Use (HS): | + | $0 | $0 |
| (+) Curr Use (NHS): | + | $0 | $0 |
| | | -------------------------- | |
| (=) Market Value: | = | $1,244,768 | |
| (–) Productivity Loss: | – | $0 | |
| | | -------------------------- | |
| (=) Subtotal: | = | $1,244,768 | |
| (+) Senior Appraised Value: | + | $0 | |
| (+) Non-Senior Appraised Value: | + | $1,244,768 | |
| | | -------------------------- | |
| (=) Total Appraised Value: | = | $1,244,768 | |
| (–) Senior Exemption Loss: | – | $0 | |
| (–) Exemption Loss: | – | $0 | |
| | | -------------------------- | |
| (=) Taxable Value: | = | $1,244,768 | |
Taxing Jurisdiction
| Owner: | FORTIN TTEE, MICHAEL RICHARD | | |
| % Ownership: | 100.0000000000% | | |
| Total Value: | $1,244,768 | | |
| Tax Area: | 510 - APPRAISER-Stan/Cam Schl Dist, improved & 1 acre or less |
| CF | Conservation Futures | 0.0316035091 | $1,244,768 | $1,244,768 | $39.34 | | |
| EMS1 | Fire & Rescue Dist #1 Camano GEN (EMS) | 0.3677864386 | $1,244,768 | $1,244,768 | $457.81 | | |
| FIRE1 | Fire & Rescue Dist #1 Camano GEN | 1.2502910536 | $1,244,768 | $1,244,768 | $1,556.32 | | |
| FIRE1BOND | Fire & Rescue Dist #1 Camano BOND | 0.1570001679 | $1,244,768 | $1,244,768 | $195.43 | | |
| CE | County Current Expense | 0.3708482477 | $1,244,768 | $1,244,768 | $461.62 | | |
| CR | County Roads | 0.4584763726 | $1,244,768 | $1,244,768 | $570.70 | | |
| LCIB | Library Sno-Isle BOND (Camano Island) | 0.0396325772 | $1,244,768 | $1,244,768 | $49.33 | | |
| LIB | Library Sno-Isle GEN | 0.3153421757 | $1,244,768 | $1,244,768 | $392.53 | | |
| SCH205_401 | School 205-401 Enrichment | 1.2698420524 | $1,244,768 | $1,244,768 | $1,580.66 | | |
| SCH205BOND | School 205-401 BOND | 0.9396497583 | $1,244,768 | $1,244,768 | $1,169.65 | | |
| ST | State School | 1.3035497053 | $1,244,768 | $1,244,768 | $1,622.62 | | |
| ST2 | State School Part 2 | 0.8169543533 | $1,244,768 | $1,244,768 | $1,016.92 | | |
| | Total Tax Rate: | 7.3209764117 | | | | | |
| | | | | Taxes w/Current Exemptions: | $9,112.93 | | |
| | | | | Taxes w/o Exemptions: | $9,112.93 | | |
Improvement / Building
| Improvement #1: | RESIDENTIAL | State Code: | Y | 1184.0 sqft | Value: | $194,268 |
| Bathrooms: | 2 | Bedrooms: | 2 | | Ceiling: | DRYWALL PAINTED | Exterior Wall/Cover: | WOOD SIDING | | Floor Covering: | CARPET/VINYL 60-40 | Floor Structure: | WOOD W/SUBFLOOR | | Foundation: | CONCRETE | Heating: | BASEBOARD ELECTRIC | | Interior Finish: | DRYWALL PAINT | Plumbing Fixture Cnt: | 10 | | Roof Slope: | 4" IN 12" | Roof Structure/Cover: | CJ ASPHALT |
|
| | Type | Description | Class CD | Sub Class CD | Year Built | Area |
| | BAS | BASE/MAIN FLOOR | 3 | 0 | 1935 | 884.0 |
| | UPS | UPPER STORY | 3 | 0 | 1935 | 300.0 |
| | OWP | OPEN WOOD PORCH W/STEPS | 3 | 0 | 1935 | 32.0 |
| | OWP | OPEN WOOD PORCH W/STEPS | 3 | 0 | 1935 | 40.0 |
| | OWR | OPEN WOOD PORCH W/STEPS/ROOF | 3 | 0 | 1935 | 56.0 |
| | OWP | OPEN WOOD PORCH W/STEPS | 3 | 0 | 1935 | 120.0 |
Sketch
Property Image
Land
| 1 | LB | LOW BANK | 0.8500 | 37026.00 | 47.00 | 0.00 | 1.00 | $1,050,000 | $0 |
| 2 | 55 | TIDES | 0.0000 | 0.00 | 50.00 | 0.00 | 1.00 | $500 | $0 |
Roll Value History
| 2026 | N/A | N/A | N/A | N/A | N/A |
| 2025 | $194,268 | $1,050,500 | $0 | $1,244,768 | $1,244,768 |
| 2024 | $200,761 | $975,500 | $0 | $1,176,261 | $1,176,261 |
| 2023 | $203,396 | $900,500 | $0 | $1,103,896 | $1,103,896 |
| 2022 | $167,487 | $775,500 | $0 | $942,987 | $942,987 |
| 2021 | $147,710 | $525,500 | $0 | $673,210 | $673,210 |
| 2020 | $143,805 | $500,500 | $0 | $644,305 | $644,305 |
| 2019 | $101,531 | $500,500 | $0 | $602,031 | $602,031 |
| 2018 | $101,877 | $400,500 | $0 | $502,377 | $502,377 |
| 2017 | $101,663 | $400,500 | $0 | $502,163 | $502,163 |
| 2016 | $105,154 | $400,500 | $0 | $505,654 | $505,654 |
| 2015 | $106,595 | $400,500 | $0 | $507,095 | $507,095 |
| 2014 | $108,034 | $400,500 | $0 | $508,534 | $508,534 |
| 2013 | $109,474 | $400,500 | $0 | $509,974 | $509,974 |
| 2012 | $110,916 | $443,379 | $0 | $554,295 | $554,295 |
| 2011 | $112,356 | $466,688 | $0 | $579,044 | $579,044 |
| 2010 | $99,321 | $466,688 | $0 | $566,009 | $566,009 |
| 2009 | $103,727 | $525,739 | $0 | $629,466 | $629,466 |
| 2008 | $94,242 | $635,293 | $0 | $729,535 | $729,535 |
| 2007 | $95,692 | $528,500 | $0 | $624,192 | $624,192 |
Deed and Sales History
| 1 | 12/13/2022 | WD | Warranty Deed | FORTIN, MARTA | FORTIN TTEE, MICHAEL RICHARD | | | $0.00 | 55569 | 4555524 |
| 2 | 05/31/2022 | WD | Warranty Deed | NEWELL JR, THOMAS DALE | FORTIN, MARTA | | | $1,500,000.00 | 53513 | 4546880 |
| 3 | 06/16/2016 | CCOMPROP | Create Community Property | NEWELL, JULIE KRISTINE | NEWELL JR, THOMAS DALE | | | $0.00 | 25287 | 4403452 |
| 4 | 10/01/2015 | QCD | Quit Claim Deed | RADER, SUELLYN J | NEWELL, JULIE KRISTINE | | | $0.00 | 21735 | 4387728 |
| 5 | 02/27/2012 | PRD | Personal Representatives Deed | RADER, LYLE J | RADER, SUELLYN J | | | $0.00 | 7071 | 4311268 |
| 6 | 11/15/2007 | WD | Warranty Deed | EGGLESTON, THOMAS H | RADER, LYLE J | | | $740,000.00 | 73773 | 4216343 |
| 7 | 10/01/1993 | QCD | Quit Claim Deed | EGGLESTON, DOROTHY | EGGLESTON, THOMAS H | | | $0.00 | 41092 | 94006953 |
| 8 | 12/01/1981 | TRUSTEED | Trustee's Deed | ST, JOHN, R | EGGLESTON, DOROTHY | | | $1.00 | 13866 | 391481 |
| 9 | 01/01/1900 | OTHER | Other - Misc. Documents | Unknown | ST, JOHN, R | | | $0.00 | 0 | 0 |
Payout Agreement
| No payout information available.. |