Property
Account |
| Property ID: | 16155 | Abbreviated Legal Description: | 17 - S/2 SW SE TGW & SUB EZ AF#95003122 |
| Geographic ID: | R13208-033-3300 | Agent Code: | |
| Type: | Real | | |
| Tax Area: | 119 - APPRAISER-OH Schl Dist, outside OH, vacant & 50 acres or less | Land Use Code | 83 |
| Open Space: | Y | DFL | N |
| Historic Property: | N | Remodel Property: | N |
| Multi-Family Redevelopment: | N | | |
| Township: | 32 | Section: | 08 |
| Range: | R1 |
Location |
| Address: | | Mapsco: | |
| Neighborhood: | Cycle 1 | Map ID: | 109 |
| Neighborhood CD: | 1 |
Owner |
| Name: | WIRTH, DOUGLAS L | Owner ID: | 70446 |
| Mailing Address: | SHERRY WIRTH BOX 279 OAK HARBOR, WA 98277-0279 | % Ownership: | 100.0000000000% |
| | | Exemptions: | |
Taxes and Assessment Details
Values
| (+) Improvement Homesite Value: | + | $0 | |
| (+) Improvement Non-Homesite Value: | + | $0 | |
| (+) Land Homesite Value: | + | $0 | |
| (+) Land Non-Homesite Value: | + | $0 | |
| (+) Curr Use (HS): | + | $0 | $0 |
| (+) Curr Use (NHS): | + | $280,000 | $7,360 |
| | | -------------------------- | |
| (=) Market Value: | = | $280,000 | |
| (–) Productivity Loss: | – | $272,640 | |
| | | -------------------------- | |
| (=) Subtotal: | = | $7,360 | |
| (+) Senior Appraised Value: | + | $0 | |
| (+) Non-Senior Appraised Value: | + | $7,360 | |
| | | -------------------------- | |
| (=) Total Appraised Value: | = | $7,360 | |
| (–) Senior Exemption Loss: | – | $0 | |
| (–) Exemption Loss: | – | $0 | |
| | | -------------------------- | |
| (=) Taxable Value: | = | $7,360 | |
Taxing Jurisdiction
| Owner: | WIRTH, DOUGLAS L | | |
| % Ownership: | 100.0000000000% | | |
| Total Value: | $280,000 | | |
| Tax Area: | 119 - APPRAISER-OH Schl Dist, outside OH, vacant & 50 acres or less |
| CF | Conservation Futures | 0.0316035091 | $7,360 | $7,360 | $0.23 | | |
| CEM1 | Cemetery #1 | 0.0040320932 | $7,360 | $7,360 | $0.03 | | |
| HOBOND | Hospital BOND | 0.1910887512 | $7,360 | $7,360 | $1.41 | | |
| HOGEN | Hospital GEN | 0.3902502903 | $7,360 | $7,360 | $2.87 | | |
| CE | County Current Expense | 0.3708482477 | $7,360 | $7,360 | $2.73 | | |
| CR | County Roads | 0.4584763726 | $7,360 | $7,360 | $3.37 | | |
| ISLANDEMS | Hospital GEN (EMS) | 0.5000000000 | $7,360 | $7,360 | $3.68 | | |
| LIB | Library Sno-Isle GEN | 0.3153421757 | $7,360 | $7,360 | $2.32 | | |
| NWHIDPRMT | P & R N Whidbey GEN | 0.2004466701 | $7,360 | $7,360 | $1.48 | | |
| SCH201MO | School 201 Enrichment | 1.8559231640 | $7,360 | $7,360 | $13.66 | | |
| ST | State School | 1.3035497053 | $7,360 | $7,360 | $9.59 | | |
| ST2 | State School Part 2 | 0.8169543533 | $7,360 | $7,360 | $6.01 | | |
| | Total Tax Rate: | 6.4385153325 | | | | | |
| | | | | Taxes w/Current Exemptions: | $47.38 | | |
| | | | | Taxes w/o Exemptions: | $47.38 | | |
Improvement / Building
Sketch
| No sketches available for this property. |
Property Image
Land
| 1 | 83 | OPEN AGRICULTURE | 20.0000 | 871200.00 | 0.00 | 0.00 | 1.00 | $280,000 | $7,360 |
Roll Value History
| 2026 | N/A | N/A | N/A | N/A | N/A |
| 2025 | $0 | $280,000 | $7,360 | $7,360 | $7,360 |
| 2024 | $0 | $280,000 | $7,360 | $7,360 | $7,360 |
| 2023 | $0 | $280,000 | $7,360 | $7,360 | $7,360 |
| 2022 | $0 | $260,000 | $7,360 | $7,360 | $7,360 |
| 2021 | $0 | $235,000 | $7,360 | $7,360 | $7,360 |
| 2020 | $0 | $260,000 | $7,360 | $7,360 | $7,360 |
| 2019 | $0 | $260,000 | $7,360 | $7,360 | $7,360 |
| 2018 | $0 | $200,000 | $7,360 | $7,360 | $7,360 |
| 2017 | $0 | $200,000 | $7,360 | $7,360 | $7,360 |
| 2016 | $0 | $200,000 | $7,360 | $7,360 | $7,360 |
| 2015 | $0 | $200,000 | $7,360 | $7,360 | $7,360 |
| 2014 | $0 | $160,000 | $7,360 | $7,360 | $7,360 |
| 2013 | $0 | $170,000 | $7,360 | $7,360 | $7,360 |
| 2012 | $0 | $170,000 | $7,360 | $7,360 | $7,360 |
| 2011 | $0 | $200,000 | $7,360 | $7,360 | $7,360 |
| 2010 | $0 | $200,000 | $7,360 | $7,360 | $7,360 |
| 2009 | $0 | $240,000 | $7,360 | $7,360 | $7,360 |
| 2008 | $0 | $250,000 | $7,360 | $7,360 | $7,360 |
| 2007 | $0 | $210,000 | $7,360 | $7,360 | $7,360 |
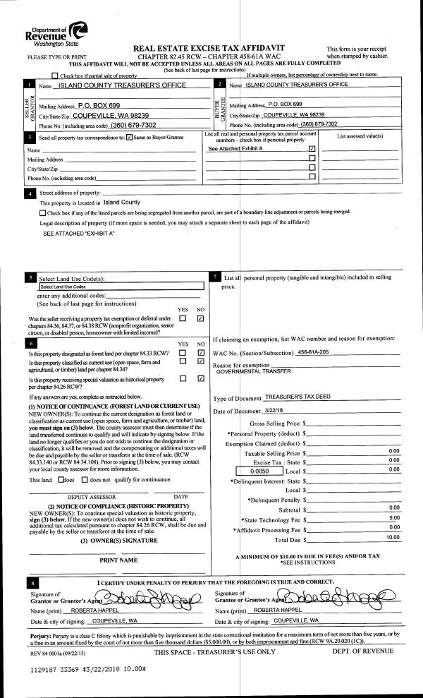
Deed and Sales History
| 1 | 02/01/1995 | WD | Warranty Deed | BOON, CORNELIUS P | WIRTH, DOUGLAS L | | | $0.00 | 50668 | 95003118 |
| 2 | 01/01/1900 | OTHER | Other - Misc. Documents | Unknown | BOON, CORNELIUS P | | | $0.00 | 0 | 0 |
Payout Agreement
| No payout information available.. |