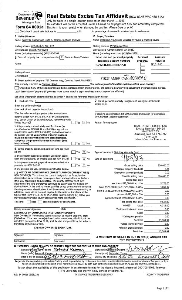
Property
Account |
| Property ID: | 161773 | Abbreviated Legal Description: | 84 - IN GL2: BG NECR GL2 W178.2' S18*W808.25' ALG CO RD TPB N18*E ALG CO RD 59.7' TO SECR FINN TR 59D589 NWLY ALG SLY LN SD FINN TR TO ML SLY ALG ML TP N82*W OF TPB S82*E TPB INCL ADJ TIDELANDS TO MEAN LOW |
| Geographic ID: | R33218-325-3300 | Agent Code: | |
| Type: | Real | | |
| Tax Area: | 510 - APPRAISER-Stan/Cam Schl Dist, improved & 1 acre or less | Land Use Code | 11 |
| Open Space: | N | DFL | N |
| Historic Property: | N | Remodel Property: | N |
| Multi-Family Redevelopment: | N | | |
| Township: | 32 | Section: | 18 |
| Range: | R3 |
Location |
| Address: | 1443 ARROWHEAD RD CAMANO ISLAND, WA 98282 | Mapsco: | |
| Neighborhood: | North Camano | Map ID: | 959 |
| Neighborhood CD: | 06-C |
Owner |
| Name: | JENSEN, STEVEN THOMAS | Owner ID: | 28864 |
| Mailing Address: | 102 NW 171ST ST SHORELINE, WA 98177-3613 | % Ownership: | 100.0000000000% |
| | | Exemptions: | |
Taxes and Assessment Details
Values
| (+) Improvement Homesite Value: | + | $0 | |
| (+) Improvement Non-Homesite Value: | + | $28,127 | |
| (+) Land Homesite Value: | + | $0 | |
| (+) Land Non-Homesite Value: | + | $725,600 | |
| (+) Curr Use (HS): | + | $0 | $0 |
| (+) Curr Use (NHS): | + | $0 | $0 |
| | | -------------------------- | |
| (=) Market Value: | = | $753,727 | |
| (–) Productivity Loss: | – | $0 | |
| | | -------------------------- | |
| (=) Subtotal: | = | $753,727 | |
| (+) Senior Appraised Value: | + | $0 | |
| (+) Non-Senior Appraised Value: | + | $753,727 | |
| | | -------------------------- | |
| (=) Total Appraised Value: | = | $753,727 | |
| (–) Senior Exemption Loss: | – | $0 | |
| (–) Exemption Loss: | – | $0 | |
| | | -------------------------- | |
| (=) Taxable Value: | = | $753,727 | |
Taxing Jurisdiction
| Owner: | JENSEN, STEVEN THOMAS | | |
| % Ownership: | 100.0000000000% | | |
| Total Value: | $753,727 | | |
| Tax Area: | 510 - APPRAISER-Stan/Cam Schl Dist, improved & 1 acre or less |
| CF | Conservation Futures | 0.0316035091 | $753,727 | $753,727 | $23.82 | | |
| EMS1 | Fire & Rescue Dist #1 Camano GEN (EMS) | 0.3677864386 | $753,727 | $753,727 | $277.21 | | |
| FIRE1 | Fire & Rescue Dist #1 Camano GEN | 1.2502910536 | $753,727 | $753,727 | $942.38 | | |
| FIRE1BOND | Fire & Rescue Dist #1 Camano BOND | 0.1570001679 | $753,727 | $753,727 | $118.34 | | |
| CE | County Current Expense | 0.3708482477 | $753,727 | $753,727 | $279.52 | | |
| CR | County Roads | 0.4584763726 | $753,727 | $753,727 | $345.57 | | |
| LCIB | Library Sno-Isle BOND (Camano Island) | 0.0396325772 | $753,727 | $753,727 | $29.87 | | |
| LIB | Library Sno-Isle GEN | 0.3153421757 | $753,727 | $753,727 | $237.68 | | |
| SCH205_401 | School 205-401 Enrichment | 1.2698420524 | $753,727 | $753,727 | $957.11 | | |
| SCH205BOND | School 205-401 BOND | 0.9396497583 | $753,727 | $753,727 | $708.24 | | |
| ST | State School | 1.3035497053 | $753,727 | $753,727 | $982.52 | | |
| ST2 | State School Part 2 | 0.8169543533 | $753,727 | $753,727 | $615.76 | | |
| | Total Tax Rate: | 7.3209764117 | | | | | |
| | | | | Taxes w/Current Exemptions: | $5,518.02 | | |
| | | | | Taxes w/o Exemptions: | $5,518.02 | | |
Improvement / Building
| Improvement #1: | RESIDENTIAL | State Code: | Y | 380.0 sqft | Value: | $28,127 |
| Bathrooms: | 1 | Bedrooms: | 1 | | Ceiling: | BEAM PAINTED | Exterior Wall/Cover: | ASBESTOES/ASPHALT | | Floor Covering: | CARPET/VINYL 80-20 | Floor Structure: | WOOD W/SUBFLOOR | | Foundation: | PEIRS | Interior Finish: | PLASTER | | Plumbing Fixture Cnt: | 5 | Roof Slope: | 3" IN 12" | | Roof Structure/Cover: | CJ ALUMINIUM HEAVY |   |   |
|
| | Type | Description | Class CD | Sub Class CD | Year Built | Area |
| | BAS | BASE/MAIN FLOOR | 2 | 0 | 1947 | 380.0 |
| | OWC | OPEN WOOD PORCH W/STEPS/ROOF/C | 2 | 0 | 1947 | 28.0 |
| | OWC | OPEN WOOD PORCH W/STEPS/ROOF/C | 2 | 0 | 1947 | 44.0 |
Sketch
Property Image
Land
| 1 | HB | HIGH BLUFF | 0.6700 | 29185.20 | 60.00 | 0.00 | 1.00 | $725,000 | $0 |
| 2 | 55 | TIDES | 0.0000 | 0.00 | 60.00 | 0.00 | 1.00 | $600 | $0 |
Roll Value History
| 2026 | N/A | N/A | N/A | N/A | N/A |
| 2025 | $28,127 | $725,600 | $0 | $753,727 | $753,727 |
| 2024 | $28,361 | $725,600 | $0 | $753,961 | $753,961 |
| 2023 | $29,143 | $660,600 | $0 | $689,743 | $689,743 |
| 2022 | $27,099 | $630,600 | $0 | $657,699 | $657,699 |
| 2021 | $24,180 | $425,600 | $0 | $449,780 | $449,780 |
| 2020 | $23,772 | $400,600 | $0 | $424,372 | $424,372 |
| 2019 | $17,049 | $400,600 | $0 | $417,649 | $417,649 |
| 2018 | $17,152 | $375,600 | $0 | $392,752 | $392,752 |
| 2017 | $17,359 | $350,600 | $0 | $367,959 | $367,959 |
| 2016 | $11,580 | $350,600 | $0 | $362,180 | $362,180 |
| 2015 | $11,966 | $350,600 | $0 | $362,566 | $362,566 |
| 2014 | $12,352 | $350,600 | $0 | $362,952 | $362,952 |
| 2013 | $12,738 | $207,465 | $0 | $220,203 | $220,203 |
| 2012 | $13,124 | $207,465 | $0 | $220,589 | $220,589 |
| 2011 | $13,510 | $218,353 | $0 | $231,863 | $231,863 |
| 2010 | $18,207 | $218,353 | $0 | $236,560 | $236,560 |
| 2009 | $19,120 | $240,934 | $0 | $260,054 | $260,054 |
| 2008 | $19,559 | $240,934 | $0 | $260,493 | $260,493 |
| 2007 | $20,026 | $240,514 | $0 | $260,540 | $260,540 |
Deed and Sales History
| 1 | 08/17/2005 | QCD | Quit Claim Deed | JENSEN, DONALD J | JENSEN, STEVEN THOMAS | | | $0.00 | 54186 | 4145448 |
| 2 | 12/04/1998 | OTHER | Other - Misc. Documents | Unknown | JENSEN, DONALD J | | | $0.00 | 68095 | 0 |
Payout Agreement
| No payout information available.. |