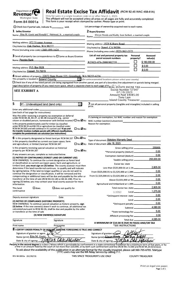
Property
Account |
| Property ID: | 162022 | Abbreviated Legal Description: | 107 - IN GL 1: BG NECR GL1 S185' W240' M/L TO ML NELY ALG ML TO NLN GL1 E165' M/L TPB TGW ADJ VAC PT HULTMAN RD R40-01 AF#4008174 |
| Geographic ID: | R33218-518-3870 | Agent Code: | |
| Type: | Real | | |
| Tax Area: | 510 - APPRAISER-Stan/Cam Schl Dist, improved & 1 acre or less | Land Use Code | 11 |
| Open Space: | N | DFL | N |
| Historic Property: | N | Remodel Property: | N |
| Multi-Family Redevelopment: | N | | |
| Township: | 32 | Section: | 18 |
| Range: | R3 |
Location |
| Address: | 292 ARROWHEAD POINT LN CAMANO ISLAND, WA 98282 | Mapsco: | |
| Neighborhood: | North Camano | Map ID: | 959 |
| Neighborhood CD: | 06-C |
Owner |
| Name: | MILLS, JOHN P | Owner ID: | 28884 |
| Mailing Address: | 1432 LAKESIDE AVE S SEATTLE, WA 98144-4026 | % Ownership: | 100.0000000000% |
| | | Exemptions: | |
Taxes and Assessment Details
Values
| (+) Improvement Homesite Value: | + | $0 | |
| (+) Improvement Non-Homesite Value: | + | $273,433 | |
| (+) Land Homesite Value: | + | $0 | |
| (+) Land Non-Homesite Value: | + | $775,000 | |
| (+) Curr Use (HS): | + | $0 | $0 |
| (+) Curr Use (NHS): | + | $0 | $0 |
| | | -------------------------- | |
| (=) Market Value: | = | $1,048,433 | |
| (–) Productivity Loss: | – | $0 | |
| | | -------------------------- | |
| (=) Subtotal: | = | $1,048,433 | |
| (+) Senior Appraised Value: | + | $0 | |
| (+) Non-Senior Appraised Value: | + | $1,048,433 | |
| | | -------------------------- | |
| (=) Total Appraised Value: | = | $1,048,433 | |
| (–) Senior Exemption Loss: | – | $0 | |
| (–) Exemption Loss: | – | $0 | |
| | | -------------------------- | |
| (=) Taxable Value: | = | $1,048,433 | |
Taxing Jurisdiction
| Owner: | MILLS, JOHN P | | |
| % Ownership: | 100.0000000000% | | |
| Total Value: | $1,048,433 | | |
| Tax Area: | 510 - APPRAISER-Stan/Cam Schl Dist, improved & 1 acre or less |
| CF | Conservation Futures | 0.0316035091 | $1,048,433 | $1,048,433 | $33.13 | | |
| EMS1 | Fire & Rescue Dist #1 Camano GEN (EMS) | 0.3677864386 | $1,048,433 | $1,048,433 | $385.60 | | |
| FIRE1 | Fire & Rescue Dist #1 Camano GEN | 1.2502910536 | $1,048,433 | $1,048,433 | $1,310.85 | | |
| FIRE1BOND | Fire & Rescue Dist #1 Camano BOND | 0.1570001679 | $1,048,433 | $1,048,433 | $164.60 | | |
| CE | County Current Expense | 0.3708482477 | $1,048,433 | $1,048,433 | $388.81 | | |
| CR | County Roads | 0.4584763726 | $1,048,433 | $1,048,433 | $480.68 | | |
| LCIB | Library Sno-Isle BOND (Camano Island) | 0.0396325772 | $1,048,433 | $1,048,433 | $41.55 | | |
| LIB | Library Sno-Isle GEN | 0.3153421757 | $1,048,433 | $1,048,433 | $330.62 | | |
| SCH205_401 | School 205-401 Enrichment | 1.2698420524 | $1,048,433 | $1,048,433 | $1,331.34 | | |
| SCH205BOND | School 205-401 BOND | 0.9396497583 | $1,048,433 | $1,048,433 | $985.16 | | |
| ST | State School | 1.3035497053 | $1,048,433 | $1,048,433 | $1,366.68 | | |
| ST2 | State School Part 2 | 0.8169543533 | $1,048,433 | $1,048,433 | $856.52 | | |
| | Total Tax Rate: | 7.3209764117 | | | | | |
| | | | | Taxes w/Current Exemptions: | $7,675.54 | | |
| | | | | Taxes w/o Exemptions: | $7,675.54 | | |
Improvement / Building
| Improvement #1: | RESIDENTIAL | State Code: | Y | 1748.0 sqft | Value: | $273,433 |
| Bathrooms: | 2 | Bedrooms: | 2 | | Ceiling: | BEAM PAINTED | Cooling: | HEAT PUMP/CONV/V | | Exterior Wall/Cover: | WOOD SIDING | Floor Covering: | CERAMIC TILE/HWD 40/60 | | Floor Structure: | WOOD W/SUBFLOOR | Foundation: | CONCRETE | | Interior Finish: | DRYWALL PAINT | Plumbing Fixture Cnt: | 9 | | Roof Slope: | 6" IN 12" | Roof Structure/Cover: | BEAM ALUMINUM HEAVY |
|
| | Type | Description | Class CD | Sub Class CD | Year Built | Area |
| | BAS | BASE/MAIN FLOOR | 3 | 0 | 1975 | 1140.0 |
| | OP4 | OPEN PORCH W/CEILING-ROOF | 3 | 0 | 1975 | 140.0 |
| | DGR | DETACHED GARAGE | 3 | 0 | 1975 | 616.0 |
| | UPS | UPPER STORY | 3 | 0 | 1975 | 608.0 |
| | OWP | OPEN WOOD PORCH W/STEPS | 3 | 0 | 1975 | 63.0 |
| | OWP | OPEN WOOD PORCH W/STEPS | 3 | 0 | 1975 | 33.8 |
| | OWR | OPEN WOOD PORCH W/STEPS/ROOF | 3 | 0 | 1975 | 75.0 |
| | OWR | OPEN WOOD PORCH W/STEPS/ROOF | 3 | 0 | 1975 | 126.0 |
Sketch
Property Image
Land
| 1 | HB | HIGH BLUFF | 0.9600 | 41817.60 | 185.00 | 0.00 | 1.00 | $775,000 | $0 |
Roll Value History
| 2026 | N/A | N/A | N/A | N/A | N/A |
| 2025 | $273,433 | $775,000 | $0 | $1,048,433 | $1,048,433 |
| 2024 | $273,313 | $775,000 | $0 | $1,048,313 | $1,048,313 |
| 2023 | $277,568 | $725,000 | $0 | $1,002,568 | $1,002,568 |
| 2022 | $255,188 | $700,000 | $0 | $955,188 | $955,188 |
| 2021 | $225,261 | $500,000 | $0 | $725,261 | $725,261 |
| 2020 | $220,514 | $475,000 | $0 | $695,514 | $695,514 |
| 2019 | $164,838 | $475,000 | $0 | $639,838 | $639,838 |
| 2018 | $165,434 | $425,000 | $0 | $590,434 | $590,434 |
| 2017 | $166,617 | $400,000 | $0 | $566,617 | $566,617 |
| 2016 | $163,218 | $400,000 | $0 | $563,218 | $563,218 |
| 2015 | $165,620 | $400,000 | $0 | $565,620 | $565,620 |
| 2014 | $168,020 | $400,000 | $0 | $568,020 | $568,020 |
| 2013 | $170,420 | $535,779 | $0 | $706,199 | $706,199 |
| 2012 | $172,819 | $535,779 | $0 | $708,598 | $708,598 |
| 2011 | $175,222 | $563,978 | $0 | $739,200 | $739,200 |
| 2010 | $184,776 | $563,978 | $0 | $748,754 | $748,754 |
| 2009 | $193,012 | $622,466 | $0 | $815,478 | $815,478 |
| 2008 | $202,112 | $622,466 | $0 | $824,578 | $824,578 |
| 2007 | $204,834 | $622,466 | $0 | $827,300 | $827,300 |
Deed and Sales History
| 1 | 01/01/1988 | QCD | Quit Claim Deed | MILLS, ARNOLD F | MILLS, JOHN P | | | $0.00 | 80220 | 88001034 |
| 2 | 01/01/1900 | OTHER | Other - Misc. Documents | Unknown | MILLS, ARNOLD F | | | $0.00 | 0 | 0 |
Payout Agreement
| No payout information available.. |