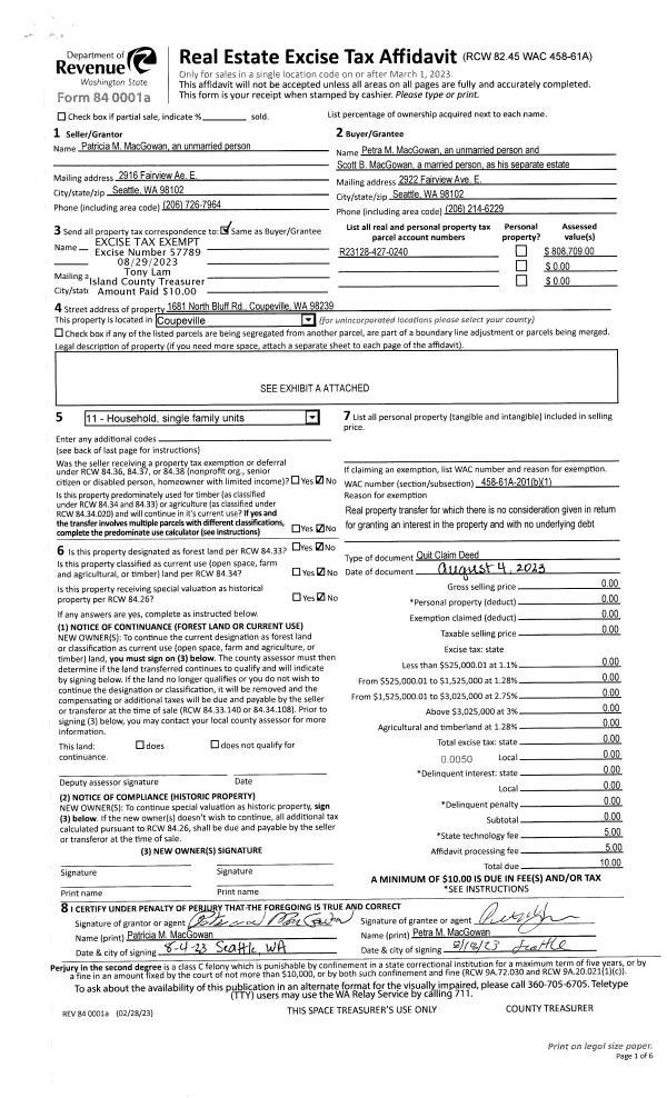
Property
Account |
| Property ID: | 162228 | Abbreviated Legal Description: | 84 - IN NESE:BG NW CR W1/2 NESE S1341.08'TPB E692.65'NLY ALG CUR/L 114.22'N31*W50'ALG CUR/R 80.47'N124.63'W612.12'S350. 38'TPB TGW EZ |
| Geographic ID: | R33219-154-4310 | Agent Code: | |
| Type: | Real | | |
| Tax Area: | 592 - APPRAISER-Stan/Cam Schl Dist, Special Dist, improved, greater than 1 acre | Land Use Code | 11 |
| Open Space: | N | DFL | N |
| Historic Property: | N | Remodel Property: | N |
| Multi-Family Redevelopment: | N | | |
| Township: | 32 | Section: | 19 |
| Range: | R3 |
Location |
| Address: | | Mapsco: | |
| Neighborhood: | North Camano | Map ID: | 961 |
| Neighborhood CD: | 06-C |
Owner |
| Name: | ASHCROFT, KENDRICK B | Owner ID: | 290569 |
| Mailing Address: | LISA A ASHCROFT 917 TERRY HEIGHTS LANE CAMANO ISLAND, WA 98282 | % Ownership: | 100.0000000000% |
| | | Exemptions: | |
Taxes and Assessment Details
Values
| (+) Improvement Homesite Value: | + | $0 | |
| (+) Improvement Non-Homesite Value: | + | $680,117 | |
| (+) Land Homesite Value: | + | $0 | |
| (+) Land Non-Homesite Value: | + | $330,000 | |
| (+) Curr Use (HS): | + | $0 | $0 |
| (+) Curr Use (NHS): | + | $0 | $0 |
| | | -------------------------- | |
| (=) Market Value: | = | $1,010,117 | |
| (–) Productivity Loss: | – | $0 | |
| | | -------------------------- | |
| (=) Subtotal: | = | $1,010,117 | |
| (+) Senior Appraised Value: | + | $0 | |
| (+) Non-Senior Appraised Value: | + | $1,010,117 | |
| | | -------------------------- | |
| (=) Total Appraised Value: | = | $1,010,117 | |
| (–) Senior Exemption Loss: | – | $0 | |
| (–) Exemption Loss: | – | $0 | |
| | | -------------------------- | |
| (=) Taxable Value: | = | $1,010,117 | |
Taxing Jurisdiction
| Owner: | ASHCROFT, KENDRICK B | | |
| % Ownership: | 100.0000000000% | | |
| Total Value: | $1,010,117 | | |
| Tax Area: | 592 - APPRAISER-Stan/Cam Schl Dist, Special Dist, improved, greater than 1 acre |
| CF | Conservation Futures | 0.0316035091 | $1,010,117 | $1,010,117 | $31.92 | | |
| EMS1 | Fire & Rescue Dist #1 Camano GEN (EMS) | 0.3677864386 | $1,010,117 | $1,010,117 | $371.51 | | |
| FIRE1 | Fire & Rescue Dist #1 Camano GEN | 1.2502910536 | $1,010,117 | $1,010,117 | $1,262.94 | | |
| FIRE1BOND | Fire & Rescue Dist #1 Camano BOND | 0.1570001679 | $1,010,117 | $1,010,117 | $158.59 | | |
| CE | County Current Expense | 0.3708482477 | $1,010,117 | $1,010,117 | $374.60 | | |
| CR | County Roads | 0.4584763726 | $1,010,117 | $1,010,117 | $463.11 | | |
| LCIB | Library Sno-Isle BOND (Camano Island) | 0.0396325772 | $1,010,117 | $1,010,117 | $40.03 | | |
| LIB | Library Sno-Isle GEN | 0.3153421757 | $1,010,117 | $1,010,117 | $318.53 | | |
| SCH205_401 | School 205-401 Enrichment | 1.2698420524 | $1,010,117 | $1,010,117 | $1,282.69 | | |
| SCH205BOND | School 205-401 BOND | 0.9396497583 | $1,010,117 | $1,010,117 | $949.16 | | |
| ST | State School | 1.3035497053 | $1,010,117 | $1,010,117 | $1,316.74 | | |
| ST2 | State School Part 2 | 0.8169543533 | $1,010,117 | $1,010,117 | $825.22 | | |
| | Total Tax Rate: | 7.3209764117 | | | | | |
| | | | | Taxes w/Current Exemptions: | $7,395.04 | | |
| | | | | Taxes w/o Exemptions: | $7,395.04 | | |
Improvement / Building
| Improvement #1: | RESIDENTIAL | State Code: | Y | 2495.5 sqft | Value: | $680,117 |
| Bathrooms: | 3.5 | Bedrooms: | 4 | | Ceiling: | DRYWALL PAINTED | Cooling: | HEAT PUMP/CONV/V | | Exterior Wall/Cover: | CEMENT FIBER | Floor Covering: | TILE CERAMIC | | Floor Structure: | WOOD W/SUBFLOOR | Foundation: | CONCRETE | | Interior Finish: | DRYWALL PAINT | Plumbing Fixture Cnt: | 17 | | Roof Slope: | 10" IN 12" | Roof Structure/Cover: | CJ ASPHALT |
|
| | Type | Description | Class CD | Sub Class CD | Year Built | Area |
| | BAS | BASE/MAIN FLOOR | 4 | 0 | 2020 | 2495.5 |
| | ATU | ATTIC UNFINISHED | 4 | 0 | 2020 | 758.5 |
| | AGR | ATTACHED GARAGE | 4 | 0 | 2020 | 898.5 |
| | OP4 | OPEN PORCH W/CEILING-ROOF | 4 | 0 | 2020 | 507.0 |
| | OP4 | OPEN PORCH W/CEILING-ROOF | 4 | 0 | 2020 | 304.5 |
Sketch
Property Image
Land
| 1 | 32 | AC (03.01-09.99) | 5.0000 | 0.00 | 0.00 | 0.00 | 1.00 | $330,000 | $0 |
Roll Value History
| 2026 | N/A | N/A | N/A | N/A | N/A |
| 2025 | $680,117 | $330,000 | $0 | $1,010,117 | $1,010,117 |
| 2024 | $685,559 | $340,000 | $0 | $1,025,559 | $1,025,559 |
| 2023 | $691,000 | $320,000 | $0 | $1,011,000 | $1,011,000 |
| 2022 | $624,232 | $300,000 | $0 | $924,232 | $924,232 |
| 2021 | $497,401 | $230,000 | $0 | $727,401 | $727,401 |
| 2020 | $262,004 | $190,000 | $0 | $452,004 | $452,004 |
| 2019 | $0 | $140,000 | $0 | $140,000 | $140,000 |
| 2018 | $0 | $140,000 | $0 | $140,000 | $140,000 |
| 2017 | $0 | $140,000 | $0 | $140,000 | $140,000 |
| 2016 | $0 | $90,000 | $0 | $90,000 | $90,000 |
| 2015 | $0 | $100,000 | $0 | $100,000 | $100,000 |
| 2014 | $0 | $100,000 | $0 | $100,000 | $100,000 |
| 2013 | $0 | $120,000 | $0 | $120,000 | $120,000 |
| 2012 | $0 | $120,000 | $0 | $120,000 | $120,000 |
| 2011 | $0 | $120,000 | $0 | $120,000 | $120,000 |
| 2010 | $0 | $120,000 | $0 | $120,000 | $120,000 |
| 2009 | $0 | $150,000 | $0 | $150,000 | $150,000 |
| 2008 | $0 | $175,000 | $0 | $175,000 | $175,000 |
| 2007 | $0 | $145,000 | $0 | $145,000 | $145,000 |
Deed and Sales History
| 1 | 06/26/2019 | WD | Warranty Deed | UNTALAN TRUSTEE, RICHARD VICTOR | ASHCROFT, KENDRICK B | | | $220,000.00 | 39169 | 4466259 |
| 2 | 06/29/2017 | QCD | Quit Claim Deed | UNTALAN, RICHARD | UNTALAN TRUSTEE, RICHARD VICTOR | | | $0.00 | 30340 | 4426935 |
| 3 | 10/01/1981 | EXECUTORD | Executor Deed | EKREM, RONALD H | UNTALAN, RICHARD | | | $40,000.00 | 13226 | 389022 |
| 4 | 01/01/1900 | OTHER | Other - Misc. Documents | Unknown | EKREM, RONALD H | | | $0.00 | 0 | 0 |
Payout Agreement
| No payout information available.. |