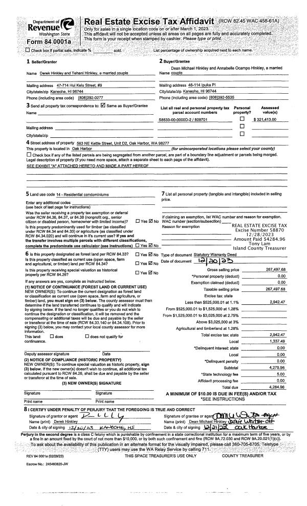
Property
Account |
| Property ID: | 162451 | Abbreviated Legal Description: | 82 - IN NESE:BG NW CR SENE S1273.62'TPB S49.36'S278'E611.03'N PAR/ TO ELN NESE 293.13'ALG CUR/R 90.38'S85*W626.24'TPB TGW EZ |
| Geographic ID: | R33219-255-4311 | Agent Code: | |
| Type: | Real | | |
| Tax Area: | 592 - APPRAISER-Stan/Cam Schl Dist, Special Dist, improved, greater than 1 acre | Land Use Code | 11 |
| Open Space: | N | DFL | N |
| Historic Property: | N | Remodel Property: | N |
| Multi-Family Redevelopment: | N | | |
| Township: | 32 | Section: | 19 |
| Range: | R3 |
Location |
| Address: | 1000 TERRY HEIGHTS LN CAMANO ISLAND, WA 98282 | Mapsco: | |
| Neighborhood: | North Camano | Map ID: | 961 |
| Neighborhood CD: | 06-C |
Owner |
| Name: | TANGEN, TROY | Owner ID: | 294373 |
| Mailing Address: | SHYANN MARIE TANGEN 1000 TERRY HEIGHTS LN CAMANO ISLAND, WA 98282-6603 | % Ownership: | 100.0000000000% |
| | | Exemptions: | |
Taxes and Assessment Details
Values
| (+) Improvement Homesite Value: | + | $0 | |
| (+) Improvement Non-Homesite Value: | + | $572,635 | |
| (+) Land Homesite Value: | + | $0 | |
| (+) Land Non-Homesite Value: | + | $330,000 | |
| (+) Curr Use (HS): | + | $0 | $0 |
| (+) Curr Use (NHS): | + | $0 | $0 |
| | | -------------------------- | |
| (=) Market Value: | = | $902,635 | |
| (–) Productivity Loss: | – | $0 | |
| | | -------------------------- | |
| (=) Subtotal: | = | $902,635 | |
| (+) Senior Appraised Value: | + | $0 | |
| (+) Non-Senior Appraised Value: | + | $902,635 | |
| | | -------------------------- | |
| (=) Total Appraised Value: | = | $902,635 | |
| (–) Senior Exemption Loss: | – | $0 | |
| (–) Exemption Loss: | – | $0 | |
| | | -------------------------- | |
| (=) Taxable Value: | = | $902,635 | |
Taxing Jurisdiction
| Owner: | TANGEN, TROY | | |
| % Ownership: | 100.0000000000% | | |
| Total Value: | $902,635 | | |
| Tax Area: | 592 - APPRAISER-Stan/Cam Schl Dist, Special Dist, improved, greater than 1 acre |
| CF | Conservation Futures | 0.0316035091 | $902,635 | $902,635 | $28.53 | | |
| EMS1 | Fire & Rescue Dist #1 Camano GEN (EMS) | 0.3677864386 | $902,635 | $902,635 | $331.98 | | |
| FIRE1 | Fire & Rescue Dist #1 Camano GEN | 1.2502910536 | $902,635 | $902,635 | $1,128.56 | | |
| FIRE1BOND | Fire & Rescue Dist #1 Camano BOND | 0.1570001679 | $902,635 | $902,635 | $141.71 | | |
| CE | County Current Expense | 0.3708482477 | $902,635 | $902,635 | $334.74 | | |
| CR | County Roads | 0.4584763726 | $902,635 | $902,635 | $413.84 | | |
| LCIB | Library Sno-Isle BOND (Camano Island) | 0.0396325772 | $902,635 | $902,635 | $35.77 | | |
| LIB | Library Sno-Isle GEN | 0.3153421757 | $902,635 | $902,635 | $284.64 | | |
| SCH205_401 | School 205-401 Enrichment | 1.2698420524 | $902,635 | $902,635 | $1,146.20 | | |
| SCH205BOND | School 205-401 BOND | 0.9396497583 | $902,635 | $902,635 | $848.16 | | |
| ST | State School | 1.3035497053 | $902,635 | $902,635 | $1,176.63 | | |
| ST2 | State School Part 2 | 0.8169543533 | $902,635 | $902,635 | $737.41 | | |
| | Total Tax Rate: | 7.3209764117 | | | | | |
| | | | | Taxes w/Current Exemptions: | $6,608.17 | | |
| | | | | Taxes w/o Exemptions: | $6,608.17 | | |
Improvement / Building
| Improvement #1: | RESIDENTIAL | State Code: | Y | 2344.1 sqft | Value: | $572,635 |
| Bathrooms: | 2.5 | Bedrooms: | 3 | | Ceiling: | DRYWALL PAINTED | Cooling: | HEAT PUMP/CONV/V | | Exterior Wall/Cover: | CEMENT FIBER | Floor Covering: | CARPET/VINYL 20-80 | | Floor Structure: | WOOD W/SUBFLOOR | Foundation: | CONCRETE | | Interior Finish: | DRYWALL PAINT | Plumbing Fixture Cnt: | 13 | | Roof Slope: | 8" IN 12" | Roof Structure/Cover: | CJ ASPHALT |
|
| | Type | Description | Class CD | Sub Class CD | Year Built | Area |
| | BAS | BASE/MAIN FLOOR | 4 | 0 | 2021 | 1884.8 |
| | UPS | UPPER STORY | 4 | 0 | 2021 | 459.3 |
| | AGR | ATTACHED GARAGE | 4 | 0 | 2021 | 551.0 |
| | OWP | OPEN WOOD PORCH W/STEPS | 4 | 0 | 2021 | 280.0 |
| | OWR | OPEN WOOD PORCH W/STEPS/ROOF | 4 | 0 | 2021 | 198.0 |
| | UTY | STORAGE/UTILITY | 4 | 0 | 2021 | 224.0 |
| | UTY | STORAGE/UTILITY | 4 | 0 | 2021 | 64.0 |
Sketch
Property Image
Land
| 1 | 32 | AC (03.01-09.99) | 5.0000 | 0.00 | 0.00 | 0.00 | 1.00 | $330,000 | $0 |
Roll Value History
| 2026 | N/A | N/A | N/A | N/A | N/A |
| 2025 | $572,635 | $330,000 | $0 | $902,635 | $902,635 |
| 2024 | $577,181 | $340,000 | $0 | $917,181 | $917,181 |
| 2023 | $583,240 | $320,000 | $0 | $903,240 | $903,240 |
| 2022 | $498,999 | $300,000 | $0 | $798,999 | $798,999 |
| 2021 | $442,788 | $230,000 | $0 | $672,788 | $672,788 |
| 2020 | $0 | $140,000 | $0 | $140,000 | $140,000 |
| 2019 | $0 | $140,000 | $0 | $140,000 | $140,000 |
| 2018 | $0 | $140,000 | $0 | $140,000 | $140,000 |
| 2017 | $0 | $140,000 | $0 | $140,000 | $140,000 |
| 2016 | $0 | $90,000 | $0 | $90,000 | $90,000 |
| 2015 | $0 | $100,000 | $0 | $100,000 | $100,000 |
| 2014 | $0 | $100,000 | $0 | $100,000 | $100,000 |
| 2013 | $0 | $120,000 | $0 | $120,000 | $120,000 |
| 2012 | $0 | $120,000 | $0 | $120,000 | $120,000 |
| 2011 | $0 | $120,000 | $0 | $120,000 | $120,000 |
| 2010 | $0 | $120,000 | $0 | $120,000 | $120,000 |
| 2009 | $0 | $150,000 | $0 | $150,000 | $150,000 |
| 2008 | $0 | $175,000 | $0 | $175,000 | $175,000 |
| 2007 | $0 | $160,000 | $0 | $160,000 | $160,000 |
Deed and Sales History
| 1 | 05/22/2020 | WD | Warranty Deed | EKREM CO-TRUSTEE, ALAN C | TANGEN, TROY | | | $225,000.00 | 43178 | 4487786 |
| 2 | 10/30/1998 | PRD | Personal Representatives Deed | Unknown | EKREM, SANDRA L | | | $0.00 | 84495 | 98024469 |
Payout Agreement
| No payout information available.. |