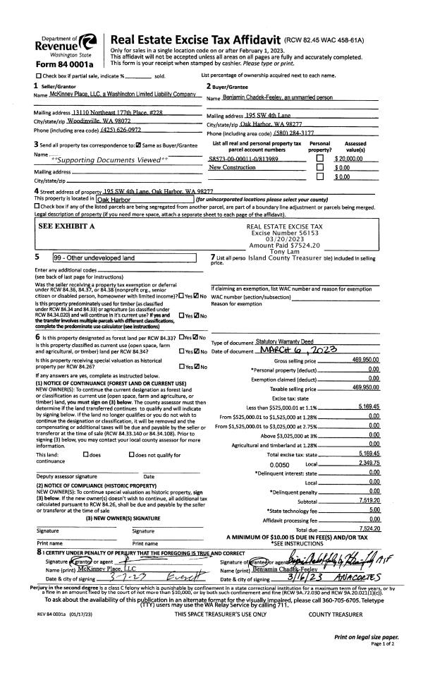
Property
Account |
| Property ID: | 162656 | Abbreviated Legal Description: | 46 - PT VAC BLKS 13, 29 & 30 & ALFONSO ST UTSALADY ALSO PT GL 2 DESC: BG NECR LOT 4 BLK 8 BUENA VISTA #3 NLY ALG ELN AF#313394 TO SE CR AF#66566 WLY TO SWCR S22*E TO NLN BUENA VISTA #3 S89*E TPB ALSO: BG NECR LOT 4 BLK 8 BUENA VISTA #3 NLY ALG ELN TR AF# |
| Geographic ID: | R33219-337-0820 | Agent Code: | |
| Type: | Real | | |
| Tax Area: | 590 - APPRAISER-Stan/Cam Schl Dist, Special Dist, improved & less than 1 acre | Land Use Code | 11 |
| Open Space: | N | DFL | N |
| Historic Property: | N | Remodel Property: | N |
| Multi-Family Redevelopment: | N | | |
| Township: | 32 | Section: | 19 |
| Range: | R3 |
Location |
| Address: | 70 STILLAGUAMISH AVE CAMANO ISLAND, WA 98282 | Mapsco: | |
| Neighborhood: | North Camano | Map ID: | 962 |
| Neighborhood CD: | 06-C |
Owner |
| Name: | COLBY III, GEORGE CHARLES | Owner ID: | 189366 |
| Mailing Address: | JOSIE MAY COLBY 70 STILLAGUAMISH AVE CAMANO ISLAND, WA 98282-8782 | % Ownership: | 100.0000000000% |
| | | Exemptions: | |
Taxes and Assessment Details
Values
| (+) Improvement Homesite Value: | + | $0 | |
| (+) Improvement Non-Homesite Value: | + | $436,862 | |
| (+) Land Homesite Value: | + | $0 | |
| (+) Land Non-Homesite Value: | + | $290,000 | |
| (+) Curr Use (HS): | + | $0 | $0 |
| (+) Curr Use (NHS): | + | $0 | $0 |
| | | -------------------------- | |
| (=) Market Value: | = | $726,862 | |
| (–) Productivity Loss: | – | $0 | |
| | | -------------------------- | |
| (=) Subtotal: | = | $726,862 | |
| (+) Senior Appraised Value: | + | $0 | |
| (+) Non-Senior Appraised Value: | + | $726,862 | |
| | | -------------------------- | |
| (=) Total Appraised Value: | = | $726,862 | |
| (–) Senior Exemption Loss: | – | $0 | |
| (–) Exemption Loss: | – | $0 | |
| | | -------------------------- | |
| (=) Taxable Value: | = | $726,862 | |
Taxing Jurisdiction
| Owner: | COLBY III, GEORGE CHARLES | | |
| % Ownership: | 100.0000000000% | | |
| Total Value: | $726,862 | | |
| Tax Area: | 590 - APPRAISER-Stan/Cam Schl Dist, Special Dist, improved & less than 1 acre |
| CF | Conservation Futures | 0.0316035091 | $726,862 | $726,862 | $22.97 | | |
| EMS1 | Fire & Rescue Dist #1 Camano GEN (EMS) | 0.3677864386 | $726,862 | $726,862 | $267.33 | | |
| FIRE1 | Fire & Rescue Dist #1 Camano GEN | 1.2502910536 | $726,862 | $726,862 | $908.79 | | |
| FIRE1BOND | Fire & Rescue Dist #1 Camano BOND | 0.1570001679 | $726,862 | $726,862 | $114.12 | | |
| CE | County Current Expense | 0.3708482477 | $726,862 | $726,862 | $269.56 | | |
| CR | County Roads | 0.4584763726 | $726,862 | $726,862 | $333.25 | | |
| LCIB | Library Sno-Isle BOND (Camano Island) | 0.0396325772 | $726,862 | $726,862 | $28.81 | | |
| LIB | Library Sno-Isle GEN | 0.3153421757 | $726,862 | $726,862 | $229.21 | | |
| SCH205_401 | School 205-401 Enrichment | 1.2698420524 | $726,862 | $726,862 | $923.00 | | |
| SCH205BOND | School 205-401 BOND | 0.9396497583 | $726,862 | $726,862 | $683.00 | | |
| ST | State School | 1.3035497053 | $726,862 | $726,862 | $947.50 | | |
| ST2 | State School Part 2 | 0.8169543533 | $726,862 | $726,862 | $593.81 | | |
| | Total Tax Rate: | 7.3209764117 | | | | | |
| | | | | Taxes w/Current Exemptions: | $5,321.35 | | |
| | | | | Taxes w/o Exemptions: | $5,321.35 | | |
Improvement / Building
| Improvement #1: | RESIDENTIAL | State Code: | Y | 3132.0 sqft | Value: | $436,862 |
| Bathrooms: | 3.5 | Bedrooms: | 3 | | Ceiling: | DRYWALL PAINTED | Exterior Wall/Cover: | CEMENT FIBER | | Floor Covering: | HARDWOOD/CARP 60-40 | Floor Structure: | WOOD W/SUBFLOOR | | Foundation: | CONCRETE | Heating: | FHA GAS | | Interior Finish: | DRYWALL PAINT | Plumbing Fixture Cnt: | 13 | | Roof Slope: | 5" IN 12" | Roof Structure/Cover: | CJ ASPHALT |
|
| | Type | Description | Class CD | Sub Class CD | Year Built | Area |
| | BAS | BASE/MAIN FLOOR | 3 | 0 | 2003 | 1044.0 |
| | DWN | DOWNSTAIRS LIVING AREA | 3 | 0 | 2003 | 1044.0 |
| | UPS | UPPER STORY | 3 | 0 | 2003 | 1044.0 |
| | OWP | OPEN WOOD PORCH W/STEPS | 3 | 0 | 2003 | 180.0 |
| | OWP | OPEN WOOD PORCH W/STEPS | 3 | 0 | 2003 | 30.0 |
| | OWC | OPEN WOOD PORCH W/STEPS/ROOF/C | 3 | 0 | 2003 | 108.0 |
| | DGR | DETACHED GARAGE | 3 | 0 | 2003 | 528.0 |
Sketch
Property Image
Land
| 1 | 16 | AC (00.51-01.00) | 0.0000 | 0.00 | 0.00 | 0.00 | 1.00 | $290,000 | $0 |
Roll Value History
| 2026 | N/A | N/A | N/A | N/A | N/A |
| 2025 | $436,862 | $290,000 | $0 | $726,862 | $726,862 |
| 2024 | $441,986 | $280,000 | $0 | $721,986 | $721,986 |
| 2023 | $447,112 | $280,000 | $0 | $727,112 | $727,112 |
| 2022 | $400,215 | $230,000 | $0 | $630,215 | $630,215 |
| 2021 | $352,060 | $160,000 | $0 | $512,060 | $512,060 |
| 2020 | $343,663 | $130,000 | $0 | $473,663 | $473,663 |
| 2019 | $277,378 | $170,000 | $0 | $447,378 | $447,378 |
| 2018 | $278,154 | $130,000 | $0 | $408,154 | $408,154 |
| 2017 | $279,709 | $125,000 | $0 | $404,709 | $404,709 |
| 2016 | $272,970 | $125,000 | $0 | $397,970 | $397,970 |
| 2015 | $276,037 | $125,000 | $0 | $401,037 | $401,037 |
| 2014 | $279,103 | $125,000 | $0 | $404,103 | $404,103 |
| 2013 | $282,170 | $125,000 | $0 | $407,170 | $407,170 |
| 2012 | $285,238 | $120,000 | $0 | $405,238 | $405,238 |
| 2011 | $288,304 | $150,000 | $0 | $438,304 | $438,304 |
| 2010 | $316,852 | $150,000 | $0 | $466,852 | $466,852 |
| 2009 | $332,816 | $175,000 | $0 | $507,816 | $507,816 |
| 2008 | $333,113 | $175,000 | $0 | $508,113 | $508,113 |
| 2007 | $336,644 | $175,000 | $0 | $511,644 | $511,644 |
Deed and Sales History
| 1 | 01/31/2003 | QCD | Quit Claim Deed | COLBY III, GEORGE CHARLES | COLBY III, GEORGE CHARLES | | | $0.00 | 30412 | 4046510 |
| 2 | 01/03/2003 | QCD | Quit Claim Deed | COLBY III, GEORGE CHARLES | COLBY III, GEORGE CHARLES | | | $0.00 | 30411 | 4046509 |
| 3 | 12/31/2002 | QCD | Quit Claim Deed | COLBY, JOSIE MAY | COLBY III, GEORGE CHARLES | | | $0.00 | 30061 | 4043225 |
| 4 | 12/31/2002 | QCD | Quit Claim Deed | KEITH, CHARLES A | COLBY, JOSIE MAY | | | $0.00 | 30060 | 4043224 |
| 5 | 03/01/1993 | OTHER | Other - Misc. Documents | KEITH, LYNN P | KEITH, CHARLES A | | | $0.00 | 31075 | 0 |
| 6 | 03/01/1993 | QCD | Quit Claim Deed | KEITH, LYNN P | KEITH, LYNN P | | | $0.00 | 31076 | 93005577 |
| 7 | 01/01/1993 | OTHER | Other - Misc. Documents | KEITH, LYNN P | KEITH, LYNN P | | | $0.00 | 30246 | 0 |
| 8 | 01/01/1993 | QCD | Quit Claim Deed | WATTERSON, PAULINE L | KEITH, LYNN P | | | $0.00 | 30247 | 93001208 |
| 9 | 07/01/1992 | OTHER | Other - Misc. Documents | WATTERSON, PAULINE L | WATTERSON, PAULINE L | | | $0.00 | 22732 | 0 |
| 10 | 06/01/1992 | OTHER | Other - Misc. Documents | WATTERSON, PHILLIP V | WATTERSON, PAULINE L | | | $0.00 | 64877 | 92010207 |
| 11 | 09/01/1987 | OTHER | Other - Misc. Documents | WATTERSON, PHILLIP V | WATTERSON, PHILLIP V | | | $0.00 | 62343 | 87012275 |
| 12 | 12/01/1986 | OTHER | Other - Misc. Documents | WATTERSON, PHILLIP V | WATTERSON, PHILLIP V | | | $0.00 | 61963 | 86015750 |
| 13 | 01/01/1986 | WD | Warranty Deed | WATTERSON, PHILLIP V | WATTERSON, PHILLIP V | | | $1,800.00 | 60159 | 86000910 |
| 14 | 01/01/1900 | OTHER | Other - Misc. Documents | WATTERSON, PHILLIP V | WATTERSON, PHILLIP V | | | $21,600.00 | 0 | 0 |
| 15 | 01/01/1900 | OTHER | Other - Misc. Documents | Unknown | WATTERSON, PHILLIP V | | | $0.00 | 0 | 0 |
Payout Agreement
| No payout information available.. |