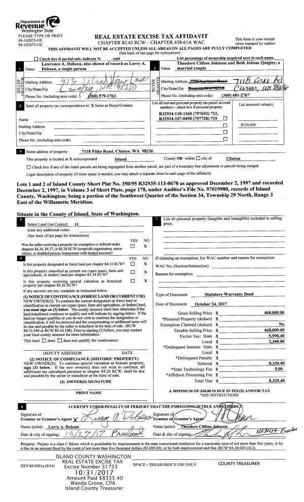
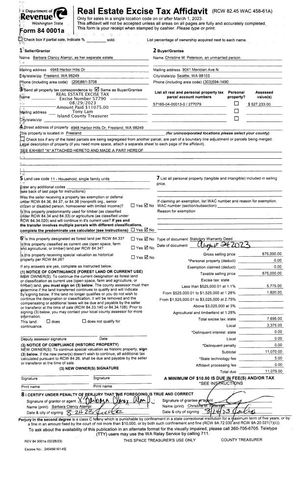
Property
Account |
| Property ID: | 162709 | Abbreviated Legal Description: | 87 - BG NE CR SW NE W135.3' S520' N81*E545.98' NLY ALG CUR 65.94' N34*E97.98' TO SLN RD N54*W ALG RD 504.33' W52.13' TPB TGW EZ |
| Geographic ID: | R33219-374-4100 | Agent Code: | |
| Type: | Real | | |
| Tax Area: | 592 - APPRAISER-Stan/Cam Schl Dist, Special Dist, improved, greater than 1 acre | Land Use Code | 11 |
| Open Space: | N | DFL | N |
| Historic Property: | N | Remodel Property: | N |
| Multi-Family Redevelopment: | N | | |
| Township: | 32 | Section: | 19 |
| Range: | R3 |
Location |
| Address: | 1077 TERRY HEIGHTS LN CAMANO ISLAND, WA 98282 | Mapsco: | |
| Neighborhood: | North Camano | Map ID: | 963 |
| Neighborhood CD: | 06-C |
Owner |
| Name: | MCKENZIE, KENNETH J | Owner ID: | 282930 |
| Mailing Address: | NANCY GREENING MCKENZIE 1077 TERRY HEIGHTS LN CAMANO ISLAND, WA 98282 | % Ownership: | 100.0000000000% |
| | | Exemptions: | |
Taxes and Assessment Details
Values
| (+) Improvement Homesite Value: | + | $0 | |
| (+) Improvement Non-Homesite Value: | + | $615,018 | |
| (+) Land Homesite Value: | + | $0 | |
| (+) Land Non-Homesite Value: | + | $380,000 | |
| (+) Curr Use (HS): | + | $0 | $0 |
| (+) Curr Use (NHS): | + | $0 | $0 |
| | | -------------------------- | |
| (=) Market Value: | = | $995,018 | |
| (–) Productivity Loss: | – | $0 | |
| | | -------------------------- | |
| (=) Subtotal: | = | $995,018 | |
| (+) Senior Appraised Value: | + | $0 | |
| (+) Non-Senior Appraised Value: | + | $995,018 | |
| | | -------------------------- | |
| (=) Total Appraised Value: | = | $995,018 | |
| (–) Senior Exemption Loss: | – | $0 | |
| (–) Exemption Loss: | – | $0 | |
| | | -------------------------- | |
| (=) Taxable Value: | = | $995,018 | |
Taxing Jurisdiction
| Owner: | MCKENZIE, KENNETH J | | |
| % Ownership: | 100.0000000000% | | |
| Total Value: | $995,018 | | |
| Tax Area: | 592 - APPRAISER-Stan/Cam Schl Dist, Special Dist, improved, greater than 1 acre |
| CF | Conservation Futures | 0.0316035091 | $995,018 | $995,018 | $31.45 | | |
| EMS1 | Fire & Rescue Dist #1 Camano GEN (EMS) | 0.3677864386 | $995,018 | $995,018 | $365.95 | | |
| FIRE1 | Fire & Rescue Dist #1 Camano GEN | 1.2502910536 | $995,018 | $995,018 | $1,244.06 | | |
| FIRE1BOND | Fire & Rescue Dist #1 Camano BOND | 0.1570001679 | $995,018 | $995,018 | $156.22 | | |
| CE | County Current Expense | 0.3708482477 | $995,018 | $995,018 | $369.00 | | |
| CR | County Roads | 0.4584763726 | $995,018 | $995,018 | $456.19 | | |
| LCIB | Library Sno-Isle BOND (Camano Island) | 0.0396325772 | $995,018 | $995,018 | $39.44 | | |
| LIB | Library Sno-Isle GEN | 0.3153421757 | $995,018 | $995,018 | $313.77 | | |
| SCH205_401 | School 205-401 Enrichment | 1.2698420524 | $995,018 | $995,018 | $1,263.52 | | |
| SCH205BOND | School 205-401 BOND | 0.9396497583 | $995,018 | $995,018 | $934.97 | | |
| ST | State School | 1.3035497053 | $995,018 | $995,018 | $1,297.06 | | |
| ST2 | State School Part 2 | 0.8169543533 | $995,018 | $995,018 | $812.88 | | |
| | Total Tax Rate: | 7.3209764117 | | | | | |
| | | | | Taxes w/Current Exemptions: | $7,284.51 | | |
| | | | | Taxes w/o Exemptions: | $7,284.51 | | |
Improvement / Building
| Improvement #1: | RESIDENTIAL | State Code: | Y | 2279.6 sqft | Value: | $615,018 |
| Bathrooms: | 3.25 | Bedrooms: | 2 | | Ceiling: | DRYWALL PAINTED | Exterior Wall/Cover: | CEMENT FIBER | | Floor Covering: | VINYL/HARDWOOD 60-40 | Floor Structure: | WOOD W/SUBFLOOR | | Foundation: | CONCRETE | Heating: | RAD HOT WATER-GAS | | Interior Finish: | DRYWALL PAINT | Plumbing Fixture Cnt: | 17 | | Roof Slope: | 8" IN 12" | Roof Structure/Cover: | CJ ASPHALT |
|
| | Type | Description | Class CD | Sub Class CD | Year Built | Area |
| | BAS | BASE/MAIN FLOOR | 4 | 0 | 1999 | 2279.6 |
| | OP4 | OPEN PORCH W/CEILING-ROOF | 4 | 0 | 1999 | 112.2 |
| | AGR | ATTACHED GARAGE | 4 | 0 | 1999 | 495.7 |
| | OWP | OPEN WOOD PORCH W/STEPS | 4 | 0 | 1999 | 499.7 |
| | OWR | OPEN WOOD PORCH W/STEPS/ROOF | 4 | 0 | 1999 | 156.8 |
| | ENP | ENCLOSED PORCH | 4 | 0 | 1999 | 432.0 |
| | UTY | STORAGE/UTILITY | 4 | 0 | 1999 | 1296.0 |
Sketch
Property Image
Land
| 1 | 32 | AC (03.01-09.99) | 5.0000 | 0.00 | 0.00 | 0.00 | 1.00 | $380,000 | $0 |
Roll Value History
| 2026 | N/A | N/A | N/A | N/A | N/A |
| 2025 | $615,018 | $380,000 | $0 | $995,018 | $995,018 |
| 2024 | $622,319 | $390,000 | $0 | $1,012,319 | $1,012,319 |
| 2023 | $629,618 | $380,000 | $0 | $1,009,618 | $1,009,618 |
| 2022 | $547,249 | $350,000 | $0 | $897,249 | $897,249 |
| 2021 | $481,507 | $240,000 | $0 | $721,507 | $721,507 |
| 2020 | $468,061 | $200,000 | $0 | $668,061 | $668,061 |
| 2019 | $342,238 | $240,000 | $0 | $582,238 | $582,238 |
| 2018 | $343,217 | $190,000 | $0 | $533,217 | $533,217 |
| 2017 | $305,857 | $170,000 | $0 | $475,857 | $475,857 |
| 2016 | $304,291 | $135,000 | $0 | $439,291 | $439,291 |
| 2015 | $307,574 | $125,000 | $0 | $432,574 | $432,574 |
| 2014 | $310,858 | $125,000 | $0 | $435,858 | $435,858 |
| 2013 | $314,143 | $112,000 | $0 | $426,143 | $426,143 |
| 2012 | $317,426 | $112,000 | $0 | $429,426 | $429,426 |
| 2011 | $320,710 | $140,000 | $0 | $460,710 | $460,710 |
| 2010 | $321,855 | $140,000 | $0 | $461,855 | $461,855 |
| 2009 | $335,274 | $160,000 | $0 | $495,274 | $495,274 |
| 2008 | $339,392 | $160,000 | $0 | $499,392 | $499,392 |
| 2007 | $343,587 | $160,000 | $0 | $503,587 | $503,587 |
Deed and Sales History
| 1 | 11/13/2017 | WD | Warranty Deed | LEROY, LANCE D | MCKENZIE, KENNETH J | | | $585,000.00 | 31937 | 4434290 |
| 2 | 09/26/2006 | WD | Warranty Deed | SCHMETZER, URSULA | LEROY, LANCE D | | | $499,000.00 | 64239 | 4183254 |
| 3 | 09/23/2004 | QCD | Quit Claim Deed | SCHMETZER, WALTER & | SCHMETZER, URSULA | | | $0.00 | 44518 | 4113977 |
| 4 | 09/01/1997 | WD | Warranty Deed | Unknown | SCHMETZER, WALTER & | | | $62,000.00 | 73204 | 97015086 |
| 5 | 09/01/1997 | WD | Warranty Deed | DAVIS, WM A | SCHMETZER, WALTER & | | | $62,000.00 | 73204 | 97015086 |
| 6 | 08/01/1978 | OTHER | Other - Misc. Documents | SCHMETZER, WALTER & | DAVIS, WM A | | | $15,000.00 | 84359 | 0 |
Payout Agreement
| No payout information available.. |