Property
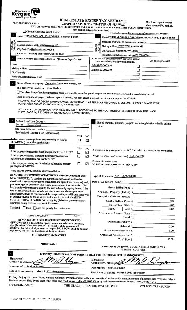
Account |
| Property ID: | 162736 | Abbreviated Legal Description: | 47 - IN N/2 SE NE: BG NWCR E/2 SENE TPB W535'TO NBDRY CO RD SELY ALG NLN 661' N368' NELY 15' TP 30'E OF TPB W 30'TPB |
| Geographic ID: | R33219-388-4530 | Agent Code: | |
| Type: | Real | | |
| Tax Area: | 592 - APPRAISER-Stan/Cam Schl Dist, Special Dist, improved, greater than 1 acre | Land Use Code | 11 |
| Open Space: | N | DFL | N |
| Historic Property: | N | Remodel Property: | N |
| Multi-Family Redevelopment: | N | | |
| Township: | 32 | Section: | 19 |
| Range: | R3 |
Location |
| Address: | 339 E NORTH CAMANO DR CAMANO ISLAND, WA 98282 | Mapsco: | |
| Neighborhood: | North Camano | Map ID: | 963 |
| Neighborhood CD: | 06-C |
Owner |
| Name: | BAMBER, MARSHALL L | Owner ID: | 61035 |
| Mailing Address: | 353 E NORTH CAMANO DR CAMANO ISLAND, WA 98282 | % Ownership: | 100.0000000000% |
| | | Exemptions: | |
Taxes and Assessment Details
Values
| (+) Improvement Homesite Value: | + | $0 | |
| (+) Improvement Non-Homesite Value: | + | $325,975 | |
| (+) Land Homesite Value: | + | $0 | |
| (+) Land Non-Homesite Value: | + | $310,000 | |
| (+) Curr Use (HS): | + | $0 | $0 |
| (+) Curr Use (NHS): | + | $0 | $0 |
| | | -------------------------- | |
| (=) Market Value: | = | $635,975 | |
| (–) Productivity Loss: | – | $0 | |
| | | -------------------------- | |
| (=) Subtotal: | = | $635,975 | |
| (+) Senior Appraised Value: | + | $0 | |
| (+) Non-Senior Appraised Value: | + | $635,975 | |
| | | -------------------------- | |
| (=) Total Appraised Value: | = | $635,975 | |
| (–) Senior Exemption Loss: | – | $0 | |
| (–) Exemption Loss: | – | $0 | |
| | | -------------------------- | |
| (=) Taxable Value: | = | $635,975 | |
Taxing Jurisdiction
| Owner: | BAMBER, MARSHALL L | | |
| % Ownership: | 100.0000000000% | | |
| Total Value: | $635,975 | | |
| Tax Area: | 592 - APPRAISER-Stan/Cam Schl Dist, Special Dist, improved, greater than 1 acre |
| CF | Conservation Futures | 0.0316035091 | $635,975 | $635,975 | $20.10 | | |
| EMS1 | Fire & Rescue Dist #1 Camano GEN (EMS) | 0.3677864386 | $635,975 | $635,975 | $233.90 | | |
| FIRE1 | Fire & Rescue Dist #1 Camano GEN | 1.2502910536 | $635,975 | $635,975 | $795.15 | | |
| FIRE1BOND | Fire & Rescue Dist #1 Camano BOND | 0.1570001679 | $635,975 | $635,975 | $99.85 | | |
| CE | County Current Expense | 0.3708482477 | $635,975 | $635,975 | $235.85 | | |
| CR | County Roads | 0.4584763726 | $635,975 | $635,975 | $291.58 | | |
| LCIB | Library Sno-Isle BOND (Camano Island) | 0.0396325772 | $635,975 | $635,975 | $25.21 | | |
| LIB | Library Sno-Isle GEN | 0.3153421757 | $635,975 | $635,975 | $200.55 | | |
| SCH205_401 | School 205-401 Enrichment | 1.2698420524 | $635,975 | $635,975 | $807.59 | | |
| SCH205BOND | School 205-401 BOND | 0.9396497583 | $635,975 | $635,975 | $597.59 | | |
| ST | State School | 1.3035497053 | $635,975 | $635,975 | $829.03 | | |
| ST2 | State School Part 2 | 0.8169543533 | $635,975 | $635,975 | $519.56 | | |
| | Total Tax Rate: | 7.3209764117 | | | | | |
| | | | | Taxes w/Current Exemptions: | $4,655.96 | | |
| | | | | Taxes w/o Exemptions: | $4,655.96 | | |
Improvement / Building
| Improvement #1: | RESIDENTIAL | State Code: | Y | 2178.0 sqft | Value: | $325,975 |
| Bathrooms: | 2 | Bedrooms: | 2 | | Ceiling: | DRYWALL PAINTED | Exterior Wall/Cover: | WOOD SIDING | | Floor Covering: | CERAMIC TILE/HWD 40/60 | Floor Structure: | WOOD W/SUBFLOOR | | Foundation: | CONCRETE | Heating: | BASEBOARD ELECTRIC | | Interior Finish: | DRYWALL PAINT | Plumbing Fixture Cnt: | 12 | | Roof Slope: | 6" IN 12" | Roof Structure/Cover: | CJ ASPHALT |
|
| | Type | Description | Class CD | Sub Class CD | Year Built | Area |
| | BAS | BASE/MAIN FLOOR | 3 | 0 | 1948 | 1110.0 |
| | DWN | DOWNSTAIRS LIVING AREA | 3 | 0 | 1948 | 1068.0 |
| | OP4 | OPEN PORCH W/CEILING-ROOF | 3 | 0 | 1948 | 36.0 |
| | OP4 | OPEN PORCH W/CEILING-ROOF | 3 | 0 | 1948 | 24.0 |
| | DGR | DETACHED GARAGE | 3 | 0 | 1948 | 576.0 |
| | UTY | STORAGE/UTILITY | 3 | 0 | 1948 | 180.0 |
Sketch
Property Image
Land
| 1 | 18 | AC (02.01-03.00) | 0.0000 | 0.00 | 0.00 | 0.00 | 1.00 | $310,000 | $0 |
Roll Value History
| 2026 | N/A | N/A | N/A | N/A | N/A |
| 2025 | $325,975 | $310,000 | $0 | $635,975 | $635,975 |
| 2024 | $336,703 | $300,000 | $0 | $636,703 | $636,703 |
| 2023 | $341,006 | $300,000 | $0 | $641,006 | $641,006 |
| 2022 | $298,954 | $260,000 | $0 | $558,954 | $558,954 |
| 2021 | $263,293 | $230,000 | $0 | $493,293 | $493,293 |
| 2020 | $256,989 | $150,000 | $0 | $406,989 | $406,989 |
| 2019 | $197,282 | $190,000 | $0 | $387,282 | $387,282 |
| 2018 | $197,888 | $180,000 | $0 | $377,888 | $377,888 |
| 2017 | $199,102 | $120,000 | $0 | $319,102 | $319,102 |
| 2016 | $153,966 | $120,000 | $0 | $273,966 | $273,966 |
| 2015 | $155,938 | $100,000 | $0 | $255,938 | $255,938 |
| 2014 | $157,912 | $100,000 | $0 | $257,912 | $257,912 |
| 2013 | $159,885 | $100,000 | $0 | $259,885 | $259,885 |
| 2012 | $161,860 | $100,000 | $0 | $261,860 | $261,860 |
| 2011 | $163,835 | $125,000 | $0 | $288,835 | $288,835 |
| 2010 | $167,628 | $125,000 | $0 | $292,628 | $292,628 |
| 2009 | $170,795 | $150,000 | $0 | $320,795 | $320,795 |
| 2008 | $183,583 | $150,000 | $0 | $333,583 | $333,583 |
| 2007 | $185,623 | $150,000 | $0 | $335,623 | $335,623 |
Deed and Sales History
| 1 | 04/02/2009 | TRUSTEED | Trustee's Deed | DEUTSCHE BANK TRUST CO AMERICA | BAMBER, MARSHALL L | | | $169,265.00 | 90818 | 4248953 |
| 2 | 04/11/2008 | TRUSTEED | Trustee's Deed | JOHNSON, CHARLENE E | DEUTSCHE BANK TRUST CO AMERICA | | | $310,250.00 | 81053 | 4227416 |
| 3 | 05/03/2005 | WD | Warranty Deed | REKDAL, FRANCINE | JOHNSON, CHARLENE E | | | $220,000.00 | 52195 | 4134570 |
| 4 | 12/01/1983 | TRUSTEED | Trustee's Deed | REKDAL, FRANCINE | REKDAL, FRANCINE | | | $0.00 | 33744 | 419190 |
| 5 | 01/01/1900 | OTHER | Other - Misc. Documents | Unknown | REKDAL, FRANCINE | | | $0.00 | 0 | 0 |
Payout Agreement
| No payout information available.. |