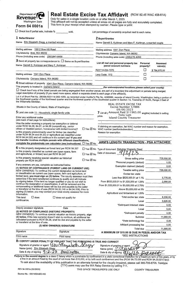
Property
Account |
| Property ID: | 162816 | Abbreviated Legal Description: | 78 - IN NE: BG N CR LOT 12 BLK 11 BUENA VISTA #4 N44*E 83.36' ALG CUR/R 294.41' TPB ALG CUR/R 332.78' S55*E 232.67' S48*W221.64' N41*W 141.32' ALG CUR/L 309.75' TP S11*W FR TPB N11*E161.07 TPB |
| Geographic ID: | R33219-464-3000 | Agent Code: | |
| Type: | Real | | |
| Tax Area: | 592 - APPRAISER-Stan/Cam Schl Dist, Special Dist, improved, greater than 1 acre | Land Use Code | 11 |
| Open Space: | N | DFL | N |
| Historic Property: | N | Remodel Property: | N |
| Multi-Family Redevelopment: | N | | |
| Township: | 32 | Section: | 19 |
| Range: | R3 |
Location |
| Address: | 221 BELVEDERE ST CAMANO ISLAND, WA 98282 | Mapsco: | |
| Neighborhood: | North Camano | Map ID: | 963 |
| Neighborhood CD: | 06-C |
Owner |
| Name: | BERGERON, JENNIFER LEE | Owner ID: | 297818 |
| Mailing Address: | DAVID ANTHONY BERGERON 221 BELVEDERE ST CAMANO ISLAND, WA 98282 | % Ownership: | 100.0000000000% |
| | | Exemptions: | |
Taxes and Assessment Details
Values
| (+) Improvement Homesite Value: | + | $0 | |
| (+) Improvement Non-Homesite Value: | + | $790,106 | |
| (+) Land Homesite Value: | + | $0 | |
| (+) Land Non-Homesite Value: | + | $460,000 | |
| (+) Curr Use (HS): | + | $0 | $0 |
| (+) Curr Use (NHS): | + | $0 | $0 |
| | | -------------------------- | |
| (=) Market Value: | = | $1,250,106 | |
| (–) Productivity Loss: | – | $0 | |
| | | -------------------------- | |
| (=) Subtotal: | = | $1,250,106 | |
| (+) Senior Appraised Value: | + | $0 | |
| (+) Non-Senior Appraised Value: | + | $1,250,106 | |
| | | -------------------------- | |
| (=) Total Appraised Value: | = | $1,250,106 | |
| (–) Senior Exemption Loss: | – | $0 | |
| (–) Exemption Loss: | – | $0 | |
| | | -------------------------- | |
| (=) Taxable Value: | = | $1,250,106 | |
Taxing Jurisdiction
| Owner: | BERGERON, JENNIFER LEE | | |
| % Ownership: | 100.0000000000% | | |
| Total Value: | $1,250,106 | | |
| Tax Area: | 592 - APPRAISER-Stan/Cam Schl Dist, Special Dist, improved, greater than 1 acre |
| CF | Conservation Futures | 0.0316035091 | $1,250,106 | $1,250,106 | $39.51 | | |
| EMS1 | Fire & Rescue Dist #1 Camano GEN (EMS) | 0.3677864386 | $1,250,106 | $1,250,106 | $459.77 | | |
| FIRE1 | Fire & Rescue Dist #1 Camano GEN | 1.2502910536 | $1,250,106 | $1,250,106 | $1,563.00 | | |
| FIRE1BOND | Fire & Rescue Dist #1 Camano BOND | 0.1570001679 | $1,250,106 | $1,250,106 | $196.27 | | |
| CE | County Current Expense | 0.3708482477 | $1,250,106 | $1,250,106 | $463.60 | | |
| CR | County Roads | 0.4584763726 | $1,250,106 | $1,250,106 | $573.14 | | |
| LCIB | Library Sno-Isle BOND (Camano Island) | 0.0396325772 | $1,250,106 | $1,250,106 | $49.54 | | |
| LIB | Library Sno-Isle GEN | 0.3153421757 | $1,250,106 | $1,250,106 | $394.21 | | |
| SCH205_401 | School 205-401 Enrichment | 1.2698420524 | $1,250,106 | $1,250,106 | $1,587.44 | | |
| SCH205BOND | School 205-401 BOND | 0.9396497583 | $1,250,106 | $1,250,106 | $1,174.66 | | |
| ST | State School | 1.3035497053 | $1,250,106 | $1,250,106 | $1,629.58 | | |
| ST2 | State School Part 2 | 0.8169543533 | $1,250,106 | $1,250,106 | $1,021.28 | | |
| | Total Tax Rate: | 7.3209764117 | | | | | |
| | | | | Taxes w/Current Exemptions: | $9,152.00 | | |
| | | | | Taxes w/o Exemptions: | $9,152.00 | | |
Improvement / Building
| Improvement #1: | RESIDENTIAL | State Code: | Y | 4323.0 sqft | Value: | $790,106 |
| Bathrooms: | 4 | Bedrooms: | 4 | | Ceiling: | DRYWALL PAINTED | Exterior Wall/Cover: | CEMENT FIBER | | Floor Covering: | HARDWOOD/CARP 60-40 | Floor Structure: | WOOD W/SUBFLOOR | | Foundation: | CONCRETE | Heating: | FHA GAS | | Interior Finish: | DRYWALL PAINT | Plumbing Fixture Cnt: | 19 | | Roof Slope: | 8" IN 12" | Roof Structure/Cover: | CJ ASPHALT |
|
| | Type | Description | Class CD | Sub Class CD | Year Built | Area |
| | BAS | BASE/MAIN FLOOR | 5 | 0 | 2001 | 1661.0 |
| | BGR | BASEMENT GARAGE | 5 | 0 | 2001 | 522.0 |
| | UPS | UPPER STORY | 5 | 0 | 2001 | 1345.0 |
| | OWP | OPEN WOOD PORCH W/STEPS | 5 | 0 | 2001 | 190.0 |
| | OWC | OPEN WOOD PORCH W/STEPS/ROOF/C | 5 | 0 | 2001 | 716.0 |
| | DWN | DOWNSTAIRS LIVING AREA | 5 | 0 | 2001 | 1217.0 |
| | oPOL | POLE BARN | 5 | 0 | 2001 | 0.0 |
| | LOF | LOFT | 5 | 0 | 2001 | 100.0 |
Sketch
Property Image
Land
| 1 | 18 | AC (02.01-03.00) | 0.0000 | 0.00 | 0.00 | 0.00 | 1.00 | $460,000 | $0 |
Roll Value History
| 2026 | N/A | N/A | N/A | N/A | N/A |
| 2025 | $790,106 | $460,000 | $0 | $1,250,106 | $1,250,106 |
| 2024 | $798,975 | $460,000 | $0 | $1,258,975 | $1,258,975 |
| 2023 | $807,846 | $450,000 | $0 | $1,257,846 | $1,257,846 |
| 2022 | $670,123 | $370,000 | $0 | $1,040,123 | $1,040,123 |
| 2021 | $592,648 | $270,000 | $0 | $862,648 | $862,648 |
| 2020 | $578,350 | $240,000 | $0 | $818,350 | $818,350 |
| 2019 | $510,641 | $300,000 | $0 | $810,641 | $810,641 |
| 2018 | $512,034 | $250,000 | $0 | $762,034 | $762,034 |
| 2017 | $514,815 | $200,000 | $0 | $714,815 | $714,815 |
| 2016 | $511,862 | $200,000 | $0 | $711,862 | $711,862 |
| 2015 | $517,395 | $150,000 | $0 | $667,395 | $667,395 |
| 2014 | $522,927 | $150,000 | $0 | $672,927 | $672,927 |
| 2013 | $528,461 | $150,000 | $0 | $678,461 | $678,461 |
| 2012 | $533,992 | $140,000 | $0 | $673,992 | $673,992 |
| 2011 | $539,524 | $175,000 | $0 | $714,524 | $714,524 |
| 2010 | $590,298 | $175,000 | $0 | $765,298 | $765,298 |
| 2009 | $614,051 | $200,000 | $0 | $814,051 | $814,051 |
| 2008 | $627,034 | $200,000 | $0 | $827,034 | $827,034 |
| 2007 | $628,642 | $200,000 | $0 | $828,642 | $828,642 |
Deed and Sales History
| 1 | 01/20/2021 | WD | Warranty Deed | HEMPSTEAD TRUSTEE, GEORGE D | BERGERON, JENNIFER LEE | | | $0.00 | 47672 | 4515802 |
| 2 | 01/20/2021 | WD | Warranty Deed | HEMPSTEAD TRUSTEE, GEORGE D | BERGERON, JENNIFER LEE | | | $925,000.00 | 46651 | 4508774 |
| 3 | 09/22/2016 | QCD | Quit Claim Deed | HEMPSTEAD TRUSTEE, GEORGE D | HEMPSTEAD TRUSTEE, GEORGE D | | | $0.00 | 26923 | 4411513 |
| 4 | 09/22/2016 | TRUSTEED | Trustee's Deed | HEMPSTEAD, GEORGE D | HEMPSTEAD TRUSTEE, GEORGE D | | | $0.00 | 26410 | 4408623 |
| 5 | 06/19/2000 | WD | Warranty Deed | HURR, NELSON K | HEMPSTEAD, GEORGE D | | | $118,000.00 | 2351 | 20011266 |
| 6 | 11/01/1989 | WD | Warranty Deed | MELLUM, GREG | HURR, NELSON K | | | $49,500.00 | 95475 | 89017591 |
| 7 | 01/01/1979 | OTHER | Other - Misc. Documents | Unknown | MELLUM, GREG | | | $25,000.00 | 90104 | 345707 |
Payout Agreement
| No payout information available.. |