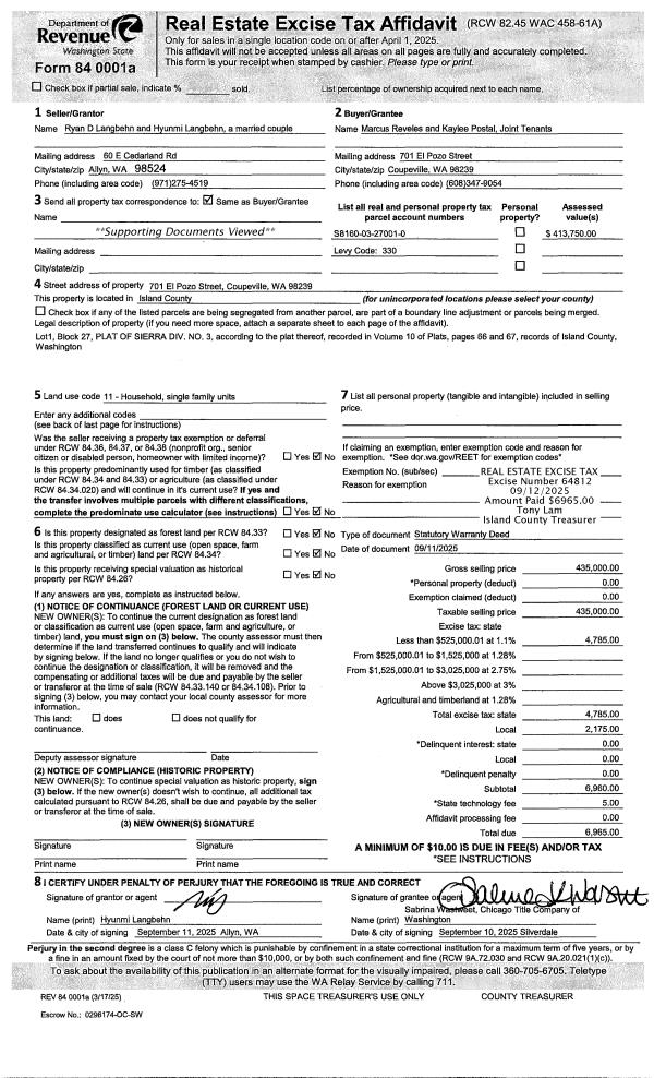
Property
Account |
| Property ID: | 163218 | Abbreviated Legal Description: | 10 - SW SE LY NLY OF ST HWY EX N334' OF W60' OF SW SE EX: BG NECR SW SE N89*W320' S TO NLN HWY E ALG HWY TP S FR TPB N TPB EX PT TO ST HWY AF#94007677 |
| Geographic ID: | R33220-105-3210 | Agent Code: | |
| Type: | Real | | |
| Tax Area: | 592 - APPRAISER-Stan/Cam Schl Dist, Special Dist, improved, greater than 1 acre | Land Use Code | 11 |
| Open Space: | N | DFL | N |
| Historic Property: | N | Remodel Property: | N |
| Multi-Family Redevelopment: | N | | |
| Township: | 32 | Section: | 20 |
| Range: | R3 |
Location |
| Address: | 659 SR 532 CAMANO ISLAND, WA 98282 | Mapsco: | |
| Neighborhood: | North Camano | Map ID: | 965 |
| Neighborhood CD: | 06-C |
Owner |
| Name: | BADGETT, PETER | Owner ID: | 311519 |
| Mailing Address: | RACHEL LEAH BADGETT 659 SR 532 CAMANO ISLAND, WA 98282 | % Ownership: | 100.0000000000% |
| | | Exemptions: | |
Taxes and Assessment Details
Values
| (+) Improvement Homesite Value: | + | $0 | |
| (+) Improvement Non-Homesite Value: | + | $206,986 | |
| (+) Land Homesite Value: | + | $0 | |
| (+) Land Non-Homesite Value: | + | $440,000 | |
| (+) Curr Use (HS): | + | $0 | $0 |
| (+) Curr Use (NHS): | + | $0 | $0 |
| | | -------------------------- | |
| (=) Market Value: | = | $646,986 | |
| (–) Productivity Loss: | – | $0 | |
| | | -------------------------- | |
| (=) Subtotal: | = | $646,986 | |
| (+) Senior Appraised Value: | + | $0 | |
| (+) Non-Senior Appraised Value: | + | $646,986 | |
| | | -------------------------- | |
| (=) Total Appraised Value: | = | $646,986 | |
| (–) Senior Exemption Loss: | – | $0 | |
| (–) Exemption Loss: | – | $0 | |
| | | -------------------------- | |
| (=) Taxable Value: | = | $646,986 | |
Taxing Jurisdiction
| Owner: | BADGETT, PETER | | |
| % Ownership: | 100.0000000000% | | |
| Total Value: | $646,986 | | |
| Tax Area: | 592 - APPRAISER-Stan/Cam Schl Dist, Special Dist, improved, greater than 1 acre |
| CF | Conservation Futures | 0.0316035091 | $646,986 | $646,986 | $20.45 | | |
| EMS1 | Fire & Rescue Dist #1 Camano GEN (EMS) | 0.3677864386 | $646,986 | $646,986 | $237.95 | | |
| FIRE1 | Fire & Rescue Dist #1 Camano GEN | 1.2502910536 | $646,986 | $646,986 | $808.92 | | |
| FIRE1BOND | Fire & Rescue Dist #1 Camano BOND | 0.1570001679 | $646,986 | $646,986 | $101.58 | | |
| CE | County Current Expense | 0.3708482477 | $646,986 | $646,986 | $239.93 | | |
| CR | County Roads | 0.4584763726 | $646,986 | $646,986 | $296.63 | | |
| LCIB | Library Sno-Isle BOND (Camano Island) | 0.0396325772 | $646,986 | $646,986 | $25.64 | | |
| LIB | Library Sno-Isle GEN | 0.3153421757 | $646,986 | $646,986 | $204.02 | | |
| SCH205_401 | School 205-401 Enrichment | 1.2698420524 | $646,986 | $646,986 | $821.57 | | |
| SCH205BOND | School 205-401 BOND | 0.9396497583 | $646,986 | $646,986 | $607.94 | | |
| ST | State School | 1.3035497053 | $646,986 | $646,986 | $843.38 | | |
| ST2 | State School Part 2 | 0.8169543533 | $646,986 | $646,986 | $528.56 | | |
| | Total Tax Rate: | 7.3209764117 | | | | | |
| | | | | Taxes w/Current Exemptions: | $4,736.57 | | |
| | | | | Taxes w/o Exemptions: | $4,736.57 | | |
Improvement / Building
| Improvement #1: | RESIDENTIAL | State Code: | Y | 2270.0 sqft | Value: | $206,986 |
| Bathrooms: | 3.5 | Bedrooms: | 3 | | Ceiling: | (NONE) | Exterior Wall/Cover: | ASBESTOES/ASPHALT | | Floor Covering: | CARPET/VINYL 80-20 | Floor Structure: | WOOD W/SUBFLOOR | | Foundation: | CONCRETE | Heating: | (NONE) | | Interior Finish: | (NONE) | Plumbing Fixture Cnt: | 14 | | Roof Slope: | 8" IN 12" | Roof Structure/Cover: | CJ ASPHALT |
|
| | Type | Description | Class CD | Sub Class CD | Year Built | Area |
| | BAS | BASE/MAIN FLOOR | 3 | 0 | 1930 | 1326.0 |
| | UB6 | BASEMENT UNFINISHED 6" | 3 | 0 | 1930 | 576.0 |
| | ENP | ENCLOSED PORCH | 3 | 0 | 1930 | 36.0 |
| | UPH | HALF STORY | 3 | 0 | 1930 | 944.0 |
| | oPOL | POLE BARN | 3 | 0 | 1930 | 1920.0 |
| | OWP | OPEN WOOD PORCH W/STEPS | 3 | 0 | 1930 | 420.0 |
Sketch
Property Image
Land
| 1 | 35 | AC (10.00-30.99) | 11.7000 | 509652.00 | 0.00 | 0.00 | 1.00 | $440,000 | $0 |
Roll Value History
| 2026 | N/A | N/A | N/A | N/A | N/A |
| 2025 | $206,986 | $440,000 | $0 | $646,986 | $646,986 |
| 2024 | $195,010 | $410,000 | $0 | $605,010 | $605,010 |
| 2023 | $203,830 | $340,000 | $0 | $543,830 | $543,830 |
| 2022 | $189,263 | $290,000 | $0 | $479,263 | $479,263 |
| 2021 | $169,376 | $210,000 | $0 | $379,376 | $379,376 |
| 2020 | $166,708 | $200,000 | $0 | $366,708 | $366,708 |
| 2019 | $132,743 | $250,000 | $0 | $382,743 | $382,743 |
| 2018 | $133,264 | $200,000 | $0 | $333,264 | $333,264 |
| 2017 | $134,312 | $160,000 | $0 | $294,312 | $294,312 |
| 2016 | $112,811 | $140,000 | $0 | $252,811 | $252,811 |
| 2015 | $114,969 | $138,120 | $0 | $253,089 | $253,089 |
| 2014 | $117,128 | $138,120 | $0 | $255,248 | $255,248 |
| 2013 | $119,286 | $138,120 | $0 | $257,406 | $257,406 |
| 2012 | $121,443 | $138,120 | $0 | $259,563 | $259,563 |
| 2011 | $123,603 | $172,650 | $0 | $296,253 | $296,253 |
| 2010 | $128,500 | $172,650 | $0 | $301,150 | $301,150 |
| 2009 | $135,175 | $253,220 | $0 | $388,395 | $388,395 |
| 2008 | $138,810 | $276,240 | $0 | $415,050 | $415,050 |
| 2007 | $142,406 | $276,240 | $0 | $418,646 | $418,646 |
Deed and Sales History
| 1 | 01/29/2025 | WD | Warranty Deed | LEE TTEE, TAYLOR TAMMY | BADGETT, PETER | | | $236,750.00 | 62487 | 4581907 |
|   | |
| 2 | 02/20/2024 | WD | Warranty Deed | MCLEES, DONALD H | BADGETT, PETER | | | $1,000,000.00 | 59275 | 4569716 |
|   | |
| 3 | 01/01/1994 | WD | Warranty Deed | MCLEES, DONALD H | MCLEES, DONALD H | | | $5,767.00 | 41214 | 94007677 |
| 4 | 02/01/1992 | QCD | Quit Claim Deed | MCLEES, DONALD H | MCLEES, DONALD H | | | $0.00 | 21027 | 92005140 |
| 5 | 06/01/1984 | WD | Warranty Deed | LEQUE, JOHN | MCLEES, DONALD H | | | $90,000.00 | 41701 | 425846 |
| 6 | 01/01/1900 | OTHER | Other - Misc. Documents | Unknown | LEQUE, JOHN | | | $0.00 | 0 | 0 |
Payout Agreement
| No payout information available.. |