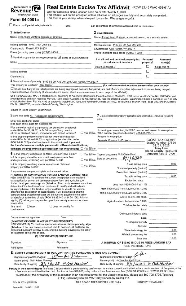
Property
Account |
| Property ID: | 163520 | Abbreviated Legal Description: | 39 - N/2 SW NW EX W50' DRAINFIELD LOC 33219-370- 5040 AF#96011905 |
| Geographic ID: | R33220-363-0670 | Agent Code: | |
| Type: | Real | | |
| Tax Area: | 592 - APPRAISER-Stan/Cam Schl Dist, Special Dist, improved, greater than 1 acre | Land Use Code | 83 |
| Open Space: | Y | DFL | N |
| Historic Property: | N | Remodel Property: | N |
| Multi-Family Redevelopment: | N | | |
| Township: | 32 | Section: | 20 |
| Range: | R3 |
Location |
| Address: | 359 E NORTH CAMANO DR CAMANO ISLAND, WA 98282 | Mapsco: | |
| Neighborhood: | North Camano | Map ID: | 966 |
| Neighborhood CD: | 06-C |
Owner |
| Name: | BAMBER, MARK S | Owner ID: | 266389 |
| Mailing Address: | 353 E NORTH CAMANO DR CAMANO ISLAND, WA 98282 | % Ownership: | 100.0000000000% |
| | | Exemptions: | |
Taxes and Assessment Details
Values
| (+) Improvement Homesite Value: | + | $0 | |
| (+) Improvement Non-Homesite Value: | + | $253,871 | |
| (+) Land Homesite Value: | + | $0 | |
| (+) Land Non-Homesite Value: | + | $330,000 | |
| (+) Curr Use (HS): | + | $0 | $0 |
| (+) Curr Use (NHS): | + | $110,000 | $13,425 |
| | | -------------------------- | |
| (=) Market Value: | = | $693,871 | |
| (–) Productivity Loss: | – | $96,575 | |
| | | -------------------------- | |
| (=) Subtotal: | = | $597,296 | |
| (+) Senior Appraised Value: | + | $0 | |
| (+) Non-Senior Appraised Value: | + | $597,296 | |
| | | -------------------------- | |
| (=) Total Appraised Value: | = | $597,296 | |
| (–) Senior Exemption Loss: | – | $0 | |
| (–) Exemption Loss: | – | $0 | |
| | | -------------------------- | |
| (=) Taxable Value: | = | $597,296 | |
Taxing Jurisdiction
| Owner: | BAMBER, MARK S | | |
| % Ownership: | 100.0000000000% | | |
| Total Value: | $693,871 | | |
| Tax Area: | 592 - APPRAISER-Stan/Cam Schl Dist, Special Dist, improved, greater than 1 acre |
| CF | Conservation Futures | 0.0316035091 | $597,296 | $597,296 | $18.88 | | |
| EMS1 | Fire & Rescue Dist #1 Camano GEN (EMS) | 0.3677864386 | $597,296 | $597,296 | $219.68 | | |
| FIRE1 | Fire & Rescue Dist #1 Camano GEN | 1.2502910536 | $597,296 | $597,296 | $746.79 | | |
| FIRE1BOND | Fire & Rescue Dist #1 Camano BOND | 0.1570001679 | $597,296 | $597,296 | $93.78 | | |
| CE | County Current Expense | 0.3708482477 | $597,296 | $597,296 | $221.51 | | |
| CR | County Roads | 0.4584763726 | $597,296 | $597,296 | $273.85 | | |
| LCIB | Library Sno-Isle BOND (Camano Island) | 0.0396325772 | $597,296 | $597,296 | $23.67 | | |
| LIB | Library Sno-Isle GEN | 0.3153421757 | $597,296 | $597,296 | $188.35 | | |
| SCH205_401 | School 205-401 Enrichment | 1.2698420524 | $597,296 | $597,296 | $758.47 | | |
| SCH205BOND | School 205-401 BOND | 0.9396497583 | $597,296 | $597,296 | $561.25 | | |
| ST | State School | 1.3035497053 | $597,296 | $597,296 | $778.61 | | |
| ST2 | State School Part 2 | 0.8169543533 | $597,296 | $597,296 | $487.96 | | |
| | Total Tax Rate: | 7.3209764117 | | | | | |
| | | | | Taxes w/Current Exemptions: | $4,372.80 | | |
| | | | | Taxes w/o Exemptions: | $4,372.80 | | |
Improvement / Building
| Improvement #1: | RESIDENTIAL | State Code: | Y | 1192.0 sqft | Value: | $253,871 |
| Bathrooms: | 1 | Bedrooms: | 2 | | Ceiling: | BEAM PAINTED | Exterior Wall/Cover: | PLY/HARDBOARD T-111 | | Floor Covering: | VINYL TILE/CARP 20-80 | Floor Structure: | WOOD W/SUBFLOOR | | Foundation: | CONCRETE | Heating: | BASEBOARD ELECTRIC | | Interior Finish: | DRYWALL PAINT | Plumbing Fixture Cnt: | 7 | | Roof Slope: | 8" IN 12" | Roof Structure/Cover: | CJ ASPHALT |
|
| | Type | Description | Class CD | Sub Class CD | Year Built | Area |
| | BAS | BASE/MAIN FLOOR | 3 | 0 | 1940 | 1192.0 |
| | OWP | OPEN WOOD PORCH W/STEPS | 3 | 0 | 1940 | 200.0 |
| | OWP | OPEN WOOD PORCH W/STEPS | 3 | 0 | 1940 | 336.0 |
| | ENP | ENCLOSED PORCH | 3 | 0 | 1940 | 350.0 |
| | ENP | ENCLOSED PORCH | 3 | 0 | 1940 | 352.0 |
Sketch
Property Image
Land
| 1 | 83 | OPEN AGRICULTURE | 18.2400 | 794534.40 | 0.00 | 0.00 | 1.00 | $110,000 | $13,425 |
| 2 | HS | HOMESITE | 1.0000 | 43560.00 | 0.00 | 0.00 | 1.00 | $330,000 | $0 |
Roll Value History
| 2026 | N/A | N/A | N/A | N/A | N/A |
| 2025 | $253,871 | $440,000 | $13,425 | $597,296 | $597,296 |
| 2024 | $257,759 | $410,000 | $13,425 | $591,184 | $591,184 |
| 2023 | $260,970 | $400,000 | $13,425 | $295,185 | $295,185 |
| 2022 | $227,587 | $400,000 | $13,425 | $261,802 | $261,802 |
| 2021 | $200,420 | $310,000 | $13,425 | $229,957 | $229,957 |
| 2020 | $195,417 | $290,000 | $13,425 | $224,742 | $224,742 |
| 2019 | $139,020 | $290,000 | $13,425 | $168,345 | $168,345 |
| 2018 | $139,448 | $290,000 | $13,425 | $168,773 | $168,773 |
| 2017 | $140,302 | $220,000 | $13,425 | $163,727 | $163,727 |
| 2016 | $106,940 | $220,000 | $13,425 | $130,365 | $130,365 |
| 2015 | $108,318 | $200,096 | $13,425 | $132,143 | $132,143 |
| 2014 | $109,695 | $200,096 | $13,425 | $133,520 | $133,520 |
| 2013 | $111,073 | $200,096 | $13,425 | $134,898 | $134,898 |
| 2012 | $112,450 | $200,096 | $13,425 | $136,275 | $136,275 |
| 2011 | $0 | $237,120 | $13,425 | $13,425 | $13,425 |
| 2010 | $0 | $237,120 | $13,425 | $13,425 | $13,425 |
| 2009 | $0 | $273,600 | $13,425 | $13,425 | $13,425 |
| 2008 | $0 | $373,520 | $13,425 | $13,425 | $13,425 |
| 2007 | $0 | $273,000 | $13,425 | $13,425 | $13,425 |
Deed and Sales History
| 1 | 09/01/1995 | WD | Warranty Deed | BAMBER, MARK S | BAMBER, MARK S | | | $0.00 | 53274 | 95015067 |
| 2 | 09/01/1995 | QCD | Quit Claim Deed | MARSHALL, G R | BAMBER, MARK S | | | $0.00 | 53275 | 95015068 |
| 3 | 06/01/1989 | OTHER | Other - Misc. Documents | MARSHALL, G R | MARSHALL, G R | | | $0.00 | 63212 | 89006896 |
| 4 | 04/01/1989 | WD | Warranty Deed | RAINIER, NATIONAL B | MARSHALL, G R | | | $0.00 | 91538 | 89005352 |
| 5 | 10/01/1986 | OTHER | Other - Misc. Documents | TURNER, KENNETH C | RAINIER, NATIONAL B | | | $0.00 | 73662 | 87015927 |
| 6 | 06/01/1986 | OTHER | Other - Misc. Documents | Unknown | TURNER, KENNETH C | | | $0.00 | 70195 | 87001366 |
Payout Agreement
| No payout information available.. |