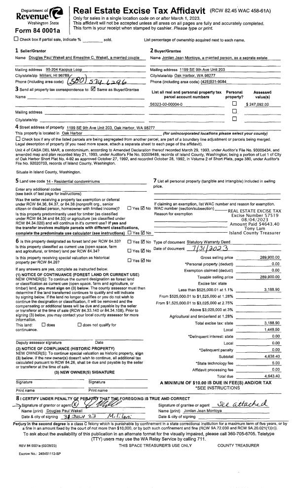
Property
Account |
| Property ID: | 163566 | Abbreviated Legal Description: | 16 - S/2 NE NW TGW NE NE NW |
| Geographic ID: | R33220-428-2000 | Agent Code: | |
| Type: | Real | | |
| Tax Area: | 599 - APPRAISER-Stan/Cam Schl Dist, Special Dist, vacant & 50 acres or less | Land Use Code | 91 |
| Open Space: | N | DFL | N |
| Historic Property: | N | Remodel Property: | N |
| Multi-Family Redevelopment: | N | | |
| Township: | 32 | Section: | 20 |
| Range: | R3 |
Location |
| Address: | | Mapsco: | |
| Neighborhood: | North Camano | Map ID: | 966 |
| Neighborhood CD: | 06-C |
Owner |
| Name: | NAKAYAMA, JEAN I | Owner ID: | 29068 |
| Mailing Address: | PO BOX 84406 SEATTLE, WA 98124-5706 | % Ownership: | 100.0000000000% |
| | | Exemptions: | |
Taxes and Assessment Details
Values
| (+) Improvement Homesite Value: | + | $0 | |
| (+) Improvement Non-Homesite Value: | + | $0 | |
| (+) Land Homesite Value: | + | $0 | |
| (+) Land Non-Homesite Value: | + | $310,000 | |
| (+) Curr Use (HS): | + | $0 | $0 |
| (+) Curr Use (NHS): | + | $0 | $0 |
| | | -------------------------- | |
| (=) Market Value: | = | $310,000 | |
| (–) Productivity Loss: | – | $0 | |
| | | -------------------------- | |
| (=) Subtotal: | = | $310,000 | |
| (+) Senior Appraised Value: | + | $0 | |
| (+) Non-Senior Appraised Value: | + | $310,000 | |
| | | -------------------------- | |
| (=) Total Appraised Value: | = | $310,000 | |
| (–) Senior Exemption Loss: | – | $0 | |
| (–) Exemption Loss: | – | $0 | |
| | | -------------------------- | |
| (=) Taxable Value: | = | $310,000 | |
Taxing Jurisdiction
| Owner: | NAKAYAMA, JEAN I | | |
| % Ownership: | 100.0000000000% | | |
| Total Value: | $310,000 | | |
| Tax Area: | 599 - APPRAISER-Stan/Cam Schl Dist, Special Dist, vacant & 50 acres or less |
| CF | Conservation Futures | 0.0316035091 | $310,000 | $310,000 | $9.80 | | |
| EMS1 | Fire & Rescue Dist #1 Camano GEN (EMS) | 0.3677864386 | $310,000 | $310,000 | $114.01 | | |
| CE | County Current Expense | 0.3708482477 | $310,000 | $310,000 | $114.96 | | |
| CR | County Roads | 0.4584763726 | $310,000 | $310,000 | $142.13 | | |
| LCIB | Library Sno-Isle BOND (Camano Island) | 0.0396325772 | $310,000 | $310,000 | $12.29 | | |
| LIB | Library Sno-Isle GEN | 0.3153421757 | $310,000 | $310,000 | $97.76 | | |
| SCH205_401 | School 205-401 Enrichment | 1.2698420524 | $310,000 | $310,000 | $393.65 | | |
| SCH205BOND | School 205-401 BOND | 0.9396497583 | $310,000 | $310,000 | $291.29 | | |
| ST | State School | 1.3035497053 | $310,000 | $310,000 | $404.10 | | |
| ST2 | State School Part 2 | 0.8169543533 | $310,000 | $310,000 | $253.26 | | |
| | Total Tax Rate: | 5.9136851902 | | | | | |
| | | | | Taxes w/Current Exemptions: | $1,833.25 | | |
| | | | | Taxes w/o Exemptions: | $1,833.25 | | |
Improvement / Building
Sketch
| No sketches available for this property. |
Property Image
Land
| 1 | 35 | AC (10.00-30.99) | 29.9800 | 1305928.80 | 0.00 | 0.00 | 1.00 | $310,000 | $0 |
Roll Value History
| 2026 | N/A | N/A | N/A | N/A | N/A |
| 2025 | $0 | $310,000 | $0 | $310,000 | $310,000 |
| 2024 | $0 | $290,000 | $0 | $290,000 | $290,000 |
| 2023 | $0 | $360,000 | $0 | $360,000 | $360,000 |
| 2022 | $0 | $360,000 | $0 | $360,000 | $360,000 |
| 2021 | $0 | $320,000 | $0 | $320,000 | $320,000 |
| 2020 | $0 | $320,000 | $0 | $320,000 | $320,000 |
| 2019 | $0 | $320,000 | $0 | $320,000 | $320,000 |
| 2018 | $0 | $300,000 | $0 | $300,000 | $300,000 |
| 2017 | $0 | $300,000 | $0 | $300,000 | $300,000 |
| 2016 | $0 | $300,000 | $0 | $300,000 | $300,000 |
| 2015 | $0 | $359,760 | $0 | $359,760 | $359,760 |
| 2014 | $0 | $359,760 | $0 | $359,760 | $359,760 |
| 2013 | $0 | $359,760 | $0 | $359,760 | $359,760 |
| 2012 | $0 | $359,760 | $0 | $359,760 | $359,760 |
| 2011 | $0 | $449,700 | $0 | $449,700 | $449,700 |
| 2010 | $0 | $449,700 | $0 | $449,700 | $449,700 |
| 2009 | $0 | $599,600 | $0 | $599,600 | $599,600 |
| 2008 | $0 | $599,600 | $0 | $599,600 | $599,600 |
| 2007 | $0 | $599,600 | $0 | $599,600 | $599,600 |
Deed and Sales History
| 1 | 08/01/1992 | DECREE | Divorce Decree/Legal Separation | PUSEY, GERTRUDE W | NAKAYAMA, JEAN I | | | $0.00 | 64995 | 0 |
| 2 | 06/01/1982 | PACD | Purchaser's Assignment | NAKAYAMA, KOZO | PUSEY, GERTRUDE W | | | $0.00 | 59540 | 0 |
| 3 | 06/01/1982 | WD | Warranty Deed | PUSEY, SAMUEL R | NAKAYAMA, KOZO | | | $110,000.00 | 21548 | 397941 |
| 4 | 01/01/1900 | OTHER | Other - Misc. Documents | Unknown | PUSEY, SAMUEL R | | | $0.00 | 0 | 0 |
Payout Agreement
| No payout information available.. |