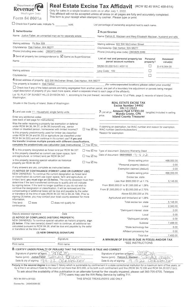
Property
Account |
| Property ID: | 163753 | Abbreviated Legal Description: | 18 - BG SECR SW SW W208' 8-1/2 |
| Geographic ID: | R33221-020-1270 | Agent Code: | |
| Type: | Real | | |
| Tax Area: | 512 - APPRAISER-Stan/Cam Schl Dist, improved, greater than 1 acre | Land Use Code | 59 |
| Open Space: | N | DFL | N |
| Historic Property: | N | Remodel Property: | N |
| Multi-Family Redevelopment: | N | | |
| Township: | 32 | Section: | 21 |
| Range: | R3 |
Location |
| Address: | 909 SR532 CAMANO ISLAND, WA 98282 | Mapsco: | |
| Neighborhood: | 51cRR-highway 532 | Map ID: | 968 |
| Neighborhood CD: | 51cRRhw532 |
Owner |
| Name: | HAWTHORNE, BRUCE J | Owner ID: | 61126 |
| Mailing Address: | LESLIE K HAWTHORNE 909 STATE HWY 532 CAMANO ISLAND, WA 98282-8830 | % Ownership: | 100.0000000000% |
| | | Exemptions: | |
Taxes and Assessment Details
Values
| (+) Improvement Homesite Value: | + | $0 | |
| (+) Improvement Non-Homesite Value: | + | $315,261 | |
| (+) Land Homesite Value: | + | $0 | |
| (+) Land Non-Homesite Value: | + | $290,000 | |
| (+) Curr Use (HS): | + | $0 | $0 |
| (+) Curr Use (NHS): | + | $0 | $0 |
| | | -------------------------- | |
| (=) Market Value: | = | $605,261 | |
| (–) Productivity Loss: | – | $0 | |
| | | -------------------------- | |
| (=) Subtotal: | = | $605,261 | |
| (+) Senior Appraised Value: | + | $0 | |
| (+) Non-Senior Appraised Value: | + | $605,261 | |
| | | -------------------------- | |
| (=) Total Appraised Value: | = | $605,261 | |
| (–) Senior Exemption Loss: | – | $0 | |
| (–) Exemption Loss: | – | $0 | |
| | | -------------------------- | |
| (=) Taxable Value: | = | $605,261 | |
Taxing Jurisdiction
| Owner: | HAWTHORNE, BRUCE J | | |
| % Ownership: | 100.0000000000% | | |
| Total Value: | $605,261 | | |
| Tax Area: | 512 - APPRAISER-Stan/Cam Schl Dist, improved, greater than 1 acre |
| CF | Conservation Futures | 0.0316035091 | $605,261 | $605,261 | $19.13 | | |
| EMS1 | Fire & Rescue Dist #1 Camano GEN (EMS) | 0.3677864386 | $605,261 | $605,261 | $222.61 | | |
| FIRE1 | Fire & Rescue Dist #1 Camano GEN | 1.2502910536 | $605,261 | $605,261 | $756.75 | | |
| FIRE1BOND | Fire & Rescue Dist #1 Camano BOND | 0.1570001679 | $605,261 | $605,261 | $95.03 | | |
| CE | County Current Expense | 0.3708482477 | $605,261 | $605,261 | $224.46 | | |
| CR | County Roads | 0.4584763726 | $605,261 | $605,261 | $277.50 | | |
| LCIB | Library Sno-Isle BOND (Camano Island) | 0.0396325772 | $605,261 | $605,261 | $23.99 | | |
| LIB | Library Sno-Isle GEN | 0.3153421757 | $605,261 | $605,261 | $190.86 | | |
| SCH205_401 | School 205-401 Enrichment | 1.2698420524 | $605,261 | $605,261 | $768.59 | | |
| SCH205BOND | School 205-401 BOND | 0.9396497583 | $605,261 | $605,261 | $568.73 | | |
| ST | State School | 1.3035497053 | $605,261 | $605,261 | $788.99 | | |
| ST2 | State School Part 2 | 0.8169543533 | $605,261 | $605,261 | $494.47 | | |
| | Total Tax Rate: | 7.3209764117 | | | | | |
| | | | | Taxes w/Current Exemptions: | $4,431.11 | | |
| | | | | Taxes w/o Exemptions: | $4,431.11 | | |
Improvement / Building
| Improvement #1: | COMMERCIAL | State Code: | F1 | 2784.0 sqft | Value: | $127,377 |
| Bathrooms: | 0 | Bedrooms: | 0 | | Ceiling: | PAINT OPEN FLOOR BAS | Exterior Wall/Cover: | PLYWD/WD OR ST STUDS | | Floor Covering: | COMPOSITION TILE | Floor Structure: | CONCRETE ON GROUND | | Foundation: | SLAB | Heating: | BASEBOARD ELECTRIC | | Interior Finish: | RETAIL | Plumbing Fixture Cnt: | 1 | | Roof Structure/Cover: | BEAM BUILT-UP ROCK |   |   |
|
| | Type | Description | Class CD | Sub Class CD | Year Built | Area |
| | BAS | BASE/MAIN FLOOR | 2 | 0 | 1963 | 2784.0 |
| | ENP | ENCLOSED PORCH | 2 | 0 | 1963 | 185.0 |
| | AGR | ATTACHED GARAGE | 2 | 0 | 1963 | 1200.0 |
| Improvement #2: | COMMERCIAL | State Code: | F1 | 9440.0 sqft | Value: | $104,079 |
| Bathrooms: | 0 | Bedrooms: | 0 | | Exterior Wall/Cover: | STL/ALM/WD OR ST STD | Floor Covering: | CONCRETE SEALER | | Floor Structure: | CONCRETE ON GROUND | Foundation: | SLAB | | Interior Finish: | WAREHOUSE STORAGE | Plumbing Fixture Cnt: | 1 | | Roof Structure/Cover: | METAL/OPEN WOOD |   |   |
|
| | Type | Description | Class CD | Sub Class CD | Year Built | Area |
| | BAS | BASE/MAIN FLOOR | 2 | 0 | 1975 | 9440.0 |
| | oFN8 | CHN LK 6' | 2 | 0 | 1975 | 0.0 |
| | oPV1 | PV/ASPH 2" | 2 | 0 | 1975 | 0.0 |
| Improvement #3: | COMMERCIAL | State Code: | F1 | 2400.0 sqft | Value: | $83,805 |
| Bathrooms: | 0 | Bedrooms: | 0 | | Ceiling: | DRYWALL PAINTED | Exterior Wall/Cover: | WD/WD OR STEEL STUDS | | Floor Covering: | CONCRETE SEALER | Floor Structure: | CONCRETE ON GROUND | | Foundation: | SLAB | Heating: | SPACE HEATERS | | Interior Finish: | MANUFACTURING (LIGHT) | Plumbing Fixture Cnt: | 1 | | Roof Structure/Cover: | METAL/OPEN WOOD |   |   |
|
Sketch
Property Image
Land
| 1 | 68 | COMMERCIAL RETAIL | 1.9200 | 83635.20 | 0.00 | 0.00 | 1.00 | $290,000 | $0 |
Roll Value History
| 2026 | N/A | N/A | N/A | N/A | N/A |
| 2025 | $315,261 | $290,000 | $0 | $605,261 | $605,261 |
| 2024 | $335,360 | $290,000 | $0 | $625,360 | $625,360 |
| 2023 | $354,329 | $270,000 | $0 | $624,329 | $624,329 |
| 2022 | $277,826 | $260,000 | $0 | $537,826 | $537,826 |
| 2021 | $202,103 | $180,000 | $0 | $382,103 | $382,103 |
| 2020 | $201,889 | $180,000 | $0 | $381,889 | $381,889 |
| 2019 | $180,842 | $180,000 | $0 | $360,842 | $360,842 |
| 2018 | $180,933 | $150,000 | $0 | $330,933 | $330,933 |
| 2017 | $181,116 | $120,000 | $0 | $301,116 | $301,116 |
| 2016 | $181,480 | $120,000 | $0 | $301,480 | $301,480 |
| 2015 | $212,347 | $324,504 | $0 | $536,851 | $536,851 |
| 2014 | $212,347 | $324,504 | $0 | $536,851 | $536,851 |
| 2013 | $212,347 | $324,504 | $0 | $536,851 | $536,851 |
| 2012 | $212,347 | $324,504 | $0 | $536,851 | $536,851 |
| 2011 | $212,347 | $324,504 | $0 | $536,851 | $536,851 |
| 2010 | $215,829 | $324,504 | $0 | $540,333 | $540,333 |
| 2009 | $224,278 | $324,504 | $0 | $548,782 | $548,782 |
| 2008 | $228,436 | $341,231 | $0 | $569,667 | $569,667 |
| 2007 | $232,329 | $341,231 | $0 | $573,560 | $573,560 |
Deed and Sales History
| 1 | 02/14/2005 | WD | Warranty Deed | REYER, CAROL F | HAWTHORNE, BRUCE J | | | $550,000.00 | 50592 | 4125911 |
| 2 | 11/08/1999 | QCD | Quit Claim Deed | REYER, CAROL F | REYER, CAROL F | | | $0.00 | 94889 | 99027369 |
| 3 | 05/01/1994 | QCD | Quit Claim Deed | REYER, CAROL F | REYER, CAROL F | | | $0.00 | 41731 | 94010277 |
| 4 | 04/01/1994 | OTHER | Other - Misc. Documents | REYER, CAROL F | REYER, CAROL F | | | $0.00 | 65843 | 0 |
| 5 | 03/01/1994 | WD | Warranty Deed | JACOBSEN, CAROL F | REYER, CAROL F | | | $31,900.00 | 42382 | 94013400 |
| 6 | 12/01/1989 | WD | Warranty Deed | HARMON, PHILIP E | JACOBSEN, CAROL F | | | $270,000.00 | 125 | 90000360 |
| 7 | 05/01/1984 | QCD | Quit Claim Deed | FAMILY, INVESTMENT C | HARMON, PHILIP E | | | $0.00 | 41485 | 425134 |
| 8 | 04/01/1981 | CD | DNU - Correction Deed | HARMON, PHILIP E | FAMILY, INVESTMENT C | | | $1.00 | 20330 | 393082 |
| 9 | 06/01/1980 | CD | DNU - Correction Deed | HARMON, PHILIP E | HARMON, PHILIP E | | | $0.00 | 2249 | 370734 |
| 10 | 01/01/1900 | OTHER | Other - Misc. Documents | Unknown | HARMON, PHILIP E | | | $0.00 | 0 | 0 |
Payout Agreement
| No payout information available.. |