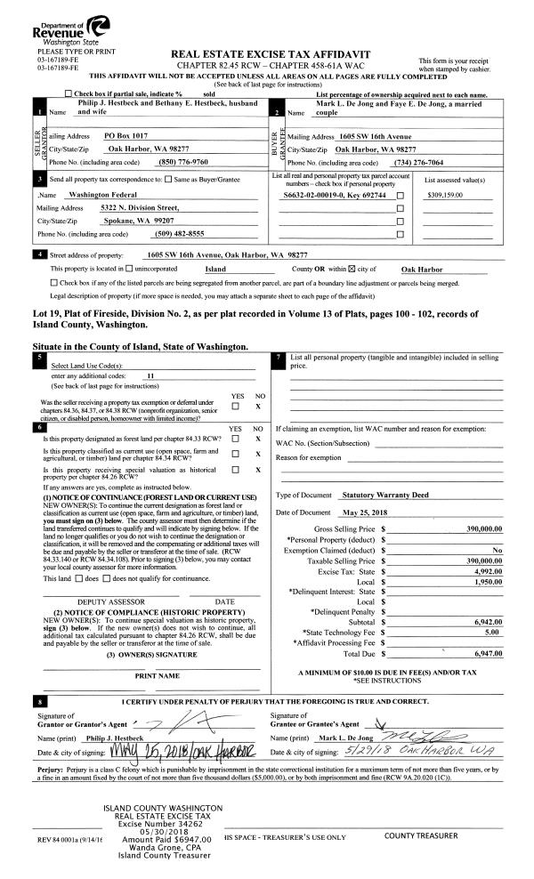
Property
Account |
| Property ID: | 1642 | Abbreviated Legal Description: | 33 J S SMITH DC - BG NWCR SD DC S1*W5115' S88*E747.99 S1*W754.30' TPB S88*E577.50 S1*W377.15' N88*W577.50' N1*E377.15' TPB TGW & SUB EZ |
| Geographic ID: | R13101-267-1810 | Agent Code: | |
| Type: | Real | | |
| Tax Area: | 312 - APPRAISER-Cpvl Schl Dist, outside Cpvl, improved, greater than 1 acre | Land Use Code | 11 |
| Open Space: | N | DFL | N |
| Historic Property: | N | Remodel Property: | N |
| Multi-Family Redevelopment: | N | | |
| Township: | 31 | Section: | 01 |
| Range: | R1 |
Location |
| Address: | 205 MEADOWLARK RD COUPEVILLE, WA 98239 | Mapsco: | |
| Neighborhood: | Cycle 2 | Map ID: | 17 |
| Neighborhood CD: | 2 |
Owner |
| Name: | MARLEY, SARAH ALEXA | Owner ID: | 289199 |
| Mailing Address: | 205 MEADOWLARK RD COUPEVILLE, WA 98239 | % Ownership: | 100.0000000000% |
| | | Exemptions: | |
Taxes and Assessment Details
Values
| (+) Improvement Homesite Value: | + | $0 | |
| (+) Improvement Non-Homesite Value: | + | $221,731 | |
| (+) Land Homesite Value: | + | $0 | |
| (+) Land Non-Homesite Value: | + | $340,000 | |
| (+) Curr Use (HS): | + | $0 | $0 |
| (+) Curr Use (NHS): | + | $0 | $0 |
| | | -------------------------- | |
| (=) Market Value: | = | $561,731 | |
| (–) Productivity Loss: | – | $0 | |
| | | -------------------------- | |
| (=) Subtotal: | = | $561,731 | |
| (+) Senior Appraised Value: | + | $0 | |
| (+) Non-Senior Appraised Value: | + | $561,731 | |
| | | -------------------------- | |
| (=) Total Appraised Value: | = | $561,731 | |
| (–) Senior Exemption Loss: | – | $0 | |
| (–) Exemption Loss: | – | $0 | |
| | | -------------------------- | |
| (=) Taxable Value: | = | $561,731 | |
Taxing Jurisdiction
| Owner: | MARLEY, SARAH ALEXA | | |
| % Ownership: | 100.0000000000% | | |
| Total Value: | $561,731 | | |
| Tax Area: | 312 - APPRAISER-Cpvl Schl Dist, outside Cpvl, improved, greater than 1 acre |
| CF | Conservation Futures | 0.0316035091 | $561,731 | $561,731 | $17.75 | | |
| CEM2 | Cemetery #2 | 0.0095056933 | $561,731 | $561,731 | $5.34 | | |
| FIRE5 | Fire & Rescue Dist #5 C Whidbey GEN | 1.2008080668 | $561,731 | $561,731 | $674.53 | | |
| FIRE5BOND | Fire & Rescue Dist #5 C Whidbey BOND | 0.1400090713 | $561,731 | $561,731 | $78.65 | | |
| HOBOND | Hospital BOND | 0.1910887512 | $561,731 | $561,731 | $107.34 | | |
| HOGEN | Hospital GEN | 0.3902502903 | $561,731 | $561,731 | $219.22 | | |
| CE | County Current Expense | 0.3708482477 | $561,731 | $561,731 | $208.32 | | |
| CR | County Roads | 0.4584763726 | $561,731 | $561,731 | $257.54 | | |
| ISLANDEMS | Hospital GEN (EMS) | 0.5000000000 | $561,731 | $561,731 | $280.87 | | |
| LIB | Library Sno-Isle GEN | 0.3153421757 | $561,731 | $561,731 | $177.14 | | |
| LIBCAP | Library Sno-Isle BOND (Cap Fac Imp Area) | 0.0543427938 | $561,731 | $561,731 | $30.53 | | |
| POCOUP | Port of Coupeville GEN | 0.1093371703 | $561,731 | $561,731 | $61.42 | | |
| POCOUPIDD | Port of Coupeville IDD | 0.3409740022 | $561,731 | $561,731 | $191.54 | | |
| COUPSDTECH | School 204 CP (TECH) | 0.7545480007 | $561,731 | $561,731 | $423.85 | | |
| SCH204MO | School 204 Enrichment | 0.6716186034 | $561,731 | $561,731 | $377.27 | | |
| ST | State School | 1.3035497053 | $561,731 | $561,731 | $732.24 | | |
| ST2 | State School Part 2 | 0.8169543533 | $561,731 | $561,731 | $458.91 | | |
| | Total Tax Rate: | 7.6592568070 | | | | | |
| | | | | Taxes w/Current Exemptions: | $4,302.46 | | |
| | | | | Taxes w/o Exemptions: | $4,302.46 | | |
Improvement / Building
| Improvement #1: | RESIDENTIAL | State Code: | Y | 1088.0 sqft | Value: | $221,731 |
| Bathrooms: | 1.5 | Bedrooms: | 3 | | Ceiling: | DRY WALL SPRAYED | Exterior Wall/Cover: | PLY/HARDBOARD T-111 | | Floor Covering: | CARPET/VINYL 80-20 | Floor Structure: | WOOD W/SUBFLOOR | | Foundation: | CONCRETE | Heating: | BASEBOARD ELECTRIC | | Interior Finish: | DRYWALL PAINT | Plumbing Fixture Cnt: | 8 | | Roof Slope: | 4" IN 12" | Roof Structure/Cover: | CJ ASPHALT |
|
| | Type | Description | Class CD | Sub Class CD | Year Built | Area |
| | BAS | BASE/MAIN FLOOR | 3 | 0 | 1977 | 1088.0 |
| | OWR | OPEN WOOD PORCH W/STEPS/ROOF | 3 | 0 | 1977 | 44.0 |
| | AGR | ATTACHED GARAGE | 3 | 0 | 1977 | 384.0 |
| | DGR | DETACHED GARAGE | 3 | 0 | 1977 | 1224.0 |
Sketch
| No sketches available for this property. |
Property Image
Land
| 1 | HS | HOMESITE | 1.0000 | 43560.00 | 0.00 | 0.00 | 1.00 | $220,000 | $0 |
| 2 | 91 | UNDEVELOPED LAND-METES AND BOUNDS | 4.0000 | 174240.00 | 0.00 | 0.00 | 1.00 | $120,000 | $0 |
Roll Value History
| 2026 | N/A | N/A | N/A | N/A | N/A |
| 2025 | $221,731 | $340,000 | $0 | $561,731 | $561,731 |
| 2024 | $214,741 | $290,000 | $0 | $504,741 | $504,741 |
| 2023 | $217,888 | $280,000 | $0 | $497,888 | $497,888 |
| 2022 | $200,144 | $250,000 | $0 | $450,144 | $450,144 |
| 2021 | $176,511 | $170,000 | $0 | $346,511 | $346,511 |
| 2020 | $172,003 | $160,000 | $0 | $332,003 | $332,003 |
| 2019 | $121,065 | $230,000 | $0 | $351,065 | $351,065 |
| 2018 | $106,216 | $200,000 | $0 | $306,216 | $306,216 |
| 2017 | $106,855 | $200,000 | $0 | $306,855 | $306,855 |
| 2016 | $108,135 | $140,000 | $0 | $248,135 | $248,135 |
| 2015 | $109,414 | $140,000 | $0 | $249,414 | $249,414 |
| 2014 | $110,694 | $140,000 | $0 | $250,694 | $250,694 |
| 2013 | $111,972 | $140,000 | $0 | $251,972 | $251,972 |
| 2012 | $110,503 | $121,500 | $0 | $232,003 | $232,003 |
| 2011 | $111,783 | $135,000 | $0 | $246,783 | $246,783 |
| 2010 | $111,064 | $135,000 | $0 | $246,064 | $246,064 |
| 2009 | $115,520 | $150,000 | $0 | $265,520 | $265,520 |
| 2008 | $115,400 | $147,500 | $0 | $262,900 | $262,900 |
| 2007 | $119,334 | $145,853 | $0 | $265,187 | $265,187 |
Deed and Sales History
| 1 | 04/11/2019 | QCD | Quit Claim Deed | MARLEY, NIKOLAUS EDWARD | MARLEY, SARAH ALEXA | | | $150,000.00 | 37944 | 4460847 |
| 2 | 04/11/2019 | TOD | Transfer On Death Deed | MARLEY, LARRY EDWARD | MARLEY, NIKOLAUS EDWARD | | | | 88022 | 4451537 |
| 3 | 10/16/2014 | QCD | Quit Claim Deed | MARLEY, LARRY EDWARD | MARLEY, LARRY EDWARD | | | $0.00 | 35856 | 4451536 |
| 4 | 10/16/2014 | TRUSTEED | Trustee's Deed | MARLEY TRUSTEE, LARRY EDWARD | MARLEY, LARRY EDWARD | | | $0.00 | 17224 | 4367170 |
| 5 | 08/23/2001 | QCD | Quit Claim Deed | Unknown | MARLEY, TRUSTEE, LARRY EDWARD | | | $0.00 | 13229 | 20041159 |
| 6 | 06/01/1994 | WD | Warranty Deed | MARLEY, LARRY E | MARLEY, LARRY E | | | $104,192.00 | 42338 | 94013225 |
| 7 | 06/01/1994 | WD | Warranty Deed | BICKNELL, JAMES N | MARLEY, LARRY E | | | $0.00 | 42725 | 94015002 |
Payout Agreement
| No payout information available.. |