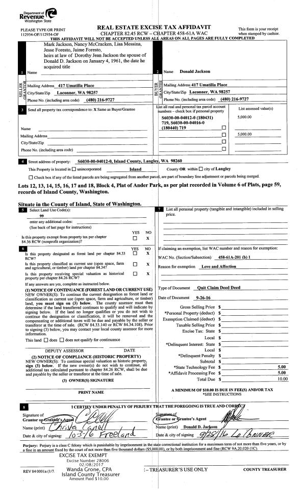
Property
Account |
| Property ID: | 164244 | Abbreviated Legal Description: | 37 - S132' OF W330' OF NW NW NW EX RD |
| Geographic ID: | R33221-474-0110 | Agent Code: | |
| Type: | Real | | |
| Tax Area: | 510 - APPRAISER-Stan/Cam Schl Dist, improved & 1 acre or less | Land Use Code | 11 |
| Open Space: | N | DFL | N |
| Historic Property: | N | Remodel Property: | N |
| Multi-Family Redevelopment: | N | | |
| Township: | 32 | Section: | 21 |
| Range: | R3 |
Location |
| Address: | | Mapsco: | |
| Neighborhood: | North Camano | Map ID: | 970 |
| Neighborhood CD: | 06-C |
Owner |
| Name: | CABE, JACOB M | Owner ID: | 285503 |
| Mailing Address: | ANGELA N DEONESEUS 802 UTSALADY RD CAMANO ISLAND, WA 98282 | % Ownership: | 100.0000000000% |
| | | Exemptions: | |
Taxes and Assessment Details
Values
| (+) Improvement Homesite Value: | + | $0 | |
| (+) Improvement Non-Homesite Value: | + | $2,000 | |
| (+) Land Homesite Value: | + | $0 | |
| (+) Land Non-Homesite Value: | + | $180,000 | |
| (+) Curr Use (HS): | + | $0 | $0 |
| (+) Curr Use (NHS): | + | $0 | $0 |
| | | -------------------------- | |
| (=) Market Value: | = | $182,000 | |
| (–) Productivity Loss: | – | $0 | |
| | | -------------------------- | |
| (=) Subtotal: | = | $182,000 | |
| (+) Senior Appraised Value: | + | $0 | |
| (+) Non-Senior Appraised Value: | + | $182,000 | |
| | | -------------------------- | |
| (=) Total Appraised Value: | = | $182,000 | |
| (–) Senior Exemption Loss: | – | $0 | |
| (–) Exemption Loss: | – | $0 | |
| | | -------------------------- | |
| (=) Taxable Value: | = | $182,000 | |
Taxing Jurisdiction
| Owner: | CABE, JACOB M | | |
| % Ownership: | 100.0000000000% | | |
| Total Value: | $182,000 | | |
| Tax Area: | 510 - APPRAISER-Stan/Cam Schl Dist, improved & 1 acre or less |
| CF | Conservation Futures | 0.0316035091 | $182,000 | $182,000 | $5.75 | | |
| EMS1 | Fire & Rescue Dist #1 Camano GEN (EMS) | 0.3677864386 | $182,000 | $182,000 | $66.94 | | |
| FIRE1 | Fire & Rescue Dist #1 Camano GEN | 1.2502910536 | $182,000 | $182,000 | $227.55 | | |
| FIRE1BOND | Fire & Rescue Dist #1 Camano BOND | 0.1570001679 | $182,000 | $182,000 | $28.57 | | |
| CE | County Current Expense | 0.3708482477 | $182,000 | $182,000 | $67.49 | | |
| CR | County Roads | 0.4584763726 | $182,000 | $182,000 | $83.44 | | |
| LCIB | Library Sno-Isle BOND (Camano Island) | 0.0396325772 | $182,000 | $182,000 | $7.21 | | |
| LIB | Library Sno-Isle GEN | 0.3153421757 | $182,000 | $182,000 | $57.39 | | |
| SCH205_401 | School 205-401 Enrichment | 1.2698420524 | $182,000 | $182,000 | $231.11 | | |
| SCH205BOND | School 205-401 BOND | 0.9396497583 | $182,000 | $182,000 | $171.02 | | |
| ST | State School | 1.3035497053 | $182,000 | $182,000 | $237.25 | | |
| ST2 | State School Part 2 | 0.8169543533 | $182,000 | $182,000 | $148.69 | | |
| | Total Tax Rate: | 7.3209764117 | | | | | |
| | | | | Taxes w/Current Exemptions: | $1,332.41 | | |
| | | | | Taxes w/o Exemptions: | $1,332.41 | | |
Improvement / Building
| Improvement #1: | RESIDENTIAL | State Code: | Y | 0.0 sqft | Value: | $2,000 |
Sketch
| No sketches available for this property. |
Property Image
Land
| 1 | 16 | AC (00.51-01.00) | 0.0000 | 0.00 | 0.00 | 0.00 | 1.00 | $180,000 | $0 |
Roll Value History
| 2026 | N/A | N/A | N/A | N/A | N/A |
| 2025 | $2,000 | $180,000 | $0 | $182,000 | $182,000 |
| 2024 | $2,000 | $170,000 | $0 | $172,000 | $172,000 |
| 2023 | $2,000 | $160,000 | $0 | $162,000 | $162,000 |
| 2022 | $2,000 | $150,000 | $0 | $152,000 | $152,000 |
| 2021 | $2,000 | $120,000 | $0 | $122,000 | $122,000 |
| 2020 | $2,000 | $120,000 | $0 | $122,000 | $122,000 |
| 2019 | $2,000 | $110,000 | $0 | $112,000 | $112,000 |
| 2018 | $2,000 | $100,000 | $0 | $102,000 | $102,000 |
| 2017 | $2,000 | $140,000 | $0 | $142,000 | $142,000 |
| 2016 | $2,000 | $120,000 | $0 | $122,000 | $122,000 |
| 2015 | $2,000 | $120,000 | $0 | $122,000 | $122,000 |
| 2014 | $2,000 | $120,000 | $0 | $122,000 | $122,000 |
| 2013 | $2,000 | $80,000 | $0 | $82,000 | $82,000 |
| 2012 | $2,000 | $80,000 | $0 | $82,000 | $82,000 |
| 2011 | $2,000 | $100,000 | $0 | $102,000 | $102,000 |
| 2010 | $5,369 | $100,000 | $0 | $105,369 | $105,369 |
| 2009 | $5,369 | $150,000 | $0 | $155,369 | $155,369 |
| 2008 | $5,369 | $150,000 | $0 | $155,369 | $155,369 |
| 2007 | $5,369 | $150,000 | $0 | $155,369 | $155,369 |
Deed and Sales History
| 1 | 06/12/2018 | WD | Warranty Deed | HARTER, JERRY W | CABE, JACOB M | | | $350,000.00 | 34607 | 4446519 |
|   | |
| 2 | 04/01/1987 | QCD | Quit Claim Deed | HARTER, JERRY W | HARTER, JERRY W | | | $0.00 | 71056 | 87005352 |
| 3 | 01/01/1900 | OTHER | Other - Misc. Documents | Unknown | HARTER, JERRY W | | | $0.00 | 0 | 0 |
Payout Agreement
| No payout information available.. |