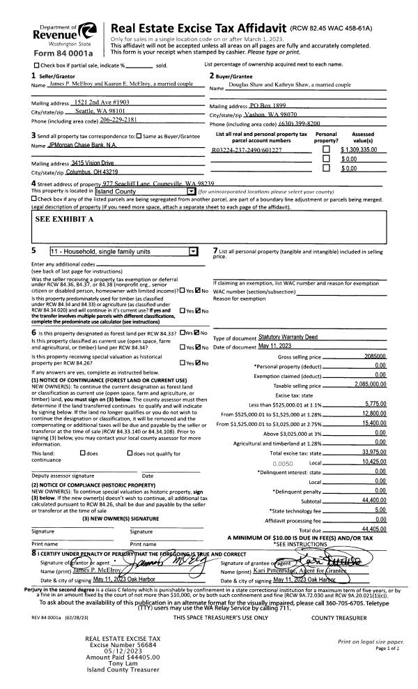
Property
Account |
| Property ID: | 164529 | Abbreviated Legal Description: | 6 - IN GL1 & IN SW SE: BG SWCR SW SE N89*E755' N249' N89*E469.56' TPB N11*E46.28 N63*E25.76' N14*E147.58' S89*E22.05' S31*E230.85' S89*W213.76' TPB TGW EZ SEE 020-3912 - EZ |
| Geographic ID: | R33222-035-4000 | Agent Code: | |
| Type: | Real | | |
| Tax Area: | 510 - APPRAISER-Stan/Cam Schl Dist, improved & 1 acre or less | Land Use Code | 11 |
| Open Space: | N | DFL | N |
| Historic Property: | N | Remodel Property: | N |
| Multi-Family Redevelopment: | N | | |
| Township: | 32 | Section: | 22 |
| Range: | R3 |
Location |
| Address: | 1495 SR532 CAMANO ISLAND, WA 98282 | Mapsco: | |
| Neighborhood: | North Camano | Map ID: | 973 |
| Neighborhood CD: | 06-C |
Owner |
| Name: | MILLER, ROBERT LYNN | Owner ID: | 301690 |
| Mailing Address: | 1495 SR 532 CAMANO ISLAND, WA 98282 | % Ownership: | 100.0000000000% |
| | | Exemptions: | |
Taxes and Assessment Details
Values
| (+) Improvement Homesite Value: | + | $0 | |
| (+) Improvement Non-Homesite Value: | + | $281,100 | |
| (+) Land Homesite Value: | + | $0 | |
| (+) Land Non-Homesite Value: | + | $330,000 | |
| (+) Curr Use (HS): | + | $0 | $0 |
| (+) Curr Use (NHS): | + | $0 | $0 |
| | | -------------------------- | |
| (=) Market Value: | = | $611,100 | |
| (–) Productivity Loss: | – | $0 | |
| | | -------------------------- | |
| (=) Subtotal: | = | $611,100 | |
| (+) Senior Appraised Value: | + | $0 | |
| (+) Non-Senior Appraised Value: | + | $611,100 | |
| | | -------------------------- | |
| (=) Total Appraised Value: | = | $611,100 | |
| (–) Senior Exemption Loss: | – | $0 | |
| (–) Exemption Loss: | – | $0 | |
| | | -------------------------- | |
| (=) Taxable Value: | = | $611,100 | |
Taxing Jurisdiction
| Owner: | MILLER, ROBERT LYNN | | |
| % Ownership: | 100.0000000000% | | |
| Total Value: | $611,100 | | |
| Tax Area: | 510 - APPRAISER-Stan/Cam Schl Dist, improved & 1 acre or less |
| CF | Conservation Futures | 0.0316035091 | $611,100 | $611,100 | $19.31 | | |
| EMS1 | Fire & Rescue Dist #1 Camano GEN (EMS) | 0.3677864386 | $611,100 | $611,100 | $224.75 | | |
| FIRE1 | Fire & Rescue Dist #1 Camano GEN | 1.2502910536 | $611,100 | $611,100 | $764.05 | | |
| FIRE1BOND | Fire & Rescue Dist #1 Camano BOND | 0.1570001679 | $611,100 | $611,100 | $95.94 | | |
| CE | County Current Expense | 0.3708482477 | $611,100 | $611,100 | $226.63 | | |
| CR | County Roads | 0.4584763726 | $611,100 | $611,100 | $280.17 | | |
| LCIB | Library Sno-Isle BOND (Camano Island) | 0.0396325772 | $611,100 | $611,100 | $24.22 | | |
| LIB | Library Sno-Isle GEN | 0.3153421757 | $611,100 | $611,100 | $192.71 | | |
| SCH205_401 | School 205-401 Enrichment | 1.2698420524 | $611,100 | $611,100 | $776.00 | | |
| SCH205BOND | School 205-401 BOND | 0.9396497583 | $611,100 | $611,100 | $574.22 | | |
| ST | State School | 1.3035497053 | $611,100 | $611,100 | $796.60 | | |
| ST2 | State School Part 2 | 0.8169543533 | $611,100 | $611,100 | $499.24 | | |
| | Total Tax Rate: | 7.3209764117 | | | | | |
| | | | | Taxes w/Current Exemptions: | $4,473.84 | | |
| | | | | Taxes w/o Exemptions: | $4,473.84 | | |
Improvement / Building
| Improvement #1: | RESIDENTIAL | State Code: | Y | 2416.0 sqft | Value: | $281,100 |
| Bathrooms: | 2 | Bedrooms: | 3 | | Ceiling: | DRYWALL PAINTED | Cooling: | HEAT PUMP/CONV/V | | Exterior Wall/Cover: | PLY/HARDBOARD T-111 | Floor Covering: | CARPET/VINYL 80-20 | | Floor Structure: | WOOD W/SUBFLOOR | Foundation: | CONCRETE | | Interior Finish: | DRYWALL PAINT | Plumbing Fixture Cnt: | 8 | | Roof Slope: | FLAT | Roof Structure/Cover: | CJ BUILT-UP ROCK |
|
| | Type | Description | Class CD | Sub Class CD | Year Built | Area |
| | BAS | BASE/MAIN FLOOR | 3 | 0 | 1960 | 1462.0 |
| | OP3 | OPEN PORCH W/ROOF | 3 | 0 | 1960 | 104.0 |
| | DGR | DETACHED GARAGE | 3 | 0 | 1960 | 650.0 |
| | OWP | OPEN WOOD PORCH W/STEPS | 3 | 0 | 1960 | 1339.0 |
| | DWN | DOWNSTAIRS LIVING AREA | 3 | 0 | 1960 | 954.0 |
Sketch
Property Image
Land
| 1 | 16 | AC (00.51-01.00) | 0.0000 | 0.00 | 0.00 | 0.00 | 1.00 | $330,000 | $0 |
Roll Value History
| 2026 | N/A | N/A | N/A | N/A | N/A |
| 2025 | $281,100 | $330,000 | $0 | $611,100 | $611,100 |
| 2024 | $285,218 | $320,000 | $0 | $605,218 | $605,218 |
| 2023 | $289,337 | $310,000 | $0 | $599,337 | $599,337 |
| 2022 | $254,542 | $260,000 | $0 | $514,542 | $514,542 |
| 2021 | $224,583 | $200,000 | $0 | $424,583 | $424,583 |
| 2020 | $220,068 | $160,000 | $0 | $380,068 | $380,068 |
| 2019 | $172,746 | $190,000 | $0 | $362,746 | $362,746 |
| 2018 | $173,352 | $170,000 | $0 | $343,352 | $343,352 |
| 2017 | $174,564 | $150,000 | $0 | $324,564 | $324,564 |
| 2016 | $140,598 | $130,000 | $0 | $270,598 | $270,598 |
| 2015 | $143,020 | $120,000 | $0 | $263,020 | $263,020 |
| 2014 | $145,445 | $120,000 | $0 | $265,445 | $265,445 |
| 2013 | $147,869 | $120,000 | $0 | $267,869 | $267,869 |
| 2012 | $150,293 | $120,000 | $0 | $270,293 | $270,293 |
| 2011 | $152,718 | $150,000 | $0 | $302,718 | $302,718 |
| 2010 | $149,405 | $150,000 | $0 | $299,405 | $299,405 |
| 2009 | $156,276 | $175,000 | $0 | $331,276 | $331,276 |
| 2008 | $158,646 | $175,000 | $0 | $333,646 | $333,646 |
| 2007 | $161,037 | $175,000 | $0 | $336,037 | $336,037 |
Deed and Sales History
| 1 | 10/14/2021 | WD | Warranty Deed | CHESTER, CURTIS W / ELIZABETH | MILLER, ROBERT LYNN | | | $560,000.00 | 50584 | 4531965 |
|   | |
| 2 | 05/01/1992 | WD | Warranty Deed | WEBSTER, JANET A | CHESTER, CURTIS W | | | $130,000.00 | 21998 | 92009579 |
| 3 | 10/01/1982 | OTHER | Other - Misc. Documents | WEBSTER, JAMES H | WEBSTER, JANET A | | | $0.00 | 59675 | 401557 |
| 4 | 01/01/1900 | OTHER | Other - Misc. Documents | Unknown | WEBSTER, JAMES H | | | $0.00 | 0 | 0 |
Payout Agreement
| No payout information available.. |