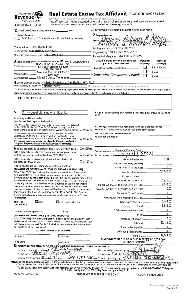
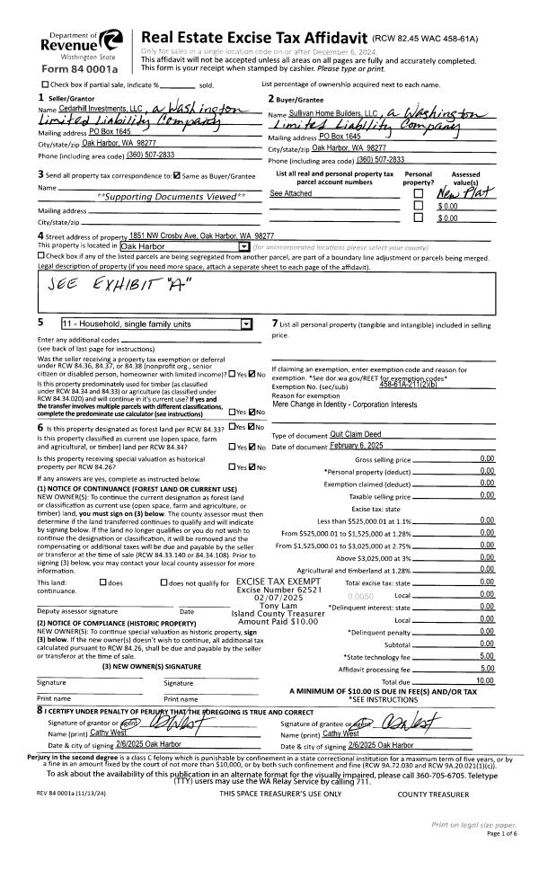
Property
Account |
| Property ID: | 164538 | Abbreviated Legal Description: | 25 - IN SW SW: BG INT NLN HWY & ELN RD E400' TPB N150 W250' N315' TO NLN OF S495' OF SW SW E350' S465' W100' TPB EX PT TO ST HWY |
| Geographic ID: | R33222-037-0350 | Agent Code: | |
| Type: | Real | | |
| Tax Area: | 519 - APPRAISER-Stan/Cam Schl Dist, vacant & 50 acres or less | Land Use Code | 91 |
| Open Space: | N | DFL | N |
| Historic Property: | N | Remodel Property: | N |
| Multi-Family Redevelopment: | N | | |
| Township: | 32 | Section: | 22 |
| Range: | R3 |
Location |
| Address: | | Mapsco: | |
| Neighborhood: | 51cRR-highway 532 | Map ID: | 972 |
| Neighborhood CD: | 51cRRhw532 |
Owner |
| Name: | ISLAND 1 LLC | Owner ID: | 313619 |
| Mailing Address: | 12345 LAKE CITY NE #2159 SEATTLE, WA 98125 | % Ownership: | 100.0000000000% |
| | | Exemptions: | |
Taxes and Assessment Details
Values
| (+) Improvement Homesite Value: | + | $0 | |
| (+) Improvement Non-Homesite Value: | + | $0 | |
| (+) Land Homesite Value: | + | $0 | |
| (+) Land Non-Homesite Value: | + | $180,000 | |
| (+) Curr Use (HS): | + | $0 | $0 |
| (+) Curr Use (NHS): | + | $0 | $0 |
| | | -------------------------- | |
| (=) Market Value: | = | $180,000 | |
| (–) Productivity Loss: | – | $0 | |
| | | -------------------------- | |
| (=) Subtotal: | = | $180,000 | |
| (+) Senior Appraised Value: | + | $0 | |
| (+) Non-Senior Appraised Value: | + | $180,000 | |
| | | -------------------------- | |
| (=) Total Appraised Value: | = | $180,000 | |
| (–) Senior Exemption Loss: | – | $0 | |
| (–) Exemption Loss: | – | $0 | |
| | | -------------------------- | |
| (=) Taxable Value: | = | $180,000 | |
Taxing Jurisdiction
| Owner: | ISLAND 1 LLC | | |
| % Ownership: | 100.0000000000% | | |
| Total Value: | $180,000 | | |
| Tax Area: | 519 - APPRAISER-Stan/Cam Schl Dist, vacant & 50 acres or less |
| CF | Conservation Futures | 0.0316035091 | $180,000 | $180,000 | $5.69 | | |
| EMS1 | Fire & Rescue Dist #1 Camano GEN (EMS) | 0.3677864386 | $180,000 | $180,000 | $66.20 | | |
| CE | County Current Expense | 0.3708482477 | $180,000 | $180,000 | $66.75 | | |
| CR | County Roads | 0.4584763726 | $180,000 | $180,000 | $82.53 | | |
| LCIB | Library Sno-Isle BOND (Camano Island) | 0.0396325772 | $180,000 | $180,000 | $7.13 | | |
| LIB | Library Sno-Isle GEN | 0.3153421757 | $180,000 | $180,000 | $56.76 | | |
| SCH205_401 | School 205-401 Enrichment | 1.2698420524 | $180,000 | $180,000 | $228.57 | | |
| SCH205BOND | School 205-401 BOND | 0.9396497583 | $180,000 | $180,000 | $169.14 | | |
| ST | State School | 1.3035497053 | $180,000 | $180,000 | $234.64 | | |
| ST2 | State School Part 2 | 0.8169543533 | $180,000 | $180,000 | $147.05 | | |
| | Total Tax Rate: | 5.9136851902 | | | | | |
| | | | | Taxes w/Current Exemptions: | $1,064.46 | | |
| | | | | Taxes w/o Exemptions: | $1,064.46 | | |
Improvement / Building
Sketch
| No sketches available for this property. |
Property Image
Land
| 1 | 18 | AC (02.01-03.00) | 2.8600 | 124581.60 | 0.00 | 0.00 | 1.00 | $180,000 | $0 |
Roll Value History
| 2026 | N/A | N/A | N/A | N/A | N/A |
| 2025 | $0 | $180,000 | $0 | $180,000 | $180,000 |
| 2024 | $0 | $150,000 | $0 | $150,000 | $150,000 |
| 2023 | $0 | $140,000 | $0 | $140,000 | $140,000 |
| 2022 | $0 | $170,000 | $0 | $170,000 | $170,000 |
| 2021 | $0 | $130,000 | $0 | $130,000 | $130,000 |
| 2020 | $0 | $130,000 | $0 | $130,000 | $130,000 |
| 2019 | $0 | $100,000 | $0 | $100,000 | $100,000 |
| 2018 | $0 | $120,000 | $0 | $120,000 | $120,000 |
| 2017 | $0 | $70,000 | $0 | $70,000 | $70,000 |
| 2016 | $0 | $70,000 | $0 | $70,000 | $70,000 |
| 2015 | $0 | $221,756 | $0 | $221,756 | $221,756 |
| 2014 | $0 | $221,756 | $0 | $221,756 | $221,756 |
| 2013 | $0 | $221,756 | $0 | $221,756 | $221,756 |
| 2012 | $0 | $221,756 | $0 | $221,756 | $221,756 |
| 2011 | $0 | $221,756 | $0 | $221,756 | $221,756 |
| 2010 | $0 | $221,756 | $0 | $221,756 | $221,756 |
| 2009 | $0 | $241,689 | $0 | $241,689 | $241,689 |
| 2008 | $0 | $254,147 | $0 | $254,147 | $254,147 |
| 2007 | $0 | $254,147 | $0 | $254,147 | $254,147 |
Deed and Sales History
| 1 | 08/16/2024 | WD | Warranty Deed | ANCHOR BAY COMMERCIAL CENTER LLC | ISLAND 1 LLC | | | $375,000.00 | 61043 | 4576135 |
| 2 | 12/06/2023 | WD | Warranty Deed | LITTLE, THOMAS A | ANCHOR BAY COMMERCIAL CENTER LLC | | | $0.00 | 60911 | 4575730 |
| 3 | 12/06/2023 | WD | Warranty Deed | LITTLE, THOMAS A | ANCHOR BAY LLC | | | $0.00 | 58862 | 4568000 |
| 4 | 02/27/2017 | WD | Warranty Deed | SKAGIT BANK | LITTLE, THOMAS A | | | $675,000.00 | 28213 | 4417822 |
|   | |
| 5 | 10/22/2015 | DEEDINLIEU | Deed In Lieu Of Foreclosure | TR CAMANO INC | SKAGIT BANK | | | $0.00 | 21937 | 4388505 |
| 6 | 05/07/2004 | WD | Warranty Deed | KINETIC GENETICS LLC, | TR CAMANO INC, | | | $158,976.00 | 41987 | 4100380 |
| 7 | 06/23/1998 | OTHER | Other - Misc. Documents | EDWARDS, ROBERT L | KINETIC GENETICS LLC, | | | $0.00 | 67901 | 0 |
| 8 | 08/01/1996 | WD | Warranty Deed | CAMANO, DEVELOPMENT L | EDWARDS, ROBERT L | | | $0.00 | 63086 | 96015119 |
| 9 | 08/01/1996 | WD | Warranty Deed | FRANK, S M | CAMANO, DEVELOPMENT L | | | $0.00 | 70006 | 97000319 |
| 10 | 04/01/1996 | WD | Warranty Deed | KENSMOE, GLENN W | FRANK, S M | | | $123,900.00 | 61465 | 96007318 |
| 11 | 02/01/1994 | WD | Warranty Deed | SKAGIT, ESCROW A | KENSMOE, GLENN W | | | $3,552.00 | 40929 | 94006119 |
| 12 | 07/01/1990 | WD | Warranty Deed | KENSMOE, GLENN W | SKAGIT, ESCROW A | | | $126,000.00 | 4523 | 90014938 |
| 13 | 07/01/1990 | WD | Warranty Deed | FAILOR, MAX H | KENSMOE, GLENN W | | | $0.00 | 4524 | 90014939 |
| 14 | 07/01/1982 | REC | Real Estate Contract | FAILOR, MAX H | FAILOR, MAX H | | | $20,066.00 | 21763 | 398706 |
| 15 | 03/01/1981 | CD | DNU - Correction Deed | CAMANO, GATEWAY, I | FAILOR, MAX H | | | $0.00 | 10703 | 380353 |
| 16 | 01/01/1900 | OTHER | Other - Misc. Documents | Unknown | CAMANO, GATEWAY, I | | | $0.00 | 0 | 0 |
Payout Agreement
| No payout information available.. |