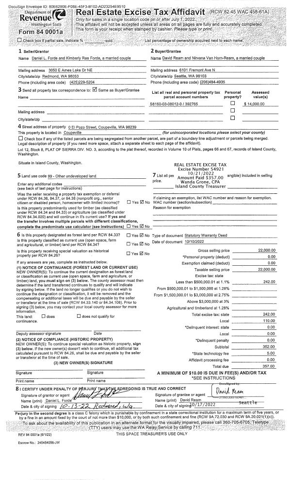
Property
Account |
| Property ID: | 165190 | Abbreviated Legal Description: | 69 - IN GL 2 (LOT C SP 71-042) BG CTR SEC 27 S0*W 406.86' N89*W31.54'TPB S0*W 159' N89*W275'TO ELN SMITH RD N0*E159' S89*E275'TPB |
| Geographic ID: | R33227-150-2470 | Agent Code: | |
| Type: | Real | | |
| Tax Area: | 510 - APPRAISER-Stan/Cam Schl Dist, improved & 1 acre or less | Land Use Code | 11 |
| Open Space: | N | DFL | N |
| Historic Property: | N | Remodel Property: | N |
| Multi-Family Redevelopment: | N | | |
| Township: | 32 | Section: | 27 |
| Range: | R3 |
Location |
| Address: | 560 SMITH RD CAMANO ISLAND, WA 98282 | Mapsco: | |
| Neighborhood: | Cycle 5 | Map ID: | 976 |
| Neighborhood CD: | 5 |
Owner |
| Name: | LIVINGSTON, SAMUEL C | Owner ID: | 61251 |
| Mailing Address: | RISA S LIVINGSTON PO BOX 874 STANWOOD, WA 98292-0874 | % Ownership: | 100.0000000000% |
| | | Exemptions: | |
Taxes and Assessment Details
Values
| (+) Improvement Homesite Value: | + | $0 | |
| (+) Improvement Non-Homesite Value: | + | $265,309 | |
| (+) Land Homesite Value: | + | $0 | |
| (+) Land Non-Homesite Value: | + | $360,000 | |
| (+) Curr Use (HS): | + | $0 | $0 |
| (+) Curr Use (NHS): | + | $0 | $0 |
| | | -------------------------- | |
| (=) Market Value: | = | $625,309 | |
| (–) Productivity Loss: | – | $0 | |
| | | -------------------------- | |
| (=) Subtotal: | = | $625,309 | |
| (+) Senior Appraised Value: | + | $0 | |
| (+) Non-Senior Appraised Value: | + | $625,309 | |
| | | -------------------------- | |
| (=) Total Appraised Value: | = | $625,309 | |
| (–) Senior Exemption Loss: | – | $0 | |
| (–) Exemption Loss: | – | $0 | |
| | | -------------------------- | |
| (=) Taxable Value: | = | $625,309 | |
Taxing Jurisdiction
| Owner: | LIVINGSTON, SAMUEL C | | |
| % Ownership: | 100.0000000000% | | |
| Total Value: | $625,309 | | |
| Tax Area: | 510 - APPRAISER-Stan/Cam Schl Dist, improved & 1 acre or less |
| CF | Conservation Futures | 0.0316035091 | $625,309 | $625,309 | $19.76 | | |
| EMS1 | Fire & Rescue Dist #1 Camano GEN (EMS) | 0.3677864386 | $625,309 | $625,309 | $229.98 | | |
| FIRE1 | Fire & Rescue Dist #1 Camano GEN | 1.2502910536 | $625,309 | $625,309 | $781.82 | | |
| FIRE1BOND | Fire & Rescue Dist #1 Camano BOND | 0.1570001679 | $625,309 | $625,309 | $98.17 | | |
| CE | County Current Expense | 0.3708482477 | $625,309 | $625,309 | $231.89 | | |
| CR | County Roads | 0.4584763726 | $625,309 | $625,309 | $286.69 | | |
| LCIB | Library Sno-Isle BOND (Camano Island) | 0.0396325772 | $625,309 | $625,309 | $24.78 | | |
| LIB | Library Sno-Isle GEN | 0.3153421757 | $625,309 | $625,309 | $197.19 | | |
| SCH205_401 | School 205-401 Enrichment | 1.2698420524 | $625,309 | $625,309 | $794.04 | | |
| SCH205BOND | School 205-401 BOND | 0.9396497583 | $625,309 | $625,309 | $587.57 | | |
| ST | State School | 1.3035497053 | $625,309 | $625,309 | $815.12 | | |
| ST2 | State School Part 2 | 0.8169543533 | $625,309 | $625,309 | $510.85 | | |
| | Total Tax Rate: | 7.3209764117 | | | | | |
| | | | | Taxes w/Current Exemptions: | $4,577.86 | | |
| | | | | Taxes w/o Exemptions: | $4,577.86 | | |
Improvement / Building
| Improvement #1: | RESIDENTIAL | State Code: | Y | 1365.0 sqft | Value: | $265,309 |
| Bathrooms: | 2 | Bedrooms: | 3 | | Ceiling: | DRYWALL PAINTED | Exterior Wall/Cover: | PLY/HARDBOARD T-111 | | Floor Covering: | HARDWOOD/CARP 60-40 | Floor Structure: | WOOD W/SUBFLOOR | | Foundation: | CONCRETE | Heating: | BASEBOARD ELECTRIC | | Interior Finish: | DRYWALL PAINT | Plumbing Fixture Cnt: | 9 | | Roof Slope: | 4" IN 12" | Roof Structure/Cover: | CJ ASPHALT |
|
| | Type | Description | Class CD | Sub Class CD | Year Built | Area |
| | BAS | BASE/MAIN FLOOR | 3 | 0 | 1977 | 574.0 |
| | UB8 | BASEMENT UNFINISHED 8" | 3 | 0 | 1977 | 308.0 |
| | BGR | BASEMENT GARAGE | 3 | 0 | 1977 | 484.0 |
| | UPS | UPPER STORY | 3 | 0 | 1977 | 791.0 |
| | OWP | OPEN WOOD PORCH W/STEPS | 3 | 0 | 1977 | 45.0 |
| | OWP | OPEN WOOD PORCH W/STEPS | 3 | 0 | 1977 | 308.5 |
| | oOBD | Out Buildings | 3 | 0 | 1977 | 0.0 |
| | UTY | STORAGE/UTILITY | 3 | 0 | 1977 | 288.0 |
Sketch
Property Image
Land
| 1 | 16 | AC (00.51-01.00) | 0.0000 | 0.00 | 0.00 | 0.00 | 1.00 | $360,000 | $0 |
Roll Value History
| 2026 | N/A | N/A | N/A | N/A | N/A |
| 2025 | $265,309 | $360,000 | $0 | $625,309 | $625,309 |
| 2024 | $273,937 | $360,000 | $0 | $633,937 | $633,937 |
| 2023 | $277,231 | $360,000 | $0 | $637,231 | $637,231 |
| 2022 | $254,292 | $260,000 | $0 | $514,292 | $514,292 |
| 2021 | $211,983 | $200,000 | $0 | $411,983 | $411,983 |
| 2020 | $206,483 | $160,000 | $0 | $366,483 | $366,483 |
| 2019 | $149,691 | $190,000 | $0 | $339,691 | $339,691 |
| 2018 | $150,115 | $170,000 | $0 | $320,115 | $320,115 |
| 2017 | $150,967 | $150,000 | $0 | $300,967 | $300,967 |
| 2016 | $152,667 | $100,000 | $0 | $252,667 | $252,667 |
| 2015 | $155,301 | $100,000 | $0 | $255,301 | $255,301 |
| 2014 | $157,066 | $100,000 | $0 | $257,066 | $257,066 |
| 2013 | $158,831 | $100,000 | $0 | $258,831 | $258,831 |
| 2012 | $160,598 | $100,000 | $0 | $260,598 | $260,598 |
| 2011 | $162,364 | $125,000 | $0 | $287,364 | $287,364 |
| 2010 | $169,591 | $125,000 | $0 | $294,591 | $294,591 |
| 2009 | $181,434 | $125,000 | $0 | $306,434 | $306,434 |
| 2008 | $183,859 | $125,000 | $0 | $308,859 | $308,859 |
| 2007 | $186,140 | $125,000 | $0 | $311,140 | $311,140 |
Deed and Sales History
| 1 | 04/18/2005 | WD | Warranty Deed | COWAN, STEVEN G | LIVINGSTON, SAMUEL C | | | $287,501.00 | 51641 | 4131689 |
| 2 | 10/01/1996 | WD | Warranty Deed | NESTOR, DIANA L | COWAN, STEVEN G | | | $123,000.00 | 63528 | 96017297 |
| 3 | 01/01/1991 | OTHER | Other - Misc. Documents | HUSBY, DIANNA L | NESTOR, DIANA L | | | $0.00 | 64023 | 0 |
| 4 | 06/01/1989 | DECREE | Divorce Decree/Legal Separation | HUSBY, MARTY J | HUSBY, DIANNA L | | | $0.00 | 92211 | 89007567 |
| 5 | 01/01/1900 | OTHER | Other - Misc. Documents | Unknown | HUSBY, MARTY J | | | $0.00 | 0 | 0 |
Payout Agreement
| No payout information available.. |