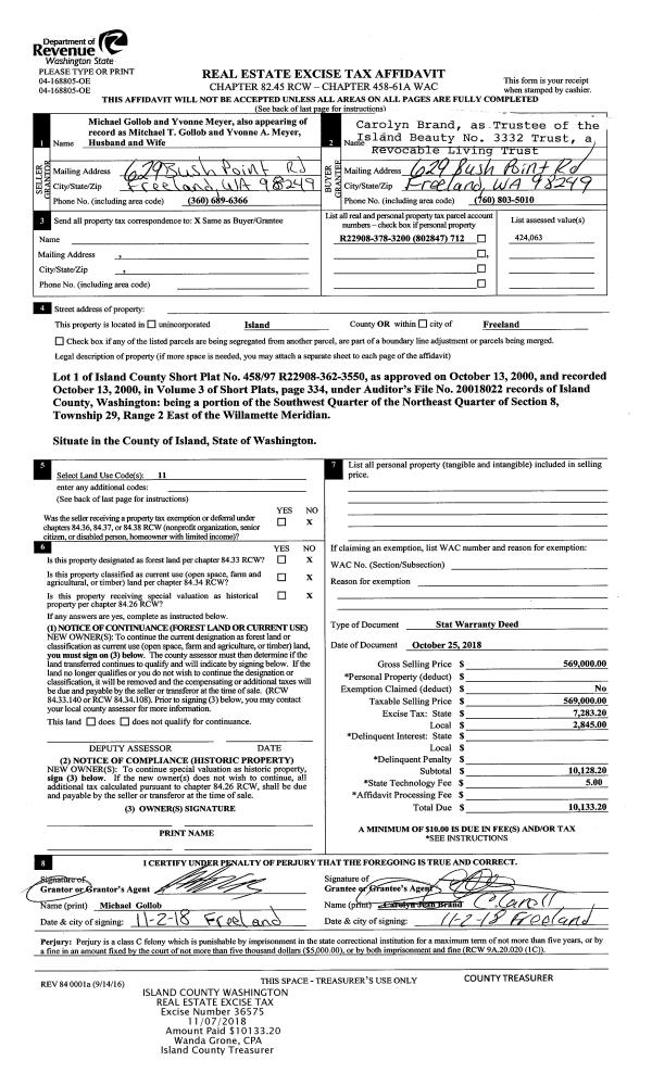
Property
Account |
| Property ID: | 165243 | Abbreviated Legal Description: | IN GL3 - BG CTR SEC 27 N89*E30' TPB N89*E580.33' TP |
| Geographic ID: | R33227-171-3410 | Agent Code: | |
| Type: | Real | | |
| Tax Area: | 512 - APPRAISER-Stan/Cam Schl Dist, improved, greater than 1 acre | Land Use Code | 11 |
| Open Space: | N | DFL | N |
| Historic Property: | N | Remodel Property: | N |
| Multi-Family Redevelopment: | N | | |
| Township: | 32 | Section: | 27 |
| Range: | R3 |
Location |
| Address: | 610 SMITH RD CAMANO ISLAND, WA 98282 | Mapsco: | |
| Neighborhood: | Cycle 5 | Map ID: | 977 |
| Neighborhood CD: | 5 |
Owner |
| Name: | LINK, AMY E | Owner ID: | 300706 |
| Mailing Address: | PO BOX 1516 STANWOOD, WA 98292 | % Ownership: | 100.0000000000% |
| | | Exemptions: | |
Taxes and Assessment Details
Values
| (+) Improvement Homesite Value: | + | $0 | |
| (+) Improvement Non-Homesite Value: | + | $461,331 | |
| (+) Land Homesite Value: | + | $0 | |
| (+) Land Non-Homesite Value: | + | $470,000 | |
| (+) Curr Use (HS): | + | $0 | $0 |
| (+) Curr Use (NHS): | + | $0 | $0 |
| | | -------------------------- | |
| (=) Market Value: | = | $931,331 | |
| (–) Productivity Loss: | – | $0 | |
| | | -------------------------- | |
| (=) Subtotal: | = | $931,331 | |
| (+) Senior Appraised Value: | + | $0 | |
| (+) Non-Senior Appraised Value: | + | $931,331 | |
| | | -------------------------- | |
| (=) Total Appraised Value: | = | $931,331 | |
| (–) Senior Exemption Loss: | – | $0 | |
| (–) Exemption Loss: | – | $0 | |
| | | -------------------------- | |
| (=) Taxable Value: | = | $931,331 | |
Taxing Jurisdiction
| Owner: | LINK, AMY E | | |
| % Ownership: | 100.0000000000% | | |
| Total Value: | $931,331 | | |
| Tax Area: | 512 - APPRAISER-Stan/Cam Schl Dist, improved, greater than 1 acre |
| CF | Conservation Futures | 0.0316035091 | $931,331 | $931,331 | $29.43 | | |
| EMS1 | Fire & Rescue Dist #1 Camano GEN (EMS) | 0.3677864386 | $931,331 | $931,331 | $342.53 | | |
| FIRE1 | Fire & Rescue Dist #1 Camano GEN | 1.2502910536 | $931,331 | $931,331 | $1,164.43 | | |
| FIRE1BOND | Fire & Rescue Dist #1 Camano BOND | 0.1570001679 | $931,331 | $931,331 | $146.22 | | |
| CE | County Current Expense | 0.3708482477 | $931,331 | $931,331 | $345.38 | | |
| CR | County Roads | 0.4584763726 | $931,331 | $931,331 | $426.99 | | |
| LCIB | Library Sno-Isle BOND (Camano Island) | 0.0396325772 | $931,331 | $931,331 | $36.91 | | |
| LIB | Library Sno-Isle GEN | 0.3153421757 | $931,331 | $931,331 | $293.69 | | |
| SCH205_401 | School 205-401 Enrichment | 1.2698420524 | $931,331 | $931,331 | $1,182.64 | | |
| SCH205BOND | School 205-401 BOND | 0.9396497583 | $931,331 | $931,331 | $875.12 | | |
| ST | State School | 1.3035497053 | $931,331 | $931,331 | $1,214.04 | | |
| ST2 | State School Part 2 | 0.8169543533 | $931,331 | $931,331 | $760.85 | | |
| | Total Tax Rate: | 7.3209764117 | | | | | |
| | | | | Taxes w/Current Exemptions: | $6,818.23 | | |
| | | | | Taxes w/o Exemptions: | $6,818.23 | | |
Improvement / Building
| Improvement #1: | RESIDENTIAL | State Code: | Y | 2414.0 sqft | Value: | $461,331 |
| Bathrooms: | 2 | Bedrooms: | 2 | | Ceiling: | DRYWALL PAINTED | Cooling: | HEAT PUMP/CONV/V | | Exterior Wall/Cover: | CEMENT FIBER | Floor Covering: | HARDWOOD/CARP 60-40 | | Floor Structure: | WOOD W/SUBFLOOR | Foundation: | CONCRETE | | Interior Finish: | DRYWALL PAINT | Plumbing Fixture Cnt: | 11 | | Roof Slope: | 6" IN 12" | Roof Structure/Cover: | CJ ASPHALT |
|
| | Type | Description | Class CD | Sub Class CD | Year Built | Area |
| | BAS | BASE/MAIN FLOOR | 3 | 0 | 2022 | 1536.0 |
| | UPS | UPPER STORY | 3 | 0 | 2022 | 608.0 |
| | DGR | DETACHED GARAGE | 3 | 0 | 2022 | 567.0 |
| | OP4 | OPEN PORCH W/CEILING-ROOF | 3 | 0 | 2022 | 576.0 |
| | OP4 | OPEN PORCH W/CEILING-ROOF | 3 | 0 | 2022 | 576.0 |
| | OCP | OPEN CARPORT | 3 | 0 | 2022 | 324.0 |
| | LOF | LOFT | 3 | 0 | 2022 | 270.0 |
Sketch
Property Image
Land
| 1 | 32 | AC (03.01-09.99) | 5.0600 | 0.00 | 0.00 | 0.00 | 1.00 | $470,000 | $0 |
Roll Value History
| 2026 | N/A | N/A | N/A | N/A | N/A |
| 2025 | $461,331 | $470,000 | $0 | $931,331 | $931,331 |
| 2024 | $466,175 | $470,000 | $0 | $936,175 | $936,175 |
| 2023 | $474,650 | $460,000 | $0 | $934,650 | $934,650 |
| 2022 | $216,797 | $270,000 | $0 | $486,797 | $486,797 |
| 2021 | $0 | $250,000 | $0 | $250,000 | $250,000 |
| 2020 | $0 | $250,000 | $0 | $250,000 | $250,000 |
| 2019 | $0 | $250,000 | $0 | $250,000 | $250,000 |
| 2018 | $0 | $250,000 | $0 | $250,000 | $250,000 |
| 2017 | $0 | $250,000 | $0 | $250,000 | $250,000 |
| 2016 | $0 | $250,000 | $0 | $250,000 | $250,000 |
| 2015 | $0 | $227,700 | $0 | $227,700 | $227,700 |
| 2014 | $0 | $227,700 | $0 | $227,700 | $227,700 |
| 2013 | $0 | $227,700 | $0 | $227,700 | $227,700 |
| 2012 | $0 | $227,700 | $0 | $227,700 | $227,700 |
| 2011 | $0 | $227,700 | $0 | $227,700 | $227,700 |
| 2010 | $0 | $227,700 | $0 | $227,700 | $227,700 |
| 2009 | $0 | $253,000 | $0 | $253,000 | $253,000 |
| 2008 | $0 | $253,000 | $0 | $253,000 | $253,000 |
| 2007 | $0 | $151,920 | $0 | $151,920 | $151,920 |
Deed and Sales History
| 1 | 08/09/2021 | WD | Warranty Deed | LINK, TUCKER R | LINK, AMY E | | | $220,000.00 | 49618 | 4526770 |
| 2 | 09/26/2018 | SPWARDEED | Special Warranty Deed | LINK, CHRISTOPHER | LINK, TUCKER R | | | $0.00 | 36556 | 4454576 |
| 3 | 09/29/2000 | DECREE | Divorce Decree/Legal Separation | LINK, CHRISTOPHER W | LINK, CHRISTOPHER | | | $0.00 | 3828 | 20017596 |
| 4 | 07/01/1993 | WD | Warranty Deed | DYSTE, ARDELL T | LINK, CHRISTOPHER W | | | $66,450.00 | 32791 | 93014407 |
| 5 | 09/01/1985 | WD | Warranty Deed | SCHMIDT, PAUL | DYSTE, ARDELL T | | | $45,000.00 | 52621 | 85010376 |
| 6 | 01/01/1979 | OTHER | Other - Misc. Documents | Unknown | SCHMIDT, PAUL | | | $30,000.00 | 90304 | 346275 |
Payout Agreement
| No payout information available.. |