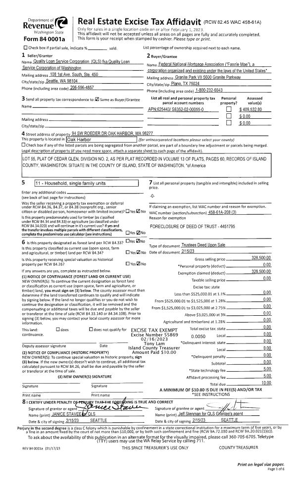
Property
Account |
| Property ID: | 165403 | Abbreviated Legal Description: | 7 - N265' OF S1060' OF SE NW EX E570' & EX W210' |
| Geographic ID: | R33227-300-1830 | Agent Code: | |
| Type: | Real | | |
| Tax Area: | 519 - APPRAISER-Stan/Cam Schl Dist, vacant & 50 acres or less | Land Use Code | 91 |
| Open Space: | N | DFL | N |
| Historic Property: | N | Remodel Property: | N |
| Multi-Family Redevelopment: | N | | |
| Township: | 32 | Section: | 27 |
| Range: | R3 |
Location |
| Address: | 680 ELL RD CAMANO ISLAND, WA 98282 | Mapsco: | |
| Neighborhood: | Cycle 5 | Map ID: | 978 |
| Neighborhood CD: | 5 |
Owner |
| Name: | BERG FAMILY PROPERTIES, LLC | Owner ID: | 314763 |
| Mailing Address: | 893 JUNIPER POINTE LN CAMANO ISLAND, WA 98282 | % Ownership: | 100.0000000000% |
| | | Exemptions: | |
Taxes and Assessment Details
Values
| (+) Improvement Homesite Value: | + | $0 | |
| (+) Improvement Non-Homesite Value: | + | $0 | |
| (+) Land Homesite Value: | + | $0 | |
| (+) Land Non-Homesite Value: | + | $50,000 | |
| (+) Curr Use (HS): | + | $0 | $0 |
| (+) Curr Use (NHS): | + | $0 | $0 |
| | | -------------------------- | |
| (=) Market Value: | = | $50,000 | |
| (–) Productivity Loss: | – | $0 | |
| | | -------------------------- | |
| (=) Subtotal: | = | $50,000 | |
| (+) Senior Appraised Value: | + | $0 | |
| (+) Non-Senior Appraised Value: | + | $50,000 | |
| | | -------------------------- | |
| (=) Total Appraised Value: | = | $50,000 | |
| (–) Senior Exemption Loss: | – | $0 | |
| (–) Exemption Loss: | – | $0 | |
| | | -------------------------- | |
| (=) Taxable Value: | = | $50,000 | |
Taxing Jurisdiction
| Owner: | BERG FAMILY PROPERTIES, LLC | | |
| % Ownership: | 100.0000000000% | | |
| Total Value: | $50,000 | | |
| Tax Area: | 519 - APPRAISER-Stan/Cam Schl Dist, vacant & 50 acres or less |
| CF | Conservation Futures | 0.0316035091 | $50,000 | $50,000 | $1.58 | | |
| EMS1 | Fire & Rescue Dist #1 Camano GEN (EMS) | 0.3677864386 | $50,000 | $50,000 | $18.39 | | |
| CE | County Current Expense | 0.3708482477 | $50,000 | $50,000 | $18.54 | | |
| CR | County Roads | 0.4584763726 | $50,000 | $50,000 | $22.92 | | |
| LCIB | Library Sno-Isle BOND (Camano Island) | 0.0396325772 | $50,000 | $50,000 | $1.98 | | |
| LIB | Library Sno-Isle GEN | 0.3153421757 | $50,000 | $50,000 | $15.77 | | |
| SCH205_401 | School 205-401 Enrichment | 1.2698420524 | $50,000 | $50,000 | $63.49 | | |
| SCH205BOND | School 205-401 BOND | 0.9396497583 | $50,000 | $50,000 | $46.98 | | |
| ST | State School | 1.3035497053 | $50,000 | $50,000 | $65.18 | | |
| ST2 | State School Part 2 | 0.8169543533 | $50,000 | $50,000 | $40.85 | | |
| | Total Tax Rate: | 5.9136851902 | | | | | |
| | | | | Taxes w/Current Exemptions: | $295.68 | | |
| | | | | Taxes w/o Exemptions: | $295.68 | | |
Improvement / Building
Sketch
| No sketches available for this property. |
Property Image
Land
| 1 | 32 | AC (03.01-09.99) | 3.2900 | 0.00 | 0.00 | 0.00 | 1.00 | $50,000 | $0 |
Roll Value History
| 2026 | N/A | N/A | N/A | N/A | N/A |
| 2025 | $0 | $50,000 | $0 | $50,000 | $50,000 |
| 2024 | $0 | $50,000 | $0 | $50,000 | $50,000 |
| 2023 | $0 | $15,000 | $0 | $15,000 | $15,000 |
| 2022 | $0 | $200,000 | $0 | $200,000 | $200,000 |
| 2021 | $0 | $140,000 | $0 | $140,000 | $140,000 |
| 2020 | $0 | $130,000 | $0 | $130,000 | $130,000 |
| 2019 | $0 | $130,000 | $0 | $130,000 | $130,000 |
| 2018 | $0 | $120,000 | $0 | $120,000 | $120,000 |
| 2017 | $0 | $120,000 | $0 | $120,000 | $120,000 |
| 2016 | $0 | $100,000 | $0 | $100,000 | $100,000 |
| 2015 | $0 | $100,000 | $0 | $100,000 | $100,000 |
| 2014 | $0 | $100,000 | $0 | $100,000 | $100,000 |
| 2013 | $0 | $98,700 | $0 | $98,700 | $98,700 |
| 2012 | $0 | $98,700 | $0 | $98,700 | $98,700 |
| 2011 | $0 | $98,700 | $0 | $98,700 | $98,700 |
| 2010 | $0 | $98,700 | $0 | $98,700 | $98,700 |
| 2009 | $0 | $175,000 | $0 | $175,000 | $175,000 |
| 2008 | $0 | $170,000 | $0 | $170,000 | $170,000 |
| 2007 | $0 | $150,000 | $0 | $150,000 | $150,000 |
Deed and Sales History
| 1 | 12/06/2024 | WD | Warranty Deed | JAY DONN SWANSON PR | BERG FAMILY PROPERTIES, LLC | | | $120,000.00 | 62001 | 4580115 |
| 2 | 09/13/2005 | 5 | DNU - Marriage License/Name Change | SWANSON, DONN E | SWANSON, LORETTA | | | $0.00 | 70589 | 0 |
| 3 | 12/01/1979 | EXECUTORD | Executor Deed | GALBRAITH, L C | SWANSON, DONN E | | | $10,500.00 | 95807 | 362808 |
| 4 | 01/01/1900 | OTHER | Other - Misc. Documents | Unknown | GALBRAITH, L C | | | $0.00 | 0 | 0 |
Payout Agreement
| No payout information available.. |